Église Saint-Joseph d'Orosi

Église Saint-Joseph d’Orosi
Image illustrative de l’article Église Saint-Joseph d'Orosi
Vue générale de l’église.
Présentation
Nom local Iglesia de San José
Culte Catholique romain
Type Église
Fin des travaux 1767
Style dominant Architecture coloniale
Protection Patrimoine historique du Costa Rica (1920)
Monument national (1985)
Géographie
Pays Drapeau du Costa Rica Costa Rica
Province Cartago
Canton Paraiso
Ville Orosi
Coordonnées 9° 47′ 50″ nord, 83° 51′ 20″ ouest
Géolocalisation sur la carte : Costa Rica
(Voir situation sur carte : Costa Rica)
Église Saint-Joseph d’Orosi

L’église Saint-Joseph (en espagnol : Iglesia de San José), aussi appelée église coloniale d’Orosi (Iglesia Colonial de Orosi), est une église chrétienne de l’Église catholique située à Orosi, village du canton de Paraiso de Cartago, au Costa Rica.

Elle est la plus ancienne église du pays, datant de la période de colonie espagnole. Elle a été bâtie en 1767 par des moines franciscains, et consacrée à saint Joseph. Elle est classée Patrimoine historique du Costa Rica en 1920, et Monument national en 1985.

En 2010, l’ancien couvent des moines a été transformé en musée d’Art religieux.

Histoire

Le village d’Orosi a été fondé en 1570, lorsque le gouverneur espagnol Perafán de Ribera (es) répartît les indigènes locaux en encomiendas. L’origine de la population est encore plus ancienne, formée d’une colonie de huetars qui occupaient la vallée d’Orosi à l’arrivée des Européens au XVIe siècle.

En 1743, des moines franciscains édifièrent un couvent. Dix ans après, en 1753, ils érigèrent la paroisse Saint-Joseph d’Orosi (parroquia de San José de Orosi). En 1766, ils terminèrent la construction de l’église en adobe, qui persiste encore de nos jours, ce qui fait d’elle la plus ancienne église du Costa Rica.

En 1920, l’église d’Orosi a été déclarée Patrimoine historique. À partir de 1996, elle fut administrée par des moines diocésains. Elle a été restaurée en trois occasions, en 1976, en 1980 et en 2010[1]. Lors de cette dernière restauration, l’ancien couvent franciscain est devenu le musée d’Art religieux Saint-Joseph d’Orosi.

Architecture

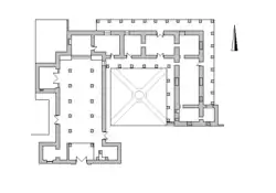
L’édifice possède une architecture typique du style colonial des missions, intégrant dans le même bâtiment église et couvent. Il est fabriqué en épais murs d’adobe, bahareque et calicanto.

Plan de l’édifice, avec l’église à gauche et une cour au centre.

Il possède une ligne sobre et simple, austère. Sa façade principale est un corps de forme triangulaire, avec un plafond à deux eaux fait de tuiles. La porte principale se trouve couronnée par un arc.

Du côté nord-ouest, adossée au bâtiment principal, se trouve une tour-clocher qui se détache du reste de l’ensemble. Le bâtiment n’a qu’un seul étage. L’église possède trois nefs, avec un dallage de brique, et des pilastres de cèdre avec une base en pierre, qui soutiennent les bois du plafond. Dans son intérieur, le presbytère s’élève du reste de la construction à peine sur deux marches.

Intérieur de l'église

La nef latérale gauche de l’église possède deux chapelles, la chapelle baptismale et la chapelle des Esprits (capilla de las Ánimas). Dans la nef centrale se trouve une image de saint Joseph. À la droite de l’enceinte se trouve la sacristie, qui communique avec le couvent, en forme de « L ». Au sud-est, on trouve le modeste musée d’Art religieux, dans lequel sont disposées des pièces anciennes de céramique précolombienne, de précieuses peintures de l’époque coloniale, des sculptures et autres objets religieux en argent. Le contraste avec la simplicité de la mission permet aux œuvres d’art de recréer une vraie ambiance baroque.

Au sud, se trouve l’ancien cimetière.

Articles connexes

Bibliographie

  • (es) Annie Lemistre Pujol, Orosi, San José, ministère de la Culture, la Jeunesse et le Divertissement (es), , 28 p. (lire en ligne [PDF]).

Références

  1. (es) « Patrimonio restauró Iglesia de Orosí », sur Ministerio de Cultura y Juventud de Costa Rica (consulté le ).
  • icône décorative Portail de l’architecture chrétienne
  • icône décorative Portail du Costa Rica
  • icône décorative Portail du catholicisme