Abbaye Saint-Thomas de Brno
| Abbaye Saint-Thomas | |
| |
| Existence et aspect du monastère | |
|---|---|
| État de conservation | Abbaye en activité |
| Nom local | Starobrněnský klášter Opatství svatého Tomáše |
| Identité ecclésiale | |
| Culte | Catholique |
| Diocèse | Brno (cs) |
| Type | Abbaye de Cisterciens à la fondation puis abbaye d'Augustins à partir de 1783. |
| Présentation monastique | |
| Fondateur | L'abbaye est fondée par la reine douairière Élisabeth Ryksa, reine de Bohême. |
| Ordre | Ordre cistercien de 1323 à 1782, puis ordre des Augustins depuis 1783. |
| Caractéristiques cisterciennes | Abbaye-mère : Sedlec Lignée de : Morimond Abbayes filles : Aucune |
| Historique | |
| Date(s) de la fondation | 1323 |
| Essaimage | L'abbaye se dote d'une brasserie. |
| Architecture | |
| Dates de la construction | La construction de l'abbaye commence par celle de l'abbatiale le dimanche de Pentecôte 1323. |
| Styles rencontrés | L'abbatiale est un édifice gothique de brique. |
| Protection | Monument culturel[1] |
| Localisation | |
| Pays | |
| Marche du Saint-Empire | Margraviat de Moravie |
| Région | Moravie-du-Sud |
| District | Brno-Ville |
| Commune | Brno |
| Coordonnées | 49° 11′ 31″ nord, 16° 35′ 37″ est |
L'abbaye Saint-Thomas de Brno est une abbaye anciennement cistercienne et désormais augustinienne située dans la vieille ville de Brno.
Fondée en 1323, elle est supprimée en 1782 par les réformes du joséphisme. Dès le , la communauté cistercienne est remplacée par les Augustins également expulsés de leur monastère (cs).
Son abbatiale est la basilique de l'Assomption-de-la-Sainte-Vierge-Marie.
Elle est particulièrement connue pour l'un de ses moines, Gregor Mendel, fondateur de la génétique.
Situation
L'abbaye est située au sud-est de la forteresse du Spielberg et à l'ouest de la vieille ville de Brno (cs)[2].
Histoire
Fondation
L'abbaye est fondée par la reine douairière Élisabeth Ryksa, reine de Bohême, qui en pose la première pierre le dimanche de Pentecôte 1323[2].
La construction de l'abbaye commence par celle de l'église, la future basilique de l'Assomption-de-la-Sainte-Vierge-Marie ; cette dernière remplace un précédent édifice religieux d'architecture romane[2].
Changement de communauté au XVIIIe siècle

Les réformes du joséphisme chassent les cisterciens de l'abbaye en 1782. Toutefois, l'abbaye est d'une importance trop grande pour être purement et simplement supprimée. En conséquence, Joseph II, qui a également fait expulser les Augustins de leur monastère (cs) afin d'y mettre le Gouvernorat de Moravie, leur donne en compensation l'ancienne abbaye cistercienne par décret du [1].
L'abbaye se dote notamment d'une brasserie. Par la suite, cette brasserie devient trop importante pour l'abbaye et devient l'établissement Starobrno[1].
Moines célèbres
De 1868 à 1884, l'abbé du monastère est Gregor Mendel, fondateur de la génétique. L'abbaye abrite notamment un musée qui est dédié aux travaux de ce dernier[1].
Les compositeurs Pavel Křížkovský et Leoš Janáček sont tous deux moines à l'abbaye durant la seconde moitié du dix-neuvième siècle, le premier étant un des maîtres du second[1].
Époque récente
De 1997 à 2015, l'abbé de Saint-Thomas est Lukáš Evžen Martinec. Très pris par de nombreuses activités, il demande à être relevé de son abbatiat, demande acceptée par l'ordre d'abord à titre temporaire, puis à titre définitif le ; il est remplacé par Juan Provecho (cs), général de l'ordre[3].
Architecture
Volumétrie générale
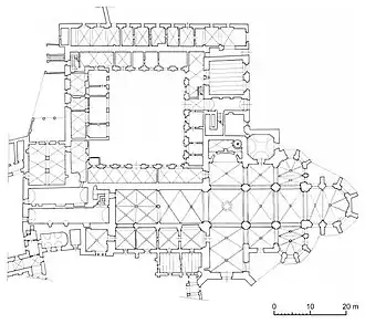
L'abbaye se présente comme un complexe de bâtiments de deux niveaux construits autour de quatre cours rectangulaires, entourant la basilique de l'Assomption-de-la-Sainte-Vierge-Marie[1].
- Vues générales de l'abbaye
Plan de 1797 de l'ensemble monastique.
Plan détaillé de l'église et du cloître en 1797.
Volumétrie des bâtiments du monastère.
Une autre cour de l'abbaye.
Bâtiments conventuels
Au nord de l'église est située la « cour du paradis », un cloître entouré de bâtiment comprenant notamment une salle capitulaire. À côté de la salle capitulaire se trouve un passage voûté menant à la cour, avec l'emblème de l'abbé au-dessus du portail[1].
À l'ouest de l'église est placée la cour dite « ancienne cour irrégulière ». Elle est entourée d'un bâtiment de deux étages à trois ailes comprenant un dortoir et une galerie de musique[1].
Au sud de l'église est situé un presbytère d'un étage, dont l'élévation est, avec un contrefort dans l'axe, est richement détaillée ; un autre bâtiment de deux étages datant des années 1970 lui a été ajouté[1].
Église abbatiale
La basilique est un édifice gothique de brique, ce qui est relativement rare en Tchéquie, à l'exception de la Cathédrale du Saint-Esprit de Hradec Králové (cs). Son plan est extrêmement inhabituel dans l'architecture cistercienne, s'inspirant probablement des églises romanes allemandes comme la basilique des Saints-Apôtres ou Sainte-Marie-du-Capitole, toutes deux situées à Cologne, mais aussi de certaines églises gothiques, comme Sainte-Élisabeth de Marbourg ou la collégiale Saint-Croix de Wrocław (pl)[2].
Côté oriental, le chœur est trilobé, avec une chapelle au nord, une au sud et l'abside principale à l'est ; chaque chapelle est fermée par une abside pentagonale. La croisée de ces trois chapelles est située à l'est de la croisée du transept. Le transept est un peu moins long que le chœur. La nef est relativement courte avec seulement quatre travées[2].
- La basilique abbatiale
Plan détaillé de l'abbatiale.
L'abside de l'église vue depuis le sud-est.
Vue de l'intérieur de l'église depuis le chœur vers la nef et l'orgue de tribune.
Le fond de l'église, en direction du chœur.
Le transept de la basilique en direction du sud et de la rosace méridionale.
Le pape Jean-Paul II érige l'église de l'Assomption en basilique mineure le [1].
Notes et références
- 1 2 3 4 5 6 7 8 9 10 (cs) « Areál augustiniánského kláštera na Starém Brně », Památkový Katalog (consulté le ).
- 1 2 3 4 5 (cs) « Staré Brno – Klášter cisterciaček », Université Charles de Prague (consulté le ).
- ↑ (cs) « Výpis z Rejstříku evidovaných právnických osob Opatství Staré Brno Řádu sv. Augustina », Ministère de la Culture (consulté le ).
Voir aussi
Articles connexes
Bibliographie
- [Jan Bukovský 1988] Jan Bukovský, « Starobrněnský klášter, jeho středověká výstavba a otázky spojené s rehabilitací objektů kolem rajského dvora Kláštera Králové », Časopis Moravského Muzea. Vědy Společenské, , p. 79-95 (ISSN 0323-0570, OCLC 801992519)
- [Bohumil Samek 1993] (cs) Bohumil Samek (cs), Klášter augustiniánů v Brně, Brno, Památkový ústav, , 62 p. (ISBN 9788085032192, OCLC 85642630)
- Portail de l'Ordre cistercien
- Portail de l’architecture chrétienne
- Portail de la Tchéquie
- Portail du catholicisme


