Abbaye Saint-Vincent de Senlis
| Abbaye Saint-Vincent | |
Vue d'ensemble depuis de nord-est de l'abbaye Saint-Vincent située à Senlis, dans l'Oise. | |
| Présentation | |
|---|---|
| Culte | Culte catholique |
| Type | Abbaye |
| Rattachement | Chanoines réguliers de saint Augustin |
| Début de la construction | après 1138 (église abbatiale) |
| Fin des travaux | vers 1660-1668 (bâtiment conventuel) |
| Style dominant | gothique, néo-classique |
| Protection | |
| Géographie | |
| Pays | |
| Région | |
| Département | |
| Ville | |
| Coordonnées | 49° 12′ 09″ nord, 2° 35′ 20″ est[1] |
L'abbaye Saint-Vincent de Senlis est une ancienne abbaye de chanoines réguliers de saint Augustin à Senlis (Oise). Elle a été fondée en 1065 par la reine Anne de Kiev, probablement en relevant de ses ruines une ancienne abbaye dont l'histoire n'a pas laissé de traces. L'abbaye est placée sous les vocables de saint Jean Baptiste et saint Vincent de Saragosse, qui n'est donc que le second patron pendant les premières décennies. Aucun élément en élévation ne subsiste de la première abbaye. L'église abbatiale actuelle fut édifiée pendant la seconde moitié du XIIe siècle par le même atelier qui travaillait sur le chantier de la cathédrale Notre-Dame de Senlis.
L'architecture est sobre, et montre encore des influences romanes, mais dans son ensemble, l'abbatiale appartient à la première période gothique. Avec un vaisseau central de 47 m de longueur et un clocher élancé culminant à 41 m, elle est de dimensions considérables.
Pendant son premier siècle d'existence notamment, l'abbaye est très prospère. Après les troubles de la guerre de Cent Ans, elle ne retrouve pas durablement la sérénité de la vie monastique ; en 1491 et 1505, deux tentatives d'usurpation de la fonction d'abbé sont des facteurs perturbateurs. Avec l'instauration du régime de la commende en 1536, l'observance de la discipline relâche. Fin 1613, le jeune Charles Faure se présente comme novice. Sa foi, son courage et son talent lui permettent de devenir le plus important réformateur de l'ordre, et à partir de 1623, l'abbaye Saint-Vincent devient le noyau de la réforme génovéfaine, qui conduit à la constitution de la Congrégation de France. Senlis est déclaré siège des chapitres de la province de France de cette congrégation. Entre 1660 environ et 1689, le bâtiment conventuel est entièrement reconstruit dans une architecture néo-classique.
En 1791, la Révolution française impose la suppression de l'abbaye. Ses bâtiments servent successivement d'hôpital, de caserne, de prison et de manufacture. Ils sont abandonnés en 1826, et échappent de justesse aux démolisseurs en 1835, quand l'effort conjugué de trois chanoines de Beauvais aboutissent dans le sauvetage de l'abbaye, et la fondation d'une institution d'enseignement catholique en 1836. C'est aujourd'hui le lycée privé Saint-Vincent, qui fonctionne sous contrat d'association avec l'État. Si les enseignants ne sont plus des pères Maristes, les contacts avec cette congrégation restent forts.
Localisation
L'ancienne abbaye Saint-Vincent se situe en France, en région Picardie et dans le département de l'Oise, sur la commune de Senlis, à l'extrémité sud-est du centre-ville ancien, 30 rue de Meaux. Son domaine jouxte le rempart médiéval et plus précisément le rempart Bellevue. Lors de la fondation de l'abbaye, elle se trouvait en dehors de l'enceinte fortifiée, dans un faubourg appelé bourg Vietel.
Historique
La fondation
%252C_ancienne_abbaye_Saint-Vincent%252C_statue_d'Anne_de_Kiev%252C_%C3%A0_gauche_du_portail.jpg)
Les origines de l'abbaye ne sont pas claires. Selon M. Durand et Ph. Bonnet-Laborderie (2004), l'abbaye prend le relais d'une église reconstruite en 1060 à l'emplacement d'une chapelle ruinée, et dédiée à cette occasion à saint Jean Baptiste. L'abbaye proprement dite aurait été fondée en 1065. Selon E. Müller (1881), ce n'est pas seulement une chapelle, mais une abbaye fondée à une date inconnue qui est relevée de ses ruines en 1065 par Anne de Kiev. Müller ignore la dédicace à saint Jean Baptiste, tout comme par ailleurs le chroniqueur Nicolas Quesnel, sous-prieur de l'abbaye, dont le manuscrit de 1670 environ a servi de base à la publication de F. Magne (1860). Quesnel ne mentionne pas d'abbaye antérieure à 1065, mais seulement une église. Quoi qu'il en soit, l'association de la fondation ou refondation de Saint-Vincent à Anne de Kiev ne fait aucun doute, ni l'existence antérieure d'un sanctuaire au même endroit.
La veuve du roi Henri Ier avait fait vœu de bâtir un monastère en honneur de Vincent de Saragosse si Dieu bénissait son union (en accordant des enfants au couple royal). Elle attend toutefois quatorze ans après la naissance de son fils aîné, le futur roi Philippe Ier et cinq ans après son veuvage ; entre-temps, elle s'est remariée avec Raoul IV de Vexin pour qui elle est la troisième épouse. Ce mariage entre une reine et un vassal débouche sur l'excommunication du couple en 1064. Il n'a pas été étudié comment, dans ces conditions, Anne de Kiev a pu fonder une abbaye, mais l'on a le droit de supposer qu'elle ait voulu se racheter en face des évêques. Le , l'église est toutefois consacrée à la sainte Trinité, à Marie, à saint Jean Baptiste et à saint Vincent. L'abbaye est peuplée de chanoines réguliers de saint Augustin, et Philippe Ier l'a déclarée libre au même titre que les autres églises abbayes royales. Elle n'est donc soumise à aucune juridiction ecclésiastique ou laïque. Dès le début, elle est généreusement dotée, recevant un moulin à Gouvieux, la terre du Blanc-Mesnil, une propriété à Crépy-en-Valois, et un peu plus tard le domaine royal de Barbery donné par Philippe Ier. Rien n'est cependant connu sur les bâtiments primitifs de l'abbaye Saint-Vincent, sauf que les moines firent construire une grange dîmière[3],[4],[5].
La prospérité de l'abbaye pendant son premier siècle
D'après un manuscrit que les moines de Saint-Vincent avaient conservé, Anne de Kiev aurait vécu à l'abbaye et parmi les moines pendant quelques années. La liaison avec Raoul de Vexin y est placée dans cette période. Vers 1074 en tout cas, Anne de Kiev quitte Senlis, peut-être pour regagner sa patrie, et demande à son fils Philippe Ier de prendre le titre de fondateur de l'abbaye. Le roi accepte, et le patronage devient héréditaire dans sa famille. Philippe confie cette charge à son fils Louis VI ou le Gros dès 1100, mais le jeune prince ne parvient pas à protéger efficacement l'abbaye contre les convoitises des autres puissances laïques et des religieux. C'est surtout l'ordre de Cluny qui souhaite s'emparer de Saint-Vincent, mais heureusement pour elle, une alliance locale contre les clunisiens se forme, avec les trois chapitres de Senlis en tête. Pour permettre à l'abbaye Saint-Vincent de résister, on la dote de revenus supplémentaires. Louis VI parvient par la suite à lui faire restituer les biens usurpés par de différents seigneurs, et l'abbaye ressort donc renforcée de ces épreuves du début du XIIe siècle. Il aura fallu également une bulle du pape Calixte II pour rappeler les chanoines à l'observance de la règle.
Saint-Vincent redevient prospère, et l'abbé Baudouin instaure une école, mentionnée pour la première fois en 1124. Après la mort de Baudouin, les chanoines cherchent une stratégie pour s'assurer de la pérennité de leur situation favorable, et décident ainsi de s'associer à l'abbaye Saint-Victor de Paris, qui bénéficie d'une très bonne réputation. Pour ce faire, ils choisissent leur nouvel abbé parmi les chanoines de Saint-Victor. Un acte d'union entre les deux abbayes est signé ; approuvé par Louis VII en 1138, il ne donne à Saint-Victor aucun droit sur l'administration ou les revenus de Senlis. Saint-Vincent conserve sa réputation de grande vertu et attire ainsi les legs et dons de nombreux seigneurs et habitants de toutes les conditions, qui espèrent ainsi racheter leurs fautes. Si les donateurs se démettent de leurs biens de leur vivant, ils en gardent l'usufruit et peuvent continuer vivre dans leur maison, ou bien choisir de devenir chanoine auxiliaire ou convers, pour partager ainsi la vie au monastère. L'abbaye accepte aussi des sœurs converses, et privilège des reines, Isabelle de Hainaut, s'y retire pendant un certain temps[6].
Avec cette augmentation du nombre d'occupants, l'agrandissement s'impose, et l'abbaye est en fait entièrement construite à neuf selon le témoignage des anciennes archives de Saint-Vincent. Les archives ne contiennent cependant aucune description détaillée des nouveaux bâtiments, et ne fournissent qu'une énumération de ce qui a été construit, en louant notamment le grand réfectoire de douze travées, pouvant accueillir facilement quatre-vingts convives. Aux XIIe et XIIIe siècles, l'abbaye fonde en outre huit prieurés, le plus souvent réunis à des paroisses, dont le rôle de curé fut assumé par des chanoines. Ces prieurés sont en partie fort éloignés de Senlis : trois se situent dans le diocèse de Rouen et deux dans le diocèse d'Arras. Saint-Vincent nomme aussi aux cures de Fontaine-Chaalis et Gouvieux. Finalement, de différentes abbayes et chapitres signent des contrats d'association avec Saint-Vincent pour partager la bonne réputation de cette maison ; en premier lieu, les trois chapitres de Senlis (Notre-Dame, Saint-Frambourg et Saint-Rieul, et ensuite, l'abbaye de la Victoire, l'abbaye Sainte-Geneviève de Paris, l'abbaye de Juilly et l'abbaye d'Eu (Seine-Maritime)[7].
Conflits d'intérêts et désordres
%252C_ancienne_abbaye_Saint-Vincent%252C_statue_de_dom_Leclerc_%C3%A0_droite_du_portail.jpg)
La position forte et indépendante de l'abbaye suscite la jalousie de l'évêque de Senlis, et donne lieu à une série de différends. À la fin du XIIe siècle, Saint-Vincent doit faire quelques concessions d'une valeur plutôt symbolique, et à partir de 1277, l'abbé prend la précaution de faire signer un papier à l'évêque chaque fois qu'il assiste à un repas au monastère. L'évêque doit ainsi attester que sa présence au repas n'est pas un droit de sa dignité ou une prérogative de son titre. Autre précaution, Saint-Vincent ne relevant que du pape, elle fait souvent ordonner ses prêtres et bénir ses prieurs par des évêques d'autres diocèses. Cette pratique provoque encore un litige porté devant le pape Innocent VIII, qui confirme les privilèges de Saint-Vincent par une bulle. Par la suite, ne craignant plus la remise en question de ses acquis, l'abbaye demande désormais les bénédictions à l'évêque de Senlis. D'autre part, l'abbaye accepte de céder son droit de justice seigneuriale à la commune de Senlis pour le faubourg Saint-Vincent et les maisons qu'elle possède en ville, moyennant une redevance annuelle. Après la suppression de la commune, au XIVe siècle, le bailli conteste plusieurs fois le droit de justice à l'abbaye et fait abattre ses fourches patibulaires en 1375, mais est aussitôt obligé de les rétablir[8].
Au XVe siècle, la guerre de Cent Ans apporte son lot de désordres. L'abbaye tente de conserver sa neutralité, ce qui ne la préserve pas d'être spoliée simultanément par le roi et par le duc de Bourgogne, Jean sans Peur, qui saisit les dîmes que Saint-Vincent touche en Flandre. L'abbé Guillaume Leclerc, s'y trouvant par hasard en 1418, est même fait prisonnier, mais dissimulant son rang, il est délivré moyennant une modique rançon. Vers la même époque, l'abbaye perd une partie de ses registres. Sous l'abbé Jean IV vers 1435, l'observance de la règle se relâche ; différents membres de sa famille l'entourent au monastère, et il célèbre le mariage de sa sœur à l'église abbatiale. L'abbé se met aussi à courtiser le puissant seigneur Jean II de Montmorency, auquel il prête de l'argent et du blé, mais en guise de remerciement, le sieur de Motnmorency vient enfoncer les portes de l'abbaye avec ses gens d'armes. En même temps, l'abbaye doit supporter des charges de plus en plus lourdes, devant s'acquitter de la taxe sur le clergé imposée par le concile de Bâle et payer des impôts toujours plus élevés, pour que le roi puisse faire face à l'effort de guerre. Les chanoines sont alors au nombre de seize. Ils abandonnent quelques principes fondamentaux, n'obéissent plus à l'abbé et oublient le vœu de pauvreté, revenant à la propriété individuelle. Les successeurs de Jean IV, Jean V puis Pierre Richevillan, renouent avec l'ancienne habitude se faire confirmer par le pape tout en ignorant l'évêque de Senlis. Vers 1465, ce dernier engage un procès à l'abbaye, et la longue lutte de pouvoir qui s'engage ne reste pas toujours dans les limites de la légalité[9].
Tentatives d'usurpation de la fonction d'abbé
%252C_ancienne_abbaye_Saint-Vincent%252C_clo%C3%AEtre%252C_galerie_nord.jpg)
En 1491 et 1505, deux conseillers ecclésiastiques au Parlement de Paris, proches de l'entourage du roi, tentent consécutivement de s'emparer de la fonction d'abbé régulier de l'abbaye par des subterfuges. En 1491, Nicolas Foulon meurt après avoir officié comme abbé pendant cinq ans. Conformément à la règle, les chanoines élisent son successeur parmi leurs rangs, et choisissent Nicolas Barbe. Se présente alors Charles du Bec, qui dénonce l'élection pour motif de nullité en cour de Rome, car les suffrages des religieux auraient été captés par promesse d'argent et par intimidation. Du Bec prend possession de l'abbaye muni d'un arrêt du parlement, rencontrant bien entendu une vive opposition de la part des chanoines, qui doivent faire garder l'abbaye par des soldats à la suite des vols répétés commis par le prétendant. Cependant, Nicolas Barbe ne bénéficie dans un premier temps pas de l'appui de l'évêque de Senlis, et c'est seulement après avoir sollicité une autorisation écrite du parlement que l'évêque consent à le bénir. Mais du Bec n'est pas encore écarté, et quand la sentence en faveur de Nicolas Barbe est prononcée en 1494, l'abbaye a perdu presque toutes ses richesses, et la discipline n'y règne plus. Pendant son abbatiat qui durera jusqu'en 1505, l'abbé parvient à se faire restituer les biens spoliés, avec l'appui du pape.
Après la mort de Nicolas Barbe, le scénario de 1491 se répète, le prétendant à la fonction d'abbé étant cette fois-ci Bernardin de Vaudray, conseiller au Parlement, protonotaire apostolique, aumônier du roi, écuyer et seigneur de Moisier. Il bénéficie de l'appui des officiers royaux en poste à Senlis, et devant le refus des chanoines d'accepter Vaudray comme abbé, leur prieur est emprisonné. Pour garder l'apparence des formes, il est toutefois libéré afin de pouvoir assister à la réunion du chapitre du lendemain. Les religieux obtiennent la présence des abbés de la Victoire, de l'official de Senlis et de deux notaires pour surveiller l'élection, que Vaudray tente d'empêcher d'entrer. Mais l'élection du nouvel abbé peut ainsi se faire dans les règles, et c'est Jean Thibaud qui est élu à l'unanimité. Pour autant, Vaudray ne se donne pas pour vaincu et, utilisant mensonges et calomnies, parvient à gagner l'archevêque de Reims pour sa cause. Il faudra que les chanoines aient recours au Parlement pour écarter définitivement l'usurpateur. Jean Thibaud est béni par l'évêque de Beauvais, Louis II de Villers, en , et gouvernera l'abbaye pendant près de trente ans jusqu'à son décès en octobre 1535. Il aura été le dernier abbé élu par les chanoines[10].
L'instauration du régime de la commende en 1536
Le concordat de Bologne instaure le régime de la commende. Guillaume Thibaud, neveu de François Thibaud, est déclaré abbé de Saint-Vincent par ordonnance royale en 1536. Pour s'attirer la faveur des chanoines, Thibaud respecte dans un premier temps les usages anciens et les règles établies. Mais bientôt, il ne verse plus assez d'argent aux chanoines, qui se plaignent devant le lieutenant-général. Il fait juger le différend par les prieurs de Saint-Maurice et Bray. Leur sentence est même approuvée par le Parlement de Paris, mais la paix ne se rétablit pas dans l'abbaye. Les religieux ont donc recours à une autre stratégie, qui consiste à se rapprocher de nouveau de l'abbaye Saint-Victor. Un nouveau prieur est réclamé à cette abbaye, et quelques-uns de ses chanoines s'installent provisoirement à Senlis. Tous les chanoines renouvellent leurs vœux, et ils parviennent à trouver un accord avec leur abbé sur le partage des revenus, sur la base d'un nombre de douze chanoines plus un précepteur pour les novices. La situation s'arrange pour quelques années, jusqu'à ce que l'abbaye souffre indirectement de la guerre de la Ligue : la reconstruction et renforcement des remparts la coupe d'une partie de son domaine comportant bâtiments, vignes, prés et jardins.
Jean de Bertier, né à Toulouse en 1556, originaire d'une puissante famille parlementaire, chanoine et archidiacre de Toulouse, fut abbé commendataire de Saint-Pierre de Mas-Garnier[11], Saint-Sever de Rustan, Saint-Vincent de Senlis et de l'Notre-Dame de Lieu-Restauré, aussi évêque de Rieux entre 1602 et sa mort survenue en 1620. Il est aussi attesté comme prieur de Saint-Tutuarn en 1605[12].
À la fin du XVIe siècle, la décadence s'est installé dans l'abbaye, et les chanoines ne vivent pour la plupart plus à l'abbaye, si bien qu'il est question de la donner aux Capucins. Fin 1613, son futur réformateur Charles Faure, âgé de dix-neuf ans, s'y présente comme novice, peu après le décès de son père. Guidé spirituellement par Antoine Ransson, prêtre extérieur à l'ordre, il risque d'abandonner au bout de quelques mois, dégoûté par la vie légère des chanoines. Mais finalement ce seront les deux ennemis déclarés du pieux prêtre, deux jeunes chanoines qui ne savent même pas pourquoi ils sont entrés dans l'ordre, qui vont demander d'être guidés par lui pour suivre l'exemple de Faure. Robert Baudouin et Claude Branche se mettent à l'œuvre pour réformer l'abbaye, Faure étant encore novice. Ils dissuadent des jeunes hommes désireux de devenir novices de le faire à Saint-Vincent, et le prieur craint le dépeuplement de l'abbaye. Des événements similaires se déroulent à l'abbaye de la Victoire. Le père Ransson attire la haine sur lui et doit fuir pour ne pas être jeté en prison. Or, quelques chanoines de Saint-Vincent ne l'abandonnent pas et font part de l'affaire à l'évêque de Senlis, le cardinal François de La Rochefoucauld. Celui-ci réclame Ransson comme prêtre de son diocèse, et le réhabilite bientôt sous la faveur des témoignages des novices qu'il avait accompagnés[13].
La réforme de l'abbaye en 1615-20
Peu après le départ de Ransson en 1615, Faure est institué chanoine de Saint-Vincent, malgré sa santé fragile, et se joint à Baudouin et Branche dans leur combat pour la réforme. Les trois rencontrent alors des difficultés résultant de leur manque d'instruction, et Baudouin et Faure obtiennent d'être envoyés à Paris pour suivre des cours de philosophie et théologie, en octobre 1616. Le prieur y est en principe opposé, mais y consent comme il est ainsi débarrassé de leur présence. Toutefois, quand il apprend que les deux chanoines vivent dans une communauté religieuse dans le collège du Mans, il coupe la pension, et c'est la famille de Faure qui pourvoit désormais aux charges. Baudouin ne reste qu'un an à Paris et rentre à Senlis pour s'occuper comme chambrier de la gestion du temporel de l'abbaye, dilapidé par ses confrères. Le long conflit entre le petit nombre de réformateurs, soutenus par La Rochefoucauld, et la majorité de chanoines, rassemblés derrière le prieur, reprend incessamment. Baudouin est plusieurs fois victime de calomnies. Le sort semble alors s'abattre sur les chanoines vivant dans la débauche : le neveu du prieur est condamné à mort à Paris, où il a fui ; un second, pris d'une maladie vénérienne, décède des suites de fortes hémorragies et d'une chute ; un troisième, joueur excessif, meurt en proférant des blasphèmes ; un quatrième décède subitement dans une maison close ; et un cinquième, ayant perdu la raison à force d'abuser de l'alcool, est « subitement enseveli dans le vin ». Ces disparitions se succèdent dans le délai d'un an. Le prieur est ensuite pris d'une fluxion qui lui fait sortir un œil de la tête, et meurt dans la folie.
%252C_promenade_sur_les_remparts%252C_ancienne_abbaye_St-Vincent.jpg)
Les opposants à la réforme sont désormais décimés, et Charles Faure rentre à Senlis. Le chapitre se réunit le et élit Robert Baudouin comme nouveau prieur. Le jour même, la communauté des biens est rétablie au bout de deux siècles d'interruption, et l'abbaye se met de nouveau à vivre dans la règle de saint Augustin. Par ailleurs, les chanoines habitant alors l'abbaye Saint-Vincent ignorent tout de cette règle, et Faure organise une série de conférences pour leur expliquer en quoi consiste la vie monastique. Il mise surtout sur l'unique novice de l'abbaye, et son espoir n'est pas déçu : bientôt les novices affluent, si bien que plusieurs sont envoyés vers d'autres abbayes pour y propager la réforme. Fin 1618, Faure est ordonné prêtre à vingt-trois ans seulement. Suivant l'exemple de Vincent de Paul, il instaure la pratique des retraites spirituelles, à peu près inconnue à l'époque, et utile pour la réforme. Mais à l'extérieur de l'abbaye, le nouveau mode de vie des chanoines paraît inattendu voire suspect pour plus d'un, et au moment que les rumeurs dans la ville ont pris une certaine ampleur, en 1619, un jeune religieux fuit l'abbaye. Il escalade les murs et tombe mal, et pour ne pas avouer la vérité, il dit aux passants que les réformateurs l'auraient ainsi maltraité. Le peuple s’ameute et envahit le monastère, pillant tout et insultant les chanoines. Le lendemain, le cardinal de La Rochefoucauld est en ville et promet d'inspecter lui-même l'abbaye, et ne trouve rien à redire. Au contraire, il estime qu'il serait bien si les religieux de l'abbaye Sainte-Geneviève de Paris y passaient tous quelque temps. Saint-Vincent devient en quelque sorte le centre de la réforme monastique en France. Tous les abbés commendataires qui s'intéressent encore au destin de leurs abbayes décident de prendre exemple sur Saint-Vincent[14].
Le rattachement à l'abbaye Sainte-Geneviève
%252C_ancienne_abbaye_St-Vincent%252C_clo%C3%AEtre_et_clocher.jpg)
%252C_ancienne_abbaye_St-Vincent%252C_vue_depuis_la_promenade_des_remparts.jpg)
Le roi Louis XIII investit le cardinal de La Rochefoucauld comme réformateur des abbayes françaises, et obtient dans ce sens un bref apostolique de la part de Grégoire XV, daté du . Le cardinal s'assure tout d'abord de la coopération de Charles Faure, et convoque ensuite une réunion de savants et religieux dans l'abbaye Sainte-Geneviève de Paris, dont il est l'abbé commendataire. La première idée de La Rochefoucauld est de faire partir la démarche de réforme des abbayes ayant jadis dépendu de l'abbaye Saint-Victor de Paris, mais ce projet est vite abandonné pour une approche plus pragmatique. On décide de commencer par la réforme des quarante abbayes les plus proches de Paris, et de les soumettre à Sainte-Geneviève, et donc à l'autorité du cardinal réformateur. Faure et Baudouin sont chargés de la visite des quarante abbayes retenues, pour reconnaître les abus qui s'y étaient introduits, et indiquer les moyens de les faire cesser.
Cette visite, parsemée de maintes difficultés, se termine le , et les résultats d'enquête servent à La Rochefoucauld à la rédaction de la règle de la nouvelle congrégation des Génovéfains, appelée bientôt Congrégation de France. Le chapitre de Saint-Vincent élit Charles Faure comme supérieur de cette congrégation. Pour mettre en œuvre la réforme, des chanoines de Saint-Vincent sont envoyés dans chacune des quarante abbayes rattachées, à commencer par Sainte-Geneviève elle-même. L'on constate donc que ce n'est pas cette dernière abbaye qui est la véritable origine de la Congrégation de France et de la réforme, mais bien l'abbaye Saint-Vincent de Senlis. Sainte-Geneviève a été retenue pour sa position géographique centrale et pour sa dépendance du cardinal La Rochefoucauld, plus haut défenseur de la réforme. Faure ne s'arrête pas là ; il instaure également des collèges d'enseignement religieux dans chacune des abbayes génovéfaines, où des enfants répondant à certains critères de sélection sont formés en vue d'une future vie monastique[15].
En 1624, la Picardie est envahie par les Espagnols, et l'on craint que Senlis ne soit assiégé. Le gouverneur de la ville, dont l'attitude est hostile à l'abbaye, veut profiter de la situation pour raser le dortoir afin d'améliorer les fortifications et pour transformer l'abbaye en prison. Ces projets ne sont pas mis en exécution, mais l'abbaye est fortement taxée, et pendant six semaines, tout son effectif se met à l'abri à Paris.
Le , se tient à Saint-Vincent le premier chapitre général de la nouvelle Congrégation de France. Les différentes résolutions sont généralement adoptées à l'unanimité. Charles Faure prononce la volonté de démissionner de sa fonction de gouverneur de l'ordre, proposition qui n'est pas acceptée. Il continue ainsi d'exercer cette fonction jusqu'à sa mort en 1644. Les chapitres généraux ne se tiendront cependant plus jamais à Senlis, mais à l'abbaye Sainte-Geneviève. Par contre, pour distinguer Saint-Vincent, Senlis est déclaré siège des chapitres de la province de France, qui se déroulent tous les trois ans, en septembre. Quarante-trois de ces chapitres auront lieu à Senlis jusqu'en 1786. Pendant que la vie religieuse à Saint-Vincent est pleine de vigueur, l'abbé commendataire Jean-Philippe de Bertier, en poste de 1620 à 1667, gaspille les biens amassés par l'abbaye pendant des siècles, mais fait également construire à neuf toute l'abbaye, à l'exception de l'église, qui subit toutefois des remaniements. Ces travaux ne sont pas achevés au départ de Bertier, mais se poursuivent jusqu'en 1689, peut-être avec des interruptions.
Son successeur, Louis Armand de Simiane de Gordes, a trop de fonctions pour s'occuper de Saint-Vincent. Il est chanoine de la cathédrale de Lyon, abbé de la Roë, prieur de Saint-Lô à Rouen, évêque-duc de Langres, pair de France et premier aumônier de la reine. Simiane de Gordes prend toutefois des arrangements favorables pour la gestion de l'abbaye, en cédant nombre de droits relevant de sa mense abbatiale au prieur. Un arrêt du oblige en effet l'abbé commendataire de prendre en charge les réparations et autres frais. Mais quand Laurent de Bergerat obtient le poste d'abbé commendataire en échange, il annule tous les arrangements conclus par son prédécesseur. Le différend avec les chanoines qui en résulte est porté devant le Parlement, et de telles situations se répètent jusqu'à la fin de l'abbaye[16],[17].
La fin de l'abbaye
En 1791, l'abbaye est supprimée avec l'ensemble des établissements religieux de Senlis.
Pendant des courts épisodes, elle accueille successivement un hôpital militaire, une caserne et une prison pour prisonniers de guerre, avant d'être louée à un manufacturier en 1804. Alors que le bail avait été signé pour une durée de soixante ans, la filature de coton, ayant occupé jusqu'à cinq cents personnes, cesse de fonctionner en 1826. L'abbaye vacante est acquise par le grand entrepreneur M. Puissant en 1835, qui envisage de la démolir.
Institution scolaire Saint-Vincent
Trois chanoines de Beauvais (dont le futur évêque Gignoux) rachètent les bâtiments en 1836 pour y fonder une maison d'éducation pour garçons. Elle ouvre le sous la direction de l'abbé Poullet. Commence alors une longue restauration de l'église et de l'ancien monastère[18],[19]. En 1846, l'institution peut s'agrandir en investissant des bâtiments de l'ancien couvent de la Présentation.

En 1869, l'Institution est confiée aux pères Maristes, qui sont des prêtres séculiers. En 1905, la loi de séparation des Églises et de l'État apporte de nouveau la confiscation des biens des congrégations religieuses. L'institution est sauvée grâce au rachat de ses bâtiments par d'anciens élèves (via la Société Civile Immobilière de la Rue de Meaux). Ils demeurent par ailleurs, à ce jour, la propriété de l'association des anciens élèves de Saint-Vincent de Senlis. Pendant la Première Guerre mondiale, plusieurs salles de l'institution sont réquisitionnées pour servir d'hôpital militaire à l'arrière du front.
Avec l'occupation allemande entre 1940 et 1945, les soldats s'emparent de l'ancienne abbaye. Les classes sont évacuées dans des baraquements sur le cours Thoré-Montmorency, près de la gare, et les élèves en internat sont logés chez des habitants. À la fin de la Seconde Guerre mondiale, l'état de délabrement des bâtiments fait planer le spectre de la fermeture définitive, que le directeur, l'abbé Maury, parvient à éviter.
En 1969, la mixité est introduite, et le collège est en même temps fermé au profit de l'institution Anne-Marie Javouhey. En 1980, les pères Maristes se retirent de l'établissement, mais conservent leur tutelle spirituelle. Aujourd'hui, l'institution est le Lycée privé Saint-Vincent, qui fonctionne sous contrat d'association avec l'État[20]. Pendant la période scolaire, des messes sont célébrées en l'église Saint-Vincent le jeudi à 11 h 30 ou 12 h 30, sauf exceptions[21]. Il est possible de visiter les abords de l'église et le cloître en dehors des heures de cours.
Abbés de Saint-Vincent
Abbés réguliers[22] :
- Lieutauld (1065 - ?)
- Felinand
- Baudouin (en 1119)
- Baudouin II (en 1138)
- Hugues (en 1147)
- Baudouin III (en 1154)
- Hugues II (en 1162 ou 1163)
- Guillaume
- R.
- Odo (en 1192)
- Pierre (vers 1205)
- Henry (vers 1220)
- Adam (vers 1230)
- Foulque (vers 1240)
- Pierre II (vers 1248)
- Henry II (en 1250)
- Adam II (coadjuteur en 1273, abbé en 1276)
- Jean (vers 1292)
- Guillaume II (1316-1325)
- Jean II de Montataire (vers 1336)
- Jacques (coadjuteur en 1355, abbé en 1356)
- Guillaume III Billard (en 1376)
- Jean III de Sainctes (vers 1380)
- N. (1398 - ?)
- Oudard ou Odo II (vers 1402)
- Guillaume IV Le Clerc (en 1415)
- Jean IV (vers 1433)
- Jean V Bonissent (vers 1450)
- Pierre II Richevillan (en 1462)
- Robert Foulon (en 1482)
- Charles du Bec, prétendu abbé (en 1491)
- Nicolas Barbe (en 1492)
- Bernard de Vauldray, prétendu abbé (en 1505)
- Jean VI Thibaud (en 1505)
Abbés commendataires[23] :
- Guillaume V Thibaud (en 1536)
- Jean VII Mazile (en 1572)
- Nicolas du Val (en 1580)
- 1604-1620 : Jean VIII de Bertier
- 1620-1667 : Jean-Philippe de Bertier
- 1667-1680 : Louis Armand de Simiane de Gordes
- 1680- : Laurent de Bergerat
- 1693- : Charles-Alexandre de Salians d'Estain
- 1718- : Louis de Chaumejan de Fourille
- peut-être un abbé dont le nom n'est plus connu, ou bien directement le suivant
- Claude-Charles de Mostuejouls (en 1765)
Description
Aperçu général

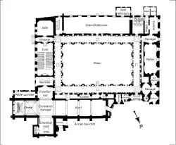
L'ancienne abbaye se compose de deux bâtiments bien distincts, l'église abbatiale bâtie après 1138, et le grand et massif bâtiment conventuel autour du cloître, édifié pendant les années 1660. Les autres bâtiments sur le même site, plus à l'ouest, faisaient tous partie du couvent Notre-Dame de la Présentation, jadis séparé de l'abbaye par une muraille et doté d'une entrée séparée.
Orientée irrégulièrement avec une nette déviation de l'axe de l'édifice vers le sud-est du côté du chevet, l'église suit un plan cruciforme, et se compose d'une nef de quatre travées, anciennement accompagnée d'un unique bas-côté du côté nord ; d'un transept nettement débordant ; et d'un chœur de deux travées, qui se termine par un chevet plat. La longueur totale dans-œuvre est de 47 m, dont 27 m pour la nef, 7,50 m pour la croisée du transept et 12,50 m pour le chœur. Le croisillon nord du transept a 9,40 m de profondeur, dans un sens nord-sud ; le croisillon sud est moins profond. La largeur est de 8,4 m au début de la nef, et de 7,8 m à partir de la dernière travée de la nef jusqu'au chevet. La nef et le transept sont voûtés d'arêtes, et le chœur est voûté d'ogives. La hauteur sous les voûtes est de 14,1 m dans le vaisseau central, sauf dans la dernière travée du chœur, où elle est de 11,60 m. L'on entre dans l'église par le portail occidental de la nef, ou par le portail occidental du croisillon nord, accessible depuis le cloître. Celui-ci flanque la nef au sud, et le croisillon nord à l'ouest. Le croisillon nord est englobé dans les bâtiments conventuels, et deux pièces attenantes abritent la sacristie[24].
Aucun élément visible en élévation ne subsiste de la chapelle reconstruite en 1060, et dédiée initialement à saint Jean-Baptiste. L'église actuelle a pour second patron saint Vincent de Saragosse, et a été bâtie pendant la seconde moitié du XIIe siècle. Le chantier s'est achevé par le clocher, qui est datable de la fin du XIIe siècle. Plus tard, au XIIIe siècle, le bas-côté a été ajouté ; il a été abandonné et les grandes arcades bouchées à une période inconnue. Vers 1670, les murs extérieurs de la nef et du transept ont été exhaussés, afin que l'église ne paraisse pas écrasée par le nouveau bâtiment conventuel haut de quatre niveaux (voir ci-dessous). Les voûtes de ces parties de l'église ont été refaites en briques cette époque[25],[26].
Intérieur de l'église
Nef et bas-côté
L'abbé Magne écrit : « En pénétrant dans l'intérieur de l'église, on est frappé du caractère simple et presque sévère du monument »[27]. La première travée est très sombre, car elle comporte la tribune d'orgue, qui est en fer et représente un intéressant témoignage des méthodes de construction à la révolution industrielle. De diverses plaques commémoratives sont scellées dans les murs. Il n'y a pas de fenêtre à ce niveau. En entrant dans la seconde travée, l'on saisit l'ampleur des volumes, qui sont propres à une église de ville d'une certaine importance. L'éclairage par la lumière naturelle est suffisant dans la seconde et la troisième travée, où l'on trouve des fenêtres hautes en arc brisé qui s'ouvrent au-dessus d'un glacis, sans ébrasement ni remplage. L'austérité vient pour l'essentiel de l'absence de grandes arcades, et des surfaces murales plates, non structurées au sud, ainsi que de la simplicité des voûtes d'arêtes, qui sont dépourvues de nervures et d'ornementation. Il n'est pas rare que les églises abbatiales soient construites sans bas-côtés, qui ne sont pas une nécessité car la communauté des moines prie dans le chœur, la nef étant réservée aux frères lais et au personnel. L'abbaye de Saint-Jean-aux-Bois en fournit toujours un bel exemple. Selon Dominique Vermand, l'église Saint-Vincent est une bonne illustration de l'architecture augustinienne. La position du clocher dans l'angle entre nef et croisillon nord est en revanche une exception. Elle explique que la quatrième travée soit dépourvue de fenêtre au nord. Il n'y en a pas non plus au sud, où l'aile orientale du bâtiment conventuel est mitoyenne de l'église. Cette travée est donc un peu sombre et d'un aspect monotone, et attire le regard vers le sanctuaire[26].
L'architecture de la nef peut s'apprécier le mieux dans la seconde et dans la troisième travée. Les travées sont séparées les unes des autres par des arcs-doubleaux en tiers-point, qui sont moulurés d'un méplat entre deux tores, et retombent sur les tailloirs carrés de chapiteaux de feuillages. Ils sont supportés par des colonnettes appareillés en tambour, qui possèdent des bases flanquées de griffes, et sont engagés dans des dosserets faisant saillie devant les surfaces murales. Les dosserets possèdent également des tailloirs, mais pas de chapiteaux. Ils soutiennent des arcs formerets en tiers-point, qui sont de simples rangs de claveaux non moulurés. Les dosserets et formerets n'existent plus dans la quatrième travée. L'abbé Magne reconnaît bien l'architecture du XIIe siècle, mais s'efforce d'imaginer que l'église date néanmoins du XIe siècle[27] ; ceci prouve tout au moins que les dispositions actuelles ne sont pas des créations néo-gothiques du XIXe siècle. Dans leur forme actuelle, les supports ne conviennent pas à un voûtement d'ogives, mais paraissent compatibles avec un voûtement en berceau, comme aux chœurs d'Asnières-sur-Oise, Béthisy-Saint-Pierre, Luzarches, Néry et Santeuil, ou aux transepts de Rieux et Santeuil, qui sont un peu plus anciens. La région ne connaît pas d'exemples de nefs du XIIe siècle voûtées en berceau ou d'arêtes, à moins d'aller chercher aux confins de la Champagne. Puisque le sanctuaire en tant que partie la plus ancienne de l'église est voûté d'ogives dès le départ, l'on peut supposer que les formerets actuels sont contemporains des voûtes d'arêtes des alentours de 1670, et qu'il y avait des ogives et des formerets toriques, ou plus plats, qui retombaient sur les tailloirs des dosserets. En effet, l'assiette des tailloirs n'est pas suffisante pour recevoir des nervures supplémentaires. L'absence de colonnettes dédiées aux ogives peut étonner, mais les tailloirs des dosserets sont moulurés de la même façon que ceux des doubleaux, ce qui indique bien qu'ils appartiennent au XIIe siècle, et qu'il ne devait pas y avoir de colonnettes supprimées autour de 1670.
Aucun auteur n'a analysé encore le bas-côté. Il ne concernait que les trois premières travées de la nef, au nord, mais une étroite arcade à l'ouest de la base du clocher indique qu'il communiquait avec celle-ci, et il est possible que la base du clocher était initialement une chapelle ouverte à la fois sur la nef et le croisillon nord. Bien que bouchées, les grandes arcades sont encore presque intactes. Elles ne disposent pas de supports, et ont été ouvertes dans un mur préexistant, sans reprises en sous-œuvre. Elles sont moulurées d'une gorge de chaque côté, ce qui évoque vaguement le style gothique flamboyant. À l'intérieur des bas-côtés, la présence des contreforts de la nef représentait un gêne, mais l'on ne put songer à les supprimer, et se contenta de tailler les angles en biseau, et de les moulurer d'un cavet entre deux baguettes. Pour le voûtement, l'on eut recours à des culs-de-lampe pour recevoir les ogives. Sauf un, ils se sont tous conservés à l'extérieur. Ils se composent d'un tailloir carré, d'une corbeille tantôt carrée, tantôt ronde, qui est enveloppée de feuillages sculptés d'une façon assez naturaliste, d'une astragale, et du cul-de-lampe proprement dit, également décoré de feuillages. Les départs des ogives subsistent également. Les ogives étaient au profil d'un tore unique, garni d'un mince filet. Les arrachements des voûtains restent aussi bien visibles, mais les doubleaux n'ont laissé aucune trace.
- 2e doubleau, chapiteau.
- Nef, vue vers l'ouest.
- 3e travée, côté nord.
- Vestiges du bas-côté.
- Arcade sous le clocher.
- Chapiteau du bas-côté.
Transept
La croisée du transept, qui mesure 7,8 m de largeur et 7,5 m de profondeur environ, est délimitée de la nef et du chœur par des doubleaux en tiers-point. Le doubleau à l'entrée du transept affecte le même profil que ceux de la nef, mais ses chapiteaux ont été remplacés par deux consoles chacun, et il n'y a pas (ou plus) de colonnettes. L'absence des dosserets peut s'expliquer par une réfection des murs, puisque l'on note que la largeur est réduite de 60 cm par rapport au début de la nef. Le doubleau à l'entrée du chœur, ou arc triomphal, conserve ses chapiteaux et colonnettes. Il n'y a pas non plus de dosserets, mais le chœur répond de toute façon à des dispositions différentes que les travées occidentales. Dans le profil du doubleau, le méplat central est remplacé par un gros boudin. En ce qui concerne les doubleaux vers les croisillons, ils sont un peu plus bas que les autres. Hormis un second rouleau mouluré d'un tore de chaque côté, ils sont analogues à leurs homologues de la nef, dosserets compris. Les chapiteaux sont tous sculptés de feuilles d'acanthe. La question de la forme du voûtement primitif de la croisée est posée, car l'on ne voit pas où des colonnettes destinées aux ogives auraient pu être logées. L'on ne peut donc pas exclure que le voûtement d'arêtes corresponde au parti initial.
Le croisillon nord est une grande salle de 7,5 m de largeur et de 9,4 m de profondeur, qui est éclairé au nord et à l'est par une grande fenêtre haute en plein cintre, sans ébrasement, ni remplage. Des ressauts du mur dans les angles nord-ouest et nord-ouest reçoivent les arêtes de la voûte. Le ressaut de l'angle nord-est présente une imposte moulurée. Le mur occidental est parfaitement nu. Tout semble indiquer que le croisillon ait toujours été voûté d'arêtes. Le mur septentrional est pourvu en son centre d'un niche à statue, qui est flanquée de deux colonnettes à chapiteaux, et surmontée d'une archivolte torique. Le caractère roman de ces éléments semble évident, mais il pourrait s'agir d'une création du XIXe siècle. La niche abrite aujourd'hui une Vierge à l'Enfant. Deux faibles niches non décorées, mais de dimensions équivalentes, existent en bas du mur, à gauche et à droite. Le mur oriental est le plus intéressant. Sa partie basse présente à droite une arcade en tiers-point bouchée, qui est élevée et étroite à la fois, et à gauche, une arcade brisée plus large, mais aussi plus basse. Elle retombe sur des impostes, et fait saillie devant la surface murale, cette saillie étant rachetée par un glacis au-dessus. L'arcade ouvre sur une petite chapelle ou absidiole carrée. Elle possède une voûte d'arêtes sans supports, et une fenêtre analogue aux autres baies du croisillon. Dominique Vermand rappelle à ce titre le plan dit en échelon, avec un chœur encadré de deux chapelles ou plus, qui est caractéristique des églises de la plupart des ordres monastiques du XIIe siècle. En l'occurrence, les chapelles devaient être au nombre de quatre ; une seule a survécu jusqu'à ce jour. Quant au croisillon sud, il n'a qu'une unique fenêtre, à l'est, et se distingue par un formeret faiblement saillant au sud, et notamment par le péristyle plaqué contre le mur méridional pour orner la porte de la sacristie. Cette composition met en scène deux colonnes dorique supportant un entablement avec une métope ornée de biglyphes, et en arrière-plan, à gauche et à droite, deux pilastres du même ordre, et une section d'entablement de la même facture. Ces éléments reflètent le même style néo-classique que le bâtiment conventuel des années 1660. Une colonnette portant un chapiteau roman, résolument différent de ceux de la niche de la Vierge, est engagée dans le mur du chevet, et devrait subsister d'une absidiole plus ancienne que l'église actuelle[26].
- Croisillon nord, vue vers le nord.
- Vierge à l'Enfant.
- Croisillon nord, vue vers l'est.
- Croisillon nord, absidiole.
- Croisée, vue vers le sud.
Croisillon sud, chapiteau roman engagé dans le mur.
Chœur
Le chœur est qualifié par Dominique Vermand comme la partie la plus authentique de l'église. Aucun changement majeur n'est intervenu depuis la construction, que cet auteur ne situe pas avant le milieu du XIIe siècle, tandis que Bonnet-Laborderie et Durand, moins spécialisés dans l'architecture, n'hésitent pas de voir le début des travaux en 1138. Les murs ont été badigeonnés lors de la restauration au XIXe siècle, comme dans les autres travées. Ils ont été conçus pour être enduits, comme l'indique l'appareil en petits moellons irréguliers noyés dans un mortier, visible depuis l'extérieur. Comme déjà signalé, la première travée est plus haute que la seconde, ce qui pourrait résulter d'un repentir du maître d'œuvre. L'église du prieuré Saint-Christophe-en-Halatte présente la même particularité. En regardant depuis l'ouest, une portion de mur apparaît donc au-dessus du doubleau ouvrant dans le sanctuaire, ainsi qu'un formeret. Ce doubleau, ainsi que le précédent, affectent le profil déjà mentionné : un boudin entre deux tores pour le rouleau inférieur, et un tore de chaque côté pour le rouleau supérieur. Dominique Vermand signale que ce même profil se trouve dans la cathédrale Notre-Dame de Senlis, qui fut construite en même temps. Les formerets sont moulurés d'un tore, et se partagent les tailloirs avec les ogives. La similitude des chapiteaux avec ceux du déambulatoire de la cathédrale donne à penser que le même atelier soit intervenu sur les deux églises (Dominique Vermand rajoute à ce groupe Saint-Christophe-en-Halatte[28]). Ceci n'empêche pas que les ogives affichent un profil que l'on ne retrouve pas sous cette même forme dans la cathédrale, mais qui est fréquemment employé à la première période gothique : une arête entre deux tores. Les chapiteaux des ogives sont plantés de biais, face aux ogives, et reposent sur de fines colonnettes logées dans les angles. Des faisceaux de deux colonnettes sont ainsi formés à l'entrée du chœur, et des faisceaux de trois colonnettes à l'intersection entre les deux travées[25],[26].
Des fenêtres en plein cintre analogues aux croisillons du transept éclairent la première travée. Les murs sont épaissis au niveau du soubassement, et les colonnettes des ogives butent sur ce soubassement. Les fenêtres latérales de la seconde travée sont identiques, mais placées nettement plus bas. Le chevet est ajouré d'un triplet de trois baies en plein cintre, dont celle du centre est légèrement plus grande que les deux autres. Le chevet plat est courant à la première période romane, avant que les absides voûtées en cul-de-four ne s'imposent à la fin du XIe siècle. À la fin de la période romane, le chevet plat fait son retour avec la diffusion du voûtement d'ogives, qui s'accélère au second quart du XIIe siècle. Avant le milieu du siècle, les églises d'Avrechy, Francastel, Saint-Rieul de Louvres, Noël-Saint-Martin (commune de Villeneuve-sur-Verberie) et Rocquemont sont pourvues de chœurs au chevet plat voûtés d'ogives, et éclairés par un triplet[29]. Pour la seconde moitié du siècle, on peut citer Saint-Christophe-en-Halatte, Cauffry, Ermenonville et Ormoy-Villers, par exemple, et pour le XIIIe siècle, Saint-Léonard, Borest et Saint-Jean-aux-Bois. — Rien ne subsiste du mobilier ancien, puisque l'église avait été entièrement vidée à la Révolution. Le mobilier actuel est pour l'essentiel néogothique, et de bon niveau. Il comporte notamment les stalles avec leurs hautes jouées, dans la première travée, et les boiseries de semi-revêtement, ainsi que le retable du maître autel. Son tabernacle est couronné d'un Christ en croix, et flanqué de trois niches de chaque côté, qui abritent un ensemble de six statues de saints, qui sont tous en lien avec l'abbaye. Le premier à gauche est saint Vincent.
- Voûte de la 2e travée.
- Vue vers l'est.
- Vue vers l'est.
- 1re travée, côté nord.
- Vue vers l'ouest.
- Chapiteaux au nord.
Extérieur de l'église

%252C_ancienne_abbaye_Saint-Vincent_depuis_l'est.jpg)
La façade occidentale est en fait tournée vers le nord-ouest, et presque perpétuellement plongée dans l'ombre du bâtiment conventuel, dont la façade principale est disposée orthogonalement par rapport à celle de l'église. L'abbé Magne évoque le portique des années 1660 plaqué devant le portail gothique : « c'est une addition du plus mauvais goût, qui disparaîtra sans doute bientôt ». Il est également persuadé que l'ancien portail subsiste encore derrière. Les espoirs de l'abbé Magne ne se sont que partiellement réalisés quelques années plus tard, en 1869 : le portique de style classique a bien été supprimé, mais l'ancien portail n'a pu être restauré. Il a été remplacé par un pastiche néogothique, dont la saillie est rachetée par cinq dents de scie, et non par un gâble, ce qui aurait été plus conforme à l'esprit de l'architecture du XIIe siècle. Le portail s'ouvre entre six colonnettes, dont les chapiteaux sont restés épannelés, et sous une triple archivolte en arc brisé surhaussé. Au-dessus, le mur se retraite par un larmier. Une grande et belle rosace éclaire la nef, mais son remplage n'avait pas résisté aux injures du temps, et a dû être restitué après 1860. C'est un octolobe entouré de huit pentalobes. L'encadrement est formé par trois tores dégagés, entourés d'un cordon en fleurs de violette excavées. La fenêtre au-dessus éclaire les combles. Son meneau central supportant deux arcatures en plein cintre et un tympan appareillé est aussi une reconstitution, mais les deux colonnettes aux chapiteaux sculptés de feuilles d'eau et l'archivolte en arc brisé, moulurée d'un tore et surmontée d'un bandeau doublement biseauté en forme de sourcil, sont authentiques. Le mur en pierres de moyen appareil a été réalisé avec soin, comme le prouve la minceur des joints. Le pignon a été exhaussé après la construction du bâtiment conventuel. Restent à signaler les deux contreforts fortement saillants, qui se retraitent une fois par un fruit proche du sommet, et s'amortissent par un long glacis[25],[30].
L'exhaussement a aussi concerné les élévations latérales et le chevet, et porte sur quatre assises en pierre de taille. Sinon, les élévations latérales de la nef sont bâties en petits moellons irréguliers noyés dans un mortier, l'emploi de la pierre en moyen appareil étant réservé aux contreforts, aux encadrements des fenêtres et à la corniche. Il en restent huit corbeaux en haut de la première travée, qui est plus profonde que les suivantes, et six en haut des deux travées suivantes. Au nord, l'on peut examiner les vestiges du bas-côté du XIIIe siècle, décrits dans le contexte de l'intérieur (voir ci-dessus). Les trois contreforts sont d'origine, tandis qu'au sud, seulement le premier contrefort a été maintenu. Les autres ont été refaits lors de la construction du bâtiment conventuel. Il ne laisse libre que les parties hautes des trois premières travées, visibles depuis le cloître. Les fenêtres ne sont pas décorées, et l'on note l'absence d'ébrasement extérieur : les verrières sont situées au même plan que les surfaces murales. Le clocher de 41 m est certes l'élément le plus emblématique de l'église, et forme un élément indispensable de la silhouette de la ville, si l'on s'en approche par le sud ou par le sud-est. Chaque angle est flanqué de deux contreforts orthogonaux, qui sont larges et fortement saillantes au niveau de la base, où les trois faces se retraitent par un fruit. Il y a deux autres retraites jusque-là, puis deux autres au niveau des impostes des baies du premier étage et à la limite entre le premier et le second étage. Un peu avant le sommet du second étage, les contreforts s'achèvent par un glacis formant larmier. La base est aveugle. Un contrefort supplémentaire épaule sa face septentrionale, et obture la partie inférieure de la baie de gauche du premier étage. Des arcades bouchées en arc brisé sont visibles au nord et à l'ouest. Ici, l'arcade coupe une ancienne fenêtre en plein cintre. Le premier étage du clocher est percé, sur chaque face, de deux hautes et étroites baies en plein cintre, dont les arcs sont à double rouleau, et retombent sur des impostes. Cet étage revêt un caractère roman, et son austérité est remarquable. Le second étage est clairement gothique, et d'une architecture plus soigné, quoique très simple comparé aux autres clochers de cette envergure dans la région. Les deux hautes et étroites baies en arc brisé par face sont décorées de colonnettes à chapiteaux, dont celle du trumeau est partagée par les deux baies. Les archivoltes toriques sont dédoublées de cordons de têtes de clous, qui retombent sur trois têtes saillantes. Le toit à la hache refaite en 1912 est couvert d'ardoise, comme l'ensemble des toitures de l'église. L'intérieur est vide ; du temps que l'église servait de manufacture, le clocher a servi de cheminée pour la machine à vapeur pendant quelques années[25],[31].
Du transept, seul le croisillon nord reste visible depuis l'extérieur, le croisillon sud étant entièrement englobé dans le bâtiment conventuel. Les murs du croisillon nord n'ont pas été exhaussés. Le pignon est sommé d'une croix en antefixe, et percé d'un oculus sans vitrage, qui est entouré d'un rang de claveaux en pierres de taille. Le mur se retraite par un fruit à la naissance du pignon, et au niveau de la limite supérieure des murs de l'absidiole. Les contreforts sont tous un peu différents, mais largement saillants, en particulier la partie basse du contrefort oriental. À l'est, le mur se termine par une corniche de corbeaux, qui montre comment devait se présenter la corniche de la nef. Les fenêtres ne sont pas décorées. L'absidiole est dénuée de caractère. Dans l'angle entre croisillon nord et chœur, deux arcades en tiers-point depuis longtemps bouchées prouvent l'existence ancienne d'une seconde absidiole, et montrent qu'elle communiquait avec la première travée du chœur. Pour venir au chœur, il est tout aussi sobre que le transept et la nef, et possède également des contreforts qui sont tous différents, mais fortement saillants et scandés par de nombreux ressauts. Le contrefort médian au nord est particulièrement saillant. Au niveau de la seconde travée, la limite des allèges est soulignée par un bandeau biseauté. De nombreuses traces d'ouvertures bouchées proviennent de la transformation de l'église en manufacture. Lors de l'exhaussement des murs du chœur, le pignon oriental a été remplacé par un toit en croupe à cinq pans. La transition à partir du chevet plat s'opère par des plans inclinés aux angles, et par un encorbellement au-dessus de la fenêtre d'axe[25],[32].
- Rosace occidentale.
- Fenêtre occidentale.
- Portail occidental.
- Vue depuis le cloître.
- Ogive du bas-côté.
Vue sur le chevet.
Le cloître
%252C_ancienne_abbaye_St-Vincent%252C_clo%C3%AEtre.jpg)
Le cloître n'occupe pas exactement la position habituelle au sud de l'église, mais est légèrement déplacé vers l'ouest. Ainsi, seule la nef de l'église donne sur le cloître. De plan rectangulaire, il mesure environ quarante-trois sur vingt-huit mètres et est une partie intégrante du bâtiment conventuel pour ses galeries est, sud et ouest. La galerie nord s'intercale entre les ailes est et ouest de ce bâtiment et supporte un étage au toit plat, laissant ouverte la vue sur les fenêtres du mur méridional de la nef de l'église. Les galeries sont voûtées en berceau, larges de trois mètres et relativement sombres. Les ouvertures sur le jardin du cloître sont restreintes par les larges piliers carrés ornés de bossage, au nombre de trois pour les galeries est et ouest, et au nombre de six pour les deux autres galeries, sans compter les piliers aux quatre angles.
Sont ainsi délimitées des travées, au nombre de vingt-deux, plus les quatre aux angles. Sauf ces dernières, chaque travée présente par côté deux pilastres accolés aux piliers, ainsi que deux colonnes aux chapiteaux doriques très simples, et sans cannelure. Ces colonnes sont rapprochées du pilastre, de sorte à laisser une ouverture plus large au centre. Les colonnes et les pilastres supportent des architraves ornées seulement de triglyphes. Face aux ouvertures sur le jardin du cloître, des grandes niches sont pratiquées dans les parois, abritant chacune un grand cube en pierre nue, évoquant vaguement des autels. En somme, l'architecture est d'une certaine lourdeur et manque de grâce, faisant appel à des formes massives tout en renonçant à un décor en finesse. Se dégage ainsi du cloître une impression de majesté et de rigueur[25],[33].
- Vue sur la galerie ouest.
- Galerie nord.
- Galerie ouest.
- Petite porte.
- Porte du croisillon nord.
- Agnus Dei.
Le bâtiment conventuel
%252C_ancienne_abbaye_Saint-Vincent%252C_fa%C3%A7ade_principale_nord.jpg)
%252C_ancienne_abbaye_St-Vincent_avec_les_remparts_sud_au_premier_plan.jpg)
Le bâtiment conventuel néo-classique date des années 1660-1689, et se compose de deux massives ailes à l'est et à l'ouest ; d'une étroite aile septentrionale adossée à l'église ; ainsi que d'une aile méridionale qui ne comporte qu'un unique et haut étage, recouvert d'un toit faiblement incliné. L'ensemble du bâtiment est construit sur un sous-sol cryptique, qui communique avec une poterne passant sous le rempart Bellevue, aujourd'hui bouchée. Les ailes est et ouest ont une allure particulièrement impressionnante avec leurs deux étages, leur toit mansardé, et la façade représentative côté nord. Celle-ci compte six travées, est en effet plus large que le corps de l'aile occidentale qu'elle termine. L'entrée se situe au milieu de cette façade, entre deux statues modernes représentant Anne de Kiev et Dom Le Clerc, un peu en retrait sous un vestibule ouvert. Il s'ouvre par un péristyle à quatre colonnes, dont celles situées aux extrémités sont directement flanquées de colonnes corinthiennes, qui montent jusqu'en haut du premier étage. Elles encadrent une sorte de fronton simulé, qui repose sur un entablement supporté par les colonnes doriques. Le fronton est ajouré d'une fenêtre cantonnée de deux ailerons en bas-relief, et s'inscrit sous un arc en plein cintre, qui laisse libre deux écoinçons, en haut à gauche et à droite. Ils arborent des rinceaux végétaux en bas-relief. Au niveau du second étage, il n'y a plus de colonnettes, mais seulement des pilastres simples. Les deux baies centrales du second étage flanquent une niche abritant une Vierge à l'Enfant. Au niveau du troisième étage, les pilastres portent des plastrons formés par des feuilles d'acanthe. Avec les deux travées voisines, les deux travées centrales supportent un grand fronton en arc de cercle, qui termine la façade. Sa partie centrale a perdu son ornementation, mais à gauche et à droite, des panneaux sont sculptés de motifs végétaux en bas-relief. Les deux travées aux extrémités gauche et droite de la façade constituent des avant-corps légèrement saillants.
Hormis la façade principale nord, les autres façades sans toutes agencées de la même façon, très régulière, scandées verticalement par des bossages aux angles et entre les fenêtres, et horizontalement par des bandeaux et des corniches. L'austérité est seulement rompue par l'alternance entre lucarnes simples et doubles aux frontons triangulaires, une lucarne à deux fenêtres suivant deux lucarnes à une fenêtre. Des pots à feu sont disposés irrégulièrement sur la corniche entre les lucarnes ; l'on peut supposer qu'ils ont en majorité disparu. Par contre, les façades intérieures ne présentent que des lucarnes simples.
Le rez-de-chaussée abrite deux salles digne d'intérêt, ayant conservé partiellement leur décoration d'avant la suppression de l'abbaye. Il s'agit de l'ancien réfectoire, au bout de l'aile occidentale, et de l'ancienne salle capitulaire, dans l'aile orientale. L'ancien réfectoire est richement décoré. Le linteau en bois est sculpté d'instruments de musique. La très belle cheminée est surmontée par un panneau conforté par des volutes avec des motifs floraux, sur lequel est posé un Christ en croix. En face, l'on peut voir le blason de l'abbaye avec les crosses abbatiales, des encensoirs ou des brûle-parfums, et d'autres objets. La salle capitulaire contient également des décors sculptés. Ainsi, dans chaque angle, une niche sous une voûte en forme de coquille Saint-Jacques a été aménagée, dépourvues cependant des statues de saints qu'elles devaient accueillir. Le plafond arqué est décoré de caissons, et les deux tympans sont ornés de bas-reliefs. L'un représente l'Agnus Dei sur le livre aux sept sceaux, et l'autre l'alpha et l'oméga[25],[34].
L'ancienne abbaye comme décor de film
L'ancienne abbaye Saint-Vincent et notamment son cloître ont servi de décor à plusieurs œuvres cinématographiques et téléfilms[35] :
- Lagardère, 1968, série télévisée de L'ORTF avec Jean Piat, d'après Le chevalier de Lagardère et Le Bossu.
- Vidocq (1966), série télévisée de treize épisodes de 25 min par Georges Neveux et Marcel Bluwal
- Les Malheurs d'Alfred (1972) de Pierre Richard
- Les Gens de Mogador (1972), feuilleton télévisé de treize épisodes de 55 min par Robert Mazoyer
- L'Incorrigible (1975) de Philippe de Broca
- Fantômas (1979), feuilleton télévisé de quatre épisodes de 90 min par Claude Chabrol resp. Juan Luis Buñuel
- La Petite Voleuse (1988) de Claude Miller
- La Reine Margot (1994) de Patrice Chéreau
- Jefferson à Paris (1994) par James Ivory
- Le Nouveau Monde (1995) d'Alain Corneau
- Les Misérables (2000), mini-série de 90 min par Josée Dayan
- Sœur Thérèse.com (2002-2010), série télévisée de vingt-et-un épisodes répartis sur dix saisons par Michel Blanc
Protection
L'église abbatiale Saint-Vincent a été classée Monument historique par liste de 1862. La façade du bâtiment conventuel sur le jardin et le cloître ont été inscrits par arrêté du , puis les autres façades, deux salles du rez-de-chaussée ainsi que les toitures ont été inscrits par arrêté du [36].
La totalité du site de l'ancienne abbaye avec les cours et jardins qui l'entourent, en tant que composant du site des « promenades, remparts et leurs abords », a été inscrite par arrêté du au titre de la loi du 2 mai 1930 relative à la protection des monuments naturels et des sites de caractère artistique, historique, scientifique, légendaire ou pittoresque[37].
Voir aussi
Bibliographie
- Marc Durand et Philippe Bonnet-Laborderie, Senlis et son patrimoine : La ville en ses forêts, Beauvais, GEMOB, , 170 p. (ISSN 1255-0078), p. 113-116
- Roger Hallu, « Histoire de l'abbaye St-Vincent de Senlis : 1re et 2de partie », Société d'histoire et d'archéologie de Senlis, Comptes-rendus et mémoires, Senlis, s.n., 1960-1961, p. 18-19 (ISSN 1162-8820, Cet article n'est qu'un résumé d'un mémoire inédit)
- Abbé Fortuné Magne, Abbaye royale de Saint-Vincent à Senlis : Histoire et description, Paris, Zodiaque, , 142 p. (lire en ligne) ; tiré à part des Mémoires de la Société académique d'archéologie, sciences et arts du département de l'Oise, vol. 4, 1859, p. 249-372 (lire en ligne)
- Chanoine Eugène Müller, « Essai d'une monographie des rues, places et monuments de Senlis : 4e partie », Comité archéologique de Senlis, Comptes-rendus et mémoires, Senlis, Imprimerie de Ernest Payen, 2e série, vol. VII, , p. 121-330 (ISSN 1162-8820, lire en ligne) ; p. 241-248.
- Dominique Vermand, Églises de l'Oise : Cantons de Chantilly et Senlis, Beauvais, Conseil général de l'Oise, avec le concours des communes des cantons de Chantilly et Senlis, , 54 p., p. 46
Articles connexes
Liens externes
- Ressource relative à l'architecture :
Notes et références
- ↑ Coordonnées trouvées à l'aide de Google maps.
- ↑ L'Est européen, L'Est Européen, (lire en ligne)
- ↑ Durand et Bonnet-Laborderie 2004, p. 113.
- ↑ Müller 1881, p. 241 et 245.
- ↑ Magne 1860, p. 2-8.
- ↑ Magne 1860, p. 9-15.
- ↑ Magne 1860, p. 15-18.
- ↑ Magne 1860, p. 19-24.
- ↑ Magne 1860, p. 25-31.
- ↑ Magne 1860, p. 31-36.
- ↑ « Le Mas-Garnier », sur Abbayes et prieurés bénédictins mauristes (consulté le ).
- ↑ Henri Bourde de La Rogerie, « Le prieuré de Saint-Tutuarn ou de l'Île Tristan », Bulletin de la Société archéologique du Finistère, Quimper, vol. 32, (ISSN 0249-6763, lire en ligne).
- ↑ Magne 1860, p. 36-47.
- ↑ Magne 1860, p. 41-61.
- ↑ Magne 1860, p. 62-69.
- ↑ Magne 1860, p. 69-73.
- ↑ Müller 1881, p. 248.
- ↑ Magne 1860, p. 73-74.
- ↑ Félix Louat, Histoire de la ville de Senlis, op. cit., p. 176-177.
- ↑ « Saint-Vincent, monument historique », sur Lycée Saint-Vincent (consulté le ).
- ↑ Voir le calendrier des messes de la paroisse Saint-Rieul de Senlis : « Calendrier », sur Paroisse Saint-Rieul de Senlis (consulté le ).
- ↑ Magne 1860, p. 123-124.
- ↑ Magne 1860, p. 124
- ↑ Magne 1860, p. 80.
- 1 2 3 4 5 6 7 Durand et Bonnet-Laborderie 2004, p. 113-116.
- 1 2 3 4 Vermand 2002, p. 46.
- 1 2 Magne 1860, p. 79.
- ↑ Dominique Vermand, Églises de l'Oise : Canton de Pont-Sainte-Maxence, Valois et vallée de l'Oise, Beauvais, Conseil général de l'Oise, avec le concours de l’O.T.S.I. de Verneuil-en-Halatte, ca. 1998, 32 p., p. 7-8.
- ↑ Dominique Vermand, « La voûte d’ogives dans l’Oise : les premières expériences (1100-1150) », Groupe d’étude des monuments et œuvres d’art de l’Oise et du Beauvaisis - L’Art roman dans l’Oise et ses environs (actes du colloque organisé à Beauvais les 7 & 8 octobre 1995), Beauvais, , p. 123-168 (ISSN 0224-0475) ; p. 155-162.
- ↑ Magne 1860, p. 75-76.
- ↑ Magne 1860, p. 76-78.
- ↑ Magne 1860, p. 77-78. Magne ignore le rehaussement de la nef et du transept, et situe la construction de l'église en 1065, tout en reconnaissant les formes du XIIe siècle.
- ↑ Magne 1860, p. 90-91.
- ↑ Magne 1860, p. 91-95.
- ↑ Cf. Ville de Senlis, programme des journées du Patrimoine 2010.
- ↑ Notice no PA00114880, sur la plateforme ouverte du patrimoine, base Mérimée, ministère français de la Culture.
- ↑ Cf. « Senlis - promenades, remparts et leurs abords » sur le site « DREAL Picardie » (consulté le ).
- Portail du monachisme
- Portail de l’Oise
- Portail du catholicisme
- Portail de l’architecture chrétienne
- Portail des monuments historiques français
%252C_ancienne_abbaye_Saint-Vincent_depuis_le_nord-est.jpg)


