Abbaye de Beaulieu-en-Rouergue
| Nom local | Belloc |
|---|---|
| Diocèse | Rodez |
| Patronage | Sainte Marie |
| Numéro d'ordre (selon Janauschek) | CXCV (195)[1] |
| Fondation | |
| Dissolution | 1606 |
| Abbaye-mère | Clairvaux |
| Lignée de | Clairvaux |
| Abbayes-filles | Aucune |
| Congrégation | Ordre cistercien |
| Protection |
|
| Coordonnées | 44° 12′ 36″ N, 1° 51′ 14″ E[3] |
|---|---|
| Pays |
|
| Province | Rouergue |
| Région | Occitanie |
| Département | Tarn-et-Garonne |
| Commune | Ginals |
| Site | http://www.beaulieu-en-rouergue.fr/ |
|
|
|
L'abbaye Notre-Dame de Beaulieu-en-Rouergue (ou de Belloc) est une ancienne abbaye cistercienne fondée en 1144 et qui est aujourd'hui un centre d'art contemporain. Elle est située dans la commune de Ginals dans le nord-est du département de Tarn-et-Garonne à la limite des départements du Tarn et de l'Aveyron. L’abbaye de Beaulieu-en-Rouergue, comme une centaine d’autres monuments, propriété de l’État, est gérée, animée et ouverte à la visite par le Centre des monuments nationaux.
Histoire
XIIe siècle : fondation de l'abbaye « 44e fille de Clairvaux »
Située dans la vallée de la Seye, dans l'ancienne province du Rouergue, l'abbaye fut fondée à la demande de l'évêque de Rodez, Adhémar III, et d'Archambaud de Cuzoul, en 1141 ou 1144, le , par des moines cisterciens venant de Clairvaux après la visite des lieux par saint Bernard. Il s'agit de la 44e abbaye-fille de Clairvaux.
Archambaud était donzel de Cuzoul, fils puîné d'Yzarn, vicomte de Saint-Antonin (lui-même fils puîné de Raymond III, comte de Rouergue), et d'Égine de Cahors. Il eut en apanage les seigneuries de Cuzoul, de Saint-Igne et de Prévenquières. Il possédait une maison à Saint-Antonin où il reçut saint Bernard quand il vint visiter les lieux d'implantation de l'abbaye de Belloc. Il apparaît dans le cartulaire de cette abbaye. Il a accompagné Alphonse Jourdain, comte de Toulouse, à la croisade en 1146. Il a épousé Nicolle, fille de Guillaume Ier, sire de La Tour-d'Auvergne. Il est le fondateur de la première branche des seigneurs de La Valette. La famille de La Valette a donné plusieurs abbés à Beaulieu.
Adémar de Vassal fait une donation en 1178 à l'abbaye de Belloc[4].
Hugues, évêque de Rodez entre 1161 et 1211. Raymond Hugues fait une donation en 1178.
XIIIe siècle : âge d'or de l'abbaye
Au XIIIe siècle les modestes bâtiments d'origine sont reconstruits et la Seye est canalisée pour alimenter les viviers. Les habitations, la salle capitulaire et le réfectoire sont reconstruits avant 1250. L'église est reconstruire après 1272 date d'un don de l'évêque de Rodez Vivian de Boyer, qualifié de second fondateur de l'abbaye. Il a donné à l'abbaye les églises Saint-Jean-Baptiste de Ginals, Saint-Pierre de Lézac, Saint-Pierre de Cornusson et Saint-Pierre de Baye. Cette donation est confirmée en 1282 par Raimond de Calmont d'Olt, son successeur.
L'église a été commencée par le chœur, à l'est, après la donation de 1272, pour se terminer par la façade au début du XIVe siècle. Au XIVe siècle est également construit le cloître.
Du XVIe au XVIIIe siècle : déclin et abandon de l'abbaye
L'abbaye est fortement affectée par les guerres de religion. Elle est mise à sac par les protestants en 1562 et le cloître ainsi que la porterie sont détruits. Aux XVIIe et XVIIe siècle des travaux de reconstruction et modernisation sont entrepris sous la direction des abbés commanditaires et deux des galeries reçoivent des voûtes d'arêtes.
Lors de la Révolution française, les ordres monastiques sont dissous et l'abbaye est vendue comme bien national en 1791 et transformée en ferme. Une partie des bâtiments est démantelée.
La toiture est arrachée en 1840. Pour tenter de sauver l'église, la commune de Ginals vota sa conservation et son adoption comme église paroissiale. Malgré l'appui de l'administration diocésaine et départementale, elle fut sur le point d'être démontée pour être reconstruite à Saint-Antonin. Mais Prosper Mérimée dénonce l'absurdité du projet et il est finalement abandonné.
L'abbaye est protégée en 1875. Les travaux de restauration sont alors entrepris. L'abbaye a été classée Monument historique en 1942.
XXe siècle : rachat par le couple Brache-Bonnefoi
En 1953, Pierre Brache et Geneviève Bonnefoi découvrent l'abbaye dans un état de délabrement très avancé et décident de la sauver. L'abbaye en ruine est rachetée en 1960 par le couple qui y fait d'importants travaux de restauration, aidés par la Caisse des monuments historique et des sites (actuel Centre des monuments nationaux). Le nom occitan de l'abbaye « Belloc » est alors francisé en « Beaulieu ».
En 1973, ils en font don ainsi qu'une importante collection d'art moderne aux Monuments nationaux. L'abbaye est alors transformée en centre d'art contemporain. Au décès de Pierre Brache (en 1999) et de Geneviève Bonnefoi (en 2018) tout le reste de leur collection est donné aux Monuments nationaux[5].
Aujourd'hui, avec plus de 1300 œuvres, l'abbaye constitue le plus important musée d'art des Trente Glorieuses (1945-1975) de France[5].
Description de l'abbaye

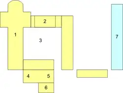
Plan de l'abbaye
- 1- Église
- 2- Salle capitulaire au rez-de-chaussée, dortoir des moines au premier étage
- 3- Cloître (disparu)
- 4- Cellier au rez-de-chaussée
- 5- Au-dessus du cellier, le dortoir des convers transformé au XVIIe siècle en chambres d'hôtes
- 6- Au sud du cloître, le bâtiment reconstruit au XVIIe siècle, ainsi que les deux tours, comprenant le réfectoire au rez-de-chaussée, et des salons à l'étage.
- 7- Vivier
L'église
L'église est construite en pierre de taille de moyen appareil. Elle adopte un plan en croix latine. La nef est à vaisseau unique de cinq travées sur croisées d'ogives se terminant sur un large transept. La nef se prolonge par un chœur d'une travée et une abside à sept pans éclairée par d'étroites fenêtres de 8 m de haut.
Chaque croisillon du transept a une chapelle. Sur la croisée du transept de plan barlong est posée une lanterne octogonale portée par quatre trompes d'angle raidie par huit nervures rayonnantes autour d'un oculus central. Les faces placées au-dessus des trompes sont percées par des roses à réseaux.
Les ogives et les doubleaux ont le même profil. L'abside est couverte par une voûte de huit ogives et une courte lierne rayonnantes à partir d'une clef décorée d'un agneau pascal.
Le portail de la façade est surmonté de trois voussures toriques à méplat portées par six colonnettes. À droite, dans la première travée, une porte permettait aux convers d'accéder à l'église pour y suivre les offices. Dans le croisillon nord du transept une porte permettait de sortir vers le cimetière des moines. Au fond du croisillon sud, une porte permettait d'aller à la sacristie. L'escalier reliant l'église au dortoir des moines est appuyé sur le mur du fond. La porte donnant sur le cloître est percée dans le mur ouest du croisillon sud.
La qualité de l'exécution de l'église ne permet pas de faire remonter son exécution avant le dernier quart du XIIIe siècle. La façade a été terminée au début du XIVe siècle.
- Longueur du vaisseau central : 57 m
- Largeur de la nef : 10 m
- Longueur du transept : 21,60 m
- Largeur du transept : 8,20 m
- Hauteur de la voûte à la croisée : 20 m

Façade de l'église. 
Chevet. 
Croisillon nord du transept avec la porte qui donnait accès au cimetière des moines. 
L'église et le bâtiment des moines. Rosace de l'église, façade Ouest. 
La nef et le chœur. 
Voûte du chœur. 
La nef et la coupole vues du chœur. 
Croisée du transept, croisillon sud et coupole.
L'autel en bois datant du XVIIe siècle était encore en place en 1888. Il a été ensuite transporté dans l'église de Verfeil.
La salle capitulaire
La salle capitulaire se trouve à l'est, dans le bâtiment des moines. Elle est couverte de six voûtes d'ogives reposant sur deux colonnes et des consoles placées dans les murs. Cette salle a été construite avant l'église, peut-être dans les premières années du XIIIe siècle.
Entre la salle capitulaire et l'église se trouve la sacristie couverte d'une voûte en berceau. Cette salle donne à l'est sur pièce carrée couverte d'un berceau qui devait être la chapelle de l'abbé.
De l'autre côté se trouve un passage et le parloir. Au-dessus se trouvait le dortoir des moines. Cet étage a été refait au XVIIe siècle sauf, peut-être deux pièces situées au-dessus de la chapelle de l'abbé qui sont voûtées.
Le cellier
- Longueur du cellier : 21 m
- Largeur du cellier : 8,30 m
Elle est couverte par dix voûtes sur croisée d'ogives. Une porte étroite ouvrait à l'est sur la ruelle des convers. Au sud, une porte plus grande donnait vers l'entrée de l'abbaye, où devait aussi se trouver le réfectoire des convers qui a disparu.
Au-dessus du cellier il devait y avoir le dortoir des convers. Il a dû être transformé au XVIIe siècle pour réaliser des chambres d'hôtes. Il en subsiste les fenêtres côté ouest, aujourd'hui bouchées, et la porte côté est permettant aux convers d'accéder à la ruelle.
Le cloître
Le cloître a disparu peu avant 1865. Au XVIIe siècle il couvrait une surface de 36,50 m d'est en ouest, et de 30,60 m du nord au sud entre les bâtiments.
Le cloître devait être carré à l'origine. Il existait en effet le long du cellier la ruelle des convers qui leur permettait d'accéder de leur dortoir à l'église par une porte située dans la première travée.
Le bâtiment sud
Le bâtiment existant a été construit au XVIIe siècle. Il contient le réfectoire et les salons.
Au sud du bâtiment se trouvaient les jardins, l'étang, le colombier et le moulin.

La salle capitulaire. 
Clé de voûte de la salle capitulaire. 
Cellier. 
Vivier et bâtiment du XVIIe siècle.
Liste des abbés
Notes et références
- ↑ (la) Leopold Janauschek, Originum Cisterciensium : in quo, praemissis congregationum domiciliis adjectisque tabulis chronologico-genealogicis, veterum abbatiarum a monachis habitatarum fundationes ad fidem antiquissimorum fontium primus descripsit, t. I, Vienne, , 491 p. (lire en ligne), p. 79.
- ↑ « Classement de l'ancienne abbaye de Beaulieu », notice no PA00095750, sur la plateforme ouverte du patrimoine, base Mérimée, ministère français de la Culture.
- ↑ (it) Luigi Zanoni, « Belloc », sur cistercensi.info, Certosa di Firenze (consulté le ).
- ↑ Jean Baptiste Pierre Jullien de Courcelles, Histoire généalogique et héraldique des pairs de France, des grands dignitaires de la couronne, des principales familles nobles du royaume et des maisons princières de l'Europe, tome 5, Paris, 1825, [lire en ligne]
- 1 2 Centre des monuments nationaux, Abbaye de Beaulieu en Rouergue,
Voir aussi
Bibliographie
- Baron de Gaujal, Études historiques sur le Rouergue, Paris, 1858, [lire en ligne]
- Marcel Aubert, Mme de Maillé, Abbaye de Beaulieu, p. 135-148, Congrès archéologique de France. 100e session ; Figeac, Cahors et Rodez. 1937, dans Société française d'archéologie, Paris, 1938 (lire en ligne)
- Mathieu Méras, Dictionnaire des églises de France, tome IIIB, Guyenne, p. 76-77, Éditions Robert Laffont, Paris, 1967
- Claude Andrault-Schmitt, Beaulieu-en-Rouergue (commune de Ginals), abbaye cisrercienne, p. 51-63, dans Congrès archéologique de France. 170e session. Monuments de Tarn-et-Garonne. 2012, Société française d'archéologie, Paris, 2014 (ISBN 978-2-901837-53-4)
- Jean-Pierre Jouve, R. Granier de Laguépie, Geneviève Bonnefoi, « L'abbaye de Beaulieu en Rourgue », tiré à part de la revue Les Monuments historiques de France, 1975, no 1
Articles connexes
Liens externes
- Ressource relative à l'architecture :
- Site officiel
- Association culturelle de l'abbaye de Beaulieu-en-Rouergue
- Architecture religieuse en Occident : abbaye de Beaulieu-en-Rouergue
- Tarn-et-Garonne : abbaye de Beaulieu-en-Rouergue
- Portail de l'Ordre cistercien
- Portail des musées
- Portail de Tarn-et-Garonne
- Portail de l’art contemporain
- Portail des monuments historiques français


