Abbaye de Jumièges
| Abbaye de Jumièges | ||||
| ||||
| Existence et aspect du monastère | ||||
|---|---|---|---|---|
| Existence | Abbaye vendue à la Révolution française, aujourd'hui propriété du département de Seine-Maritime. | |||
| État de conservation | Abbaye en ruines | |||
| Autre(s) affectation(s) | Carrière de pierres, habitation privée, propriété de l'État puis du département. | |||
| Site web | https://www.abbayedejumieges.fr/ | |||
| Identité ecclésiale | ||||
| Culte | Culte catholique | |||
| Province ecclésiastique | Province ecclésiastique de Rouen | |||
| Diocèse | Archidiocèse de Rouen | |||
| Type | Abbaye | |||
| Armoiries ou sceau du monastère | ||||
| Blasonnement | d'azur, à la croix d'or, cantonnée de quatre clefs d'argent | |||
| Présentation monastique | ||||
| Fondateur | Philibert de Jumièges | |||
| Origine de la communauté | Donation de Clovis II et de sa femme sainte Bathilde à l'abbé saint Philibert | |||
| Ordre | Ordre de saint Benoît dès la fin du VIIe siècle après une période d'application de la règle de saint Colomban | |||
| Historique | ||||
| Date(s) de la fondation | 654 | |||
| Fermeture | 1795 | |||
| Architecture | ||||
| Dates de la construction | Toutes les constructions d'origine ont disparu au cours des destructions successives occasionnées par les raids vikings mais l'église Notre-Dame et l'oratoire saint Pierre bien que ruinés sont toujours en place. | |||
| Éléments reconstruits | (Voir article) | |||
| Styles rencontrés | Architecture romane pour l'ensemble du monastère d'origine. L'abbatiale Notre-Dame était un édifice mixte de style roman et de style gothique. | |||
| Protection | ||||
| Localisation | ||||
| Pays | ||||
| Région | Normandie | |||
| Département | Seine-Maritime | |||
| Ville | Jumièges | |||
| Coordonnées | 49° 25′ 55″ nord, 0° 49′ 09″ est | |||
| Géolocalisation sur la carte : Seine-Maritime
Géolocalisation sur la carte : France
Géolocalisation sur la carte : Europe
| ||||
L'abbaye Notre-Dame de Jumièges est une ancienne abbaye bénédictine fondée par saint Philibert, fils d'un comte franc de Vasconie vers 654[1] sur un domaine du fisc royal à Jumièges aujourd'hui dans le département de la Seine-Maritime. Elle applique la règle de saint Benoît dès la fin du VIIe siècle, après avoir suivi probablement la règle de saint Colomban.
L'abbaye, qui marque l'apogée du monachisme normand dans la vallée de la Seine, est la plus vaste et la plus précoce des grandes abbatiales normandes. Seule restée fidèle à la multiplicité des sanctuaires du très ancien monachisme carolingien, elle est un des lieux-clefs de l'art roman normand, où l'articulation entre l'architecture carolingienne et l'architecture romane est la plus visible[2].
Historique
Les origines

L'abbaye de Jumièges naît vers 654 dans une boucle de la Seine par une donation de Clovis II et de sa femme sainte Bathilde à saint Philibert. Cette fondation se fait à une époque où l'essor monastique en Gaule, qui a été suscité par saint Colomban cinquante ans plus tôt et fortifiée par ses disciples, atteint son degré le plus haut. La fondation s'intercale entre celle de l'abbaye de Fontenelle en 649-650 et celles de l'abbaye de la Trinité de Fécamp et de l'abbaye de Montivilliers vers 660 et 684. Cette organisation monastique prépare l'unité carolingienne, qui sera une unité chrétienne[3].
Les donateurs confient le soin de son développement à saint Philibert, abbé de Rebais et ami de l'évêque saint Ouen qui vient lui aussi de Rebais[4]. Il construit trois églises dédiées à la Vierge Marie, à saint Pierre et à saint Germain-Saint Denis, ainsi que d'importants bâtiments monastiques.
Avec ses successeurs, Jumièges devient l'un des centres littéraires les plus importants de la Neustrie[5]. Elle attire des abbés de premier plan comme le neveu de Charles Martel, Hugues, abbé de Fontenelle et archevêque de Rouen. Bien contrôlée par les Carolingiens, elle devient un lieu d'exil pour les ennemis de la dynastie avec, sous Charlemagne, le duc Tassilon de Bavière et son fils dont les tombes donnent naissance à la légende des énervés de Jumièges[6].
Saint Philibert, formé par un disciple de saint Colomban, assidu à la prière, au jeûne, à l'abstinence, à la mortification corporelle, à la pratique de l'aumône et de l'hospitalité, nuance cette règle par celle de saint Benoît, par les textes de saint Basile et de saint Macaire, pour maintenir sa communauté dans l'ordre et la paix. Les soixante-dix moines qu'il fait venir partagent leur vie entre la prière, l'apostolat et le travail. Des abbés et des moines le rejoignent, l'apostolat développe des vocations. Il rachète en Angleterre des esclaves, les catéchise, les baptise et certains deviennent moines ce qui explique leur nombre de 800 vers l'an 670.
Après la mort de saint Philibert et malgré la peste qui décime la moitié de la communauté vers 685, à l'époque la plus glorieuse et la plus prospère de Jumièges, vers 700, il y aurait eu 900 moines et 1 500 serviteurs qui par leur travail défrichent les terres, les transforment en jardins, vergers, culture, prés et vignobles, pêchent des cétacés pour l'huile, la dîme servant à l'entretien des pauvres et à l'hôtellerie très fréquentée par les pèlerins anglo-saxons sur le chemin de Rome et les exilés[7].
Le , les Vikings incendient le monastère carolingien[8] avant de revenir et de le piller. Devant la menace scandinave, les moines s'exilent, emportant les reliques et les manuscrits les plus précieux reprenant l'exclamation déjà poussée à Lindisfarne « A furore Normannorum libera nos Domine ! » (« De la fureur des Normands, libère-nous Seigneur ! ») et abandonnent l'abbaye. La plupart se réfugient au prieuré d'Haspres, près de Cambrai et y maintiennent une ombre de continuité administrative. L'un de ces moines emporte un antiphonaire et rejoint l'abbaye de Saint-Gall dans laquelle il rencontre le jeune Notker le Bègue. Inspiré de ce manuscrit, ce dernier commence à composer la séquence, nouveau chant syllabique[9],[10].
La renaissance
Sous Guillaume Ier de Normandie dit Longue-Épée, vers 930[11], deux moines d'Haspres se font restituer le site mais échouent dans leur essai de restauration. Peu après, le duc établit une nouvelle communauté constituée de douze moines bénédictins venant de l'abbaye Saint-Cyprien de Poitiers[12]. L'assassinat du duc en 942 met fin à cette tentative mais des clercs restent sur place et veillent sur les ruines. Peu de temps après, avant la fin du Xe siècle, la vie monastique reprend, longtemps de manière assez timide. Par prudence, le prieuré d'Haspres est conservé jusqu'en 1024[13].
L'abbé Robert de Jumièges dit « Champart » fait reconstruire le monastère (1040–1052). La nef de l'église abbatiale bien que respectant le plan bénédictin et la triple élévation normande introduite à Bernay, opte pour un plan à déambulatoire sans chapelles rayonnantes comme à l'abbaye du Mont-Saint-Michel[14].
Le , l'archevêque de Rouen, le bienheureux Maurille, consacre solennellement la grande église abbatiale de Notre-Dame de Jumièges, en présence du duc de Normandie Guillaume le Conquérant qui donne des biens anglais à l'abbaye dont les moines participeront activement à la mainmise des Normands sur l'Église d'Angleterre.




Le , le comte de Meulan, Robert II qui se trouve alors à Rouen, fait don à l'abbaye de la chapelle Saint-Philibert du Torp (La Mailleraye-sur-Seine) avec une « masure » de six acres dans la forêt de Brotonne, soixante acres de labours et divers droits seigneuriaux à charge d'y entretenir deux religieux. Il cède également le droit de cueillir dans la forêt de Brotonne des pommes pour la boisson des moines et de leurs serviteurs, le droit d'écuelle, une portion de vin quand il se trouverait dans ses manoirs de Torp, de Vatteville ou de Hauville[15]. En vertu de la charte normande, Philippe Auguste, après avoir conquis la Normandie confirme la donation du Torp à l'abbaye, faite par Robert de Meulan, ainsi que les privilèges accordés à celle-ci en forêt : droit de passage et deux charretées de bois par jour[16].
Quelque temps après l'intégration de la Normandie au domaine royal, le chœur roman de la grande église abbatiale est reconstruit en style gothique (vers 1267–1278). Il ne s'agissait pas, comme on a longtemps cru, de créer un déambulatoire, puisque des fouilles effectuées par Georges Lanfry ont montré que le chœur roman en était déjà doté. L'objectif était plus sûrement d'ajouter des chapelles rayonnantes et d'amener, ainsi, la lumière dans un édifice sombre, jugé vétuste, et qui n'était plus au goût du jour. La communauté pouvait se permettre de telles dépenses car, à ce moment, elle vivait une période de grande prospérité. C'est aussi au XIIIe siècle que la communauté connut un dynamisme sans précédent, qu'on peut déceler par exemple dans l'activité du Scriptorium. En effet, près de la moitié des 400 manuscrits dont dispose la bibliothèque date de cette période.
En 1431, l'abbé de Jumièges, Nicolas Le Roux, homme qui n'était pas sans qualités, dont on avait loué la piété, la régularité, le dévouement aux intérêts de son monastère, prit une part active au procès de Jeanne d'Arc. Son avis sur la culpabilité de la pucelle trahit les anxiétés de sa conscience. En effet, il jugeait la cause très ardue : in tam arduo negotio, et ne se détermina en sa défaveur que par crainte du pouvoir anglais et, il faut bien le dire aussi, de l'autorité des docteurs de Paris (occupé par les Anglais), dont il devait suivre les avis.
Lors du recouvrement de la Normandie à la fin de la guerre de Cent Ans en Normandie, le roi de France Charles VII prend ses quartiers d'hiver dans l'abbaye. Sa maîtresse Agnès Sorel vient subitement l'y rejoindre alors qu'elle est enceinte de huit mois. Elle accouche au début du mois de , puis meurt neuf jours plus tard. L'enfant mourra également en bas âge[17].
Le régime de la commende
La fin du XVe siècle est marquée par la nomination des premiers abbés commendataires, la prospérité matérielle et le relâchement de la discipline. La vie des moines devient plus séculière que religieuse, les officiers et particulièrement le cellérier ont tendance à constituer des bénéfices et il y a moins de moines, une trentaine vers 1440. La commende est la revanche de l'épiscopat contre le système des exemptions. En réalité, on perçoit l'esprit de lucre chez ses prélats fastueux et courtisans, bien des abbayes possédant les revenus d'un évêché. Elle modifie profondément l'organisation bénédictine en privant la communauté de son chef traditionnel. Le pouvoir effectif et l'influence à la fois spirituelle et temporelle sur les destins du monastère passe aux mains des prieurs. En 1515, l'abbé Philippe de Luxembourg s'attèle à réformer Jumièges et introduit dans le monastère la réforme de Chézal-Benoit, installe les moines réformés dans des chambres qu'il fait bâtir au-dessus du réfectoire et un nouveau dortoir au sud de l'église Saint-Pierre. Le relâchement et les abus qui s'étaient introduits sous le régime de la commende ont pratiquement disparu, mais le lien est rompu avec la congrégation de Chézal-Benoît par l'invasion des calvinistes[18],[19],[20].
Pendant les guerres de Religion, l'abbaye fut à nouveau mise à sac. Les Huguenots, qui ont ravagé Rouen, Dieppe, Le Havre et Caudebec, arrivèrent aux portes de Jumièges. Les religieux, ayant appris le sac de Caudebec, quittèrent tous l'abbaye. Le , les Protestants partirent de Caudebec pour Jumièges où ils trouvèrent le monastère désert. Ils y pénétrèrent et mirent tout au pillage. Les autels furent renversés, les vases sacrés volés, les images brisées, les saintes reliques jetées au feu. Châsses, ornements, linge, argenterie, meubles, tout fut détruit ou emporté. Le plomb dont l'église et le cloître étaient couverts, l'étain, le cuivre, les provisions en nature, vin, blé, bestiaux, tout, jusqu'aux livres de la riche et magnifique bibliothèque et aux archives du chartrier devinrent la proie de ces pillards.
Le , Catherine de Médicis et le jeune roi Charles IX se rendirent à Jumièges et constatent de leurs yeux l'étendue du désastre. La couronne permit aux religieux de vendre un peu de « la terre gémétique »[21] pour pourvoir à leurs premiers besoins. C'est ainsi qu'ils aliénèrent la seigneurie de Norville et la cédèrent à Charles II de Cossé, comte de Brissac, seigneur d'Ételan, pour 10 220 livres. Dix-sept religieux seulement retournèrent alors à Jumièges et remirent un peu d'ordre dans l'abbaye dévastée.
Au début du XVIIe siècle, l'abbé Marian de Martinbos introduit à Jumièges la réforme de Saint-Vannes, premier essai de la congrégation de Saint-Maur et source de disputes entre réformistes et partisans du statu quo. Du point de vue monastique et spirituel, rien ne ressemble tant à un mauriste qu'un autre mauriste, ce qui s'explique par la centralisation de la congrégation, l'unité de la formation et le brassage qui s'opère par le passage des moines d'un monastère à l'autre. Jumièges ne s'est pas laissé dépasser par la recherche de la perfection et la tendance vers la sainteté par beaucoup de monastères mauristes. On y recherche la présence de Dieu et l'esprit d'oraison, la régularité et l'esprit de mortification, tout cet ensemble se traduisant par l'esprit de silence[22]. En 1663, la bibliothèque, qui était depuis le XIVe siècle au-dessus du porche de l'église Saint-Pierre, est reconstruite au-dessus des celliers et, en 1671, le nouveau logis abbatial est terminé puis le grand dortoir en 1732, mais l'abbaye est bien loin de son ancienne splendeur et les vocations bien rares.
En 1789, les religieux ne sont plus que 18 et doivent se disperser à la fin de 1790[23]. Dans les procès-verbaux, leurs protestations sont peu fermes, entre ceux qui déclarent sans vergogne accepter de bon cœur l'offre de l'assemblée de briser leurs chaines et celui qui dit : Il est et il sera à jamais inconcevable à la raison humaine qu'une assemblée de mortels puisse délier ses semblables des serments solennels et libres qu'ils ont faits à l'immortel ; on n'a presque jamais des réactions indignées qu'aurait dû provoquer un vrai esprit de foi[24].
Ruines et sauvegarde
À la Révolution, comme beaucoup de bâtiments religieux, l'abbaye est vendue au titre des biens nationaux. En 1795, le premier acquéreur, Pierre Lescuyer, receveur des biens nationaux, entreprend immédiatement la démolition du cloître du XVIe et du dortoir du XVIIIe siècle[25]. En 1802, le nouveau propriétaire, Jean-Baptiste Lefort, un marchand de bois de Canteleu, fait exploser le chœur. L'église connaît un lent démembrement et sert de carrière de pierres, comme les autres parties de l'abbaye jusqu'en 1824. Les fresques ont été effacées par l'action des éléments. Des tombeaux et pierres tombales des abbés, il ne reste plus que les dessins exécutés pour François Roger de Gaignières[26].
Nicolas Casimir Caumont, né à Rouen le , qui épousa le Mlle Sophie Adèle Lefort, fille de Jean-Baptiste, habita l’abbaye de Jumièges dont il fut le propriétaire à la mort de son épouse et le sauveur d'une destruction certaine. Maire de Jumièges le , ancien président de la chambre de commerce de Rouen de 1834 à 1837 et du tribunal de commerce, président du conseil d'administration de la banque de Rouen, vice-consul du Brésil et du Portugal, ancien conseiller municipal de Rouen, il mit toute son énergie pour sauver le monument et le mettre en valeur. Nicolas Casimir décède à Jumièges le , il y est inhumé le lendemain. La famille Caumont met alors en vente l’édifice.
La famille Lepel-Cointet rachète l'abbaye en 1852 et commence à sauver les vestiges. Avec la mode romantique, l'église connaît une renommée importante grâce à Victor Hugo qui dit d'elle « encore plus beau que Tournus » et l'historien Robert de Lasteyrie la qualifie d'« une des plus admirables ruines qui soient en France ». Roger Martin du Gard lui consacre une thèse.
L'abbaye de Jumièges redevient propriété de l'État en 1947, puis propriété du département de Seine-Maritime en 2007 dans le cadre de la loi de décentralisation du , qui permet de transférer certains monuments historiques aux collectivités territoriales. Elle est située dans le canton de Duclair, en Seine-Maritime.
Des fouilles archéologiques sont réalisées en 2023 mettant au jour une sépulture qui pourrait être celle de Guillaume VII dit Guillaume Le Jeune, abbé de Jumièges au XIVe siècle[27].
La vie intellectuelle
L'amour des lettres est étroitement subordonné au désir de Dieu. Le moine conçoit l'éducation intellectuelle, puis, toute la vie de l'esprit par rapport à la rencontre avec Dieu dans la liturgie, la prière, la lecture méditée et priée, la mémorisation, la récitation, le commentaire infiniment repris et ruminé intérieurement[28].
Dès le VIIe siècle, sous saint Philibert, l'école monastique liée à la bibliothèque est avec celle de l'abbaye de Fontenelle l'une des plus réputées de Neustrie, son influence va jusqu'en Angleterre et dépeuple parfois d'autres monastères. Les cénobites se livrent à l'étude des langues de peuples lointains où ils vont racheter des captifs et leurs lettres sont indispensables pour les prédications, la lecture y est d'un grand honneur. Les invasions normandes de 841-851 ne laissent subsister aucun manuscrit.
Vers 1004, après la réforme de Guillaume de Volpiano qui rétablit la discipline et double l'école monastique d'une autre école ouverte aux séculiers pauvres ou riches, grâce à la réputation de l'abbé Thierri de Montgommeri qui attire un grand nombre d'élèves et les dons de Robert Champart après son élévation au siège de Londres, l'abbaye avec sa bibliothèque et l'école monastique retrouvent un nouvel élan. En 1171, Alexandre, un docteur de Paris apporte avec lui vingt-deux volumes et enseigne la dialectique et la théologie. Il deviendra abbé de 1198 à 1213 après avoir dirigé le scriptorium[29],[30].
Au XIe siècle, la formation intellectuelle des moines est essentiellement utilitaire, on enseigne la dialectique considérée comme nécessaire au développement rationnel de la pensée, mais la grammaire dès que l'on dépasse la correction du langage et à plus forte raison la rhétorique apparaissent comme superflues. Les moines s'inspirent des Pères comme saint Ambroise ou saint Augustin. À partir du XIIe siècle, la vie monastique exige une certaine connaissance de la théologie qui est encore sagesse plus que science. La première partie du XIIIe siècle est l'âge d'or de la bibliothèque puis son budget est restreint. Sous l'abbé Guillaume de Fors (1247-1248), elle est considérablement agrandie et on lui doit une concordance de la Bible et l'utilisation de dictionnaires[31]. Vers 1338, les professeurs de Jumièges enseignent la grammaire, la logique et la philosophie. L'abbé envoie les plus aptes aux universités et les autres copient des livres. Ceux de chœur sont exécutés dans l'abbaye et les autres copiés à Paris. La bibliothèque était placée sur le vestibule devenu parloir des moines entre l'église Saint-Pierre et le cloître. Les abbés Simon du Bosc (1390-1418) et Nicolas Le Roux (1418-1431) l'enrichissent de manuscrits précieux principalement canoniques.
Aux XVIIe et XVIIIe siècles, les mauristes qui ont trouvé une abbaye mutilée par les huguenots, spoliée par de peu scrupuleux abbés commendataires, hantée par des moines désœuvrés, restaurent les études et initient les postulants de Haute-Normandie à la philosophie et la théologie. Jusqu'en 1660, la congrégation s'organise et les moines s'initient au travail intellectuel. De 1660 à 1715, Jumièges fournit à Jean Mabillon et aux grands éditeurs des auxiliaires compétents doublés de parfaits religieux pour les travaux collectifs de patristique et reçoit en 1662 la visite de la société des Bollandistes[32]. De 1715 à 1740, Bernard de Montfaucon utilise plusieurs moines à des tâches plus profanes et dans la dernière période, le monde, le jansénisme et la philosophie gangrènent le monastère et précipitent sa ruine[33].
L'abbé François Harlay de Champvallon (1651-1695) fait construire une belle bibliothèque très éclairée de 30 m de longueur, 10 m de largeur et 5 m de hauteur à l'entrée de l'abbaye, au-dessus des celliers. Après avoir possédé environ 800 manuscrits, elle n'en compte plus que 370 en 1656[34]. Les prieurs l'augmentent et, à la Révolution, elle contient plus de 10 000 volumes, sans compter les manuscrits dont 200 ont disparu. L'ensemble est transporté à la bibliothèque de Rouen.
- Les manuscrits

Quelques-uns des 383 manuscrits de l'ancienne bibliothèque abbatiale de Jumièges contiennent des traités, notes, tableaux ou figures intéressants pour l'histoire du comput ecclésiastique en France[35]. Sur la quarantaine de manuscrits canoniques subsistants de l'époque mauriste, les plus significatifs correspondent à l'épanouissement de la science juridique dans les cloîtres aux XIIIe et XIVe siècles[36],[37]. Neuf manuscrits du XIIIe siècle montrent l'autorité de saint Bernard à Jumièges qui, par ses écrits, transmettait l'interprétation de la Règle dans le De præecepto, enseignait l'amour de Dieu dans sa Lettre aux chartreux, indiquait les voies de la contemplation dans les Sermonts sur les Cantiques et fournissait des lectures pour la prière liturgique[38]. On trouve cinquante manuscrits liturgiques du XIe au- XVe siècle[39] et quarante manuscrits musicaux[40]. Le fonds d'enluminures de Jumièges est composé de 163 manuscrits[41] et 2 150 éléments décoratifs avec soixante-et-un décors importants, la plupart des XIIe et XIIIe siècles. Les peintures authentiquement de Jumièges sont cinq dans trois manuscrits, un missel du XIVe siècle et un manuscrit du XIIe siècle. L'enlumineur normand, le moine Hugo Pictor, a travaillé à Jumièges à la fin du XIIe siècle[42]. L'école de Jumièges n'a pas d'originalité et est, en plein XIIe siècle dans la dépendance du style byzantin[43].
Sur le dos d'un manuscrit de la fin du IXe ou début du Xe siècle est transcrite une table de 79 drogues médicinales dont : safran, rhubarbe d'Europe, noix de Galle, réglisse, opium de Cyrénaïque, d'Indes et d'Égypte, anacarde, carbonate de soude, musc de castor, thym, cardamome, baume de la Mecque, corail, arsenic, myrrhe, soufre, sulfate de cuivre, herbes, fleurs, semences, écorces confites, poivre, gingembre, encens, cumin, alun, coloquinte, ambre[44]…
Temporel
L'abbaye de Jumièges a reçu de nombreuses donations qu'elle développe par des acquisitions, organise par des ventes et des échanges, défend par des procès pour assurer la vie temporelle de la communauté, ses fonctions sociales, économiques et politiques.
De nombreuses chartes en gardent la trace et, dès les années 825, on voit Louis le Débonnaire confirmer l'absence de droits de péages sur les provisions, et, en 1027, Richard II de Normandie confirmer une importante liste de donations[45]. Pendant la guerre de Cent Ans, elle perd tous les dons faits en Angleterre par Guillaume le Conquérant[46], en particulier l'île de Hayling et deux églises[47].
Grâce à une liste de 849 et une charte ducale de 1025 qui explicitent l'intention de restauration, l'histoire du patrimoine entre la période franque et la période ducale se laisse assez bien suivre. Jumièges a conservé la majeure partie de ses terres à l'extérieur du duché : Tourtenay en Poitou, Courgains dans le Perche, Friaucourt en Ponthieu jusqu'au début du XIe siècle, Montataire en Beauvaisis, Genainville en Vexin français jusqu'aux usurpations laïques de la fin du Xe siècle. Dans le duché, les récupérations sont assez nombreuses, certaines très anciennes comme Duclair, Jouy-sur-Eure et Gauciel, d'autres plus tardives comme Beaunay (située maintenant sur la commune de Beauval-en-Caux) récupérée à la fin du XIe siècle[48].
Parmi ses biens en France : des baronnies, prieurés, bénéfice-cures, patronages d'églises, seigneuries, vavassories, fiefs, droits de haute-justice au Vieux-Verneuil, prieuré de Bouafle, seigneurie d'Anneville-sur-Seine, droits de basse et moyenne justice dans les baronnies de Duclair, Jumièges et Mesnil-sous-Jumièges.

Elle reçoit les dîmes de nombreuses paroisses, des rentes et possède des droits dans la forêt de Brotonne, sur le passage et le halage sur la Seine, sur les foires et marchés, pêche, pressurage. Ses moulins lui permettent de contrôler la production des grains sur ses terres, donc le paiement de la dîme, et ils sont aussi des lieux de rencontre, d'échange et de commerce[49]. Les salines de Rouxmesnil-Bouteilles fournissent le sel[50].
Dès sa fondation, elle jouit d'un domaine fluvial entre Notre-Dame-de-Bliquetuit et Yville-sur-Seine, des ports de Jumièges, Quillebeuf-sur-Seine, Vieux-Port, Le Trait, Yainville, Duclair. En 654-676, saint Philibert parle de flottilles de commerce et de pêche la ravitaillant en blé, vin, sel, poisson et huile d'éclairage. Au XIIe siècle, les moines trafiquent en important des cargaisons de vin dépassant leurs besoins et vendent le surplus loin dans la Seine ou vers l'Angleterre[51].
Le prestige de l'abbaye et la fréquentation des pèlerins sont liés à la qualité de ses reliques. Le culte de saint Valentin de Terni[52] est attesté en 1052, et s'est développé notamment lors de processions où l'on portait son chef ; l'église paroissiale de Jumièges lui est dédiée au début du XIIIe siècle. En 1493, l'abbaye reçoit une côte de saint Philibert et en 1655, une partie du crâne de sainte Bathilde, reine de France, ses fondateurs. On y trouve aussi les reliques des saints : Aicadre (ou Achard), Constantin, Pérégrin, Hugues, Quentin, une dent de saint Jean-Baptiste, une côte de saint Laurent. Elles rejoignent l'abbaye Saint-Wandrille de Fontenelle en 1897 avec la restauration du monastère[53].
En 1267, l'abbaye de Jumièges comptait quarante-cinq moines résidents, vingt-et-un à l'extérieur (tous étaient prêtres sauf douze) et beaucoup de laïcs troublant la quiétude du monastère[54]. Pour avoir une idée de l'organisation et de la répartition des dépenses, nous avons un état des biens de l'abbaye en 1338 qui nous éclaire sur la vie temporelle du monastère.
En 1338, le total des recettes est de 7 672 livres pour 7 044 livres de dépenses, soit un excédent d'environ 600 livres. Un très grand nombre d'hôtes s'installe au monastère en utilisant le passage d'eau et les dépenses de l'hôtellerie représentent plus de la moitié des revenus de l'abbaye. Pour la nourriture de quarante moines et leurs domestiques, les hôtes et les indigents, il faut pour 451 livres de grains et farines alimentaires, 288 livres de céréales pauvres, seigle et orge, 780 livres de vin. Pour la cuisine de la communauté et des ouvriers : 220 livres plus la pitance, 1 784 livres pour l'huile, condiments, épices (pour la table et la fabrication des drogues médicinales), viandes, soit un total de 2 104 livres pour la nourriture.
Les vêtements des moines coûtent 162 livres, les vêtements des ouvriers et employés : 386 livres. Pour les frais d'exploitation des vignes et des terres, il faut 494 livres ; pour les chevaux et la maréchalerie, 200 livres ; pour les réparations à l'extérieur de l'abbaye, 200 livres et pour les nombreux procès visant à défendre les biens, 494 livres.
Les offices monastiques sont bien définis. L'abbé reçoit 1 930 livres, le cellérier 3 500 livres, le cuisinier 1 225 livres, le chantre qui entretient la bibliothèque 12 livres, le sacristain 4 livres. Il y a aussi des offices de pitancier et de prieur claustral. L'aumônier garde les restes de nourriture et reçoit 426 livres. Les frais de voyages de l'abbé et des moines sont importants : l'abbé reçoit 178 livres, le pitancier 36 livres, le bailli 25 livres, ce qui suppose des sorties très fréquentes[55]. Ces officiers, et en particulier le pitancier, accordent de petits prêts le plus souvent aux habitants de Jumièges avec un taux d'environ 10%[50].
- Le XVIIIe siècle
Au XVIIIe siècle, la situation s'est dégradée sous l'action des abbés commendataires qui ne cherchent qu'à augmenter leurs profits. Sous le poids des dettes et des emprunts, le nombre de moines doit être réduit à 20 et le noviciat transféré à l'abbaye Saint-Wandrille de Fontenelle[56]. En 1760, la communauté ne dispose plus que de 32 000 livres pour payer les serviteurs et les dépenses courantes. Les bâtiments se dégradent et pour réaliser les réparations urgentes, les moines doivent vendre pour 40 000 livres la réserve de bois, emprunter 20 000 livres et fieffer des biens.
En 1789, sur les 120 000 livres de revenus de l'abbaye, l'abbé commendataire en reçoit 80 000 et il n'en reste que 40 000 aux moines et tous leurs serviteurs. L'abbé ne réside pas à Jumièges et les moines ne sont plus que seize : un prieur, un sous-prieur, un cellérier, un procureur, un bibliothécaire, un dépositaire, un dépensier et huit autres religieux. Ils ont chacun deux chambres, l'une avec un lit, l'autre avec le vestiaire et la bibliothèque, un petit jardin et une petite serre. Le prieur bénéficie d'un appartement, d'un grand jardin avec espaliers, d'une volière et d'une serre. En 1790, la municipalité de Jumièges découvre une dette de 45 000 livres[57].
Héraldique et sigillographie
- Blason
Blasonnement : d'azur, à la croix d'or, cantonnée de quatre clefs d'argent[58].
- Sceaux de l'abbaye
- En 1334 : La Vierge assise, couronnée et nimbée, tenant l'enfant Jésus couronné et nimbé, un sceptre fleuronné à la main droite, accostée de deux religieux à mi-corps, l'un tenant un livre et l'autre une crosse, SIGILLUM CONVENTUS GEMETIENSIS AD COUSAS, sceau rond 46 mm
- En 1393 : Dans une niche gothique, saint Pierre debout, tête nue, en chasuble, crossé, tenant un livre. Au-dessous, un écu à la croix chargé d'une croix et cantonné de quatre clefs, SIGILLUS ABBATI SANCTI PETRI DE GEMETICIS AD COUSUS, sceau rond 58 mm
- Sceaux des abbés
- En 1191-1198: L'abbé debout, tête nue, tenant un livre ouvert, sceau ogival 67 mm
- À la fin du XIIe siècle : Roger, abbé de Jumièges : personnage à mi-corps, de profil à droite, tête nue tenant une banderole PAX TIBI, sceau rond 38 mm
- En 1215 : Guillaume de Refeuchon : l'abbé debout, crossé, ABBATIS GEMMETENCIS, sceau ogival 70 mm
- En 1274 : Robert d'Ételan : l'abbé debout, tête nue, crossé, tenant un livre, SIGILLUM FRATIS ROBERTI DEI PERMISSIONE ABBATIS GEMETICENSIS, sceau ogival 52 mm, contre-sceau: saint Pierre assis, mitré, bénissant, tenant un livre, SANCTUS PIETRUS GEMETICENSIS
- En 1305 : Guillaume : l'abbé debout, tête nue, crossé, tenant un livre, accosté de deux fleurs de lys, SIGILLUM FRATIS GUILLERMI DEI GRACIA ABBATIS, sceau ogival 52 mm, contre-sceau : saint Pierre assis, mitré, bénissant, tenant un livre, SANCTUS PIETRUS GEMETICENSIS
- En 1349 : Dans une niche gothique, l'abbé, tête nue, crossé, tenant un livre, SIGILLUS FRATRIS ABBATIS GEMETENSIS, sceau ogival 60 mm
- Sceau du prieur
- En 1709, sous les abbés commendataires : Écu à la croix cantonnée de quatre clefs, timbré d'une mitre et d'une crosse, embrassé par deux palmes, sceau ovale 20 mm[59].
Architecture
Le premier monastère
Une vie de saint Philibert donne la description du monastère fondé en 654. Il est entouré d'une enceinte quadrangulaire de 300 m de côté, surmontée de tours dont la trace s'est conservée sans grandes modifications sur les parcellaires des XVIIe et XVIIIe siècles. À l'entrée, d'admirables bâtiments sont destinés à recevoir les hôtes. Vers l'est de l'enceinte, une église en forme de croix est dédiée à la Vierge. Elle a trois autels : au centre, l'autel principal décoré d'or, d'argent et de pierres précieuses et de chaque côté, ceux dédiés à saint Jean et à saint Colomban. Au nord de l'église se trouvent les sanctuaires de saint Denis et de saint Germain. Au sud, l'oratoire de saint Pierre possède à ses côtés une chapelle consacrée à saint Martin et, plus loin au sud, la cellule de saint Philibert, reliée au cloître par une galerie à portiques. Les lieux monastiques sont construits en pierre avec des arcades accompagnées d'ornements et de jeux d'eau. Un bâtiment orienté vers le sud est formé de deux niveaux de plus de 90 m de longueur et d'environ 16 m de largeur, renfermant à l'étage les dortoirs avec une baie pour chaque lit et un rez-de-chaussée divisé en deux parties pour les cuisines et les celliers.
Toutes ces constructions ont disparu au cours des destructions successives occasionnées par les raids vikings, mais l'église Notre-Dame et l'oratoire saint Pierre, bien que ruinés, sont toujours en place. Les dortoirs du Moyen Âge sont au sud du cloître et il semble que le centre de l'enceinte corresponde à l'oratoire saint Pierre, où priait saint Philibert[60],[61].
La reconstruction





La reconstruction de l'abbaye de Jumièges s'est faite à partir des vestiges de l'église Saint-Pierre, le pignon ouest, les massifs des deux tours et les deux travées de l'aile nord de la nef. Après l'an mil, l'abbatiale Notre-Dame est construite, puis entre cette église et l'ancienne église Saint-Pierre s'installent la salle capitulaire puis la salle des reliques avec son étage. À la fin du XIIIe siècle, le chœur roman de l'abbatiale Notre-Dame est remplacé par un chœur gothique. Le siècle suivant, l'église Saint-Pierre est reconstruite en gardant une partie de la nef et le pignon. Le petit passage qui relie les deux églises derrière la salle capitulaire garde le souvenir du roi Charles VII et de sa maîtresse Agnès Sorel. Au XVIe siècle, les abbés commendataires renouvellent le cloître et les bâtiments conventuels. En 1673, est inauguré le logis abbatial et en 1732, le grand bâtiment qui regroupe une grande partie des fonctions régulières, les terrasses et les jardins.
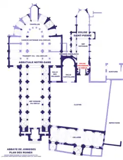
Pour comprendre l'organisation de l'abbaye, nous avons un plan précis de 1674, la gravure du Monasticon Gallicanum de 1678 qui donne les élévations, une copie mise en couleur en 1702 utile pour les matériaux de couverture, un plan de 1797 avec l'ensemble des jardins et des transformations des mauristes et une série de lithographies de 1820[62].
Le plan général est lié à la pente importante du terrain orienté dans l'axe des églises et la présence de deux lieux de culte. Il présente deux anomalies par rapport au plan-type d'un monastère comme celui de l'abbaye de Beauport retenu par Arcisse de Caumont dans son Abécédaire d'archéologie: l'éloignement des dortoirs du chœur eucharistique de l'abbatiale et le cloître qui ne s'inscrit pas dans un carré.
On y trouve la fonction d'accueil des visiteurs avec l'hôtellerie et la partie ouest de la nef de l'abbatiale Notre-Dame, la dépense ou administration de l'abbaye ; la clôture monastique organisée autour du cloître avec les sanctuaires, la salle capitulaire, lieu de réunion et de décision, ouverte sur le cloître pour que personne n'ignore une assemblée, le réfectoire, les dortoirs et autres lieux de vie des moines ; les annexes de fonctionnement[63].
L'église Saint-Pierre
Elle correspond au premier sanctuaire que les moines ont reconstruit. Du point de vue architectural, elle conserve également la partie la plus ancienne de l'abbaye. En effet, la façade ouest, privée de son massif occidental, dont on peut encore voir la base des tours et le pied des escaliers qui menaient en leur sommet, l'ouverture partiellement murée de la vaste tribune qui embrassait l'édifice et deux travées nord de la nef ont été datées par les archéologues du Xe siècle, c'est-à-dire au point décisif de l'évolution du massif carolingien à trois tours. L'étroite circulation du deuxième niveau (vers 990) anticipe celle de l'abbaye Notre-Dame de Bernay[14]. Les oculi conservent des traces d'enduit et de peinture, les chapiteaux des baies géminées dérivent de formes italiennes. Tout cet ensemble devait être très orné. Sa datation de la restauration de Guillaume Longue-Épée de 928[64], 936 ou 942[65] est controversée. Elle serait de la fin du siècle, avant 993, date certaine de la sépulture de l'ancien abbé de Saint-Wandrille, Ensulbert[66]. En 2003, une étude évoque l'hypothèse de la reconstruction complète de l'édifice à la fin du VIIIe siècle ou au début du IXe siècle[61].
En 1335, l'abbé Guillaume-le-Jeune entreprend la reconstruction de la nef[67], dont les murs subsistants sont nettement de style gothique. Ce sanctuaire était réservé aux moines et aux convers[68].
- Revers de façade pré-romans avec ses médaillons.
- Mur nord de la nef gothique.
Nef et collatéral gothique.
L'église abbatiale Notre-Dame

Abbatiale Notre-Dame.- Façade occidentale avec son porche à tribunes.
Il s'agit d'un édifice mixte de style roman et de style gothique. Il ne subsiste quasiment rien de l'abside et du chœur gothique, à part une chapelle rayonnante, quelques pans de murs et substructions. Les parties romanes, à savoir la façade, la nef et le mur ouest de la tour-lanterne sont les mieux conservées. L'abbatiale mesurait 88 mètres de longueur et les murs de la nef atteignent encore 25 mètres sur trois niveaux d'élévation. Une tour-lanterne à deux étages illuminait la croisée du transept, mais il ne subsiste que le mur ouest. La façade occidentale présente un Westwerk (massif occidental), réminiscence dans l'art roman d'une disposition carolingienne, rarissime en France mais commune en Allemagne, d'où son terme technique allemand. Il est encadré de deux tours à peu près symétriques de 46 mètres de hauteur, polygonales dans leur partie supérieure, en retrait[69]. La très spacieuse tribune occidentale se situe dans le prolongement des églises-porches vouées au Sauveur[70]. Le massif occidental et la nef seraient de 1014-1028[71]. L'abbatiale a été consacrée en 1067 et le chœur gothique construit vers 1275 pour créer des chapelles aux nombreux moines prêtres et respecter l'évolution de la liturgie[72].
Les chapiteaux sont essentiels pour l'histoire de la sculpture normande du XIe siècle et prolongent avec quelques transformations ceux du chœur de l'abbaye Notre-Dame de Bernay. Ils sont composés de thèmes végétaux et de personnages en buste avec parfois la transposition dans la pierre de motifs d'enluminures[73].
- La nef et ses murs de 25 m.
Le mur ouest de la tour lanterne.
La nef et le chœur vers 1820.
Vue aérienne.
En 1688–1692, une fausse voûte sur croisée d'ogives sur la nef est construite. En effet, comme tous les grands édifices romans de Normandie, elle n'était pas voûtée de pierre, d'où sa charpente apparente. Par contre, les bas-côtés étaient dotés de voûtes d'arêtes. De plus, le chœur gothique avait une voûte sur croisée d'ogives.
Le cloître
Le cloître a été construit en 1530 sous l'abbé François de Fontenay. De style gothique flamboyant, comme celui de l'abbaye Saint-Wandrille de Fontenelle, il n'en subsiste aujourd'hui que des traces au sud de l'abbatiale Notre-Dame. De plan trapézoïdal, il mesurait suivant les côtés de 28 à 40 m. Ses quatre galeries avaient des contreforts surmontés de pinacles pour maintenir la poussée des voûtes. Une large baie, divisée en trois par des meneaux et un remplage, éclairait chaque travée sous un arc brisé. Une balustrade couronnait les galeries. Les voûtes étaient sur un plan étoilé avec quatre clefs pendantes à chaque travée, les branches d'ogives se réunissant sur des culs de lampe. Les clefs de voûte et les culs de lampe étaient richement décorés. Des fresques sur l'histoire ou les légendes de l'abbaye décoraient les murs[74]. Les vestiges du cloître n'ont pas été achetés au début du XIXe siècle par Lord Stuart de Rothesay et remontés dans son château de Highcliffe près de Bournemouth. En réalité, on n’y trouve que quelques culots et des fragments de la grande arcade sculptée du porche de l'ancienne hôtellerie (devenue cellier au XVe siècle)[75]. Le centre du cloître est matérialisé par un if, planté au XVIe siècle et symbole de vie éternelle, tout comme celui de l'abbaye de Muckross en Irlande.
Les celliers
À l'ouest du cloître se trouve l'ancien cellier, qui comprend des parties romanes du XIIe siècle et gothiques et des souterrains qui, d'Ouest en Est comprennent 26 caveaux, 13 de chaque côté pouvant contenir chacun 600 bouteilles, une allée longue et étroite puis une salle voûtée soutenue par trois fortes colonnes [76]. Les moines y entreposaient leur propre vin, issu de leurs vignes du Conihout de Jumièges, d'où ce dicton : « De Conihout ne beuvez pas, car vous passerez de vie à trépas ! ». Ils en exportaient une partie vers l'Angleterre et en consommaient pour leur usage personnel, mais ils préféraient du vin de Loire qu'ils achetaient à Beaugency.
Sur la tour sud de Notre-Dame, hormis le cadran solaire, sont visibles les traces de deux charpentes différentes à deux niveaux distincts : l'une est celle du toit du cellier d'origine, l'autre est celle du toit rehaussé par la construction, entre 1663 et 1669, au-dessus du cellier, d'une bibliothèque par les mauristes.
La grande salle avec ses fenêtres et ses décors du mur Ouest[77], les traces de peinture ne correspond pas à la typologie des celliers normands du XIIe siècle. Le porche monumental au centre de cette pièce, orienté vers l'entrée de l'abbaye semble marquer une fonction d'accueil[78].
La salle capitulaire
Entre l'abbatiale Notre-Dame et l'église Saint-Pierre, la salle capitulaire[79], lieu d'assemblée des moines et de lecture d'un chapitre de la règle de saint Benoît, est une salle carrée terminée par une abside construite en supprimant les deux travées du bas-côté de la partie pré-romane de Saint-Pierre. Le passage Charles VII a entamé le mur est de l'hémicycle au XIVe siècle[80]. Cette salle du XIIe siècle de style roman était déjà dotée d'une voûte sur croisée d'ogives, une des trois plus anciennes en France, toutes en Normandie et toutes dans des monastères bénédictins : l'église de l'abbaye Sainte-Trinité de Lessay et le « promenoir » des moines du Mont-Saint-Michel. Elle jouxte la « salle des reliques », où les moines entreposaient leurs nombreuses reliques, garantes en partie de la venue des pèlerins.
Le logis abbatial
À l'est, au point le plus élevé à l'intérieur de la clôture de l'abbaye, se trouve le logis abbatial qui est une grande bâtisse de style classique, aux lignes sobres et équilibrées, construite par les mauristes au XVIIe siècle. À l'époque de sa construction, l'abbé commendataire est François Harlay de Champvallon qui deviendra archevêque de Rouen. Il accueille le musée lapidaire et des expositions.
La porterie
Elle se situe à l'extrémité ouest de la clôture. Elle est vaste et massive. C'est un espace rectangulaire qui s'ouvre de chaque côté par deux portails : l'un pour les charrois (le plus grand) et l'autre pour les piétons. À l'intérieur, la voûte est construite sur croisées d'ogives et la base des murs latéraux est occupée par des bancs de pierre destinés aux pèlerins et aux visiteurs. L'ensemble date du XIVe siècle. Une maison de style néo-roman et néogothique (« style troubadour ») a été construite au-dessus de la porterie et une autre aile, dotée d'un étage, y a été accolée. En définitive, c'est l'ensemble de la porterie gothique qui se trouve englobé dans cette construction du XIXe siècle. Elle a servi d'habitation aux derniers propriétaires et est actuellement occupée par les services administratifs et la librairie de l'abbaye. Elle abrite également un lieu d'exposition.
Filiales
- Pavilly (féminine), fondée vers 660
- Montivilliers (féminine), fondée vers 684
- Saint-Évroult (restauration)
- Saint-Pierre-sur-Dives
- La Cour du Mont, à Duclair
Liste des abbés et des prieurs mauristes
Liste des abbés de l'abbaye de Jumièges depuis sa fondation au VIIe siècle jusqu'à son dernier abbé fin XVIIIe siècle. Liste des prieurs mauristes de 1618 à 1790.
- 654-682 : saint Philibert, fondateur de l'abbaye et 1er abbé ;
- 682-687 : saint Aicadre (Achard), 2e abbé ;
- 687-724 : Cochin, 3e abbé ;
- 724–730 : saint Hugues, évêque de Paris, Rouen, et Bayeux v. 720–730 et abbé de Jumièges (4e abbé) et de Fontenelle ;
- 730-v.750 : Hildegard, 5e abbé ;
- v. 750-v. 787 : Droctegand, 6e abbé ;
- v. 787-v. 814 : Landric, 7e abbé ;
- v. 814-v. 820 : Adam, 8e abbé ;
- v. 820- . . . . : Hélisachar, 9e abbé ;
- . . . . - . . . . : Angilbert, 10e abbé ;
- . . . . -830 : Angésise, 11e abbé ;
- 830-833 : Foulques, 12e abbé ;
- 833- . . . . : Ricbodon, 13e abbé ;
- . . . . -v. 836 : Baudri, 14e abbé ;
- 837-840 : Héribert, 15e abbé ;
- 840-848 : Thierry Ier, 16e abbé ;
- 848-860 : Rodolphe, 17e abbé ;
- 860- . . . . : Gauzlin, 18e abbé ;
- . . . . - . . . . : Codine, 19e abbé ;
- . . . - . . . . : Louis Ier, 20e abbé ;
- . . . . -930 : Welpon, 21e abbé ;
- 938-943 : Martin, 22e abbé, précédemment abbé de Saint-Cyprien de Poitiers puis de Saint-Jean-d'Angély ;
- 943-944 : Annon, 23e abbé ;
- 944-1000 : Roderic, 24e abbé ;
- 1000-1014 : Robert Ier, 25e abbé ;
- 1015-1017 : Guillaume de Volpiano
- 1017-1027 : Thierry II, 26e abbé ;
- 1028-1037 : Guillaume Ier, 27e abbé ;
- 1037-1045 : Robert II Champart, ancien prieur de Saint-Ouen de Rouen, dit de Jumièges quand il quitte l'abbaye, 28e abbé, qui devient évêque de Londres (1044) puis archevêque de Cantorbéry (1051) ;
- 1045-1048 : Geoffroy Ier, 29e abbé ;
- 1048-1078 : Robert III, 30e abbé ;
- 1078-1097 : saint Gontard, 31e abbé ;
- 1097- . . . . : Tancard, 32e abbé ;
- . . . . -1048 : Urson, 33e abbé ;
- . . . . -1142 : Guillaume II, 34e abbé ;
- 1142-1155 : Eustache, 35e abbé ;
- 1155-1162 : Pierre Ier, 36e abbé ;
- 1162-1178 : Roger Ier, 37e abbé ;
- 1178-1190 : Robert IV d'Argences, 38e abbé ;
- 1190-1191 : Roger II, 39e abbé ;
- 1191-1198 : Richard Ier de la Mare, 40e abbé ;
- 1198-1213 : Alexandre, 41e abbé ;
- 1213-1239 : Guillaume III de Rençon, alias de Resenchon, alias Resenchum (dans les chartes) 42e abbé[81]
- 1239-1247 : Guillaume IV de Courdieu, 43e abbé ;
- 1247-1248 : Guillaume V de Fors, 44e abbé ;
- 1248-1258 : Robert V d'Ételan, 45e abbé ;
- 1258-1272 : Richard II de Bolleville, 46e abbé ;
- 1272-1286 : Robert V d'Ételan, 45e abbé ;
- 1286-1289 : Jean Ier du Tot, 47e abbé ;
- 1289-1311 : Guillaume VI Becquet, 48e abbé ;
- 1311-1312 : Geoffroy II de Pignes, 49e abbé ;
- 1312-1327 : Mathieu Cornet, 50e abbé ;
- 1327-1330 : Robert VI de Bordeaux, 51e abbé ;
- 1330-1350 : Guillaume VII Le Jeune, 52e abbé ;
- 1350-1362 : Jean II de Boiracher, 53e abbé ;
- 1362-1364 : Pierre II de Mauroy, 54e abbé ;
- 1364-1377 : Jean III de Saint-Denis, 55e abbé ;
- 1377-1389 : Jean IV de Fors, 56e abbé ;
- 1389-1391 : Geoffroy III Harenc, 56e abbé, devenu abbé du Bec (1391-1399) ;
- 1391-1418 : Simon du Bosc, 58e abbé ;
- 1418-† 1431 : Nicolas Le Roux, 59e abbé, abbé de la Croix-Saint-Leufroy, juge de Jeanne d'Arc[82];
- 1432-1464 : Jean V de la Chaussée, 60e abbé ;
- 1464-1473 : Antoine Crespin, 61e abbé ;
- 1473-1474 : Louis II d'Amboise, 62e abbé ;
- 1474-1504 : Jacques d'Amboise, 63e abbé ;
- 1504-1510 : François Ier de Clermont, 64e abbé ;
- 1510-1518 : Philippe de Luxembourg, 65e abbé ;
- 1518-1525 : Jean VI Durand, 66e abbé ;
- 1525-1539 : François II de Fontenay, 67e abbé ;
- 1539-1549 : cardinal Hippolyte d'Este, 68e abbé ;
- 1549-1574 : Gabriel Le Veneur de Tillières, 69e abbé ;
- 1574-1590 : cardinal Charles Ier de Bourbon, 70e abbé ;
- 1590-1594 : cardinal Charles II de Bourbon, 71e abbé ;
- 1594-1607 : René de Courtenay (1561-apr.1638), 72e abbé[83]
- 1607-1614 : Marian de Martinbos, 73e abbé ;
- 1614-1635 : Balthasar Poitevin, 74e abbé ;
- 1635-1639 : Jean-Baptiste de Croisilles, 75e abbé ;
- 1639-1641 : Guillaume VIII de Montaigu, 76e abbé ;
- 1641-1644 : Pierre III du Cambout de Coislin (l'évêque d'Orléans Pierre IV), 77e abbé ;
- 1644-1648 : François III, archevêque de Rouen, 78e abbé[84] ;
- 1648-1695 : François IV, archevêque de Rouen, neveu du précédent, 79e abbé[85] ;
- 1695-1719 : vacance à la mort de François IV[86] ;
- 1719-1760 : Claude Charles de Rouvroy de Saint-Simon, 80e abbé ;
- 1760-1788 : François V Camille de Lorraine, 81e abbé ;
- 1788-1789 : Pierre IV François Martial de Loménie de Brienne, 82e abbé.
Les prieurs mauristes
- Dom Adrien Langlois, 1616-1626
- Dom Colomban Régnier, 1626-1633
- Dom Guillaume Girard, 1633-1636
- Dom Colomban Régnier, 1636-1637, fin par son décès
- Dom Grégoire de Verthamont, 1639-1642
- Dom Maur Dupont, 1642-1644
- Dom Grégoire de Verthamont, 1644-1646
- Dom Anselme des Rousseaux, 1645, transféré aux Blancs-Manteaux, à la demande de la Reine mère
- Dom Jean Harel, 1645-1648
- Dom Martial des Forges, 1648-1649
- Dom Benoît Bonté, 1649-1651
- Dom Jean-Baptiste de Boulogne, 1651-1654
- Dom Mommole Géoffroy, 1654-1660
- Dom Vincent des Marsolles, 1660-1666
- Dom François de Villemonteys, 1666-1669
- Dom, Silvestre Morel, 1669-1675
- Dom Marc Rivard, 1675-1678
- Dom Pierre de Vieille-Chèze, 1678-1684
- Dom Robert de Faucil, 1684-1690
- Dom Martin Filland, 1690-1693
- Dom François Douay, 1693-1696
- Dom François Duvivier, 1696-1699
- Dom Dieudonné Buisson, 1699-1705
- Dom François L'Héritier, 1705-1711
- Dom Nicostrat Bara, 1711-1717
- Dom Jean Bourdet, 1717-1720
- Dom François L'Héritier, 1720-1723
- Dom Charles Dujardin, 1723, démission
- Dom JeanBourdet, 1723-1729
- Dom Jean Birée, 1729-1733
- Dom Jean Foulques, 1733-1736
- Dom Pierre Lemaitre, 1736-1738
- Dom Jean Lefèbvre, 1738-1745
- Dom Timotée Vérel, 1745-1747
- Dom Pierre Faudemer, 1747-1751
- Dom Louis-Charlemagne Fontaine, 1751-1757
- Dom Augustin Leclerc, 1757-1759
- Dom Louis-Charlemagne Fontaine, 1759-1769
- Dom Jean-Baptiste Huard, 1769-1775
- Dom Jacques-Alexis Lemaire, 1775-1778
- Dom Pierre Marye, 1778-1781
- Dom Louis-Hippolyte Daspres, 1781-1783
- Dom Pierre-Armand Bride, 1783-1790, fin en 1790 lors de la dispersion de la communauté
Autres personnalités
- Saint Saëns, moine au VIIe siècle.
- Sturmius, abbé de Fulda, fut exilé à Jumièges sur ordre de Pépin le Bref de 763 à 765.
- Tassilon, duc de Bavière, fut enfermé dans l'abbaye en 788.
- Guillaume de Jumièges, moine à Jumièges y rédigea vers 1070 ses Gesta Normannorum ducum.
L'abbaye eut également ses propres annales : Annales Gemmeticenses (Annales de Jumièges), écrites au début du XIIe siècle.
- Agnès Sorel, dont le cœur reposait jadis à l'abbaye.
Au XVIIe siècle, l'abbaye renaissante a été de nouveau un centre intellectuel important. Parmi les moines qui ont contribué à sa renommée, on peut citer :
- dom Thomas Dufour, très versé dans la connaissance des langues orientales, auteur d'une grammaire hébraïque[87] ;
- dom Jean Garet, l'éditeur des ouvrages de Cassiodore[88] ;
- dom René Massuet, savant helléniste, connu dans le monde de l'érudition par son édition de saint Irénée[89] ;
- dom Pierre Boudier, un des bons écrivains et des supérieurs généraux de l'Ordre[90] ;
- dom Nicolas Le Nourry, l'auteur de l'excellent ouvrage intitulé Apparatus ad Bibliothecam Maximam Patrum, où l'on trouve une analyse raisonnée des Pères apostoliques et des écrivains ecclésiastiques des IIIe et IVe siècles[89].
Protection
L'abbaye de Jumièges a été classée monument historique par liste de 1862, avant d'être déclassée le .
Au titre des monuments historiques[91] :
- l'église abbatiale ; l'église Saint-Pierre ; la salle capitulaire ; le grand cellier occidental ; les caves ; les souterrains et l'escalier conduisant au potager sont classés par arrêté du ;
- les terrains d'une superficie d'environ trois hectares environnant les ruines de l'abbaye sont classés par décret du ;
- l'ensemble de l'ancienne abbaye et le parc attenant sont classés par arrêté du .
L'abbaye est située dans le parc naturel régional des Boucles de la Seine normande.
Représentations picturales
Adrien Dauzats (1804-1868) l'a peinte en 1834[92].
Anecdote
L'abbaye de Jumièges a servi de cadre entre autres, à l'aventure d'Arsène Lupin intitulée : La Comtesse de Cagliostro. L'oncle de Maurice Leblanc, Charles Brohy était propriétaire de l'actuel bureau de poste de Jumièges, en face de l'abbaye, où l'écrivain fit de nombreux séjours. Maurice Leblanc a écrit une série de « Contes essentiels » sous le pseudonyme de « L'Abbé de Jumièges » (1893-1894, Gil Blas).
Notes et références
- ↑ Fondation de Jumièges.
- ↑ Lucien Musset, Normandie romane, t. 2, pages: 110, 61.
- ↑ Jean-François Marignier: Jumièges et le monachisme occidental au Haut-Moyen Âge (VIIe – XIe siècles) dans: Jumièges', Congrès scientifique du XIIIe centenaire, t. 2, p. 753-758.
- ↑ Élisabeth Chirol : compte-rendu des Études archéologiques, Congrès scientifique du XIIIe centenaire dans: Annales de Normandie, 1956, vol. 6, no 3, p. 298.
- ↑ Louis-Marie Michon et Roger Martin du Gard, L'abbaye de Jumièges, Paris, Henri Laurent, p. 13-15.
- ↑ Lucien Musset, « Cadre chronologique de l'abbaye de Jumièges », Normandie romane, t. 2, p. 110.
- ↑ Dom Patrice Cousin, « La vie monastique à Jumièges des origines à la dévastation par les normands (654-851) », Jumièges, Congrès scientifique du XIIIe centenaire, t. 2, p. 745-752, Rouen, Imprimerie Lecerf, 1955.
- ↑ Bernard Beck, Châteaux forts de Normandie, Rennes, Ouest-France, , 158 p. (ISBN 2-85882-479-7), p. 13.
- ↑ « Naissance de la séquence au IXe siècle, Notker de Saint-Gall, préface au Liber Hymnorum (v. 884) », sur musicologie.org (consulté le ).
- ↑ Dr Jean Duft, « Le Presbyter de Gimedia apporte son antiphonaire à Saint-Gall », Jumièges, Congrès scientifique du XIIIe centenaire, t. 2, p. 925 à 936.
- ↑ Bernard Beck (photogr. Bernard Pagnon), Quand les Normands bâtissaient les églises : 15 siècles de vie des hommes, d'histoire et d'architecture religieuse dans la Manche, Coutances, Éditions OCEP, , 204 p. (ISBN 2-7134-0053-8), p. 32.
- ↑ François Neveux, La Normandie des ducs au rois, Xe – XIIe siècle, Rennes, Ouest-France université, , 676 p. (ISBN 2-7373-0985-9), p. 306.
- ↑ Lucien Musset, Monachisme d'époque franque et monachisme d'époque ducale en Normandie: le problème de la continuité », p. 58-59 dans Aspect du monachisme en Normandie (IVe – XVIIIe siècles), Paris, Librairie philosophique J. Vrin, (ISBN 2-7116-2034-4) (BNF 36144416).
- 1 2 Beck 1981, p. 88.
- ↑ Anne-Marie Flambard Héricher (préf. Vincent Juhel), Le château de Vatteville et son environnement, de la résidence comtale au manoir de chasse royal, XIe – XVIe siècle, vol. Mémoire de la Société des antiquaires de Normandie, t. XLVIII, Caen, Société des antiquaires de Normandie, , 393 p. (ISBN 978-2-919026-27-2), p. 65.
- ↑ Flambard Héricher 2023, p. 69.
- ↑ Georges Minois, La guerre de Cent Ans, Tempus édition Perrin.
- ↑ L. M. Michon, Roger Martin du Gard, L'abbaye de Jumièges, p. 30-31.
- ↑ Dom Yves Chaussy, « La réforme de Chézal-Benoît à Jumièges », Jumièges, Congrès scientifique du XIIIe centenaire, t. 2, p. 808-815.
- ↑ Dom Jacques Maltier, « Les prieurs mauristes de Jumièges », Jumièges, Congrès scientifique du XIIIe centenaire, t. 2, p. 817.
- ↑ Selon l'expression de l'abbé Cochet in Jean-Benoît-Désiré Cochet, Culture de la vigne en Normandie (1844).
- ↑ R. P. Pierre Massein, « Sainteté et vie monastique à Jumièges au XVIIe siècle », Jumièges, Congrès scientifique du XIIIe centenaire, t. 2, p. 847-852.
- ↑ L. M. Michon, Roger Martin du Gard, L'abbaye de Jumièges, p. 32-35.
- ↑ Dom François Bonnet de Viller, « Les derniers moines de Jumièges », Jumièges, Congrès scientifique du XIIIe centenaire, t. 2, p. 836-845.
- ↑ Louis Réau, Histoire du vandalisme, Paris, Hachette, 1959.
- ↑ Henri Bouchot, Bibliothèque nationale: Inventaire des dessins exécutés pour Roger de Gaignières et conservés aux Départements des estampes et des manuscrits, t. 1, p. 272-276, no 2289 à 2314, Paris, Librairie E. Plon, Nourrit et Cie, 1801 (sur Gallica).
- ↑ « Jumièges. Les fouilles archéologiques ont abouti à une importante découverte sur le site de l'abbaye », Le Courrier cauchois, (lire en ligne).
- ↑ Jacques Fontaine: Le culte carolingien dans les abbayes normandes, dans: Lucien Musset (direction): Aspect du monachisme normand des IVe – XVIIe siècles, Librairie philosophique J. Vrin, Paris, (ISBN 2-7116-2034-4), page: 34.
- ↑ Geneviève Nortier-Marchand: La bibliothèque de Jumièges au Moyen Âge, dans: Jumièges, Congrès scientifique du XIIIe centenaire, tom: 2, pages: 599 et suivantes.
- ↑ Abbé Philippe Delhaye, « Un exemple de théologie monastique au XIIe siècle : Alexandre de Jumièges », Jumièges, Congrès scientifique du XIIIe centenaire, t. 2, p. 783-790.
- ↑ Abbé Pierre Michaud-Quantin, « La première formation intellectuelle des moines au Moyen Âge », Jumièges, Congrès du XIIIe centenaire, t. 2, p. 615, 619, 623, 624.
- ↑ R.P. Maurice Coens : Une visite des bollandistes à Jumièges en 1662, dans : Jumièges, Congrès scientifique du XIIIe centenaire, t. 2, page: 663.
- ↑ Abbé Joseph Daoust: L'activité littéraire de Jumièges aux XVIIe et XVIIIe siècles dans : Jumièges, Congrès scientifique du XIIIe centenaire, t. 2, page 655.
- ↑ Geneviève Nortier-Marchand, « La bibliothèque de Jumièges au Moyen Âge », Jumièges, Congrès scientifique du XIIIe centenaire, t. 2, p. 613.
- ↑ Alfred Cordoliani: Le plus ancien manuscrit de comput ecclésiastique du fonds de Jumièges, dans: Jumièges, Congrès scientifique du XIIIe centenaire, t. 2, p. 691 à 702.
- ↑ Jacqueline Rambaud-Dubot: Manuscrits canoniques de Jumièges, Décret de Gratien, dans: Jumièges, Congrès scientifique du XIIIe centenaire, t. 2, pages: 669 à 679.
- ↑ Abbé Louis Guizard : Manuscrits canoniques du fonds de Jumièges: Recueil de décrétales. Un corpus de droit canonique au XIVe siècle dans: Jumièges, Congrès scientifique du XIIIe centenaire, t. 2, p. 681 à 690.
- ↑ Dom Jean Leclercq, Saint Bernard à Jumièges dans : Jumièges, Congrès scientifique du XIIIe centenaire, t. 2, pages: 791-796.
- ↑ Dom René-Jean Hesbert : Les manuscrits liturgiques de Jumièges dans: Jumièges, Congrès scientifique du XIIIe centenaire, t. 2, pages: 855-872.
- ↑ Dom René-Jean Hesbert, Les manuscrits musicaux de Jumièges, dans : Jumièges, Congrès scientifique du XIIIe centenaire, t. 2, pages 901 à 912.
- ↑ Dom René-Jean Hesbert, Les manuscrits enluminés de l'ancien fonds de Jumièges, dans: Jumièges, Congrès scientifique du XIIIe centenaire, t. 2, pages 721 à 736 (avec les cotes de toutes les enluminures).
- ↑ Richard Gameson: Hugo Pictor, enlumineur normand dans: Caliers de civilisation médiévale, 2001, volume: 46, pages: 121-138.
- ↑ Charles Antoine Deshayes: L' histoire de l'abbaye de Jumièges, pages: 21, 22,45, 49, 67, 84, 145, 163; Plusieurs auteurs dans le compte-rendu du Congrès de Jumièges, La vie intellectuelle à Jumièges, Annales de Normandie, 1956, volume: 6, no 3, pages: 333-340.
- ↑ Charles Cailhol, « Les drogues médicinales à Jumièges au Xe siècle » dans : Jumièges, Congrès scientifique du XIIIe centenaire, t. 2, p. 704 à 720.
- ↑ J. J. Vernier: Chartes de l'abbaye de Jumièges (825-1204) conservées aux Archives de la Seine-Inférieure, p. 140, 169.
- ↑ André Dubuc, « De la fin du Moyen Âge à la Révolution » dans: Annales de Normandie, 1957, no 2, p. 235 (sur Persée).
- ↑ J. J. Vernier, Chartes de l'abbaye de Jumièges (vers 825 à 1204) conservées aux archives de Seine-Inférieure, t. 1, Paris, Auguste Picard, 1916, Chartes: XXIX, XLI, XLVIII.
- ↑ Lucien Musset, Monachisme d'époque franque et monachisme d'époque ducale en Normandie: Le problème de la continuité, p. 59 dans: Aspect du monachisme en Normandie (IVe – XVIIIe siècles).
- ↑ Archives départementales de Seine-Maritime: Répertoire numérique, série H, tome: 2, 9H 1 à 1807.
- 1 2 Dom Jean Laporte: Les possessions de Jumièges en France, dans: Jumièges, Congrès scientifique du XIIIe centenaire, t. 1, p. 146, Imprimeur : Lecerf, Rouen, 1955.
- ↑ Joachim Darsel, L'amirauté en Normandie (V-Amirauté de Caudebec-Quillebeuf), dans: Annales de Normandie, 1971, vol. 21, no 3, p. 169-172.
- ↑ Jean Mabillon, Histoire de l'abbaye royale de Jumièges, t. 1, p. 177.
- ↑ Dom Joseph Thiron, Les reliques de Jumièges dans: Jumièges, Congrès scientifique du XIIIe centenaire, t. 2, p. 889-899.
- ↑ Th. Bonnin: Journal des visites pastorales d'Eude Rigaud, archevêque de Rouen, page: 584.
- ↑ J. Laporte, « L'état des biens de l'abbaye de Jumièges en 1338 » dans Annales de Normandie, 1959, volume 9, no 2, p. 67-89 (sur Persée).
- ↑ Charles Antoine Deshayes, Histoire de l'abbaye royale de Jumièges, p. 157 et suivantes.
- ↑ Plusieurs sources : J. C. Perrot, « La vie matérielle d'une grande abbaye au XVIIIe siècle », dans: Annales de Normandie, 1956, no 3, p. 315 ; Émile Savalle, Les derniers moines de l'abbaye de Jumièges (sur Gallica).
- ↑ Alfred Canel, Armorial de la province des villes de Normandie, Rouen, A. Péron, 1849, [lire en ligne].
- ↑ G. Demay: Inventaire des sceaux de Normandie, n° 2683, 2684, 2804 à 2809, 2939.
- ↑ Jean Hubert, L'art pré-roman, Les éditions d'art et d'Histoire, Paris, , p. 13
- 1 2 Marie-Laure Pain et Jacques Le Maho, Groupes cathédraux et complexes monastiques : Groupes ecclésiaux de Normandie, Presses Universitaires de Rennes, , 115 p. (ISBN 978-2-7535-4259-4), p. 93.
- ↑ Taylor et Nodier: Voyages pittoresques et romantiques dans l'ancienne France, Normandie no 1, 1820, édition: 1820-1878, vues: 76 à 107 (sur gallica, no 16).
- ↑ Georges Lanfry, L'abbaye de Jumièges, Plans et documents, p. 3, 4, 25, 27.
- ↑ Georges Lanfry: L'abbaye de Jumièges, Plans et documents, page:21.
- ↑ L. M. Michon, Roger Martin du Gard; L'abbaye de Jumièges, page: 18.
- ↑ Maylis Baylé, L'architecture normande au Moyen Âge, t. 2, p. 14-15.
- ↑ L. M. Michon, R. Martin du Gard: L'abbaye de Jumièges, page; 27.
- ↑ Plusieurs sources : L'architecture normande au Moyen Âge, éditions Corlet, t. 1, page 42 par Carol Hertz ; t. 2, pages 14-15 par Maylis Bailé ; Jean Valléry-Radot dans Le deuxième colloque internationale de la Société française d'archéologie (Rouen 13-14 juin 1966), Bulletin monumental, 1969, vol. 127, no 2, p. 125 (en ligne sur Persée) ; Georges Lanfry, L'abbaye de Jumièges, Plans et documents, p. 23.
- ↑ Jean Valléry-Radot, Notre-Dame de Jumièges dans: Le deuxième colloque international de la Société française d'archéologie, Bulletin monumental, 1969, vol. 127, no 2, page: 132 (en ligne sur Persee).
- ↑ Caron Heitz, « Rôle de l'église-porche dans la formation des églises romanes », Cahiers de civilisation médiévale, vol. 34, no 135, , p. 329-334.
- ↑ M. de Boüard; Sur l'architecture normande de l'époque romane, chronologie de la construction de Notre-Dame de Jumièges dans: Annales de Normandie, 1960, vol. 10, p. 83 (controverse sur la datation), en ligne sur Persée
- ↑ L. M. Michon et Roger Martin du Gard, L'abbaye de Jumièges, p. 38, 63.
- ↑ Éliane Vergnoles, Compte rendu de l'ouvrage de Maylis Baylé: La sculpture du XIe siècle à Jumièges…, Bulletin monumental, 1983, volume: 41, pages: 310-311 (en ligne sur Persée).
- ↑ Georges Lanfry: L'abbaye de Jumièges, Plans et documents, page:17
- ↑ Yves Bruand, Le cloître de Jumièges, résumé dans: Bulletin monumental, 1959, vol. 117, no 2, p. 130-131 (en ligne sur Persée).
- ↑ Charles Antoine Deshayes: Histoire de l'abbaye de Jumièges, pages: 199-200.
- ↑ Taylor et Nodier: Voyages pittoresques et romantiques dans l'ancienne France, Normandie 1, 1820-1878, vue: 76 (sur gallica).
- ↑ Mathilde Gardeux: Espace d'assistance, espace de pouvoir, dans: Bulletin du centre d'études médiévales, Auxerre, Hors série no 8, 2015.
- ↑ Jean Valléry-Radot, « La salle capitulaire de Jumièges » dans: Le deuxième colloque international de la Société française d'archéologie, Bulletin monumental, 1969, vol. 127, no 2, page: 142 (en ligne sur Persee).
- ↑ L. M. Michon, Roger Martin du Gard: L'abbaye de Jumièges, pages: 77-78.
- ↑ Répertoire alphabétique des archives de l'abbaye de Jumièges http://jumieges.free.fr/archives_jumieges2.html
- ↑ Nicolas Le Roux .
- ↑ Maison de Courtenay p. 16-17
- ↑ Julien Loth, Histoire de l'abbaye royale de Saint-Pierre de Jumièges, sur gallica.bnf.fr, Rouen, Métérie, 1885, t. III, p. 60.
- ↑ Julien Loth, op. cit., p. 90.
- ↑ Stéphan Perreau, « Hyacinthe Rigaud le peintre des rois », sur hyacinthe-rigaud.over-blog.com, 10 novembre 2012.
- ↑ François de Riviere, Jean Philippe Le Cerf de La Viéville, Éloge des Normands ou Histoire abrégée des grands Hommes de cette province, première partie, Charles Guillaume, Paris, 1748, 132 pages, lire en ligne.
- ↑ Jean Garet (1627-1694), BnF, lire en ligne.
- 1 2 Dictionnaire des moines de Jumièges, Le Canard de Duclair, lire en ligne.
- ↑ Pierre-François Boudier (1704?-1787), BnF, lire en ligne.
- ↑ Notice no PA00100726, sur la plateforme ouverte du patrimoine, base Mérimée, ministère français de la Culture.
- ↑ Ruines de l'abbaye de Jumièges, musée des Beaux-Arts de Rouen.
Voir aussi
Bibliographie
- Gallia Christiana, t. 11, p. 185, 949
- [Bony 1939] Jean Bony, « La technique normande du mur épais, à l'époque romane », Bulletin monumental, t. 98, no 2, , p. 153-188 (lire en ligne)
- Gilles Deshayes, Les éléments lapidaires carolingiens, romans et gothiques de l'abbaye de Jumièges (Seine-Maritime) dans: Delphine Hanquiez: Regards sur les dépôts lapidaires de la France du nord, p. 17-36.
- Charles-Antoine Deshayes, Histoire de l'abbaye royale de Jumièges, Rouen, Baudry, 1829.
- Du Moustier, Neustria Pia, p. 259, 301, 317 à 325
- Dom Michel Germain, Matériaux du Monasticon Gallicanum, ms. Latin 11820 « Regalis abbatiæ Gemmeticensis topographia »
- Dom Hesbert, Jumièges, Congrès scientifique du XIIIe centenaire, (Rouen, 10-), 2 tomes, 108 communications, Rouen, Imprimerie Lecerf, 1955, 1070 p.
- Georges Lanfry, L'abbaye de Jumièges, Plans et documents, Rouen, Imprimerie Lecerf.
- Jacques Le Maho, L'abbaye de Jumièges, Éditions du Patrimoine, coll. « Itinéraires », , 64 p. (ISBN 978-2-85822-395-4, ISSN 1159-1722)
- Reinhard Liess, Der frühromanische Kirchenbau des 11. Jahrhunderts in der Normandie. Analysen und Monographien der Hauptbauten, München, Wilhelm Fink Verlag, 1967.
- Julien Loth, Histoire de l'abbaye royale de Saint-Pierre de Jumièges, Rouen, Ch. Métérie, 1882, t. 1, 2 et 3.
- Jean Mabillon, Histoire de l'abbaye royale de Saint-Pierre de Jumièges, Rouen, C. Métérie, 1882-1885. tome 1 sur Gallica, tome 2 sur Gallica, tome 3 sur Gallica.
- Roger Martin du Gard fut admis à l'École des chartes et obtient le diplôme d’archiviste paléographe en présentant une thèse sur l'abbaye.
- Roger Martin du Gard, « Le plan primitif du chœur de l'église abbatiale de Jumièges », Bulletin monumental, , p. 31
- Louis-Marie Michon et Roger Martin du Gard, L'abbaye de Jumièges, Paris, Édition H. Laurent.
- Lucien Musset, Normandie romane, t. 2, La Haute-Normandie, Éditions Zodiaque, La Pierre qui Vire, 1974, p. 61-123
- Émile Savalle, Les Derniers moines de l'abbaye de Jumièges, Rouen, Imprimerie de D. Brière et fils, 1867, lire en ligne sur Gallica
- Jean Taralon, L'Abbaye de Jumièges, Paris, CNMHS, 1979.
- Olivier Verley, Jumièges, Bonsecours, Point de vues, , 96 p., broché (ISBN 978-2-915548-35-8)
Articles connexes
- Liste des monuments historiques de la Seine-Maritime
- Norville, commune du Pays de Caux
- Les Énervés de Jumièges
- Le moulin de Hauville
- Liste des abbayes de Normandie
Liens externes
- Ressources relatives à l'architecture :
- Ressource relative aux beaux-arts :
- Les chartes originales de l'abbaye de Jumièges jusqu'en 1120, Mathieu Arnoux, Tabularia
- Disparition ou conservation des sources et abandon de l'acte écrit : quelques observations sur les actes de Jumièges, Mathieu Arnoux, Tabularia
- Carmen de fundatione, ruina et restauratione inclyti monasterii Gemmeticensis, Pierre Bouet, Tabularia
- La production éditoriale à Jumièges vers le milieu du Xe siècle, Jacques Le Maho, Tabularia
- L'abbaye de Jumièges, Architecture religieuse en Occident
- Présentation de l'application Jumièges 3D, site officiel de l'abbaye de Jumièges
- Portail de l’architecture chrétienne
- Portail du monachisme
- Portail des monuments historiques français
- Portail de la Seine-Maritime
- Portail du haut Moyen Âge



