Albert Fink

| Naissance | |
|---|---|
| Décès | |
| Sépulture | |
| Nationalité | |
| Formation |
École polytechnique de Darmstadt |
| Activité |
Ingénieur civil |
| Conjoint |
Sallie Moore Hunt |
| Enfant |
Eleanor Fink |
| A travaillé pour |
Baltimore & Ohio Railroad (B&O) Louisville and Nashville Railroad (L&N) |
|---|---|
| Membre de |
Poutre treillis Fink Pont ferroviaire de Green River Pont ferroviaire de Louisville Ancien palais de justice du comté de Jefferson |
Albert Fink est un ingénieur civil américain d'origine allemande, né à Lauterbach (Hesse) le , et mort à Ossining, comté de Westchester, État de New York, le .
Biographie
Il a étudié l'architecture et le génie civil à l'École polytechnique de Darmstadt, et a été diplômé en 1848. Il a émigré aux États-Unis à la fin du printemps 1849.

Il a commencé comme dessinateur pour la compagnie Baltimore & Ohio Railroad (B&O) où travaillent l'ingénieur en chef, Benjamin Henry Latrobe et Wendel Bollman (1814 – 1884). Il est rapidement devenu le principal assistant de Benjamin Henry Latrobe. Dans cette position, il supervisait la conception et la construction des bâtiments et des ponts. Benjamin Latrobe lui a demandé de concevoir des ponts en fer d'une plus grande portée qu'il pourrait utiliser sur les cours d'eau devant être traversés. Ayant étudié le pont conçu par Wendel Bollman pour franchir le Potomac à Harpers Ferry, il en a amélioré la conception.
La construction de la voie entre Cumberland (Maryland) et Wheeling (Virginie-Occidentale) lui a permis de superviser la construction des premiers ponts en fer des États-Unis. En 1852, Benjamin Latrobe lui a confié la conception du pont permettant de franchir la rivière Monongahela à Fairmont (Virginie-Occidentale)[1]. C'est sur ce pont qu'a été utilisé pour la première fois la poutre à treillis Fink. C'était à l'époque le plus grand pont en fer des États-Unis. Puis la section Grafton - Parkersburg (Virginie-Occidentale) a pu commencer dont il a supervisé la construction des ponts et des tunnels. Pendant cette période, il a aussi été ingénieur conseil pour la compagnie Norfolk and Petersburg Railway qui construisait le pont de Norfolk (Virginie).
%252C_ORIGINAL_FINK_TRUSS_BRIDGE%252C_1852._-_Baltimore_and_HAER_WVA%252C25-FAIR.V%252C1-2.tif.jpg)
Dessins du Monongahela Bridge 
Monongahela Bridge en 1852
Albert Fink a reçu le brevet pour sa poutre-treillis le .

Il quitte la B&O en 1857 pour devenir l'assistant de George McLeod, ingénieur en chef de la compagnie Louisville and Nashville Railroad (L&N). Il a continué à construire de nombreux ponts, parmi lesquels, le pont à cinq travées en poutre treillis Fink de Green River au sud de Munfordville qui a été le second plus long pont en fer des États-Unis. En 1859 il a été nommé ingénieur en chef de la compagnie Louisville and Nashville Railroad. Dans le même temps il a terminé la construction du palais de justice du comté de Jefferson (Kentucky) qui était resté inachevé pendant 20 ans.


Il a ensuite construit un pont à Nashville pour franchir la rivière Cumberland.
Pendant la guerre de Sécession, Albert Fink et son corps d'ingénieurs ont été occupés à réparer les dégâts faits au cours des raids confédérés.
À la fin de la guerre, il a été nommé directeur général de la compagnie Louisville and Nashville Railroad. Il s'est remarié le avec Sallie Moore Hunt, de Louisville, dont il a eu une fille Eleanor.
En 1870 est ouvert le pont au-dessus de l'Ohio à Louisville qui avec une longueur d'environ 1600 m était le plus long au moment de sa réalisation (il a été remplacé en 1918-1919). Après sa construction il est nommé vice-président de la compagnie, en 1871.
À la fin de la crise bancaire de mai 1873, il a étudié rapidement les coûts du transport en établissant des taux pour le fret à partir d'une comptabilité et rédigé deux mémoires sur le sujet désignés sous le titre "The Fink Report on Costs of Transportation".
Pendant cette période il a cherché la manière d'améliorer la compétition entre les compagnies de chemine de fer et aussi leur coopération. Il a conçu un plan pur la Southern Railway and Steamship Association qui a été formée à Atlanta et dans laquelle il est nommé commissaire général. Il a alors démissionné son poste de vice-président. Pendant deux ans il a travaillé à stabiliser les tarifs de fret entre les 25 compagnies. Il a été considéré comme le père des études économiques et des statistiques des chemins de fer américains ("Father of Railway Economics and Statistics").
Il fait un voyage en Allemagne en . Après son retour à New York, les quatre présidents des compagnies principales de chemin de fer, Vanderbilt, Jewett (en), Scott (en), et Garrett (en), lui ont demandé de rester dans la ville pour organiser le trafic en direction de l'ouest. Il accepté cette position de commissaire pour diriger avec succès ces lignes.
Il est élu président de American Society of Civil Engineers en 1878.
L' Interstate Commerce Act de 1887 qui commence la période de régulation par le gouvernement américain rend son travail moins nécessaire. Par ailleurs, des problèmes de santé l'ont conduit à démissionner de son poste de commissaire de la Trunk Line en 1889. Il a passé sa retraite essentiellement dans sa maison du Kentucky à faire des études et des recherches.
Il est mort dans un sanatorium situé sur l'Hudson. Il a été inhumé à Cave Hill Cemetery[2], à Louisville.
Licences
- Licence no 10,887 du , Truss Bridge, accordée à Albert Fink, de Baltimore, Maryland (voir)
- Licence no 16,728 du , Bridge-Truss, accordée à Albert Fink, de Parkersburg, Virginie (voir)
- Licence no 63,714 du , Improved Bridge, accordée à Albert Fink, de Louisville, Kentucky (voir)
- Licence no 116,787 du , Improvement in bridge-trusses, accordée à Albert Fink, de Louisville, Kenticky (voir)
- Complément de la licence no 9,575 du , Bridge, accordée à Albert Fink, de New York, N. Y. (voir)
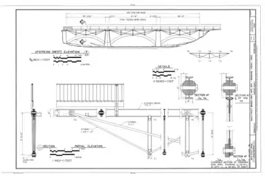
Derniers survivants des ponts en poutres-treillis Fink
Des ponts construits avec des treillis Fink, il ne reste plus que deux exemples :
- pont de Zoarville, construit par Smith & Latrobe Company à Canal Dover (Ohio) en 1868, pour franchir la rivière Tuscarawas, déplacé en 1905[3]
- pont construit en 1870 comme pont ferroviaire de la Norfolk and Western Railroad, puis transformé en pont routier en 1893. Il a été déplacé dans le parc de Riverside à Lynchbourg où il sert de passerelle piétonnière[4].
Le pont routier de Hamden, comté de Hunterdon, Nex Jersey, a été démoli en 1978 à la suite d'un accident[5].
Le pont de Main Street de Phoenixville comprenait deux parties : un pont routier en maçonnerie construit en 1847 auquel a été adjoint en 1874 un pont ferroviaire en poutre treillis Fink. Le pont en treillis Fink a été déplacé[6].

Pont de Zoarville %252C_Flemington%252C_Hunterdon_County%252C_NJ_HAER_NJ%252C10-CLIN.V%252C1-2.tif.jpg)
Pont de Hamden, comté de Hunterdon ![Main Street Bridge, Phoenixville]](./lossy-page1-383px-Main_Street_Bridge%252C_Spanning_French_Creek%252C_Phoenixville%252C_Chester_County%252C_PA_HAER_PA%252C15-PHOEN%252C1-_(sheet_3_of_3).tif.jpg)
Main Street Bridge, Phoenixville]
Notes et références
- (en) Cet article est partiellement ou en totalité issu de l’article de Wikipédia en anglais intitulé « Albert Fink » (voir la liste des auteurs).
- ↑ Structure magazine : Frank Griggs, Jr., Monongahela River Bridge, avril 2015
- ↑ Find A Grave - Cave Hill Cemetery : Albert Fink (1827-1897)
- ↑ Zoarville Station Bridge at Camp Tuscazoar
- ↑ Historic Bridges : Fink Deck Truss Bridge
- ↑ Fink Truss Bridge sur Structurae.
- ↑ Historic Bridge : Main Street Bridge
Annexes
Bibliographie
- Fink, Albert, dans The Encyclopedia Americana, Volume XI, 1920 (lire en ligne)
- Fink, Albert, dans Appletons' Cyclopædia of American Biography, volume II, 1900 (lire en ligne)
- John E. Kleber, Fink, Albert, dans The Encyclopedia of Louisville, p. 290, 530, University Press of Kentucky, Lexington, 2001 (ISBN 978-0-8131-2100-0) (lire en ligne)
- Ellen Fink Milton, A biography of Albert Fink, Commercial Controls Corp, Rochester, 1951 ; pp. 102
Liens externes
- ASCE : Albert Fink (1827-1797)
- ASCE : Fink Deck Truss Bridge
- ASCE : Fink Through Truss Bridge*
- ASCE : Baltimore & Ohio Railroad Roundhouse & Shop Complex
- Portail de l’architecture et de l’urbanisme
- Portail du chemin de fer en Amérique du Nord
- Portail des ponts
- Portail des États-Unis
- Portail du Grand-duché de Hesse