Bâtiment du Bauhaus (Dessau)
Bauhaus Dessau

| Partie de | |
|---|---|
| Destination initiale |
École d'arts appliqués |
| Destination actuelle |
Fondation artistique et scientifique |
| Style | |
| Architecte | |
| Construction |
1925-1926 |
| Inauguration |
1926 |
| Restauration |
2006 |
| Commanditaire |
Commune de Dessau |
| Propriétaire |
Stiftung Bauhaus Dessau |
| Patrimonialité | |
| Site web |
| Identifiant | |
|---|---|
| Année d'inscription |
| Pays | |
|---|---|
| Land | |
| Commune | |
| Adresse |
Gropiusallee 38, 06846 Dessau |
| Coordonnées |
51° 50′ 21″ N, 12° 13′ 36″ E |
|---|
|
|
Le bâtiment du Bauhaus de Dessau est un ensemble architectural moderne situé à Dessau-Roßlau, dans le land de Saxe-Anhalt en Allemagne et destiné originellement à accueillir l'école d'art, de design et d'architecture du Bauhaus. Il a été construit entre 1925 et 1926 selon les plans de l'architecte et directeur du Bauhaus Walter Gropius pour accueillir l'école auparavant située à Weimar et contrainte de déménager à Dessau en 1925.
Œuvre majeure du courant fonctionnaliste, inscrit au patrimoine mondial par l'UNESCO depuis 1996, ce bâtiment a assis la réputation du Bauhaus comme icône de la modernité. Il est en effet considéré comme l'un des plus influents édifices de l'architecture moderne et revêt une importance majeure dans l'histoire culturelle du XXe siècle.
L'édifice est composé de formes architecturales particulièrement abstraites et simples, typiques de l'architecture moderne. Il met également en lumière le désir du Bauhaus — et du courant moderne — de développer un nouveau type d'architecture, recourant aux matériaux contemporains que sont le béton armé, le verre ou encore l'acier combinés à de nouvelles méthodes de construction, à l'image des murs-rideaux en verre.
Rénové, il accueille par le biais de la fondation Bauhaus Dessau des artistes, des chercheurs et des ateliers pédagogiques.
L'école du Bauhaus
Histoire de l'école et du mouvement

Entre 1919 et 1933, l’école du Bauhaus, d’abord basée à Weimar puis à Dessau, révolutionna les conceptions et pratiques architecturales et esthétiques. Les bâtiments créés et décorés par les professeurs de cette école (Henry Van de Velde, Walter Gropius, Hannes Meyer, László Moholy-Nagy et Vassily Kandinsky) lancèrent le Mouvement moderne, qui modela une grande partie de l’architecture du XXe siècle et au-delà[1].
D'abord implantée à Weimar, l'école doit, sous la pression politique locale, déménager ; elle est accueillie à une centaine de kilomètres de là, à Dessau, par la coalition sociale-démocrate au pouvoir, à une époque où l'État libre d’Anhalt devient l'un des centres industriels de l'Allemagne de Weimar. Elle accompagne donc, en tant qu'école de design, le développement industriel de la région[2].
Son créateur, Walter Gropius, souhaite que l'art comme l'architecture évoluent, ce qui se traduit dans le domaine architectural tant par le recours à des matériaux modernes (béton armé, verre, métal) qu'à des méthodes (mur-rideau, ossature métallique, etc.) et une approche innovantes[3],[4] : les bâtiments doivent être conçus selon leur fonction et non selon une vaine recherche esthétique, rejetant ainsi les formes architecturales traditionnelles ; il est fait recours à l'abstraction, les formes sont réduites à leur plus simple expression : un cubisme blanc[5]. Cette approche se double d'un idéal humaniste et de réforme sociale visant à créer un environnement « moderne à visage humain ». L'école du Bauhaus, devenue un lieu d'échange pour ces idées nouvelles, attire nombre de professeurs et d'étudiants désireux de s'affranchir de la tradition, parmi lesquels Vassily Kandinsky, Marcel Breuer, László Moholy-Nagy, Ludwig Mies van der Rohe, etc. Tous ont laissé une empreinte importante dans l'art et l'architecture du XXe siècle[1],[4]. Le mouvement a contribué à briser « le pouvoir de la tradition » en matière d'architecture, de design comme de publicité, en ayant recours à un « nouveau langage formel » encore influent de nos jours[4].
En septembre 1932, le Parti nazi — principale force politique municipale — vote la fermeture de l'école de Dessau, laquelle se réfugie à Berlin pendant quelques mois avant de fermer définitivement[3]. Ceci n'empêche pas le Bauhaus de devenir un symbole de la modernité artistique et architecturale, tant pour son héritage théorique que pour ses réalisations concrètes, dont le bâtiment du Bauhaus, l'un des représentants fondamentaux de l'architecture moderne. L'édifice est important non seulement pour l'art et la culture mais également en tant que témoin de l'histoire des idées au XXe siècle[1].
Perception au sein de l'Allemagne de l'Est
Au sortir de la Seconde Guerre mondiale, le Bauhaus est avant-tout perçu comme un mouvement étranger au national-socialisme, voire comme une victime de celui-ci. Il n'est ainsi pas entaché de soupçons, y compris au sein de la future Allemagne de l'Est — où se trouve désormais la ville de Dessau — et devient ouvertement le modèle de nouvelles écoles d'architecture et de design. Mais rapidement, les forces d'occupation soviétiques imposent les principes du réalisme socialiste et s'opposent à l'héritage intellectuel du Bauhaus[6]. Ce rejet est renforcé par le souvenir de l'émigration aux États-Unis de Walter Gropius ou Ludwig Mies van der Rohe, ce qui faisait d'eux des opposants intellectuels au nouveau régime communiste[7].
Cependant, dès les années 1960 s'opère un timide retour en grâce du mouvement et de ses préceptes, dans le cadre des grands projets urbanistiques du pays, à l'image de la nouvelle ville de Halle (Halle-Neustadt) conçue par Richard Paulick, un ancien du Bauhaus[6]. Le Bauhaus devient incontournable dans le développement de « logements fonctionnels et bon marché »[7]. La réhabilitation du mouvement n'intervient réellement qu'à partir de 1971, lorsque l'État se fixe comme objectif d'éliminer le problème du logement avant 1990, au moment même où celui-ci commence à faire l'objet de critiques à l'Ouest. En parallèle apparaissent les premières recherches sur le Bauhaus, non sans quelques obstacles idéologiques. L'année 1976 voit officiellement la création du Centre scientifique et culturel Bauhaus Dessau. Celui-ci organise expositions, conférences et entreprend la constitution d'une collection[6].
Histoire
Implantation à Dessau

En 1925, l'école du Bauhaus est contrainte par les conservateurs de quitter Weimar. Elle s'implante alors dans la ville sociale-démocrate et libérale de Dessau, en plein essor industriel[2]. Le directeur Walter Gropius y entreprend la création d'un bâtiment pour accueillir l'école, financé par la municipalité[3] ; le terrain choisi est un espace naturel à l'écart du centre ancien[8]. Le bâtiment du Bauhaus est construit à partir de 1925[9] et inauguré le 4 décembre 1926[8].
Déjà à l'époque, plusieurs centaines de visiteurs venus du monde entier, viennent admirer chaque année ce qui était alors la quintessence de l'architecture moderne en Allemagne : le bâtiment fait ainsi l'objet de multiples expositions et publications[10].
Opposition nazie
Mais en 1931, plus d'un an avant l'accession à la chancellerie d'Hitler, le Parti nazi devient l'un des principaux groupes politiques au conseil municipal de Dessau. Le premier point de leur profession de foi était ainsi dirigé contre l'école[11] :
« Annulation immédiate de toutes les dépenses liées au Bauhaus. Les enseignants étrangers doivent être licenciés sans préavis, car il est de la responsabilité d'un bon dirigeant de ne pas porter atteinte aux intérêts de ses citoyens ; or les ressortissants allemands meurent de faim pendant que des étrangers sont grassement payés par eux, les contribuables affamés. (...) La démolition du Bauhaus doit être entreprise immédiatement. »
C'est ainsi que seuls le maire Hesse et quatre communistes votent le 22 août 1932 contre la motion déposée par les membres du parti national-socialiste visant à fermer le Bauhaus, qui est effective en septembre 1932[12].
Menacé de destruction par les nazis qui n'y voit qu'un « sordide palais de verre orientalisant », le bâtiment du Bauhaus est tout d'abord pillé (la documentation présente sur place, les œuvres d'art, l'ameublement, etc.) avant de devenir tour à tour une école de filles, une école pour les cadres du parti national-socialiste puis une annexe du complexe militaro-industriel de la société Junkers[10]. Si les nazis tiennent leur revanche symbolique sur l'école, vecteur de « contamination judéo-bolchevique », ils se contentent de rajouter un toit traditionnel sur l'aile dévolue aux ateliers-logements des étudiants[2]. D'importants travaux de réparation sont entrepris entre 1934 et 1935[4].
Reconverti en camp de travail pour prisonniers de guerre[10] et bien que recouvert d'une peinture de camouflage en 1941, le bâtiment n'échappe pas aux bombardements de la Seconde Guerre mondiale[4]. C'est notamment le cas à la suite d'une attaque aérienne en 1943 qui voit la destruction du mur-rideau de verre[10], à la suite de laquelle il n'est que déblayé et sommairement réparé. Aucun effort de rénovation n'est entrepris avant 1961[4].
Réhabilitation progressive
Au sortir de la guerre, Dessau est en zone d'occupation soviétique, future Allemagne de l'Est. Utilisé tout d'abord comme refuge pour personnes sans-abri puis comme école pour les enfants déplacés[10], l'édifice n'est reconnu qu'à compter de 1972 et son classement en tant que monument historique[3],[13]. C'est dans le contexte est-allemand de réhabilitation du mouvement Bauhaus, au cours des années 1960 et surtout 1970, que la restauration du bâtiment est envisagée, en 1975, par le gouvernement. Le bâtiment ainsi rénové est inauguré en décembre 1976 et le Bauhaus intègre désormais la culture officielle de la RDA[6].
L'inscription au patrimoine mondial par l'UNESCO en 1996 des sites du Bauhaus en Allemagne permet ensuite la mise en place d'une campagne de rénovation plus poussée, terminée en 2006[3],[13].
Depuis 1994, le bâtiment est géré par la fondation Bauhaus Dessau (en allemand Stiftung Bauhaus Dessau) dont la mission est tout à la fois patrimoniale (entretien du complexe, communication, attractivité touristique) et pédagogique, en s'assurant que le lieu redevienne un centre de recherche et d'enseignement expérimental[3],[13]. Des ateliers-logements étudiants rénovés peuvent par ailleurs être loués à la nuitée[14], de même qu'il est possible de déjeuner, un restaurant étant aménagé dans l'ancien réfectoire[15].
Conception

Le bâtiment a été conçu par le fondateur de l'école et architecte Walter Gropius sur commande de la ville de Dessau, qui avait accepté d'accueillir l'école après la fermeture du site originel de Weimar[16]. Avant cette réalisation, Walter Gropius a conçu en 1911 — aux côtés de Adolf Meyer — l'usine Fagus à Alfeld (Allemagne) qui marque un jalon important dans l'histoire de l'architecture moderne[17], notamment par ses verrières révolutionnaires et son approche fonctionnaliste[18]. Parmi les innovations apportées par la construction de l'usine Fagus, notamment la structure de béton armé dotée d'un parement de brique, la place importante laissée aux vitrages et l'édification de toits-terrasses recouverts de tuiles asphaltées, plusieurs seront reprises par Gropius lors de la conception du bâtiment du Bauhaus[3].
Pour la réalisation de celui-ci, Walter Gropius est aidé par Ernst Neufert, l'architecte en chef de son cabinet d'architecture et par Carl Fieger qui réalise les premières esquisses d'un bâtiment composé de trois ailes reliées entre elles[8].
L'équilibre entre les trois ailes de l'édifice montre comment Walter Gropius a actualisé « son ancienne vision de la réconciliation entre l'homme et la technique », en recourant librement aux principes De stijl de Theo van Doesburg. On y retrouve d'ailleurs l'influence probable de Mies van der Rohe, auquel Gropius a demandé en 1923 le plan de son « pavillon en béton armé » dont on retrouve les trois axes distincts[16].
Description

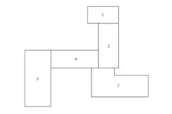
Le bâtiment du Bauhaus présente un plan asymétrique rappelant un triskèle, symbole à trois protubérances évoquant une symétrie de groupe cyclique[3]. Il ne présente pas une façade traditionnelle mais se déploie donc en trois ailes[16] :
- une première aile est réservée aux ateliers : situés dans un corps de bâtiment de trois niveaux, la façade de verre permet d'y faire entrer un maximum de lumière naturelle — il est question de « rigoureuse clarté »[19] ;
- une deuxième aile abrite les locaux de l'école technique — voulue par la municipalité, elle vise à former des apprentis — dans un corps de bâtiment de trois niveaux également ;
- une troisième aile abrite tout à la fois un ensemble à cinq niveaux regroupant les ateliers-logements des étudiants et des jeunes maîtres ainsi qu'un corps de bâtiment à un seul niveau regroupant les lieux de sociabilité — soit l'auditorium, la scène et le réfectoire — et faisant la jonction entre les logements et les ateliers ;
- enfin, un pont relie les deux premières ailes et abrite l'administration et le bureau d'architecture de Gropius[3].
Le bâtiment dévolu aux ateliers-logements des étudiants — et de certains professeurs — est appelé Prellerhaus (maison Preller), du nom du concepteur de l'édifice équivalent sur l'ancien site du Bauhaus à Weimar, Louis Preller. Elle regroupe 28 studios de 20 m2 chacun[14].
L'un des éléments les plus remarquables du bâtiment du Bauhaus reste son mur-rideau de verre ornant la façade des ateliers — à l'inverse de l'usine Fagus où la façade dispose toujours de piliers, certes encadrés de grandes parois de verre — qui se prolonge jusque dans les angles de l'édifice. Il est ainsi possible de voir à l'intérieur de l'édifice et notamment sa structure porteuse[3] tout en donnant aux étages l'impression de « flotter »[8].
L'ensemble présente un équilibre minutieux des éléments verticaux et horizontaux, disposés dans une « stabilité asymétrique » dynamique[16].

D'un point de vue technique, il est constitué d'une structure de béton armé associée à un important système d'écrous et de vis, l'ensemble étant recouvert d'un toit-terrasse de pierre et de fer[4].
Le bâtiment reprend le concept de Gesamtkunstwerk, d'œuvre d'art totale cher à Gropius en ce que l'aménagement intérieur, l'ameublement de même que l'éclairage étaient produits au sein même des ateliers de l'école[3], ce qui est particulièrement visible dans le bâtiment abritant l'auditorium et le réfectoire[4].
D'une superficie très importante — plus de 28 000 m2 —[8], l'ensemble présente quelques défauts de construction et notamment un chauffage insuffisant et sous dimensionné, une amplitude thermique due aux larges surfaces vitrées non isolées ainsi que de fréquentes fuites depuis les toits-terrasses mal entretenus. Surtout, les étudiants comme les personnels se plaignent d'un manque de vie privée dû au recours important au verre[10].
Intérêt patrimonial
Le Bauhaus représente le désir de développer une architecture moderne en utilisant les nouveaux matériaux de l’époque (béton armé, verre, acier) et méthodes de construction (constructions à ossature, façades en verre). Basée sur le principe de la fonction, la forme des constructions rejette les symboles historiques et traditionnels de représentation. Suivant un processus strictement abstrait, les formes architecturales — aussi bien la structure subdivisée du bâtiment que les éléments structurels individuels — sont réduites à leurs formes élémentaires, primaires ; elles tirent leur expression, caractéristique de l’architecture moderniste, d’une composition de cubes imbriqués avec une transparence spatiale suggestive[1].
Le Bauhaus fut un centre accueillant des idées nouvelles et par conséquent attira des architectes et artistes progressistes. L’école du Bauhaus est devenue, dans le monde entier, le symbole de l’architecture moderne, en raison de sa théorie éducative et de ses constructions, et est inséparable du nom de Walter Gropius. Hannes Meyer, son successeur comme directeur du Bauhaus, réalisa l’idée du travail collectif sur un projet de construction, dans le cadre de la formation au sein du département d’architecture du Bauhaus. Ces bâtiments représentent une qualité architecturale qui découle d’une méthodologie conceptuelle fondée sur la science et d’une conception fonctionnelle-économique associée à des objectifs sociaux. Le Bauhaus lui-même et les autres bâtiments conçus par les maîtres du Bauhaus sont des représentants fondamentaux du modernisme classique et, en tant que tels, sont des éléments représentatifs du XXe siècle. Leur constante grandeur artistique est un rappel du projet encore inachevé d’une « modernité à visage humain », chercha à utiliser les ressources techniques et intellectuelles à sa disposition non pas d’une manière destructrice, mais pour créer un cadre de vie digne des aspirations humaines[1].
Le bâtiment du Bauhaus de Dessau est une réalisation fondamentale de l'avant-garde artistique en Europe. Il manifeste un « renouveau radical de l'architecture et du design ». Ce monument est tout à la fois l'un des premiers et des plus importants représentants de l'architecture moderne, et une œuvre majeure du courant fonctionnaliste « la puissance de son expression artistique n'est contestée par aucun autre bâtiment fonctionnaliste ». Il revêt de ce fait une importance majeure dans l'histoire culturelle du XXe siècle. L'édifice rompt avec la tradition en ce qu'il se compose de formes architecturales particulièrement abstraites et simples : « une composition de cubes interpénétrants dans une transparence spatiale suggestive », typique de l'architecture moderne[4]. En 1954, Sigfried Giedion y voit le premier bâtiment à employer « une nouvelle et radicale conception de l'espace »[10].
Considéré comme l'œuvre la plus convaincante de Gropius avec l'usine Fagus[20], son « chef-d'œuvre »[19], le bâtiment du Bauhaus est aujourd'hui l'un des plus — si ce n'est le plus — influent édifice architectural de l'époque moderne, une « Mecque » tant pour les étudiants, les praticiens que les amateurs d'architecture[10].
Galerie
- Vue d'ensemble des différents bâtiments, excepté les ateliers.
Le pont reliant les deux ailes des ateliers et d'enseignement.- Vue intérieure.
Vue intérieure.- La Prellerhaus ou bâtiment des ateliers-logements.
- La Prellerhaus (détail).
Le mur-rideau de verre des ateliers.
Pour approfondir
Bibliographie
: document utilisé comme source pour la rédaction de cet article.
- (de) Kirsten Baumann, Bauhaus Dessau : architecture, design, concept = Architektur, Gestaltung, Idee, Berlin, Jovis, , 143 p. (ISBN 978-3-939633-11-2 et 3939633119, OCLC 153776959, lire en ligne).
- (de) Regina Bittner, Armin Linke et Heidi Specker, Neue Meisterhäuser in Dessau, 1925-2014: Debatten, Positionen, Kontexte (ISBN 9783944669618 et 3944669614, OCLC 980907800, lire en ligne).
- Magdalena Droste et Bauhaus-Archiv (Berlin) (trad. de l'allemand), Bauhaus : 1919-1933, Köln/Paris/impr. en Pologne, Taschen, 549 p. (ISBN 978-3-8365-6553-0 et 3836565536, OCLC 1085887199, lire en ligne).

- Magdalena Droste (trad. de l'allemand), Le Bauhaus : 1919-1933, réforme et avant-garde, Cologne, Taschen, , 96 p. (ISBN 978-3-8228-3648-4 et 3-8228-3648-6, OCLC 469464578, lire en ligne).
- Peter Feierabend, Janine Fiedler, Ute Ackermann et Jacques Aron (trad. de l'allemand), Bauhaus, Cologne, Könemann, , 639 p. (ISBN 3-8290-2591-2 et 9783829025911, OCLC 45124225, lire en ligne).
- Peter Gössel et Gabriele Leuthäuser, L'Architecture du XXe siècle, Taschen, , 600 p. (ISBN 978-3836570893).
- Gilbert Lupfer et Paul Sigel (trad. de l'allemand par Bénédicte Abraham), Gropius : 1883-1969 - Prédicateur de la nouvelle forme, Köln/Paris, Taschen, coll. « Petite collection », , 96 p. (ISBN 978-3-8365-4433-7).
- (de) Claudia Perren, Christin Irrgang, Ingolf Kern et Stiftung Bauhaus Dessau, Das Bauhausgebäude in Dessau, Leipzig Spector Books, , 175 p. (ISBN 978-3-95905-126-2 et 3959051263, OCLC 987368595, lire en ligne).
- (de) Stiftung Bauhaus Dessau, Welterbestätte Bauhaus, Leipzig Spector Books, , 176 p. (ISBN 978-3-95905-153-8 et 3959051530, OCLC 989774959, lire en ligne).
- (de) Wolfgang Thöner, Das Bauhaus : Führer durch seine Bauten in Dessau, Ed. RK, , 46 p. (ISBN 3-934388-19-1 et 9783934388192, OCLC 76622615, lire en ligne).
- (de) Wolfgang Thöner, Die Meisterhäuser in Dessau, Spector Books, (ISBN 978-3-944669-76-2 et 3-944669-76-2, OCLC 907088270, lire en ligne).
Vidéographie
- [vidéo] « Le Bauhaus de Dessau », Frédéric Compain (réalisateur) et Stan Neumann sur Arte, , 28 min.
Articles connexes
Liens externes
Références
- 1 2 3 4 5 UNESCO (contenu disponible sous licence CC-BY-SA IGO 3.0), « Bauhaus et ses sites à Weimar, Dessau et Bernau (description) », sur le site du Centre du patrimoine mondial (consulté le ).
- 1 2 3 Xavier de Jarcy, « Balade à Dessau parmi les sites du Bauhaus classés à l'Unesco », sur telerama.fr, (consulté le ).
- 1 2 3 4 5 6 7 8 9 10 11 (en) Alyn Griffiths, « Walter Gropius designed school in Dessau to reflect the Bauhaus values », sur dezeen.com, (consulté le ).
- 1 2 3 4 5 6 7 8 9 Conseil international des monuments et des sites (ICOMOS), « Évaluation de l'organisation consultative - Le Bauhaus », sur le site de l'Unesco, (consulté le ).
- ↑ Droste 2007, p. 7.
- 1 2 3 4 (de) Wolfgang Thöner (directeur de la collection de la fondation Bauhaus Dessau), « Im Schatten der Parteiideologie » [« Dans l'ombre de l'idéologie du parti »], Der Tagesspiegel, (lire en ligne, consulté le ).
- 1 2 Thomas Wieder, « À Weimar, retour aux fondations du Bauhaus », Le Monde, (lire en ligne, consulté le ).
- 1 2 3 4 5 (en) R. Stephen Sennott, Encyclopedia of 20th century architecture, New York, Fitzroy Dearborn, , 1525 p. (ISBN 1-57958-243-5, 978-1-57958-243-2 et 1-57958-433-0, OCLC 52688206, lire en ligne), p. 121.
- ↑ (en) Chris Moss, « 100 years of Bauhaus: Berlin and beyond », sur theguardian.com, (consulté le ).
- 1 2 3 4 5 6 7 8 (en) R. Stephen Sennott, Encyclopedia of 20th century architecture, New York, Fitzroy Dearborn, , 1525 p. (ISBN 1-57958-243-5, 978-1-57958-243-2 et 1-57958-433-0, OCLC 52688206, lire en ligne), p. 123.
- ↑ (de) Sebastian Neurauter, Das Bauhaus und die Verwertungsrechte : eine Untersuchung zur Praxis der Rechteverwertung am Bauhaus 1919-1933, Tübingen, Mohr Siebeck, , 528 p. (ISBN 978-3-16-152477-6 et 3161524772, OCLC 931012003, lire en ligne), p. 426.
- ↑ (de) « 100 Jahre Bauhaus – 14 Jahre praktizierte Moderne », sur le site internet du GAT, le portail de Styrie pour l'architecture et l'habitat, (consulté le ).
- 1 2 3 (en) « Bauhaus Building by Walter Gropius (1925–26) », sur www.bauhaus-dessau.de (consulté le ).
- 1 2 (en) « Stay overnight at the Bauhaus – Stay in a World Cultural Heritage Site », sur www.bauhaus-dessau.de (consulté le ).
- ↑ (en) « Gastronomy », sur www.bauhaus-dessau.de (consulté le ).
- 1 2 3 4 Droste 2007, p. 46 & 47.
- ↑ Droste 2007, p. 10.
- ↑ (en) UNESCO, « Fagus Factory in Alfeld », sur UNESCO World Heritage Centre (consulté le ).
- 1 2 Hervé Gauville, « Le Bauhaus à Dessau. Maisons de maîtres. », sur Libération.fr, (consulté le ).
- ↑ Droste 2007, p. 47.
- Portail de l’architecture et de l’urbanisme
- Portail de l’Allemagne
- Portail du patrimoine mondial

