Basilique des Quatre-Saints-Couronnés
| Basilique des Quatre-Saints-Couronnés | |
| |
| Présentation | |
|---|---|
| Nom local | Santi Quattro Coronati |
| Culte | catholique |
| Type | Basilique |
| Rattachement | Diocèse de Rome (siège) |
| Début de la construction | IVe siècle |
| Style dominant | Carolingien |
| Site web | Site officiel |
| Géographie | |
| Pays | |
| Région | Latium |
| Ville | Rome |
| Coordonnées | 41° 53′ 18″ nord, 12° 29′ 54″ est |
La basilique des Quatre-Saints-Couronnés (Basilica dei Santi Quattro Coronati) est un édifice religieux catholique de Rome.
L'église remonte au IVe siècle (ou Ve siècle) et est dédiée à quatre martyrs et saints anonymes[1] dit les « Quatre Saints couronnés ».
Le complexe de la basilique, avec ses deux cours, le Palais Cardinal fortifié comprenant la chapelle Saint-Silvestre et le monastère avec son cloître cosmatesque, est construit dans un quartier de Rome resté vert et silencieux, entre le Colisée et la basilique Saint-Jean-de-Latran.
La cour de la basilique donne accès à la chapelle Saint-Sylvestre, construite en 1246 et décorée de somptueuses fresques de maîtres byzantins.
Les Quatre-Saints-Couronnés
Le nom des « Quatre Saints Couronnés » n'était pas connu lors de construction de l'église, seulement leur nombre et qu'ils étaient des martyrs puisque la couronne de palmes est un ancien symbole du martyre.
D'après la Passion de Saint-Sébastien, les quatre saints sont des soldats qui ont refusé de sacrifier à Asclépios et sont exécutés sur ordre de l'empereur Dioclétien (284-305). Les corps des martyrs sont enterrés dans le cimetière de l'Église Santi Marcellino e Pietro al Laterano, sur la Via Labicana, par le pape Miltiade et par saint Sébastien (dont le crâne est conservé dans l'église). Miltiade décide alors que les martyrs doivent être vénérés sous les noms de Claudius (Claude), Nicostratus (Nicostrate), Simpronianus (Symphorien) et Castorius - et un cinquième, Simplicius (Simplice) - qui sont ceux de cinq maçons martyrs de Pannonie.
Les corps des martyrs sont conservés dans la crypte, dans quatre anciens sarcophages. Selon une inscription datée de 1123, la tête de l'un des quatre martyrs, est enterré dans l'église Sainte-Marie in Cosmedin.
Histoire
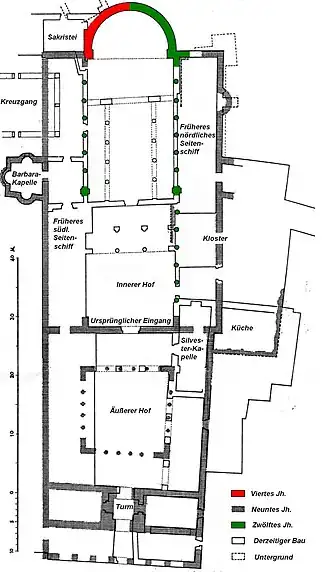
La tradition indique que la première église est commencée par le pape Miltiade, au IVe siècle, sur le côté nord du Cælius.
C'est l'une des premières églises de Rome, construite sur le Titulus Aemilianae, du nom de la fondatrice, qui a probablement possédé une villa romaine complexe dont les fondations sont manifestes sous l'église. L'église est achevée à la fin du VIe siècle et en raison de sa proximité du Palais du Latran, résidence papale médiévale, elle est devenue importante dès ce jour.
La première rénovation a lieu sous le pontificat de Léon IV (847-855), qui construit la crypte sous la nef, ajoute des bas-côtés, ferme la cour devant la façade, et construit le clocher et les chapelles Sainte-Barbe et Saint-Nicholas. La nouvelle basilique remarquable, de style carolingien, a 95 m de long et 50 m de large.

Cette église est mise à feu et détruite par les troupes musulmanes de Robert Guiscard au cours du sac de Rome de 1084. Au lieu de reconstruire la basilique d'origine à l'identique, le pape Pascal II construit une petite basilique avec deux cours, l'une en face de l'autre, la première correspond à la cour originale du IXe siècle, tandis que la deuxième est située sur la première partie de la nef. Les deux bas-côtés sont intégrés dans le Palais Cardinal (à droite) et dans le monastère bénédictin fondé par Pascal lui-même (à gauche). L'abside d'origine de la basilique, est toutefois préservée et semble trop grande pour la nouvelle église, dont la nef a été divisée en trois parties par des colonnes.
La nouvelle église est consacrée le 20 janvier 1116.
Au XIIIe siècle, un cloître cosmatesque est ajouté. Le Palais Cardinal est agrandi par le cardinal Stefano Conti, neveu du pape Innocent III. Le Cardinal Conti transforme également le palais en forteresse, pour protéger les papes dans le Latran durant le conflit avec les empereurs Hohenstaufen. En 1247, la chapelle Saint-Sylvestre, au rez-de-chaussée de la forteresse, est consacrée. Elle contient des fresques représentant les histoires du pape Sylvestre Ier et l'empereur Constantin Ier, dont le baptême de l'empereur et la Donation de Constantin. Peint dans un climat de luttes politiques entre le pape Innocent IV et du fraîchement excommunié Frédéric II du Saint-Empire, les fresques sont destinées à souligner le désir de souveraineté de l'Église (le pape Sylvestre) sur l'Empire (Constantin).
En 1338, elle devient une possession de l'abbaye de Sassovivo.
Quand les papes déménagent à Avignon (XIVe siècle), le Palais Cardinal tombe en ruine. Aussi, dès le retour des Papes à Rome avec le pape Martin V, une restauration est nécessaire. Toutefois, lorsque la résidence pontificale du Latran est déplacée au palais du Vatican, la basilique perd de son importance. En 1564, le pape Pie IV confie la basilique et ses bâtiments aux Augustins.
Sanctuaire


À l'intérieur de l'église actuelle, les chapiteaux sont des spolia, provenant d'autres édifices antiques ; l'abside, peinte à fresque par Giovanni da San Giovanni, est également un exemple unique à Rome, embrassant les trois nefs ; les tribunes (matronei) de l'église, qui datent de la reconstruction de Pascal II, sont les dernières réalisées à Rome.
Le presbytère est décoré de fresques attribuées à Raffaellino da Reggio , datées de 1574, avec des histoires du martyre des quatre saints couronnés ; le cycle de fresques de la salle gothique, récemment redécouvert, est un témoignage fondamental de l'art gothique dans la ville de Rome (le nom de Jacopo Torriti a été mentionné). Les fresques présentent des figures humaines se détachant sur un précieux fond bleu en azurite et représentant les douze mois ; au-dessus des mois sont représentés les Arts, dans les nervures de la voûte les quatre saisons, avec les signes du zodiaque, aujourd'hui en partie perdus.
Le reliquaire contient la tête de Saint Sébastien, le reste du corps étant déposé dans la basilique des catacombes du même nom.
L'orgue positif de l'aile, probablement œuvre des facteurs d'orgues Testa et datant de la seconde moitié du XVIIe siècle, est intact, avec ses caractéristiques d'origine et doté de 9 registres pour un total de 380 tuyaux[2].
D'un intérêt historique et artistique notable sont les deux chapelles à l'intérieur du monastère : l'oratoire de Santa Barbara, auquel on accède depuis le cloître, et l'oratoire de San Nicola. Cet oratoire dominait à l'origine la nef droite de la basilique. Le titre est conventionnel, un oratoire dédié à Nicolas étant mentionné dans le Liber Pontificalis, avec ceux de Sixte et de Barbara, en relation avec la basilique. L'intérieur ne se visite pas, car il fait partie de l'enceinte monastique.
Les Quatre-Saints-Couronnés sont la première église de Rome à avoir un titulaire non italien, Dietrich de Trèves, nommé titulaire en 975 par le pape Benoît VII.
- Basilique des Quatre-Saints-Couronnés
- Cloître.
- Détails du cloître.
- Cortile intérieur
- Cortile médiéval
Découverte de fresques
En 2002, l'historienne de l'art Andreina Draghi découvre des fresques étonnantes, remontant au XIIIe siècle, lors de la restauration de la salle gothique du monastère. La plupart des scènes est bien conservée, préservée sous une épaisse couche de plâtre. Elles représentent les douze mois, les arts libéraux, les quatre saisons et le zodiaque. L'image du roi Salomon, un pieux et un juge, peint sur le mur nord a conduit les chercheurs à émettre l'hypothèse que la pièce était conçue pour être une salle de justice.
Le plâtre a peut-être été posé après 1348, pour des raisons hygiéniques pendant la Peste noire, ou peut-être au XVe siècle, lorsque les Camaldules quittent le monastère.
Décors intérieurs
L'abside contient les fresques des quatre saints martyrs, Severo, Severiano, Carpoforo et Vittorino de Giovanni da San Giovanni (1623)[3].
Le retable de la nef gauche de S. Sebastiano Lucina e curato da Irene est peinte par Giovanni Baglione.
L'entrée de la chapelle Saint-Sylvestre, ouvrant sur la deuxième cour, contient des fresques d'origine médiévale, ainsi que d'autres par Raffaellino da Reggio (1550-1578).
Chapelle (ou oratoire) Saint-Sylvestre
On accède à la chapelle Saint-Sylvestre (ou oratoire Saint-Sylvestre) depuis le portique de la première cour extérieure de la basilique. Selon Rendina, il s'agit d'un « environnement extraordinaire, un coin de Moyen Âge, mieux conservé que l'église elle-même. »[4].
Histoire
L'oratoire a été construit en 1246 sur ordre du cardinal Stefano Normandis, titulaire de Santa Maria in Trastevere, et consacré la même année, comme le rappelle encore la plaque commémorative, par l'évêque d'Ostie Rinaldo dei Conti di Segni. Décoré plus tard (1248) par des maîtres byzantins, il devint au XVIe siècle l'oratoire de l'université des sculpteurs et tailleurs de pierre (appelés marbriers).
« Les fresques constituaient une « propagande » politique de la fausse « Donation de Constantin », exploitée par la papauté dans les luttes de prestige contre l’empereur tout au long du Moyen Âge. »[5].
« Ces peintures devaient devenir un moyen de propagande pour démontrer la supériorité du pouvoir de l’Église de Rome sur celui de l’Empire ; c'est le pape Innocent IV qui les voulait, à l'époque où il se battait avec l' empereur Frédéric II. »[6]

Le mécène de ces fresques était le cardinal Stefano Conti, élu vicaire du pape lors de la fuite de celui-ci en France. Le cardinal vivait dans ce palais, alors quel meilleur endroit que cet oratoire pour rappeler que le pape n'est pas seulement le successeur de saint Pierre, mais aussi celui de Constantin et des empereurs romains.
Au XVIe siècle, on ajoute le petit presbytère surélevé de trois marches. Les fresques qui le décorent, datées de 1574, font référence au martyre des Quatre Saints Couronnés et sont l'œuvre de Raffaellino da Reggio.
Description

L'oratoire de San Silvestro, décoré de remarquables fresques du XIIIe siècle de style byzantin, avec des « Histoires du pape Sylvestre et de l'empereur Constantin Ier », tirées de la légende racontée dans l’Actus Silvestri, témoigne de l'importance politique du sanctuaire dans le contexte du pouvoir temporel de la papauté.
Dans la lunette au-dessus de la porte d'entrée se trouve une fresque représentant le Christ Juge, Marie, saint Jean et les Apôtres.
L'intérieur de l'oratoire présente un plan rectangulaire avec une voûte en berceau. Le sol est de style cosmatesque, tandis que la voûte est décorée de motifs d'étoiles et de croix : en son centre sont placés cinq carreaux de majolique originaux, formant une croix grecque. La base de la voûte est décorée d'une frise de feuilles. Le mur d'entrée abrite un Jugement dernier, avec le Christ trônant, la Vierge Marie, saint Jean-Baptiste, les apôtres et deux anges : l'un d'eux est peint en train de plier le firmament.
Au-dessous de cette fresque, sur le mur de gauche, le mur d'entrée et le mur de droite, se trouve un cycle de fresques, composé de 11 scènes ou panneaux, peints en 1248. Armellini rapporte une inscription qui était autrefois interprétée comme indiquant la date du cycle : AD MCCXLVIII hoc opus divitia fieri fecit. Ce cycle pictural est tiré de l’Actus Silvestri et fait référence à la vie légendaire de l'empereur Constantin Ier.
On compte en tout onze scènes[7] réparties sur l'ensemble des parois.
- Mur d'entrée (ouest)
- Constantin frappé par la peste ;
- Pierre et Paul apparaissent en songe à Constantin malade et l'exhortent à inviter le pape Sylvestre à revenir à Rome ;
- Les messagers impériaux se dirigent vers le mont Soracte pour rencontrer Sylvestre.
- Fresques du mur ouest
Ensemble du mur ouest
Registre supérieur. Jugement Dernier. Partie gauche.
Registre supérieur. Jugement Dernier. Partie centrale.
Registre supérieur. Jugement Dernier. Partie droite.
Fresques des Épisodes de la Vie du Pape Sylvestre (314-335). Scène 1 : Constantin, atteint de la lèpre, rassure des femmes et leurs enfants sur leur sort.
Fresques des Épisodes de la Vie du Pape Sylvestre (314-335). Scène 2 : Rêve de Constantin. Pierre et Paul rendent visite à Constantin, et lui enjoigne d'aller quérir le Pape Sylvestre, réfugié sur le Mont Soracte.
Fresques des Épisodes de la Vie du Pape Sylvestre (314-335). Scène 3 : Les messagers de Constantin, à cheval vers le Mont Soracte.
- Mur gauche (nord)
- Les messagers de Constantin montent au mont Soracte ;
- Sylvestre revient à Rome et montre à Constantin les effigies de Pierre et de Paul ;
- Constantin reçoit le baptême de Sylvestre ;
- Sylvestre est assis sur le trône devant Constantin, guéri de la peste ;
- Sylvestre à cheval, en procession, est accompagné de Constantin.
- Fresques du mur nord
Fresques des Épisodes de la Vie du Pape Sylvestre (314-335). Scène 4 : Les messagers de Constantin montent sur le Mont Soracte à la rencontre de Sylvestre.
Fresques des Épisodes de la Vie du Pape Sylvestre (314-335). Scène 5 : Sylvestre, de retour à Rome, montre à Constantin les portraits de Pierre et Paul, afin qu'il puisse identifier les saints l'ayant visité dans son rêve.
Fresques des Épisodes de la Vie du Pape Sylvestre (314-335). Scène 6 : Baptême de Constantin.
Fresques des Épisodes de la Vie du Pape Sylvestre (314-335). Scène 7 : Donation de Constantin.
Fresques des Épisodes de la Vie du Pape Sylvestre (314-335). Scène 8 : Officium stratoris.
- Mur droit (sud)
- Sylvestre ressuscite le taureau tué par le prêtre juif ;
- Hélène, mère de Constantin, trouve la vraie Croix ;
- Sylvestre libère le peuple romain d'un dragon.
- Fresques du mur sud
Fresques des Épisodes de la Vie du Pape Sylvestre (314-335). Scène 9 : Sylvestre et le rabbin Zambri, et la résurrection du taureau sauvage.
Fresques des Épisodes de la Vie du Pape Sylvestre (314-335). Scène 10 : Invention de la Vraie Croix.
Fresques des Épisodes de la Vie du Pape Sylvestre (314-335). Scène 11 : Sylvestre ramène la Vraie Croix à Rome.
Oratoire de Santa Barbara
L'oratoire de Santa Barbara est une chapelle du IXe siècle ou antérieure, dédiée à Barbe d'Héliopolis ou sainte Barbe, dite la Grande Martyre, et située dans l'enceinte du monastère des Quatre Saints Couronnés, sur le côté gauche de la basilique.
Les sources anciennes mentionnent cette chapelle pour la première et unique fois dans le Liber Pontificalis de la biographie du pape Léon IV (847-855), pour les dons faits par le pontife à l'oratoire de la bienheureuse Barbara, situé sous l'église des Quatre-Saints-Couronnés (oratorium beatae Barbarae qui consitum est infra ecclesiam sanctorum IIII Coronatorum)[8].
À l'origine, il s'agissait d'une chapelle latérale de l'ancienne basilique des Quatre Saints Couronnés, dans la nef gauche ; mais une rénovation médiévale l'a isolée de l'église, et elle n'est plus accessible aujourd'hui que depuis le cloître du monastère annexé à la basilique.

Son plan est trapézoïdal, presque carré, avec trois absides sur trois côtés ; la voûte est en croisée d'ogives, soutenue par quatre corbeaux de marbre. Dans l'abside sud se trouvent des vestiges de fresques du IXe siècle, très détériorées. Les autres fresques, incomplètes, datent du XIVe siècle : on reconnaît encore les Histoires de sainte Barbe sur les murs, les symboles des Évangélistes sur la voûte, et une Vierge à l'enfant sur l'abside orientale.
De l'autre côté de la basilique, une autre chapelle dédiée à saint Nicolas fait pendant à celle de sainte Barbe, mais elle ne se visite pas, faisant partie du cloître monastique.
Scènes des Histoires de Santa Barbara.
Symboles des Évangélistes et Histoires de sainte Barbe.
Notes et références
- ↑ Cités par Jacques de Voragine dans la Légende dorée
- ↑ « Basilica dei Santi Quattro Coronati - Roma » [archive du ], sur vegezzi-bossi.com (consulté le )
- ↑ Riccardo Spinelli, « Biographies », dans Mina Gregori, Le Musée des Offices et le Palais Pitti, Paris, Éditions Place des Victoires, (ISBN 2-84459-006-3), p. 648
- ↑ Rendina, op. cit., p. 320
- ↑ Carlo Villa, op. cit., p. 1125
- ↑ Claudio Rendina, op. cit., p. 322
- ↑ Les scènes sont tirées du site de Roma Medievale.
- ↑ C. Hulsen, op. cit., p. 205
Voir aussi
Bibliographie
- (it) Andreina Draghi, Gli affreschi dell’Aula gotica nel Monastero dei Santi Quattro Coronati, Milan, Skira, , 408 p.
- (it) Giovanni Sicari, Reliquie Insigni e Corpi Santi a Roma, Rome, Arbor sapientiaE, , 168 p.
- M. Armellini, Le chiese di Roma dal secolo IV al XIX, Roma 1891, p. 500
- Christian Hülsen, Le chiese di Roma nel Medio Evo, Firenze 1927, p. 205
- Claudio Rendina, Le Chiese di Roma, Newton & Compton, Roma, 2000, p. 320-322
- Carlo Villa, Rione XIX Celio, La grande guida dei rioni di Roma, p. 1124-1125, Newton & Compton, Roma, 2000
- L. Barelli, Il complesso monumentale dei Ss. Quattro Coronati a Roma, Roma, Viella, 2009
Articles connexes
Liens externes
- Site officiel
- Ressources relatives à la religion :
- Ressource relative aux beaux-arts :
- Site officiel (it + en)
- Site du monastère des Quatre-Saints couronnés à Rome (it)
- Four Crowned Martyrs, Catholic Encyclopedia (en)
- Portail de la peinture
- Portail du catholicisme
- Portail de la Rome antique
- Portail de l’architecture chrétienne
- Portail de Rome
