Château de Doué-la-Fontaine
| Type | |
|---|---|
| Fondation |
Xe siècle |
| Style | |
| Propriétaire | |
| Patrimonialité | |
| État de conservation |
| Adresse |
|---|
| Coordonnées |
47° 11′ 16″ N, 0° 16′ 50″ O |
|---|

Le château de Doué-la-Fontaine est un ancien château à motte, élevé sur les bases d'un édifice carolingien au début du Xe siècle et plusieurs fois remanié, qui se dresse sur la commune déléguée de Doué-la-Fontaine au sein de la commune nouvelle de Doué-en-Anjou, dans le département de Maine-et-Loire, en région Pays de la Loire.
La motte féodale et les restes du donjon font l’objet d’un classement au titre des monuments historiques, par arrêté du [1].
Localisation
Les vestiges du château de Doué-la-Fontaine sont situés dans le département français de Maine-et-Loire, sur la commune de Doué-la-Fontaine, au sud, à l'angle du boulevard du docteur Lionet et de l'impasse de la Motte, à moins de 100 mètres de la route départementale 69, d'Argenton aux Verchers-sur-Layon.
Historique
Le site de la motte de la Chapelle semble se développer à l'époque mérovingienne avec l'extraction de sarcophages en carrière souterraine[2].
Vers la fin du VIIIe et au IXe siècle, les rois carolingiens, puis les rois d'Aquitaine, disposent à Doué d'une résidence, mentionnée d'après les textes de villa ou palatium. Le prince Louis, roi d'Aquitaine en fera l'une de ses quatre résidences préférées[2].
C'est vers 900 qu'est édifiée sur le site de la Chapelle une aula carolingienne de 23 × 17 mètres et des murs épais de 1,7 à 1,8 mètre. Vers 930-950[3], un incendie détruit la charpente. Ses ouvertures sont murées, on recouvre les murs de chaux et on la surélève pour créer un étage, tandis que le rez-de-chaussée devient un vaste cellier aveugle. L’accès se faisant dorénavant par l'étage, à 5 mètres au-dessus du sol, via un perron en charpente[4] l'aula se trouve ainsi transformée en tour maîtresse fortifiée (tour-donjon), ce qui fait de Doué-la-Fontaine un des plus vieux châteaux-forts en pierre connus.
Au début du XIe siècle[5], la partie basse du bâtiment est « emmottée », afin d'empêcher la sape[6], par des amas de terre rapportée qui masquent désormais les parois extérieures de son rez-de-chaussée. Celui-ci sert alors de cave au nouvel édifice[7]. Transformée en motte castrale, l'aula, enterrée sur une hauteur de 5 mètres permet de renforcer la motte, sur laquelle est érigée une fortification en bois. Le système défensif est complété par un fossé autour de la motte, profond de 5 mètres et large d'une quinzaine de mètres[8].
Il ne subsiste, aujourd'hui, de la tour qui a été détruite au XIe siècle, que la partie qui a été emmottée et qui, de fait, se trouve être l'aula carolingienne initiale. Seuls demeurent sur le sommet de ses murs les premières arases de la surélévation des années 950.
Le site fut fouillé en 1967 et durent trois années par Michel de Boüard, opération considérée comme fondatrice de l'archéologie médiévale[9]. Les fouilles ont notamment permis de mettre au jour la cuisine dont les murs ont été crépis lors de la restauration du château à la suite de son incendie au milieu du Xe siècle. On a retrouvé sur cet enduit des graffitis figurants des personnages, des animaux et des scènes religieuses : Vierge à l'Enfant, Crucifixion. La pièce qui servait de cuisine avant l'incendie a de toute évidence changé de destination[10].
Description

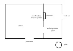
Le premier bâtiment construit sur le site castral est une grande salle d'un seul niveau, (une aula), de la fin de l'époque carolingienne[11], de 23 × 17 mètres, résidence d'un comte d'Anjou, bâtie et dallée en pierre au IXe siècle[5], voire au début du Xe siècle[5]. L'épaisseur des murs varie entre 1,72 mètre et 1,8 mètre. Ceux-ci sont formés de pierres de tailles très disparates[12]. Un mur intérieur sépare deux pièces : celle au nord fait 178 m2 et possédait un dallage en pierre et un foyer ; celle au sud fait 72 m2 et possédait une cheminée, et les déchets retrouvés dans les fouilles laissent penser que c'était une cuisine[2].
On trouve deux portes, une principale à l'ouest, haute de trois mètres, et une deuxième plus petite sur la façade sud. Des trous semblables à des trous de boulin se situent de parte et d'autre des portes.
Sous « l'aula-donjon » fut découverte lors de la fouille du puits à eau, situé juste à l'extérieur du bâtiment, une petite carrière souterraine située à une profondeur de 7 à 12 mètres, d'une superficie d'environ 120 à 150 m2, et dont l'existence est antérieure à l'aula carolingienne puisqu'elle fut initialement creusée pour extraire des sarcophages (des fragments de sarcophages sont encore visibles dans cette carrière). Cette carrière servit ensuite de carrière de pierre à bâtir pour la construction de l'aula puis sa surélévation durant la seconde moitié du Xe siècle. Lorsque l'aula fut ainsi transformée en un des premiers châteaux forts connus, une liaison fut creusée (couloir descendant et escalier) entre le cellier situé au rez-de-chaussée du bâtiment et cette carrière souterraine, transformant celle-ci en cave annexe.
Doué, de par sa transformation d'une aula carolingienne en un donjon médiéval, est l'un des premiers château de pierre[1], avec Langeais.
La motte de la Chapelle
La motte était à l'origine de forme tronconique, haute de 7 mètres environ avec un diamètre à sa base de 100 mètres pour 42 mètres au sommet[2].
Notes et références
- 1 2 « Motte féodale et donjon (restes) », notice no PA00109089, sur la plateforme ouverte du patrimoine, base Mérimée, ministère français de la Culture.
- 1 2 3 4 Sébastien Noël et Luc Stevens, Souterrains et mottes castrales : Émergence et liens entre deux architectures de la France médiévale, Paris, Éditions L'Harmattan, , 422 p. (ISBN 978-2-343-07867-0), p. 118.
- ↑ Dominique Allios, Architecture des châteaux forts, Architecture et patrimoine, Ouest-France, 2014, (ISBN 978-2-7373-6250-7), p. 21.
- ↑ André Châtelain, ibid., p. 19.
- 1 2 3 Panouillé 2007.
- ↑ André Châtelain, Châteaux forts - Images de pierre des guerres médiévales, Paris, Rempart, 2003, (ISBN 2-904-365-001),p. 16.
- ↑ « Châteaux forts en France entre fantasmes et réalités », Dossiers d'Archéologie, no 349, , p. 23.
- ↑ Valérie Serdon, « Villes et forteresses au Moyen Âge », Moyen Âge, no 125, mai-juin-juillet 2021, p. 12 (ISSN 1276-4159).
- ↑ Emmanuel Litoux, « Les résidences seigneuriales angevines à la lumière de l'archéologie du bâti », Dossiers d'archéologie, no 404, , p. 51 (ISSN 1141-7137).
- ↑ Nicolas Mengus, Châteaux forts au Moyen Âge, Rennes, Éditions Ouest-France, , 283 p. (ISBN 978-2-7373-8461-5), p. 235.
- ↑ Panouillé 2007, p. 29.
- ↑ « L'aula Carolingienne de Doué-la-Fontaine », sur www.histoire-pour-tous.fr, (consulté le )
Voir aussi
Bibliographie
- Jean-Pierre Panouillé, Les châteaux forts dans la France du Moyen Âge, Ouest France, (ISBN 978-2-7373-4424-4)
Articles connexes
Liens externes
- Ressource relative à l'architecture :
- Portail des châteaux de France
- Portail de l’Anjou et de Maine-et-Loire
- Portail des monuments historiques français
- Portail du haut Moyen Âge