Château des Tours (Anse)
| Château des Tours | |
| Période ou style | Médiéval |
|---|---|
| Type | Château fort |
| Début construction | 1213 |
| Fin construction | 1218 |
| Propriétaire initial | Église de Lyon |
| Destination initiale | château garnison |
| Propriétaire actuel | Commune d'Anse |
| Destination actuelle | Ouvert au public |
| Protection | |
| Coordonnées | 45° 56′ 04″ nord, 4° 43′ 08″ est[2] |
| Pays | |
| Région | Auvergne-Rhône-Alpes |
| Département | Rhône |
| Commune | Anse |
Le château des Tours est un ancien château fort des archevêques de Lyon, du 1er quart du XIIIe siècle[3] qui se dresse sur la commune française d'Anse dans le département du Rhône en région Auvergne-Rhône-Alpes.
Considérant qu'il s'agit d'un « remarquable exemple d'architecture militaire », le château fait l’objet d’un classement au titre des monuments historiques par arrêté du [1].
Localisation
Le château des Tours est situé dans le département français du Rhône sur la commune d'Anse, au centre-ville, au sud de Villefranche (Rhône).
Historique
Au milieu du Moyen Âge, Anse est une ville-frontière qui protège la limite nord de la seigneurie de l'Église de Lyon contre les entreprises des sires de Beaujeu. C’est ainsi qu’à la fin du XIIe siècle, l'Église de Lyon rénove l'enceinte gallo-romaine du Bas-Empire dans laquelle s’est développée l'agglomération d’Anse depuis le haut Moyen Âge.
Au début du XIIIe siècle, cette fortification n'est toutefois pas jugée suffisante et l'archevêque-comte de Lyon Renaud de Forez (1193-1226) décide, dans le cadre d’un vaste plan de rénovation des défenses de sa seigneurie, de construire à Anse un château qu’il implante au sud de l’enceinte urbaine. L’identification du château des Tours avec le « château-neuf » attribuée à Renaud de Forez par sa notice nécrologique[4] a été confirmée au début des années 1980 par l'étude archéologique et historique exhaustive de celui-ci[5],[6].
Comme les autres châteaux de l'Église de Lyon, le château d’Anse est remis à la charge d’un de ses chanoines. Celui-ci perçoit des droits sur le mandement et doit en retour entretenir les bâtiments. Si ce chanoine est tenu en théorie de résider au château, l’administration réelle est, dès les années 1270, dans les mains d’un capitaine, généralement issu de la noblesse locale, qui reçoit un salaire en espèce et en nature et doit entretenir une sentinelle et un portier au château. En période de troubles, il est assisté de soldats recrutés pour la défense. Ainsi, le , ce sont « quatre nobles et douze bons soldats (…) la moitié dans les Tours (…) l’autre moitié pour la garde de la juridiction ».
Au milieu du XIVe siècle, lorsque la ville d’Anse cède aux troupes des Tard-Venus de Seguin de Badefol dans la nuit du , le château est mis à sac. Les dégâts se limitent toutefois aux charpentes comme le montrent les comptes de réparation des années 1365-1366.
À la fin du Moyen Âge, malgré sa position stratégique, le château d’Anse perd très vite son rôle militaire, ne gardant qu’une fonction résidentielle et de représentation du pouvoir exercé par l'Église de Lyon. Les travaux des XVe – XVIIe siècles concernent en effet le percement de grandes baies, la création de circulations, le surhaussement des bâtiments pour créer de nouveaux espaces d’habitation.
En 1660, le château est affermé à un bourgeois de Lyon.
Après la Révolution, il est acheté par la municipalité. La mairie est abritée dans la grande salle jusqu'à son transfert place du Général de Gaulle en 1969, tandis que les autres espaces sont dévolus par bail à la gendarmerie.
En 1930, la façade est du château des Tours est représentée par Maurice Utrillo sur une gouache sur papier intitulée Château à Anse (Rhône).
À partir des années 1980, son étude archéologique débute et le donjon et le logis sont restaurés. Il est ouvert au public. Il accueille des expositions au rez-de-chaussée.
En 2008 la tour nord et la cour centrale sont restaurées et les découvertes archéologiques mises en valeur. Les hourds d'origine du XIIIe siècle sont sauvegardés[note 1]. Ils sont les plus anciens en élévation de France. La cour est recouverte d'une verrière. En 2020 la charpente, la toiture et la salle du 3e étage sont restaurées. Les chemins de ronde du XIIIe et du XVe siècle sont découverts et mis en valeur par des châssis de verre. Des enduits du XVIe et du XVIIe siècle sont découverts au 2e étage. Le 1er étage est occupé par l'archéothèque où le patrimoine gallo-romain est mis en valeur.
Description

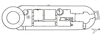
Le château d’Anse, dont le plan très particulier prend la forme d’une épingle de nourrice longue de 44 m et large de 12 m, est flanqué d’une tour à ses deux extrémités[note 2]. L’ensemble était ceint d’un fossé et d’un mur aujourd’hui disparu. Ce château se caractérise par sa très grande homogénéité architecturale. Il est en effet érigé entre 1213 et 1218, comme l’ont précisé les analyses dendrochronologiques effectuées sur les poutres des planchers, et il ne fera par la suite que l'objet de travaux d’aménagements.
Bien que construit en six ans, on distingue trois phases de chantier.
La première phase correspond au donjon, de type cylindrique, haut de 23 m pour un diamètre d'environ 10 m construit à l’automne-hiver 1213-1214. Il ne lui manque que son couronnement médiéval, probablement un hourd dont l’incendie en 1728 par la foudre est rapporté comme celui du « moulin ». Le donjon comporte quatre niveaux : une basse-fosse aveugle au rez-de-chaussée ; au premier étage, une salle d'apparat avec cheminée monumentale, voûtée sur croisée d'ogives. Cette salle est la seule du château à comporter un décor sculpté, de motifs végétaux. Elle est surmontée de deux niveaux destinés à la résidence et à la défense.
Ce donjon présente de grandes similitudes avec les constructions philippiennes qui lui sont contemporaines, depuis le plan, l’usage d’un échafaudage hélicoïdal pour la construction, le voûtement, la circulation verticale par escalier en vis en œuvre… Il se distingue toutefois des constructions royales par la survivance de quelques archaïsmes, comme la porte d’accès à 9 m du sol actuel et non au rez-de-chaussée ou l’absence d’archère pour assurer une défense active.
La seconde phase de construction intervient trois années plus tard. Une deuxième tour, semi-circulaire, pourvue de quatre étages planchéiés est édifiée au nord du donjon et reliée à celui-ci par deux courtines parallèles délimitant une cour rectangulaire d'environ 200 m2. Son cinquième étage conserve de façon exceptionnelle son hourd daté de l’automne-hiver 1216-1217[8]. Seule la partie en encorbellement a été supprimée au XVIe siècle et remplacée par un muret percé de fenêtres et d'archères-canonnières. Il s'agit d'un hourd fixe, solidaire de la tour. Sa partie basse est constituée par une poutraison rayonnante très puissante prise dans la maçonnerie. Des poteaux soutiennent l’enrayure haute sur laquelle repose la charpente de la toiture de faible pente. Il s’agit du seul hourd du début du XIIIe siècle conservé en France, avec celui de Laval[9].

La troisième phase datée de l’automne-hiver 1217-1218 voit s'implanter au centre de la cour du château un corps de bâtiment d'environ 100 m2, comportant deux étages. Cette construction ne laisse subsister que deux petites cours au nord et au sud.
Au XVe siècle, ce bâtiment sera surélevé d'un étage et desservi par un bel escalier en vis installé dans la cour nord. Des galeries sont également construites pour relier la tour nord à cet escalier. La clé de voûte de l’accès à l’escalier porte les armes du chanoine Claude Gaste (1466-1486). On trouve également les armes du chanoine Antoine d’Ars († 1538) sur une bretèche placée dans le mur ayant remplacé le débord du hourd de la tour nord et celles du chanoine Thomas Meschattin de la Faye (1613-1637) à l’embrasure des deux grandes fenêtres du deuxième étage de la tour nord.
Dans les années 1909-1910, un grand escalier droit est installé dans la cour nord pour desservir la salle de la mairie à laquelle on accède désormais par une porte néo-gothique. Deux grandes baies sont également ouvertes dans la courtine est pour améliorer la fonctionnalité de la grande salle. Sur son mur ouest est installée la remarquable mosaïque à proues de navire, datée du Ier siècle, découverte en 1843 à moins d'un kilomètre au sud du château lors des fouilles de la villa de la Grange-du-Bief[10].
Notes et références
Notes
- ↑ La partie en encorbellement a été supprimée au XVIe siècle[7].
- ↑ Le château du Haut-Andlau qui est daté du milieu du XIIIe siècle, présente un plan assez proche. On considère toutefois qu'il s'agit pour ce château d'une adaptation au relief. Ce critère ne peut être retenu à Anse qui est en plaine.
Références
- 1 2 « Château », notice no PA00117708, sur la plateforme ouverte du patrimoine, base Mérimée, ministère français de la Culture.
- ↑ Coordonnées trouvées sur Géoportail.
- ↑ Charles-Laurent Salch, Dictionnaire des châteaux et des fortifications du Moyen Âge en France, Strasbourg, Éditions Publitotal, , 28e éd. (1re éd. 1979), 1304 p. (ISBN 2-86535-070-3, OCLC 1078727877), p. 46.
- ↑ Marie-Claude Guigue et Georges Guigue, obituaire de l’église primatiale de Lyon : texte du manuscrit de la bibliothèque de l'Université de Bologne XIIIe siècle, Paris, Lyon, E. Vitte, 1902, 210 p. (notice BnF no FRBNF30556031).
- ↑ Marie-Pierre Feuillet et Jean Olivier Guilhot, « Rhône. Le château des Tours à Anse », Bulletin Monumental, vol. 141, no 4, , p. 410–411 (lire en ligne, consulté le ).
- ↑ Toutes les mentions historiques et les conclusions archéologiques présentées dans cette page sont détaillées dans l'ouvrage : Anse, Château des Tours : origine et évolution d'un point fort de la seigneurie de l'église de Lyon, Marie-Pierre Feuillet et Jean Olivier Guilhot, avec la participation de M.-O. Mandy et C. Orcel, Lyon, Direction des antiquités historiques Région Rhône-Alpes , DL 1985, impr. 1985 (notice BnF no FRBNF34911657).
- ↑ Nicolas Mengus, Châteaux forts au Moyen Âge, Rennes, Éditions Ouest-France, , 283 p. (ISBN 978-2-7373-8461-5), p. 119.
- ↑ Jean-Olivier Guilhot, Poivrières, créneaux, hourds et bretèches ; la couverture et la défense sommitale des donjons lyonnais du XIIe au XVe siècle, Le bois dans le château de pierre au Moyen Âge, Oct 1997, Lons-le-Saunier, France. p. 263-275. (ISBN 2-84627-037-6).
- ↑ Jean-Michel Gousset et Samuel Chollet, « Mayenne. Laval, datation dendrochronologique des hourds du donjon », Bulletin Monumental, vol. 164, no 2, , p. 202–203 (DOI 10.3406/bulmo.2006.1356, lire en ligne, consulté le ).
- ↑ Julien Guey et Paul-Marie Duval, « Les mosaïques de la Grange-du-Bief (Commune d'Anse-sur-Saône, Rhône) », Gallia, vol. 18, no 1, , p. 83–102 (DOI 10.3406/galia.1960.2290, lire en ligne, consulté le ).
Voir aussi
Articles connexes
Liens externes
- Ressource relative à l'architecture :
- Portail des châteaux de France
- Portail du Moyen Âge
- Portail du département du Rhône
- Portail des monuments historiques français

