Cotation (dessin industriel)
Les cotations permettent de dimensionner un objet en vue de sa réalisation. Elles facilitent celle-ci en évitant de mesurer l'objet sur un plan et permettent de communiquer entre les différents acteurs d'un projet. Les cotations sont indépendantes de l'échelle, elles sont toujours notées en dimensions réelles.
Cotation au bureau d'études
Au bureau d'études, le dessinateur détermine des cotes pour définir les dimensions d’une pièce. On les appelle les "cotes études".
Pour garantir les exigences fonctionnelles d'un mécanisme, il suffit de respecter les cotes études de chaque pièce intervenant dans l'assemblage.
Cotation au « bureau méthode »
Au bureau des méthodes, le préparateur méthode transpose les cotes études, imposées par le bureau d'études, et les cotes méthodes, qu'il aura choisies en fonction des contraintes d'usinage (surépaisseurs, etc.), en cotes de fabrication en effectuant un transfert de cotes.
La cotation au bureau méthode est souvent appelée la cotation de fabrication.
Éléments graphiques de la cotation

Les cotations sont composées de quatre éléments graphiques :
- Ligne d'attache : elle est réalisée en trait fin et perpendiculairement à l'élément coté. Elle permet d'aligner la cotation à l'objet.
- Ligne de cote : elle est tracée en trait fin parallèlement à la dimension cotée.
- Valeur de cote : s'écrit en trait fort et indique la dimension de l'objet à l'échelle réelle.
- Extrémités : réalisées en trait fort, elles précisent la longueur de la ligne de cote. Les extrémités peuvent être de formes différentes et prendre une forme de flèche, de barre oblique, de point ou de cercle.
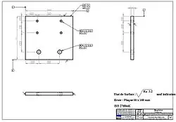
La cotation est toujours réalisée à partir d'une surface de référence désignée par une lettre, et peut contenir des tolérances géométriques insistant sur certains aspects géométriques de la pièce.
Exemple pour l'emplacement d'un perçage :
Un perçage se cote à l'aide d'une cote encadrée (dite cote absolue). L'utilisation de cote absolue est obligatoire du fait que l'on ne cote pas de la matière mais l'axe théorique du trou.
Ensuite vient la tolérance de position qui fait partie des tolérances géométriques. Cette tolérance vient indiquer par exemple que l'on accepte une marge d'erreur de 0,2 mm par rapport à la surface de référence A, B et C lors de la fabrication de la pièce.

Les tolérances géométriques les plus fréquentes sont :
- Position
- Symétrie
- Parallélisme
- Perpendicularité
Divers
En dessin industriel, la cotation désigne toutes les indications (sur un dessin) qui indiquent les dimensions, les tolérances, etc.
Sur les dessins, les tolérances générales doivent être indiquées assez près du cartouche.
Pour une cotation efficace, on utilise la cotation fonctionnelle.
- Portail du génie mécanique