Deauville

Deauville
De haut en bas et de gauche à droite : la mairie de Deauville ; le casino de Deauville ; les parasols ; les Planches de Deauville ; la rue Victor-Hugo et le Normandy Barrière.
Blason de Deauville
Blason
Deauville
Logo
Administration
Pays Drapeau de la France France
Région Normandie
Département Calvados
Arrondissement Lisieux
Intercommunalité Communauté de communes Cœur Côte Fleurie
(siège)
Maire
Mandat
Philippe Augier
2020-2026
Code postal 14800
Code commune 14220
Démographie
Gentilé Deauvillaises, Deauvillais
Population
municipale
3 563 hab. (2022 en évolution de −3,13 % par rapport à 2016)
Densité 998 hab./km2
Géographie
Coordonnées 49° 21′ 33″ nord, 0° 04′ 28″ est
Altitude Min. 0 m
Max. 83 m
Superficie 3,57 km2
Type Petite ville
Unité urbaine Dives-sur-Mer
(ville-centre)
Aire d'attraction Trouville-sur-Mer
(commune du pôle principal)
Élections
Départementales Canton de Honfleur-Deauville
Législatives Quatrième circonscription
Localisation
Géolocalisation sur la carte : France
Voir sur la carte topographique de France
Deauville
Géolocalisation sur la carte : France
Voir sur la carte administrative de France
Deauville
Géolocalisation sur la carte : Calvados
Voir sur la carte topographique du Calvados
Deauville
Géolocalisation sur la carte : Normandie
Voir sur la carte administrative de Normandie
Deauville
Liens
Site web www.deauville.fr

    Deauville est une commune française du département du Calvados, en Normandie, peuplée de 3 563 habitants[Note 1]. Ses habitants sont appelés les Deauvillais.

    Notoriété

    Les parasols, symbole de Deauville.

    Station balnéaire normande, elle est considérée, avec son casino, ses palaces, ses villas classées, ses champs de courses, ses ports de plaisance, son palais des congrès, son Festival du cinéma américain, ses golfs et ses discothèques, comme l'une des villes les plus prestigieuses en France[1]. Sa plage est également réputée pour ses parasols aux couleurs orange, rouge, bleue et verte selon les secteurs (fabrication artisanale de la région) avec le fameux nœud deauvillais qui assure leur maintien beaucoup plus esthétique que le nœud de vache[2].

    Elle attire chaque année des milliers de touristes, notamment des Parisiens en raison de sa relative proximité géographique (environ 200 km), ce qui lui vaut d'être surnommée le « 21e arrondissement de Paris » grâce à l'autoroute et au chemin de fer. Sa réputation de station de luxe lui vaut d'être fréquentée régulièrement par de nombreuses célébrités du cinéma, de la musique, de la télévision, de la mode, et du monde économique et politique[3]. Au XXIe siècle, elle bénéficie selon une étude d'une des plus fortes attractivité parmi les villes française de mille à dix mille habitants, avec Arcachon, Noirmoutier-en-l'Île, Étretat et Honfleur[4].

    Géographie

    Représentations cartographiques de la commune
    Carte OpenStreetMap
    Carte OpenStreetMap
    Carte topographique
    Carte topographique
    1 : carte dynamique ; 2 : carte OpenStreetMap ; 3 : carte topographique

    La commune est située à l'embouchure de la Touques qui la sépare de Trouville-sur-Mer, et s'étend en partie le long du fleuve. Un pont relie les deux communes. D'un point de vue traditionnel, elle est au nord du pays d'Auge et d'un point de vue touristique, elle est située sur la Côte Fleurie.

    Jouxtant au sud-ouest celle de Trouville-sur-Mer, l'agglomération est à 13 km au nord-ouest de Pont-l'Évêque, à 16 km au sud-ouest de Honfleur, à 17 km au nord-est de Dives-sur-Mer et à 42 km au nord-est de Caen[5].

    L'environnement de la commune est caractérisé par une longue plage de sable, résultant de l'érosion des falaises de calcaire oolithique. En retrait s'étendent, d'une part, la vallée de la Touques et, d'autre part, des collines qui constituent le paysage typique du pays d'Auge.

    Hydrographie

    La commune est située dans le bassin Seine-Normandie. Elle est drainée par la Touques, la Morte[6] et un autre petit cours d'eau[7],[Carte 1].

    La Touques, d'une longueur de 108 km, prend sa source dans la commune de Champ-Haut et se jette dans la baie de Seine en limite de Trouville-sur-Mer et de Deauville, après avoir traversé 42 communes[8].

    Climat

    En 2010, le climat de la commune est de type climat océanique altéré, selon une étude du Centre national de la recherche scientifique s'appuyant sur une série de données couvrant la période 1971-2000[9]. En 2020, Météo-France publie une typologie des climats de la France métropolitaine dans laquelle la commune est exposée à un climat océanique et se trouve dans la région climatique Côtes de la Manche orientale, caractérisée par un faible ensoleillement (1 550 h/an) ; forte humidité de l'air (plus de 20 h/jour avec humidité relative > 80 % en hiver), vents forts fréquents[10].

    Pour la période 1971-2000, la température annuelle moyenne est de 11 °C, avec une amplitude thermique annuelle de 12,5 °C. Le cumul annuel moyen de précipitations est de 771 mm, avec 12,3 jours de précipitations en janvier et 8 jours en juillet[9]. Pour la période 1991-2020, la température moyenne annuelle observée sur la station météorologique installée sur la commune est de 0,0 °C et le cumul annuel moyen de précipitations est de 0,0 mm[11]. Pour l'avenir, les paramètres climatiques de la commune estimés pour 2050 selon différents scénarios d'émission de gaz à effet de serre sont consultables sur un site dédié publié par Météo-France en novembre 2022[12].

    Statistiques 1991-2020 et records de la station météorologique
    Mois jan. fév. mars avril mai juin jui. août sep. oct. nov. déc. année
    Température minimale moyenne (°C) 2,4 1,4 4 6 9,6 12,8 14,6 14,4 11 9,3 4,3 2,3 7,7
    Température moyenne (°C) 6,3 6,2 9,5 12 16 18,8 20,9 21,5 17,5 13,9 8,5 6,5 13,1
    Température maximale moyenne (°C) 9,9 11,2 15,2 18,1 22,1 25 27,4 28,4 24,1 18,7 12,9 10,6 18,6
    Record de froid (°C)
    date du record
    −21,5
    17.01.87
    −12,5
    10.01.86
    −12
    01.01.05
    −5
    04.01.73
    −2
    01.01.76
    1
    05.01.76
    5
    23.01.76
    1
    11.01.74
    0
    19.01.77
    −3,2
    23.01.91
    −9,1
    22.01.88
    −11
    31.01.85
    −21,5
    1987
    Record de chaleur (°C)
    date du record
    18,6
    01.01.22
    26,6
    27.01.19
    27,6
    28.01.89
    29
    21.01.18
    32,6
    18.01.22
    39,2
    18.01.22
    40,2
    25.01.19
    40,4
    07.01.20
    36,1
    17.01.87
    31,1
    02.01.85
    22,4
    02.01.82
    19,1
    03.01.85
    40,4
    2020
    Précipitations (mm) 48 44,4 78 65,4 49,3 24,3 21 16 29,9 22,9 43,2 37,5 480
    Source : « Fiche de station météorologique de Deauville », sur infoclimat.fr (consulté le )

    Urbanisme

    Typologie

    Au , Deauville est catégorisée petite ville, selon la nouvelle grille communale de densité à 7 niveaux définie par l'Insee en 2022[13]. Elle appartient à l'unité urbaine de Dives-sur-Mer, une agglomération intra-départementale dont elle est ville-centre[14],[15]. Par ailleurs, la commune fait partie de l'aire d'attraction de Trouville-sur-Mer dont elle est une commune du pôle principal[Note 2],[15]. Cette aire, qui regroupe 35 communes, est catégorisée dans les aires de moins de 50 000 habitants[16],[17].

    La commune, bordée par la baie de Seine, est également une commune littorale au sens de la loi du , dite loi littoral[18]. Des dispositions spécifiques d'urbanisme s'y appliquent dès lors afin de préserver les espaces naturels, les sites, les paysages et l'équilibre écologique du littoral, tel le principe d'inconstructibilité, en dehors des espaces urbanisés, sur la bande littorale des 100 mètres, ou plus si le plan local d'urbanisme le prévoit[19].

    Occupation des sols

    L'occupation des sols de la commune, telle qu'elle ressort de la base de données européenne d'occupation biophysique des sols Corine Land Cover (CLC), est marquée par l'importance des territoires artificialisés (95,1 % en 2018), en augmentation par rapport à 1990 (89,6 %). La répartition détaillée en 2018 est la suivante : zones urbanisées (68 %), espaces verts artificialisés, non agricoles (15,5 %), zones industrielles ou commerciales et réseaux de communication (11,6 %), prairies (2,3 %), espaces ouverts, sans ou avec peu de végétation (1,9 %), zones humides côtières (0,7 %)[20]. L'évolution de l'occupation des sols de la commune et de ses infrastructures peut être observée sur les différentes représentations cartographiques du territoire : la carte de Cassini (XVIIIe siècle), la carte d'état-major (1820-1866) et les cartes ou photos aériennes de l'IGN pour la période actuelle (1950 à aujourd'hui)[Carte 2].

    Carte en couleurs présentant l'occupation des sols.
    Carte des infrastructures et de l'occupation des sols de la commune en 2018 (CLC).

    Communes limitrophes

    Toponymie

    Le nom de Deauville est attesté sous la forme latinisée Auevilla en 1060, d'Auville, puis Deauvilla plus tardivement[23],[24], Deanville en 1793, Deauville en 1801[25].

    Il s'agit d'une formation toponymique médiévale en -ville « domaine rural » (terme issu du gallo-roman VILLA « grand domaine rural »). L'origine du premier élément a donné lieu à diverses hypothèses.

    Tout d'abord, d'après les mentions anciennes du nom, sa forme originelle ne comportait pas de [d] initial. Il s'explique par l'agglutination de la préposition de[24] (après élision du [œ], caractéristique de la langue française devant une autre voyelle) : d'Auville > Deauville. La graphie contemporaine restitue un e non étymologique : Deauville au lieu de Dauville. L'agglutination de cette préposition n'est pas rare en toponymie, puisqu'on la retrouve plus à l'ouest dans la Douve ou dans Digosville (Manche, Ingulvilla [?] en 1095, Digouvilla 1198)[26].

    • Albert Dauzat et Charles Rostaing considèrent le premier élément Au- comme issu d'un appellatif d'origine germanique auwja, auwa « prairie humide »[24]. Cela convient bien au site de Deauville situé à l'embouchure de la Touques dans un environnement de prairies inondables.
    • René Lepelley formule l'hypothèse selon laquelle Au- représente un anthroponyme germanique Avo[27].

    Remarques : le germanique auwa qui explique le nom de la ville d'Eu (Seine-Maritime, Auvae ou Awae au IXe siècle, Ou au XIIe siècle) peut difficilement avoir été combiné à un nom en -ville qui est, la plupart du temps, composé avec un anthroponyme. Le nom de personne germanique Avo semble rare en toponymie ; il se retrouve, cependant, dans Avocourt (anciennement Avoncourt) décliné à l'ancien cas régime, ce qui n'est jamais le cas pour les noms de personne composés avec les noms en -ville en Normandie, mais fréquent ailleurs.

    Il y a homonymie probable avec Auville-sur-le-Vey (parrochia de Auvilla 1274, Auvilla 1277 ~ 1280), dont le premier élément s'explique par l'anthroponyme germanique Awo (masculin) / Awa (féminin) selon Dominique Fournier[28].

    Histoire

    L'Ancien Régime

    Deauville et ses marais ont peu laissé de traces dans l'histoire avant la création de la station balnéaire.

    Le village est construit sur la hauteur du mont Canisy, prébende de l'évêché de Lisieux durant l'Ancien Régime[29]. L'activité était agricole, faite d'élevage et de culture, notamment de sainfoin[30].

    Sur les hauteurs, un peu à l'écart du village, juste à la limite actuelle entre Deauville et Saint-Arnoult sur les terrains de l'actuel New Golf, étaient visibles, il y a encore peu, les ruines du château de Lassay, décrit par l'historien et archéologue Arcisse de Caumont qui affirme qu'il était encore pratiquement intact en 1830[31]. Ce château a été construit en 1676 par Armand de Madaillan, comte de Lesparre, marquis de Lassay. Bien en cour à Versailles, alors qu'il courtisait la duchesse de Montpensier, comtesse d'Auge, possessionnée à Honfleur, il s'était dit propriétaire du plus superbe des châteaux normands et l'invita à s'y rendre. C'était un peu enjoliver la réalité : le château n'était alors qu'un simple manoir, il était en cela fidèle à ses origines gasconnes. La duchesse ayant accepté, l'histoire prétend qu'il partit alors sur ses terres et se lança dans la construction d'une demeure de rêve, édifiée en un peu plus d'un mois, qui ne verra finalement jamais la venue de son inspiratrice. Louis XIV fait des paroisses de Benerville, Tourgéville, Saint-Arnoult et Deauville un fief sous le nom de Montcanisy. C'est son fils, comte puis marquis de Lassay, qui fait construire à Paris l'hôtel de Lassay, aujourd'hui résidence du président de l'Assemblée nationale. Le domaine de Montcanisy devient par héritage de sa petite-fille, Adelaïde-Geneviève-Félicité d'O, la propriété du duc de Brancas-Lauraguais. Le duc y donna de somptueuses fêtes en faveur de Madame du Barry, favorite de Louis XV, mais aussi plus tard pour Sophie Arnould (1740-1802), cantatrice à l'opéra de Paris et sa maîtresse. Le château fut vendu pour la somme de 85 000 francs en 1824 à un parisien du nom d'Auger qui le laissa se dégrader[32].

    Lors de la division administrative du territoire français, la commune est intégrée à l'arrondissement de Pont-l'Évêque en 1801, puis à celui de Lisieux lors de la suppression du premier en 1926, ainsi que successivement aux cantons de Touques en 1793, de Pont-l'Évêque en 1801, et de Trouville-sur-Mer depuis 1872[25].

    C'est la vogue des bains de mer qui, ayant fait le succès de Trouville-sur-Mer, va déborder sur l'autre rive de la Touques et créer une nouvelle « colonie » de baigneurs. Et pourtant, en 1870, les Guides Joanne, la référence pour les voyageurs du XIXe siècle, écrivent : « Quoiqu'elle paraisse être simplement le prolongement de celle de Trouville, la plage de Deauville est, en réalité moins commode. »[33].

    L'origine

    La Plage de Deauville, Eugène Boudin, 1865.

    C'est Dieppe qui inaugure en France les bains de mer en 1812, elle atteint le succès avec la duchesse du Berry qui y passe la saison[34]. Le relais est pris par Trouville-sur-Mer, qui n'est encore qu'un village, et va se développer avec la nouvelle bourgeoisie française, mais aussi avec l'aristocratie du Second Empire[35]. En 1847, Trouville, pour établir une correspondance régulière avec les trains de Paris qui arrivent maintenant au Havre, construit une longue jetée, à l'embouchure de la Touques, pour faciliter l'accostage des vapeurs. Celle-ci bouleverse les courants marins et du sable s'accumule désormais le long des marais et des garennes de Deauville, repoussant la mer et créant une grande plage de sable[33].

    Tandis que Napoléon III fait construire pour l'impératrice Eugénie la villa Eugénie à Biarritz[36], des investisseurs créent de toutes pièces de nouvelles « colonies » balnéaires : Cabourg par Durand Morimbeau en 1853, Houlgate par Victor Deslise en 1854 et Villers-sur-Mer par Félix Pigeory en 1856. Parmi les habitués de Trouville, le docteur Joseph Olliffe a acheté une confortable villa sur la plage. Ce médecin mondain de l'ambassade d'Angleterre et du duc de Morny est en vogue à la cour de Napoléon III[37]. Il s'imagine lui aussi en créateur-bâtisseur. Il a sous les yeux les garennes de Deauville à peine bonnes pour la chasse aux lapins, comme d'ailleurs le comte d'Hautpoul, nommé maire de Trouville en 1857, qui cherche à étendre sa ville, coincée entre la Touques et les falaises, et qui, en 1847, annexe le petit territoire d'Hennequeville[38]. Encouragé par Morny, Olliffe investit avec le banquier Armand Donon, de la banque ottomane, la somme de 800 000 francs or pour l'achat de 240 hectares de marais reconnus par l'État propriété de la commune[35],[38].

    Les travaux de drainage commencent en 1859, au moment où Arcisse de Caumont ne cite de Deauville que la vue magnifique qu'il découvre du haut de la colline où est établie la vieille église paroissiale Saint-Laurent, dont la partie la plus ancienne remonterait au XIe siècle avec des reprises des XIIIe, XVe et XVIe siècles[23]. Sur les pentes autour de l'église sont regroupées les fermes des paysans qui vivent de l'agriculture et de l'élevage. Les marais ou garennes, situés en contrebas du village et sur lesquels allait s'édifier le futur Deauville, servent encore à faire paître les vaches et les moutons. Il faut quatre années, de 1860 à 1864, pour que le Deauville moderne sorte des marais[39] et que sa population soit multipliée par dix.

    Le développement

    Projet d'urbanisation de la nouvelle station balnéaire de Deauville daté de 1859, très certainement de l'architecte Breney.

    Pour assurer la valorisation de leurs investissements, Olliffe et Donon parlent de leur projet à des financiers, comme Delahante, et des architectes, comme Desle-François Breney qui vient de réaliser les plans du casino-salon de Trouville-sur-Mer[37]. Une société est rapidement constituée sous la protection de Morny, discret pour ne pas apparaître dans le montage mais suffisamment présent pour en toucher les intérêts[37],[38]. Rapidement, de riches familles, telles les Greffulhe ou Sipière, d'autres banquiers, comme les Tenré, Dalloz ou Boitelle, ou encore des agents de change, avec les Dollfus ou Salamanca, achètent des lots pour y faire construire leurs « chalets de villégiature ». La réalisation du plan d'urbanisme, dessiné par Desle-François Breney, est confiée aux entrepreneurs Castor et Mauger, qui bâtissent également pour eux[38].

    Breney partage l'espace en quatre zones : en bord de mer, des lais jusqu'à l'avenue Impériale, la zone résidentielle de luxe avec le casino, en arrière une zone urbaine populaire, au pied de la colline une zone mondaine avec l'hippodrome et le long de la Touques une zone d'activité avec le port et le débarcadère du chemin de fer. L'espace est inscrit dans un quadrilatère, structuré autour d'un cardo avec une avenue reliant le casino en bord de mer à l'hippodrome et l'avenue Impériale, ancien « chemin des douaniers », parallèle à la mer, reliant l'autre rive de la Touques par un pont, et partagé par un quadrillage de larges rues. Exclu du plan d'urbanisme, l'ancien bourg reste exilé en haut de la colline, autour de l'église Saint-Laurent, en liaison avec la zone populaire par le prolongement de ses chemins vicinaux[38].

    Ce plan classique est inspiré à Breney par les principes parisiens du baron Haussmann. Cela a l'avantage de ne pas déboussoler la clientèle qui retrouve à Deauville ses repères urbains, « la haute société se retrouve pour ainsi dire chez elle »[40].

    Les grands équipements

    La gare de Trouville-Deauville construite dans un style néo-normand.

    Un décret impérial du 25 juin 1860 autorise les travaux, le « pont de l'Union » entre Deauville et Trouville est inauguré en 1861[38].

    Pour des raisons aujourd'hui inconnues, la zone portuaire n'est pas réalisée, même si les liaisons avec l'ancien Deauville le sont. Morny exploite l'espace libre en étendant la superficie de l'hippodrome. Sa réalisation est confiée à l'architecte de Saint-Germain. L'inauguration de l'hippodrome en août 1863, en même temps que la gare, lance pour de nombreuses années les mondanités deauvillaises de la saison estivale[38].

    Pour éviter le détour par Le Havre, il faut prolonger la ligne de chemin de fer à partir de Lisieux. Morny, actionnaire de la Compagnie des chemins de fer de l'Ouest, comme Charles Laffitte, concède à ce dernier des terrains près de sa propriété. Laffitte y fait construire le Grand hôtel et favorise la prolongation de la ligne de Lisieux à Deauville. La gare est inaugurée en 1863[41].

    Olliffe et Donon rétrocèdent aux Domaines des terrains pour le creusement d'un avant-port éclusé et d'un bassin à flot, dans le prolongement des digues construites par Trouville qui ne dispose que d'un port d'échouage à l'embouchure de la Touques. Le bassin à flot mesure 300 m de long pour une largeur de 80 m et comporte une cale de débarquement. La « presqu'île de la Touques », comprise entre le bassin à flot et le fleuve, est concédée à des entreprises spécialisées dans le traitement de la houille venant d'Angleterre et du bois importé des pays nordiques. Pour faciliter le transport des marchandises, un embranchement de la ligne de chemin de fer est prolongé jusqu'à la presqu'île. Le nouveau port de Deauville est inauguré le 1er août 1866[38].

    Entre 1860 et 1864, toute l'infrastructure est réalisée, les marais asséchés, les dunes aplanies et les rues tracées. Elles sont surélevées de 1,50 m par rapport au niveau initial des marais, ce qui oblige les propriétaires à combler leur parcelle et à faire construire sur sous-sol. Entre la plage et le premier rang de villas qui doivent être en recul de 10 m, « La Terrasse », une digue-promenade longue de 1 800 m et large de 20. Commencée en 1860, elle est terminée en 1864 et possède un éclairage public grâce à l'usine à gaz construite dès 1861[38]. Sur son parcours est construit l'hôtel des Terrasses, aujourd'hui démoli, sur les fondations duquel est bâti le lycée de Deauville, utilisé comme établissement d'internement de prisonniers allemands en 1944[42].

    La promotion immobilière

    Plan de la nouvelle station balnéaire de Deauville daté entre 1860 et 1870, dessiné par Henry Lecourt, d'après un plan dressé par le maire et architecte Breney.
    Le marché de Deauville.

    Les fondateurs sont les premiers à construire leurs villas sur de vastes parcelles. Morny fait réaliser la villa Sergewna, Olliffe le Victoria Loge et Donon la villa Élisabeth. Les investisseurs se disputent les meilleures parcelles, celles disposant d'un accès direct à la plage avec vue sur la mer. Les architectes dessinent les plans des villas dans le « style éclectique », un savant mélange de styles régionaux et historiques. Ces villas doivent être ostentatoires et afficher la réussite sociale de leur propriétaire[38], « partout l'élégance, partout l'inattendu, partout la fantaisie dans ce qu'elle a de plus exquis et de plus ingénieux. Ici, un chalet russe aux délicates arabesques ; à côté, une maison hollandaise avec tour et pignon étayés ; plus loin, deux villas construites dans le style le plus pur de l'ancienne architecture anglaise, plus loin encore et sur tout le profil de la terrasse, une série de créations fantastiques, réunissant toutes les variétés et tous les genres, réunissant même toutes les nationalités. C'est ainsi que Suisses, Espagnols, Anglais, Américains, Hollandais et même Turcs, réalisent par leurs excellents rapports le rêve si cher aux utopistes de la fraternité universelle »[43].

    Par opposition à Trouville, station balnéaire, Deauville se veut « ville de plaisirs ». Un établissement hydrothérapique est quand même construit en 1862 à l'extrémité de la digue-promenade près de la Touques. Il propose des bains chauds et froids, d'eau douce ou d'eau de mer. Il loue aux estivants des cabines de bains fixes ou mobiles ainsi que le mobilier de plage nécessaire. Le casino au centre de la promenade fait face à un parc de trois hectares. À l'arrière de celui-ci, « les Arcades » (toujours visibles aujourd'hui) encadrent la perspective, avec des boutiques sur rue et des logements en location à l'étage. Le casino est inauguré le lendemain du 14 juillet 1864. D'un côté du casino, le « Grand Hôtel du Casino », de l'autre, un espace vide attend la construction d'un deuxième hôtel[38].

    Architecte et actionnaire de la Société immobilière, Desle-François Breney est nommé maire de Deauville en 1861. Il sait concilier les intérêts de la commune et ceux des investisseurs. La municipalité prend à sa charge l'entretien de certaines rues en échange de terrains pour la construction de bâtiments publics. En 1864, deux terrains sont cédés pour la construction de la nouvelle église Saint-Augustin et de son presbytère. L'année suivante, trois nouvelles cessions pour la construction de l'école, du marché couvert et du temple pour la colonie anglaise. Il dessine les plans de ces constructions avec l'architecte parisien André Jal[38].

    Comme Haussmann à Paris, Breney favorise la mixité sociale. Autour de l'actuelle place de Morny et le long de la rue du Casino, se crée, à partir de 1863, un quartier marchand abritant commerçants, personnel hôtelier (pas tous), gens de maison et ouvriers du bâtiment. Des maisons avec jardin, mais aussi des immeubles bas accolés, abritent en rez-de-chaussée des boutiques et en étages toute cette société laborieuse et au centre près de la place Morny la place du marché réputée pour ses produits locaux[38].

    La crise et la Belle Époque

    Le Cercle des propriétaires, et l'Hôtel Royal.

    La bordure maritime du pays d'Auge s'est fortement modifiée durant ces vingt dernières années. De petits villages agricoles sont devenus dans ce laps de temps des villes balnéaires connues et courues souvent du monde entier. Suivant un classement des guides Joanne, d'abord des villégiatures de « grande bourse », Trouville-sur-Mer, une station balnéaire internationale, Deauville, la ville des plaisirs de l'aristocratie d'Empire, Houlgate, le rendez-vous de la bourgeoisie industrieuse et Cabourg, un centre littéraire et théâtral, et puis des stations de « petites bourses » comme Honfleur, une ville d'artistes peintres, et Villers-sur-Mer, une station familiale[44]. En 1868, le Guide Conty, Côtes de Normandie parle ainsi de Deauville : « Deauville est-il appelé à soutenir sa réputation factice et exagérée, et les familles vraiment bourgeoises se décideront-elles jamais à voir y implanter « leur tente » ? J'en doute fort […] Ajoutons qu'en raison des sables mouvants, Deauville ne vaut pas, à beaucoup près, Trouville, ni comme plage, ni comme végétation. […] En effet, tout, à Deauville, est prétentieux, même jusqu'à la mer, après laquelle il faut courir. « En un mot, je me résume : beaucoup de sable et beaucoup trop de poudre aux yeux. »[45] ».

    Le tramway.

    Le décès du duc de Morny en 1865 n'affecte pas le développement de Deauville, celle-ci ayant déjà acquis une dynamique propre. Le coup fatal vient de la chute de l'Empire en 1870 : en une saison, l'aristocratie d'Empire se fait discrète et déserte ses villas deauvillaises. Le port n'aura jamais de deuxième bassin à flot et l'établissement hydrothérapique est même détruit en 1877 par manque de clientèle. La crise économique de 1870 raréfie le trafic marchand maritime au profit du Havre ; les entreprises industrielles, principalement des scieries de la « presqu'île de la Touques » disparaissent. Si le deuxième hôtel de luxe n'est pas construit à côté du casino, sur son emplacement s'édifie, en 1875, le « Cercle des propriétaires » réservé aux grands propriétaires d'écuries de courses[38].

    La villa Breloque construite en 1884 par Eugène Boudin

    Aux bouleversements politiques et à la crise économique, vient s'ajouter une crise écologique. La modification du rivage, due aux jetées de l'embouchure de la Touques, et qui avait créée la plage de sable de Deauville, est encore amplifiée par la création de l'avant-port. Une forte tempête, lors de l'hiver 1874-1875, jette sur le rivage un banc de galets à 300 m de « la Terrasse », formant une « noue » entre elle et la plage. La Société des bains de mer tente de transformer cette réserve d'eau en lac sans résultat ; le lac se comble petit à petit créant un lais de 15 hectares obligeant à la construction d'une estacade en bois pour atteindre la mer. En 1883, les Domaines cèdent une partie du terrain non aedificandi gagné sur la mer aux propriétaires riverains, à charge pour ceux-ci de créer une nouvelle terrasse empierrée de 10 m de large et de prolonger les rues d'accès jusqu'à celle-ci. Jusqu'en 1881, Deauville n'a pas de bâtiment administratif. C'est à cette date qu'est construite la mairie qui abrite alors la poste puis plus tard un commissariat de police, avant que les façades soient transformées, dans les années 1960, en style néo-normand[46]. Pour terminer le siècle, le ministère de l'Intérieur ferme le casino pour irrégularités en 1889. Il est racheté, avec le Grand Hôtel du Casino, en 1893 par Edmond Blanc, grand propriétaire d'écuries de courses. Celui-ci démolit le casino en 1895 et prolonge l'avenue de l'Hippodrome jusqu'à « la Terrasse »[38]. Ainsi se termine la Belle Époque pour Deauville.

    Le peintre Eugène Boudin a peint le port de Deauville tout au long de sa carrière, l'enregistrant au fur et à mesure qu'il se développait et devenait de plus en plus fréquenté par le commerce, les bateaux de pêche et les yachts de riches visiteurs[47].

    Le second souffle et les années folles

    Le casino de Deauville.

    Au début du XXe siècle, Deauville demeure dans l'ombre de Trouville-sur-Mer, station plus réputée pour la clientèle parisienne. Le nouveau maire, Désiré Le Hoc, décide de relancer Deauville. Il fait appel à Eugène Cornuché, exploitant du casino de Trouville depuis 1909. Celui-ci s'installe à Deauville, se rend acquéreur en 1910 du Grand Hôtel du Casino et fait construire à sa place un nouveau casino inauguré le 10 juillet 1912. Dès l'inauguration, le nouvel établissement de jeu de Deauville supplante celui de Trouville, et la croissance de Deauville est amorcée. En 1912 est aussi ouvert lhôtel Normandy et en 1913, un second palace, lhôtel Royal, est construit à l'emplacement de la villa La Louisiane du baron Erlanger[46] et de celle du duc de Morny, tournant ainsi une page de l'histoire de Deauville[48]. En effet, ces hôtels sont pris d'assaut pour leur modernité et leur confort, alors que les villas sont difficiles à entretenir et ouvertes uniquement pendant l'été[49].

    Pendant la Première Guerre mondiale, le Royal, comme beaucoup d'autres hôtels normands, est transformé en hôpital militaire complémentaire pour recevoir des blessés directement du front grâce à la ligne de chemin de fer. La villa des Flots, construite par Botelle, préfet de police du Second Empire, achetée en 1867 par le comte de Gontaut-Biron, est démolie en 1911 pour faire place au Normandy-Hôtel[46].

    Le rivage continuant à reculer, 17 nouveaux hectares de lais sont cédés à la municipalité en 1913. La ville de Deauville construit le club de tennis Lawn-Tennis. Elle rétrocède de nouveau des terrains aux riverains en 1917, mais cette fois-ci sans servitude ; ils peuvent transformer ces nouveaux espaces en jardins. Les parties restant à la commune sont aménagées en espaces verts par l'architecte parisien Jean-Claude Nicolas Forestier[38].

    En 1911, le comte Le Marois fait construire les tribunes de l'hippodrome de la Touques en s'inspirant de celles de Longchamp[50]. En 1912 et en 1913, l'architecte Théo Petit, conçoit, à l'arrière du casino, un ensemble de boutiques de luxe pour, entre autres, le joailler Van Cleef & Arpels et la styliste Coco Chanel. Il y incorpore le café de la Potinière. Les Magasins du Printemps ouvrent leur première boutique hors de Paris, dessinée par les architectes Georges Wybo et Émile Mauclerc[48].

    Mistinguett posant à Deauville en 1929, sur le capot de sa Chrysler Imperial décapotable.

    Le 12 mai 1921, la commune reçoit le même jour que Trouville-sur-Mer, le label officiel de station climatique[51]. Le Casino de Deauville, lieu de rencontres et de mondanités, connaît des soirées de gala réputées, ainsi qu'une grande activité dans les salles de jeu. La période des Années folles marque le sommet de cette réussite avec des grands personnages comme le roi Alphonse XIII d'Espagne ou bien encore André Citroën[48]. C'est en 1924 que sont ouverts les Bains pompéiens, avec les célèbres « Planches » et en 1929 qu'est créé le yacht-club. Le troisième palace, l'hôtel du Golf, n'est pas construit à Deauville, en 1927, mais dans la commune de Saint-Arnoult par François André, successeur d'Eugène Cornuché[38].

    L'exiguïté de la commune limite son expansion. Avec les revenus que lui procure le casino, la commune de Deauville se porte acquéreur, en 1927, de terrains à Tourgéville et Benerville-sur-Mer pour y aménager l'hippodrome de Clairefontaine. En 1930, elle renouvelle l'opération sur la commune de Saint-Gatien-des-Bois pour l'établissement d'un aérodrome[38].

    Dans les années 1930, Deauville n'est pas épargnée par la crise internationale qui atteint la France. Le maire, Robert Fossorier, réagit en élaborant un programme d'économies qui met Deauville de nouveau en sommeil jusqu'à l'après-guerre.

    La Seconde Guerre mondiale

    Pendant la Seconde Guerre mondiale, Deauville est occupée par l'armée allemande. La ville est peu habitée : en mai 1943, les enfants et les vieillards ont été évacués vers l'intérieur. Elle se trouve maintenant en zone littorale interdite à toute personne n'y habitant pas avant guerre. La ville a perdu son aspect de cité souriante, les hôtels de bord de mer et le casino sont recouverts d'une peinture bariolée de camouflage, les villas du front de mer sont délabrées et souvent vidées de tout ce qui pouvait être utilisable par les troupes d'occupation. La villa Citroën est transformée en Soldatenheim, foyer des soldats. La plage est envahie d'ajoncs et de broussailles qui font concurrence aux barbelés. Les rues qui débouchent sur la promenade sont coupées de fossés anti-chars[52]. Une voie ferrée sort de la gare et court sur des traverses directement posées sur le revêtement de l'avenue de la République avant d'escalader le coteau en direction des fortifications du mont Canisy[53]. Le 19 août 1944, le « kommandant major » Rimmer convoque les autorités municipales, le maire Robert Fossorier, ses deux adjoints et le secrétaire de mairie, pour une réception d'adieu avant de quitter la ville pour se retrancher sur les hauteurs de Trouville[54] et maintenant tout le monde attend les libérateurs.

    Après le débarquement de juin 1944 et la bataille de Normandie, les armées anglo-canadiennes du général Montgomery libèrent la côte normande à l'est de l'Orne lors de l'opération Paddle. C'est aux unités de la 6e division aéroportée britannique (la 6th Airborne) du major-general Richard Gale  les parachutistes de la nuit du 5 au 6 juin 1944 sur le canal de l'Orne[55]  qu'est confiée la libération du pays d'Auge. Aux unités belges de la Brigade Piron, qui sont passées aux ordres de Gale, est confiée la libération de la côte, et après Cabourg, Dives-sur-Mer, Houlgate, Villers-sur-Mer, ils arrivent en vue de Deauville et Trouville. Dès le 20 août des contacts sont pris entre des envoyés de Deauville et les troupes alliées qui savent maintenant que les Allemands ont évacué la rive ouest de la Touques, y compris le mont Canisy[56]. Ils ont établi sur ce fleuve leur dernière ligne de défense pour permettre au reste de la VIIe armée allemande de passer la Seine sans encombre. Ils sont retranchés dans un fortin qui tient sous son feu ce qui reste du pont qu'ils ont fait sauter et ils disposent sur les hauteurs de canons anti-aériens de 88 qui font merveille sur les objectifs au sol et de mortiers. Les troupes belges, rejointes par des troupes britanniques arrivées par les hauteurs, sont sérieusement accrochées sans que des groupes d'habitants qui fêtent les libérateurs se mettent à couvert, il y a de nombreuses victimes civiles dans les rues rectilignes de Deauville prises en enfilade depuis les hauteurs de Trouville[57]. Ce n'est que le jeudi 24 août à 8 h 20 du matin que les troupes belges franchissent la Touques sur une passerelle de fortune jetée sur les ruines du pont entre Deauville et Trouville[58]. Les forces alliées pourchassent les Allemands dans leur retraite jusqu'en Belgique et aux Pays-Bas. C'est en souvenir de leurs libérateurs que le pont reconstruit entre les deux villes porte le nom de « pont des Belges ».

    Depuis 1945

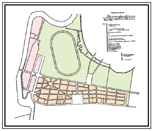
    Plan actuel de la ville de Deauville.

    Dans les années 1960, Deauville prend conscience de son image et de ses atouts, mais également de la nécessité de s'adapter aux exigences d'une nouvelle clientèle. Le développement du tourisme de masse, permis par le développement des congés payés, conduit à l'arrivée en villégiature de familles plus populaires, notamment grâce au réaménagement de certaines villas en résidences ou appartements partagés (comme la villa des Abeilles, érigée par Auguste Bluysen en 1910)[49].

    Michel d'Ornano devient maire, alors que Lucien Barrière succède à son oncle, François André, à la tête du casino et des palaces. Un festival de renommée mondiale est créé : le Festival du cinéma américain, qui accueille chaque année en septembre nombre de stars américaines et françaises.

    Coupure du journal Sport Complet (date non précisée).

    Deauville est à présent reliée à Paris par l'autoroute A13 et sa bretelle A132, ce qui met la station à environ 2 h 0 de la capitale « et en fait en quelque sorte sa banlieue »[59]. Ainsi, aux 4 000 Deauvillais s'ajoute un nombre important de Parisiens venant passer leurs week-ends ou leurs vacances dans la station, à tel point que Deauville est surnommée le « 21e arrondissement »[59],[60].

    La ville comprend, en 2008, environ 5 000 résidences secondaires pour un peu moins de 7 200 habitations (environ 70 % de résidences secondaires). Les villas anciennes sont au nombre de 300, protégées de nos jours de la pression foncière par une zone de protection du patrimoine architectural, urbain et paysager[49]. La ville s'est fortement développée pendant le XXe siècle puisque Deauville ne comprenait que 1 154 habitations en 1915[61].

    Politique et administration

    Tendances politiques et résultats

    Liste des maires

    La mairie, de style néo-normand.
    Liste des maires successifs
    Période Identité Étiquette Qualité
    mai 1945 octobre 1962
    (décès)
    Robert Fossorier Rad.-RGR Industriel, administrateur de la SHCD
    décembre 1962 mars 1977 Michel d'Ornano RI puis
    UDF-PR
    Chef d'entreprise, maire honoraire
    Ministre sous les gouvernements Chirac et Barre
    Député du Calvados (1967 → 1991)
    Conseiller général de Trouville-sur-Mer (1976 → 1991)
    Président du conseil général du Calvados (1979 → 1991)
    Président du conseil régional de Basse-Normandie (1974 et 1983 → 1986)
    mars 1977 mars 2001 Anne d'Ornano
    (épouse du précédent)
    UDF-PR
    puis DL
    Infirmière puis attachée de presse
    Conseillère générale de Trouville-sur-Mer (1991 → 2015)
    Présidente du conseil général du Calvados (1991 → 2011)
    mars 2001 En cours Philippe Augier[63] UDF puis NC
    puis UDI
    puis HOR
    Dirigeant de l'Agence française de pur-sang puis des Ventes de Deauville
    Conseiller régional de Basse-Normandie (2010 → 2015)
    Président de la CC Cœur Côte Fleurie (2008 → )

    Le conseil municipal est composé de vingt-sept membres dont le maire et sept adjoints[63].

    Deauville accueille le siège de la Communauté de communes Cœur Côte Fleurie.

    Démographie

    L'évolution du nombre d'habitants est connue à travers les recensements de la population effectués dans la commune depuis 1793. Pour les communes de moins de 10 000 habitants, une enquête de recensement portant sur toute la population est réalisée tous les cinq ans, les populations de référence des années intermédiaires étant quant à elles estimées par interpolation ou extrapolation[64]. Pour la commune, le premier recensement exhaustif entrant dans le cadre du nouveau dispositif a été réalisé en 2006[65].

    En 2022, la commune comptait 3 563 habitants[Note 3], en évolution de −3,13 % par rapport à 2016 (Calvados : +1,58 %, France hors Mayotte : +2,11 %). Deauville a compté jusqu'à 5 683 habitants en 1946.

    Évolution de la population  [modifier]
    1793 1800 1806 1821 1831 1836 1841 1846 1851
    96801008610710394119121
    1856 1861 1866 1872 1876 1881 1886 1891 1896
    1071131 1501 2461 5142 0442 2282 5322 522
    1901 1906 1911 1921 1926 1931 1936 1946 1954
    2 8743 3563 8243 8494 2084 8274 6635 6835 211
    1962 1968 1975 1982 1990 1999 2006 2011 2016
    5 0515 2325 6644 6824 2614 3643 9733 8163 678
    2021 2022 - - - - - - -
    3 5653 563-------
    De 1962 à 1999 : population sans doubles comptes ; pour les dates suivantes : population municipale.
    (Sources : Ldh/EHESS/Cassini jusqu'en 1999[25] puis Insee à partir de 2006[66].)
    Histogramme de l'évolution démographique

    Économie

    En 1999, la population active de Deauville est de 1821, soit un taux d'activité de 48,8 %. Cette même année, le taux de chômage était de 14,6 %, soit deux points supérieurs à la moyenne nationale[67].

    Village agricole tourné vers l'élevage et l'agriculture jusqu'à la naissance de la cité balnéaire, Deauville a construit une économie portée par les loisirs et le tourisme, jusqu'à ne plus comporter de terres agricoles aujourd'hui et compter 0,7 % d'agriculteurs et exploitants. Les services représentent au 31 décembre 2006, 73 % des emplois salariés, hors intérim et agriculture ; les commerces et réparations 17,8 %, selon les chiffres du recensement de 1999[67].

    La Société des hôtels et casinos de Deauville est la plus grosse entreprise deauvillaise en effectif (900 salariés) et en chiffre d'affaires. En dehors de l'hôtellerie, les plus gros employeurs sont la municipalité (200 agents), la clinique hospitalière (100 salariés), le parfumeur Jacomo (65 salariés), l'agence d'intérim Adecco (60 salariés), le grand magasin du Printemps (45 salariés), le supermarché Carrefour Market (40 salariés), et le centre de thalassothérapie (25 salariés)[68].

    Une «zone touristique internationale » (ZTI), où les commerces de détail peuvent déroger au repos dominical des salariés, est délimitée sur une partie du territoire de la commune par un arrêté en date du 5 février 2016[69].

    Le tourisme

    Les fameux parasols colorés sur la plage de Deauville.
    Le port.

    Le tourisme se développe autour du casino et des deux hôtels de luxe du groupe Barrière, des magasins de prestige (Hermès, Coco Chanel, Louis Vuitton, Christian Dior, Prada, Armani, Burberry, Ralph Lauren, Tod's, J.M. Weston, Arfan joaillerie…) et du Centre international de Deauville (CID), qui accueille durant toute l'année de nombreux festivals, concerts, spectacles, congrès et séminaires et chaque saison les courses hippiques. Les clients et les résidents saisonniers disposent également de clubs sportifs : les golfs Barrière de Deauville, de l'Amirauté, et de Saint-Gatien, dispersés dans l'arrière-pays deauvillais, le tennis-club sur le front de mer, le yacht-club, le centre nautique, les pistes de karting…

    Depuis mars 2009, Deauville bénéficie de la dénomination « commune touristique »[70].

    Autre secteur clé de l'activité deauvillaise, la filière équine est particulièrement présente à travers les ventes régulières de chevaux pur-sang au sein de l'établissement Élie-de-Brignac, dont la vente de yearlings, au mois d'août, de renommée internationale ; l'organisation de grands prix hippiques sur l'hippodrome de La Touques et sur l'hippodrome de Clairefontaine ainsi que l'organisation de la « Deauville polo cup » tous les ans, au mois d'août.

    Pendant près d'un siècle, la construction navale a également animé l'économie locale, à partir de l'ouverture du chantier naval Bernard Macario en 1920, repris après fermeture en 1965 par les Constructions navales Normandie-Saintonge. Les Chantiers navals deauvillais qui leur ont succédé dans le secteur de la Touques, ferment en 2008.

    De plus, s'étend sur la commune de Saint-Gatien-des-Bois, l'aéroport de Deauville - Saint-Gatien, propriété d'un syndicat mixte réunissant les conseils régionaux de Haute et Basse Normandies, et la ville de Deauville, et géré par la Chambre de commerce et d'industrie du pays d'Auge. Ses deux pistes accueillent en 2007, 173 420 passagers, majoritairement pour des vols privés, les vols commerciaux (46 % des passagers) étant couverts par 300 vols charters vacances. Par la spécialité de Deauville et du pays d'Auge, cet aéroport est le premier en France pour les charters de chevaux (11 en 2007)[71].

    Le territoire deauvillais est rattaché au bassin d'emploi de Lisieux-Honfleur et à la chambre de commerce et d'industrie du pays d'Auge.

    Médias

    Deauville-Trouville Magazine indépendant est un bimestriel distribué à 20 000 exemplaires dans tous les foyers de Deauville et Trouville[72].

    Deauville FM était une station de radio (web) locale créée le 1er octobre 2014 par Samuel Berdugo. Elle diffusait de la musique, accompagnée de flashs news, de culture, d'informations pratiques et de programmes de toutes sortes depuis ses studios situés dans le centre-ville de Deauville. Celle-ci a pris fin en octobre 2017[73].

    Culture locale et patrimoine

    Héraldique

    armes de Deauville

    Le village n'ayant pas d'armes lors de la naissance de la station, le blason de la commune de Deauville a été imaginé par Henry Le Court en 1878. Les armes se blasonnent ainsi :

    D'azur au pal d'argent chargé de trois tours crénelées de gueules et accompagné de pattes de lion d'or mouvant des flancs de l'écu, deux à dextre en barre et deux à senestre en bande, cousu au chef de gueules chargé d'un léopard d'or armé et lampassé d'azur.

    Ces armes sont inspirées du blasonnement de la famille de Brancas, propriétaire au XVIIIe siècle du fief du mont Canisy qui couvrait les villages de Deauville et Saint-Arnoult sur lesquelles est rajouté le léopard qui renvoie à l'emblème de la Normandie[74].

    Logo de Deauville.

    Lieux et monuments

    Monument classé

    La villa Strassburger.

    Monuments inscrits

    • Villa Strassburger : sur le terrain de la ferme du Coteau, vendue par Gustave Flaubert en 1875 à Henri de Rothschild, l'architecte caennais Georges Pichereau construit au début du XXe siècle cette villa, inscrite aux monuments historiques pour ses façades et sa toiture par arrêté du 29 octobre 1975. Elle est appelée Strassburger car elle est devenue, dans les années 1920, la résidence deauvillaise du milliardaire américain Ralph-Beaver Strassburger[76]. Ses descendants ont fait don de la villa à la ville de Deauville qui en assure depuis la gestion et l'entretien.
    • La gare de Trouville - Deauville, reconstruite en style néo-normand en 1931 et qui a inspiré la gare de Đà Lạt (Viêt Nam) et la gare de Pointe-Noire (République du Congo)[réf. nécessaire]. Elle fait l'objet d'une inscription au titre des Monuments historiques depuis le 5 juillet 2010[77].
    • L'établissement de bains dont les « Bains pompéiens », y compris les chemins de planches avec les garde-corps, qui bénéficient d'une inscription au titre des monuments historiques depuis le [78].

    Monuments labellisés « architecture contemporaine remarquable »

    Autres lieux et monuments

    Statue du duc de Morny.
    Buste d'Eugène Cornuché.
    L'église Saint-Augustin.
    Le casino de Deauville.
    • Ex-blanchisserie du centre Élie de Brignac : intégrée depuis 1974 à la salle des ventes de chevaux de course Elie de Brignac, la « grande blanchisserie de Deauville » se trouve sur le site d'une très ancienne blanchisserie d'Eugène Bruère au XIXe siècle. Détruite en 1889, rebâtie par un dénommé Pally, réaménagée en 1921 par Maurice Leduc pour assurer la blanchisserie des hôtels de la région jusqu'en 1969, elle abrite également au cours du XXe siècle une usine de boutons de corozo de la Société industrielle des boutons jusqu'en 1930. Cette blanchisserie est recensée à l'Inventaire général du patrimoine culturel[80].
    • Le chantier naval Bernard Macario : construit en 1920 par Bernard Macario, il est connu pour avoir construit en 1932 le bateau de course en acajou ou en teck de Louis Charles Breguet et en 1939 Barbara III yacht d'Ettore Bugatti, mais aussi des bateaux de pêche comme Le Surplus, chaloupe crevettière d'après-guerre, aujourd'hui propriété de la ville de Trouville-sur-Mer. Fermé en 1965, le chantier est repris par les Constructions navales Normandie-Saintonge, avant de devenir les Chantiers navals deauvillais et fermer en 2008[81]. Ces chantiers sont recensés à l'Inventaire général du patrimoine culturel[82].
    • En 2001, a été inauguré le nouveau commissariat de Deauville. Œuvre des architectes Inoue, Ecker et Crochin, il reprend le style « deauvillais ».
    • La statue de Charles de Morny, située au bord de la place de Morny, entre la rue Gambetta et la rue Breney. L'originale en bronze d'Henri-Frédéric Iselin est inaugurée le . En , elle est déboulonnée et remisée dans un bâtiment des services techniques de la ville. Dans les années suivantes, à plusieurs reprises, un comité tente d'obtenir sa réinstallation, en vain, le gouvernement et le préfet interdisent sa remise en place. En , ils finissent par la placer sous scellés. En , le piédestal resté vide est détruit. Le , sous le régime de Vichy, elle est emportée et fondue dans le cadre de la mobilisation des métaux non ferreux. Le , une statue de remplacement, réalisée en pierre par Edmond Moirignot, est inaugurée en présence de Maurice Garçon.
    • Le buste en bronze de François André, situé dans le jardin François-André, réalisé par Jean Don. Il est inauguré en 1964.
    • Le buste en bronze de Desiré Le Hoc, situé à l'intersection de la rue Désiré-Le-Hoc et de la rue Victor-Hugo. L'original de Francis La Monaca est inauguré le . Sous le régime de Vichy, il est déboulonné et fondu, dans le cadre de la mobilisation des métaux non ferreux. Un buste de remplacement est installé[Quand ?], celui-ci fait environ la moitié de la taille de l'original.
    • Le buste en bronze d'Eugène Cornuché, situé à l'intersection de la rue Mirabeau prolongée et du boulevard Eugène-Cornuché. Lors de son inauguration, le buste était installé sur le boulevard Eugène-Cornuché, en face de l'hôtel Normandy. Sous le régime de Vichy, il est déboulonné et fondu, dans le cadre de la mobilisation des métaux non ferreux. Avant son déboulonnage, la municipalité prend soin de faire effectuer un surmoulage en plâtre. Un buste de remplacement est installé[Quand ?]. Il est ensuite[Quand ?] déplacé vers son emplacement actuel.
    • La statue Baigneuse réalisée par Albert Leclerc, située à l'intersection de la rue Sem et de la rue de la Mer.
    • Le monument aux morts, réalisé par Max Blondat et inauguré en 1921 dans le square de l'église, près de l'église Saint-Augustin.

    Ces autres lieux et monuments sont tous classés au patrimoine de la ville[83].

    • L'église Saint-Augustin[84], construite en 1864 puis agrandie et décorée en 1929-1931 ;
    • Le temple protestant de Deauville, construit en même temps rue de la République ;
    • La villa Breloque[85] est l'habitation dans laquelle le peintre Eugène Boudin vécut la dernière année de sa vie et mourut le 8 août 1898.
    • La promenade de la plage, « les Planches » et ses « bains pompéiens » accueillent jusqu'à 20 000 visiteurs par jour les week-ends et l'été ; le front de mer est le premier à obtenir la norme iSO 9001 pour le service chargé de l'entretien et de la mise en valeur[86].
    • Le casino ;
    • Les hôtels du groupe Barrière : les palaces le Normandy et le Royal ;
    • Les planches de la plage de Deauville
      Les planches de la plage de Deauville.
      La mairie, complètement réhabilitée en style néo-normand en 1961 par l'architecte DPLG Albert Guy[87], pionnier du renouveau du style normand, Robert Fossorier étant maire ;
    • La place Morny, ses jets d'eau et son marché couvert ;
    • Les « arcades » de l'avenue du Général-de-Gaulle ;
    • Les halles à colombage ;
    • La villa Le Cercle (1876), affectée à l'origine aux propriétaires de chevaux ;
    • La piscine olympique, œuvre de Roger Taillibert (1966), inaugurée par le secrétaire d'État au Commerce extérieur Charles de Chambrun et les chanteurs Maurice Chevalier et Marie Laforêt[88] ;
    • Les Franciscaines, pôle culturel, ouvert en mai 2021.

    Équipements culturels

    Cinéma

    Deauville est dotée d'un seul cinéma : le Morny-Club, qui comporte quatre salles. Cet équipement se trouve installé depuis 1946 dans un édifice qui abritait à l'origine un magasin d'exposition Citroën[89]. Le cinéma du casino a fermé le [90].

    Pôle culturel Les Franciscaines

    En 2015, la Ville entreprend un grand projet de pôle culturel sur le site des Franciscaines qu'elle a acquis auprès de la Congrégation en 2012. Ce projet innovant échappe au « traditionnel découpage musée-médiathèque-espaces de vie culturelle et associative »[91] et se construit autour de grands thèmes chers à Deauville : le cheval, le cinéma, le spectacle, la photographie, l'art de vivre et la jeunesse. Ce lieu de vie qui regroupe dans un même espace les milliers de documents et œuvres acquis par la Ville[92] ouvre ses portes en mai 2021[93].

    Personnalités liées à la commune

    La plage de Deauville.
    Plage de Deauville
    Plage de Deauville.

    Naissances

    Décès

    Personnalités dont les noms sont associés à l'histoire de la ville

    • Gustave Flaubert (1821-1880), écrivain, était un habitué de ce qui n'était encore qu'un simple village où ses parents possédaient une ferme que l'écrivain vendit en 1875[94]
    • Sem, alias Georges Goursat (1863-1934), dessinateur, croqua le Tout-Deauville
    • Charles Adda (1873-1938), architecte des Planches et des Bains pompéiens inaugurés en juillet 1924, conçut plusieurs villas à Deauville et sa région. Une plaque lui rendant hommage est inaugurée le 9 novembre 2013
    • François André (1880-1962)
    • Armand Esders (industriel, prêt-à-porter ; 1889-1940), mécène de la ville, finance les travaux d'agrandissement de l'église et la création de l'aéroport de Saint-Gatien. Une plaque lui rendant hommage est inaugurée en 2011, donnant son nom à l'allée menant à l'église.
    • Suzy Solidor (1900-1983), y fait ses débuts dans la chanson, en 1929
    • Coco Chanel (1883-1971), styliste, y a ouvert sa deuxième boutique à l'été 1913
    • Jean Gabin (1904-1976), résident de 1958 à 1974[95],[96], Louis de Funès (1914-1983), acteurs de cinéma, et Carlos (1943-2008), chanteur, y ont possédé une résidence
    • Rita Hayworth (1918-1987), actrice américaine, y a habité dans les années 1950 en compagnie de son mari, le prince Ali Khan
    • Yves Saint Laurent (1936-2008), styliste et créateur de mode, fut un habitué des lieux. Il y ouvrit une de ses premières boutiques dans le Casino. Son nom est donné à une place
    • Jacques Mesrine et François Besse braquent le casino le 26 mai 1978 et emportent 130 000 FRF (79 947,4 EUR2023)[97]
    • Claude Lelouch (1937) a contribué à la renommée mondiale de la plage en y filmant Un homme et une femme[98]
    • La famille royale émirati Al-Maktoum y possède une villa et y réside pour assister à la saison hippique du mois d'août

    Activités culturelles

    La promenade décorée du drapeau américain.
    Les Planches, où figurent les noms d'acteurs et réalisateurs venus à Deauville.
    Cinéma
    Danse
    Musique
    Littérature
    • Le salon Livres & Musiques a lieu tous les ans, en avril, depuis 2004.
    Photographie
    • Un festival photographique Planche(s) Contact est organisé tous les ans depuis 2011, à l'automne, par la Ville de Deauville.
    Musée de Deauville

    Activités et compétitions sportives

    Courses hippiques à Clairefontaine.

    En juillet, Deauville organise depuis 1968 un tournoi international de bridge. Devenu « Festival mondial de bridge », il oppose les meilleurs joueurs de la spécialité. Les parties sont retransmises sur écran géant pour un meilleur suivi des spectateurs. Giorgio Belladonna y a participé en tant que numéro un mondial de la spécialité. L'acteur Omar Sharif est un fidèle de ce tournoi.

    Une étape de l'European Poker Tour a lieu annuellement dans le prestigieux casino.

    On a longtemps pratiqué le tir au pigeon vivant à Deauville ainsi qu'au Touquet ; c'était une activité très mondaine, préparant à la chasse. Interdit en 1977, il a été remplacé par le ball-trap.

    En 1989, la ville accueille l'Open d'Europe, l'un des seuls tournois de snooker jamais organisé en France.

    Jumelages

    Philatélie

    Le 15 mars 1961, un timbre-poste est émis pour célébrer le centenaire de la naissance de la station balnéaire[104].

    Deauville : la fiction au cinéma et à la télévision

    Notes et références

    Notes

    1. Population municipale 2022.
    2. La notion d'aire d'attraction des villes a remplacé en octobre 2020 l'ancienne notion d'aire urbaine, pour permettre des comparaisons cohérentes avec les autres pays de l'Union européenne.
    3. Population municipale de référence en vigueur au 1er janvier 2025, millésimée 2022, définie dans les limites territoriales en vigueur au 1er janvier 2024, date de référence statistique : 1er janvier 2022.

    Cartes

    1. « Réseau hydrographique de Deauville » sur Géoportail (consulté le 10 avril 2025).
    2. IGN, « Évolution comparée de l'occupation des sols de la commune sur cartes anciennes », sur remonterletemps.ign.fr (consulté le ).

    Références

    Altitudes, superficie : Répertoire géographique des communes (site de l'IGN)
    1. Franceguide.com.
    2. Dominique Barjot, Eric Anceau et Nicolas Stoskopf, Morny et l'invention de Deauville, Armand Colin, , p. 147.
    3. Jacques Pessis, Deauville, Éditions Chronique, , p. 38.
    4. 10 petites villes françaises prisées pour les vacances d'été 2021, dans Géo
    5. Distances routières les plus courtes selon Viamichelin.fr.
    6. Sandre, « la Morte »
    7. « Fiche communale de Deauville », sur le système d'information pour la gestion des eaux souterraines dans le bassin Seine-Normandie (consulté le )
    8. Sandre, « La Touques »
    9. 1 2 Daniel Joly, Thierry Brossard, Hervé Cardot, Jean Cavailhes, Mohamed Hilal et Pierre Wavresky, « Les types de climats en France, une construction spatiale », Cybergéo, revue européenne de géographie - European Journal of Geography, no 501, (DOI 10.4000/cybergeo.23155, lire en ligne, consulté le )
    10. « Zonages climatiques en France métropolitaine. », sur pluiesextremes.meteo.fr (consulté le ).
    11. « Station météorologique sur la commune de - Normales pour la période 1991-2020. », sur infoclimat.fr (consulté le ).
    12. « Climadiag Commune : diagnostiquez les enjeux climatiques de votre collectivité. », sur meteofrance.com, (consulté le ).
    13. « La grille communale de densité », sur le site de l'Insee, (consulté le ).
    14. « Unité urbaine 2020 de Dives-sur-Mer », sur insee.fr (consulté le ).
    15. 1 2 Insee, « Métadonnées de la commune ».
    16. « Liste des communes composant l'aire d'attraction de Trouville-sur-Mer », sur insee.fr (consulté le ).
    17. Marie-Pierre de Bellefon, Pascal Eusebio, Jocelyn Forest, Olivier Pégaz-Blanc et Raymond Warnod (Insee), « En France, neuf personnes sur dix vivent dans l'aire d'attraction d'une ville », sur insee.fr, (consulté le ).
    18. « Les communes soumises à la loi littoral. », sur observatoire-des-territoires.gouv.fr, (consulté le ).
    19. « Loi relative à l'aménagement, la protection et la mise en valeur du littoral. », sur cohesion-territoires.gouv.fr (consulté le ).
    20. « CORINE Land Cover (CLC) - Répartition des superficies en 15 postes d'occupation des sols (métropole). », sur le site des données et études statistiques du ministère de la Transition écologique. (consulté le ).
    21. « Géoportail (IGN), couche « Limites Administratives » activée ».
    22. « Géoportail (IGN), couche « Limites Administratives » activée ».
    23. 1 2 Arcisse de Caumont (1859) p. 239
    24. 1 2 3 Albert Dauzat et Charles Rostaing, Dictionnaire étymologique des noms de lieux en France 2e édition, Librairie Guénégaud, Paris 1979, p. 241.
    25. 1 2 3 Des villages de Cassini aux communes d'aujourd'hui sur le site de l'École des hautes études en sciences sociales.
    26. François de Beaurepaire (préf. Yves Nédélec), Les Noms des communes et anciennes paroisses de la Manche, Paris, A. et J. Picard, , 253 p. (ISBN 2-7084-0299-4, OCLC 15314425), p. 110.
    27. René Lepelley, Dictionnaire étymologique des noms de communes de Normandie, Presses Universitaires de Caen, 1996 (ISBN 2-905461-80-2), p. 109.
    28. Voir Wikimanche : étymologie d'Auville-sur-le-Vey.
    29. Trouville sur Mer : itinéraire de l'étranger aux environs de Trouville. Pont-l'Évêque : impr. de C. Delahais, 1853. 58 pages - Lire sur Normannia.
    30. Arcisse de Caumont, « Topographie géognostique du département du Calvados » dans Mémoires de la Société linnéenne de Normandie, 1828, p. 184.
    31. Arcisse de Caumont, Statistique monumentale du Calvados, t. 4 : Arrondissement de Pont-l'Évêque, Caen, Hardel, (lire en ligne), p. 239.
    32. J. Bayle (1997) p. 116 à 119.
    33. 1 2 G. Poullet (2006) p. 77.
    34. A. de Palmaert (2005) p. 32.
    35. 1 2 A. de Palmaert (2005) p. 42.
    36. A. de Palmaert (2005) p. 95.
    37. 1 2 3 G. Poullet (2006) p. 97.
    38. 1 2 3 4 5 6 7 8 9 10 11 12 13 14 15 16 17 18 D. Hébert (2005).
    39. Site historique de la ville de Deauville consulté le 17 janvier 2009.
    40. P. de Regnier (1927) p. 63.
    41. G. Poullet (2006) p. 98.
    42. J. Bayle (1997) p. 113.
    43. Guide (1868) p. 24.
    44. à référencer avec Joanne
    45. cité par J. Bayle (1997) p. 122. La mise en forme est de l'auteur.
    46. 1 2 3 J. Bayle (1997) p. 115.
    47. (en) « Deauville Harbour », sur National Gallery, Londres (consulté le ).
    48. 1 2 3 « Deauville-Trouville en 1900 - La guerre des casinos », interview de Jean Moisy et Yves Aublet par Sylvie Wolff, L'Express, 31 octobre 2007.
    49. 1 2 3 « Villas : leurs histoires et secrets dévoilés », sur actu.fr/normandie, (consulté le ).
    50. J. Bayle (1997) p. 121.
    51. Liste des stations classées sur le site du ministère de l'Économie et des Finances. Consulté le 21/01/2009.
    52. E. Florentin (1991) p. 275.
    53. E. Florentin (1991) p. 210.
    54. E. Florentin (1991) p. 209.
    55. E. Florentin (2006) p. 66.
    56. E. Florentin (1991) p. 273.
    57. E. Florentin (1991) p. 284.
    58. E. Florentin (1991) p. 515-516.
    59. 1 2 J. Bayle (1997) p. 109.
    60. Nicolas de Rouyn, « À Deauville, 85 % des clients sont Parisiens », Propriétés de France, Le Figaro, mars 2006.
    61. Fiche descriptive sur le site de la ville, consulté le 16 janvier 2009.
    62. Commune de Deauville sur site ADOS
    63. 1 2 Réélection 2020 : « Municipales à Deauville. Philippe Augier réélu sans surprise », sur ouest-france.fr, Ouest-France (consulté le ).
    64. L'organisation du recensement, sur insee.fr.
    65. Calendrier départemental des recensements, sur insee.fr.
    66. Fiches Insee - Populations de référence de la commune pour les années 2006, 2007, 2008, 2009, 2010, 2011, 2012, 2013, 2014, 2015, 2016, 2017, 2018, 2019, 2020, 2021 et 2022.
    67. 1 2 Chiffres clé - Deauville, INSEE, décembre 2008.
    68. « Deauville », Trésor des régions, 2008.
    69. Arrêté du 5 février 2016 délimitant une Zone touristique internationale à Deauville, sur le site www.legifrance.gouv.fr.
    70. « Recueil des actes administratifs du Calvados n°8/2009 (page 304) »(Archive.orgWikiwixArchive.isGoogle • Que faire ?) [PDF] (consulté le ).
    71. Les chiffres, site de l'aéroport Deauville Saint-Gatien, consulté le 25 janvier 2008.
    72. « Deauville-Trouville Magazine indépendant », sur Deauville-Trouville Magazine indépendant (consulté le ).
    73. Capture du site en 2016.
    74. « Les armes de Deauville »(Archive.orgWikiwixArchive.isGoogle • Que faire ?).
    75. « Ancienne église paroissiale, ou chapelle Saint-Laurent », notice no PA00111278, sur la plateforme ouverte du patrimoine, base Mérimée, ministère français de la Culture.
    76. « Ancienne villa Rothschild, puis villa Strassburger », notice no PA00111279, sur la plateforme ouverte du patrimoine, base Mérimée, ministère français de la Culture.
    77. « Gare SNCF de Trouville - Deauville », notice no PA14000090, sur la plateforme ouverte du patrimoine, base Mérimée, ministère français de la Culture.
    78. Arrêté préfectoral CRMH 19-002 du 11 juin 2019.
    79. « Bureau de poste », notice no EA14000005, sur la plateforme ouverte du patrimoine, base Mérimée, ministère français de la Culture.
    80. « Salle des ventes de chevaux de course dite centre Élie de Brignac », notice no IA14000787.
    81. « Le chantier naval deauvillais va disparaître », Ouest-France, 4 juin 2008.
    82. « Usine de construction navale », notice no IA14000788.
    83. la ville de Deauville protège et valorise 555 de ses bâtiments en créant en 2005 une ZPPAUP - Zone de protection du patrimoine architectural, urbain et paysager.
    84. « Église Saint-Augustin », notice no IA14003075.
    85. « Villa Breloque », notice no IA14003196.
    86. Deauville, front de mer certifié ISO 9001, Géomètre no 2082, juin 2011.
    87. Notice AGORHA d'Albert Guy en ligne .
    88. Daphné Cagnard, « Piscine olympique de Deauville, 50 ans d'histoire », sur ouest-france.fr, (consulté le ).
    89. « Cinéma Morny de Deauville », sur inDeauville - Tourisme, Evénements, City Guide - Site officiel du territoire Deauville, (consulté le ).
    90. « Cinéma du casino Barrière de Deauville : c'était la dernière séance », sur actu.fr (consulté le ).
    91. « Un projet innovant », sur inDeauville - Tourisme, Evénements, City Guide - Site officiel du territoire Deauville, (consulté le ).
    92. « La médiathèque », sur inDeauville - Tourisme, Evénements, City Guide - Site officiel du territoire Deauville, (consulté le ).
    93. « Projet les Franciscaines »(Archive.orgWikiwixArchive.isGoogle • Que faire ?), sur inDeauville - Tourisme, Evénements, City Guide - Site officiel du territoire Deauville, (consulté le ).
    94. Édouard Launet, « Deauville, de Flaubert à Hitler », Libération, 3 août 2006.
    95. « Deauville : une plaque en hommage à Jean Gabin », Ouest-France, 17 septembre 2012.
    96. « Florence Moncorgé chez elle à Deauville », Ouest-France, 21 janvier 2003.
    97. Philippe Mirkovic, « On tourne le braquage de Mesrine à Deauville », Ouest-France, 16 mai 2007.
    98. deauville.org.
    99. Deauville Green Awards.
    100. « Concours Nijinsky », Compagnie chorégraphique François Mauduit, site internet.
    101. Concours de danse Nijinski.
    102. « Site officiel de la Ligue Basse-Normandie – AS Trouville-Deauville » (consulté le ).
    103. 1 2 3 4 « Annuaire des villes jumelées »(Archive.orgWikiwixArchive.isGoogle • Que faire ?), sur afccre.org, AFCCRE (consulté le ).
    104. Le timbre.

    Voir aussi

    Sources et bibliographie

    • Jean Bayle, Ports et Plages de la Côte Fleurie, éditions Charles Corlet, Condé-sur-Noireau, 1997.
    • Collectif, Les bains de mer de Deauville – Guide, saison de 1868, imp. de Lemale, Le Havre, 1868.
    • Arcisse de Caumont, Statistique monumentale du Calvados, t. 4 : Arrondissement de Pont-l'Évêque, Caen, Hardel, (lire en ligne), p. 239-240
    • Eddy Florentin, La Rückmarsch, Presse de la Cité, Paris, 1991.
    • Eddy Florentin, Opération Paddle, Presse de la Cité, Paris, 2006 ; 1re édition 1993.
    • D. Hébert, « Deauville : création et développement urbain », dans In Situ no 6, ministère de la Culture et de la Communication, septembre 2005.
    • René Lepelley, Dictionnaire étymologique des noms de communes de Normandie, Charles Corlet et Presses universitaires de Caen, 1996.
    • Ginette Poullet, Au vrai chic balnéaire, Charles Corlet, Condé-sur-Noireau, 2006.
    • Yves Aublet, Deauville, Alan Sutton, , 128 p.
    • Auberges et Hôtels de Normandie Du Havre à Deauville, Mémoire en Images, Laurence Abensur-Hazan, éd. Alan Sutton, 2e trimestre 2009, (ISBN 978-2-8138-0011-4)
    • Roland Sadaune, Deauville entre les planches, Villeneuve-d'Ascq, Ravet-Anceau, , 240 p. (ISBN 978-2-35973-204-7)
      Roman policier.
    • Didier Hébert, Deauville : création et développement urbain, In Situ, rue des patrimoines, année 2006, no 6 Texte
    • Gilles Plum, Villas balnéaires du Second Empire : Trouville, Deauville et Côte fleurie, édition Cahier du Temps, 2001, 119 p.
    • Maurice Culot, Trouville Deauville. Société et architectures balnéaires, Norma, 1992.

    Articles connexes

    Liens externes

    • icône décorative Portail des communes de France
    • icône décorative Portail du Calvados