Fort romain de Stockstadt

| Période d'activité | |
|---|---|
| Localité moderne | |
| Province romaine | |
| Statut de la localité | |
| Coordonnées |
49° 58′ 39″ N, 9° 04′ 03″ E |
![]() |
![]() |
L'ancien fort romain de Stockstadt est un ancien camp romain situé à Stockstadt am Main, dans l'arrondissement d'Aschaffenbourg en Basse-Franconie en Bavière.
Localisation
Le camp militaire romain était situé au sud de l'actuel quartier résidentiel, sur les deux côtés de la ligne ferroviaire Rhein-Main-Bahn, entre la gare de Stockstadt et la rivière Main. La zone a été entièrement réaménagée avec des installations industrielles et il ne reste aucune trace des sites antiques.
Des fouilles qui ont duré plusieurs années, principalement au début du XXe siècle, ont mis en évidence un complexe fortifié comprenant deux bâtiments prédécesseurs déjà documentés, ainsi qu'une succession de différentes troupes stationnées à cet endroit. Depuis les débuts du Limes de Germanie supérieure et de Rhétie jusqu'à la Chute du limes de Germanie (durant le IIIe siècle), Stockstadt était un camp important sur la ligne principale, le soi-disant Main Limes (en). Le site est important pour la recherche archéologique en raison du grand nombre de monuments en pierre, qui ont été découverts principalement dans le vicus de la zone de deux mithraea[1] (Mithraea de Stockstadt), un sanctuaire Jupiter Dolichenus [2] et une station de beneficiarius.
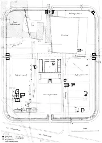
Plan du Mithraeum et du sanctuaire Jupiter Dolichenusdu fort romain de Stockstadt.
Fouilles archéologiques
La plupart des objets découverts lors des premières fouilles ont été irrémédiablement perdus. Les monuments en pierre furent ensuite donnés au musée de Saalburg. Seules quelques-unes des découvertes furent intégrées aux collections municipales d'Aschaffenburg ou au musée d'histoire locale. En 1908 et 1909, la Société historique d'Aschaffenbourg organisa plusieurs nouvelles fouilles[3].
En 1962, lors de la fouille d'un bâtiment industriel dans la zone de stockage nord du fort de cohorte, un trésor monétaire comprenant au moins six aurei et 1 315 deniers ont été découverts dans une jarre. La pièce la plus récente du trésor avait été frappée entre 167 et 168 apr. J.-C. Il est probable que le trésor monétaire ait été caché aux envahisseurs Chattes pendant les guerres marcomanes et se trouve aujourd'hui au musée de l'abbaye d'Aschaffenbourg[4].
Plusieurs petites recherches ont été menées au début des années 1990. Elles ont permis d'obtenir de nouvelles informations sur l'habitat civil et les cimetières. Deux autres autels de consécration ont été découverts dans une cave comblée située à 50 m mètres à l'extérieur de l'angle sud du fort de cohorte[5]. La présence de cinq sépultures de chevaux, d'animaux mâles aux membres courbés dans les environs reste inexpliquée. La découverte d'un quartier de poteries et de briqueteries comprenant plus de 80 tombes incinérées et remplies de feu a fourni des informations supplémentaires sur les cimetières[6].
Découvertes du Mithraeum de Stockstadt, exposées au musée de Saalburg.
Pierre de consécration d'un beneficiarius de la Legio VIII Augusta.
Plaque votive en argent du Mithraeum de Stockstadt.
Voir aussi
Notes et références
- ↑ Mithrae von Stockstadt - Site mithaeum.eu.
- ↑ (de) M. P. Speidel, Jupiter Dolichenus. Der Himmelgott auf dem Stier, Stuttgart, 1980.
- ↑ Friedrich (1914) Le fort de Stockstadt. ORL B (en allemand). Vol. 3. Heidelberg/Berlin/Leipzig : Otto Petters.
- ↑ Sur le trésor de pièces de monnaie, voir Kellner, Hans-Jörg (1963). Une trouvaille au trésor du fort de Stockstadt, quartier d'Aschaffenburg. Germanie (en allemand). p. 119-122.
- ↑ Dietz, Karlheinz, Deux dédicaces à Jupiter de Stockstadt a. Main. District d'Aschaffenburg, Basse-Franconie. L'année archéologique en Bavière 1990 (en allemand). Stuttgart : Konrad Theiss. p. 104-107.
- ↑ Wamser, Ludwig. Fouilles dans le vicus du fort romain Stockstadt a. Main. District d'Aschaffenburg, Basse-Franconie. L'année archéologique en Bavière 1990 (en allemand). Stuttgart : Konrad Theiss.p. 98-104.
Bibliographie
- Dietwulf Baatz, Stockstadt am Main AB. Kohortenkastell in Dietwulf Baatz und Fritz-Rudolf Herrmann (Hrsg.), Die Römer in Hessen. Lizenzausgabe der 3. Auflage von 1989. Nikol, Hamburg, 2002, p. 479–481 (ISBN 3-933203-58-9).
- Hans-Jörg Kellner, Ein Schatzfund aus dem Kastell Stockstadt, Lkr. Aschaffenburg in Germania 41, 1963, pp. 119–122.
- Bernd Steidl, Welterbe Limes: Roms Grenze am Main, Logo, Obernburg am Main, 2008 (ISBN 3-939462-06-3).
Articles connexes
- Fort romain de Saalburg
- Portail de l’histoire
- Portail de l’archéologie
- Portail de la Rome antique
- Portail de la Bavière

