Hôpital Laennec de Paris

| Type |
Ancien hôpital (d) (), complexe immobilier, bâtiment d'hôpital (d) |
|---|---|
| Architectes | |
| Construction |
- |
| Ouverture | |
| Fermeture |
, |
| Occupants | |
| Propriétaires | |
| Patrimonialité | |
| Remplace |
Hospice des Incurables de Paris (d) |
| Site web |
| Adresse |
40-42 rue de Sèvres , 65-79 rue Vaneau et 4 impasse Oudinot 7e arrondissement de Paris, Paris |
|---|
| Coordonnées |
48° 50′ 58″ N, 2° 19′ 16″ E |
|---|

L’hôpital Laennec est un ancien hôpital parisien du 7e arrondissement, situé 40 rue de Sèvres, dont les services ont été déplacés à l’hôpital européen Georges-Pompidou en 2000. Il devait son nom à René Laënnec, médecin français initiateur du diagnostic médical par auscultation grâce à l'invention du stéthoscope.
Histoire


En 1634, François de la Rochefoucauld, cardinal et grand aumônier de France, entreprend la construction d'un hôpital pour les pauvres affligés de maux incurables, d'où le nom donné à l'époque d'hospice des Incurables. Pour le faire fonctionner, il obtiendra en 1637 des lettres patentes du roi[2], des privilèges, des franchises et les autorisations ecclésiastiques nécessaires[3].
Un hôpital succède à l'hospice des Incurables, construit par Christophe Gamard[4], lorsque celui-ci est transféré, pour ce qui concerne les femmes[5], en 1873 à Ivry dans le nouvel hôpital. En 1878, il est renommé en l'honneur du médecin René Laennec.
On y trouve les sépultures du cardinal de La Rochefoucauld, Michel-Étienne Turgot et Robert Turgot. Un buste du troisième est installé à l'entrée du site.
Sa chapelle connut un moment de célébrité médiatique, lorsque Mgr François Ducaud-Bourget y organisa, jusqu'en 1971, le seul centre de messe tridentine de Paris.
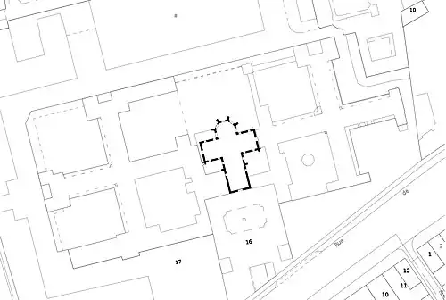
- Plans
Plan de l'hôpital
(éch. : 1/500).
Plan de la chapelle
(éch. : 1/100).
Le bâtiment
L'hôpital Laennec est caractéristique du style dit Louis XIII. L'utilisation typique de matériaux contrastés (pierre, brique, ardoise) anime les différents bâtiments de l'hôpital. Il faut noter également la rigoureuse symétrie du plan en forme de croix, avec en son centre la chapelle. La simplicité et la régularité restent de mise concernant les façades.
La chapelle
La Chapelle est un modèle de sobriété et de rigueur. Si sa façade se dessine par une modénature sophistiquée et rythmée, sa nef et son transept planifient un espace quasi immaculé, et distribuent l’ensemble en plusieurs fonctions : chœur pour le chant et les ecclésiastiques, nef pour accueillir les fidèles, ailes gauche et droite pour rejoindre l’hôpital. Les vitraux sont eux aussi très sobres : peu de couleur vives et quasi absence de motifs. Subsistent en ses murs la chaire dite de Bossuet, un tableau de Philippe de Champaigne ; et les tombeaux du cardinal François de La Rochefoucauld, de Turgot et d'autres membres de sa famille, ainsi que de l'évêque Jean-Pierre Camus.
Données sur la chapelle :
- largeur : 25,30 m
- longueur : 32,20 m
- superficie : 376 m²
- hauteur : 14,52 m

Photographie de 1927.


.jpg)
Nouvelle affectation des bâtiments
L'ensemble des bâtiments fait l'objet à partir de 2010 d'un vaste programme immobilier baptisé « Paris 7 Rive Gauche », dont les travaux s'achèvent en 2014.
Pour cause de vétusté, l'Assistance publique - Hôpitaux de Paris vend en 2002 l’ensemble du quartier Laennec à COGEDIM, associée alors à AGF (devenu ALLIANZ). Celui-ci en fera un programme immobilier mixte. Composé à la fois de logements privés, de baux commerciaux et d'une résidence étudiante, l’ensemble architectural accueille aussi le futur siège social du groupe de luxe Kering au sein de l’hôpital en forme de croix. Quant à la chapelle située en son cœur, aucune fonction ne lui a été trouvée[6].
Le site de 3,8 hectares dont 2 de jardins se trouve entre la rue de Sèvres et la rue Vaneau. « Un nouveau jardin d'environ 3 500 m2 sera accessible au public par le jardin Catherine-Labouré et par l'impasse Oudinot, et des ouvertures seront créées dans le mur de la rue de Sèvres pour offrir aux passants des perspectives visuelles sur l'intérieur du site, notamment la vue sur les Croix[7]. »
Les anciens bâtiments de l'hôpital sont transformés en bureaux, tandis que des logements neufs sont construits le long de la rue Vaneau.
Le programme est composé de :
- 197 appartements
- 80 logements sociaux
- 50 logements pour étudiants
- 17 200 m² de bureaux
- 4 500 m² de commerces
- 1 résidence pour seniors
L’agence d’architecture Valode et Pistre est chargée de mener ce projet[8] aux côtés des paysagistes Philippe et Benjamin Thebaud[9] .
C'est en 2016 que Kering y installe son siège. Lors des Journées européennes du patrimoine, les visiteurs peuvent y découvrir une sélection d’œuvres d’art contemporain de la collection Pinault, ainsi que certaines œuvres de la maison Balenciaga[10]. Kering s'est impliqué aux côtés de l'architecte en chef des monuments historiques, Benjamin Mouton, dans la restauration du bâtiment[1]. La chapelle, édifiée sous Louis XIII et classée monument historique en 1977[11], est épargnée[12].
Malgré sa protection au titre des monuments historiques, la sacristie de la chapelle de l'hôpital est rasée fin 2011 à la suite d'une « erreur humaine » commise par une entreprise de démolition[13].
- La rénovation des bâtiments
- Les anciens bâtiments rénovés.
Entrée et cour.- Carré de jardin.
- Pavillon rénové.
Au cinéma
Dans le film La Maman et la putain (1973) de Jean Eustache, le personnage de Veronika est infirmière à l'hôpital Laennec[14] et le personnage d'Alexandre la raccompagne plusieurs fois à l'hôpital.
Notes et références
- 1 2 « Au 40, rue de Sèvres, entre Histoire, Art et Création », sur Luxury Highlights (consulté le ).
- ↑ Lettres patentes du roi Louis XIII données en avril 1637 portant établissement de l'hôpital des Incurables de Paris. À voir dans la Revue d'histoire de la pharmacie n°325, année 2000, pp. 53-72 sur persee.fr.
- ↑ Alain Dauphin et Christine Mazin-Deslandes, « Quatre siècles de pharmacie à l'hôpital Laennec de Paris », Revue d'histoire de la pharmacie, no 325, , p. 53-72 (lire en ligne).
- ↑ Architecte : Christophe Gamard.
- ↑ Les incurables hommes furent transférés en 1802 dans l'ex-couvent des Récollets du faubourg Saint-Martin. Jacques Hillairet, Connaissance du Vieux Paris, Éditions de Minuit.
- ↑ Voir sur patrimoine-religieux.fr.
- ↑ Batiactu, « L'ancien hôpital Laennec devient un lieu de vie (diaporama) », sur Batiactu, (consulté le )
- ↑ « Laennec Rive Gauche | Valode et Pistre architectes », sur v-p.com (consulté le ).
- ↑ Batiactu, « L'ancien hôpital Laennec devient un lieu de vie (diaporama) », sur Batiactu, (consulté le )
- ↑ Disko, « 40, rue de Sèvres : le siège social à Paris », sur kering.com (consulté le ).
- ↑ Notice no PA00088690, sur la plateforme ouverte du patrimoine, base Mérimée, ministère français de la Culture
- ↑ Le projet du groupe Alianz de transformer la chapelle en « salle polyvalente » suscite beaucoup de réserves. « Il faut sauver le tombeau de Turgot », émission de Canal Académie, téléchargeable en mp3.
- ↑ Jean-Jacques Larrochelle, « Cent ans de loi sur le patrimoine, dix ratés », Le Monde, (lire en ligne, consulté le )
- ↑ Éric Neuhoff, « "La Maman et la Putain" : l'antre de la légende », Le Figaro (supplément Le Figaro et vous), , p. 25 (lire en ligne).
Voir aussi
Bibliographie
- Collectif, De l'hospital des Incurables à l'hôpital Laennec. 1634-2000. Une histoire de la médecine à la veille du troisième millénaire, Éditions Hervas, 2000 (ISBN 9782843340123)
Articles connexes
Liens externes
- L’hôpital Laennec, siège social de Kering, Paris Promeneurs
- « Locataire de la chapelle Laennec, le groupe Kering souhaiterait l’apaisement », Institut Pèlerin du Patrimoine.
- Portail de l’architecture et de l’urbanisme
- Portail de la médecine
- Portail des soins infirmiers
- Portail des monuments historiques français
- Portail de Paris