Hôtel de Louvois


L'Hôtel de Louvois est un hôtel particulier embelli par le marquis de Louvois, ministre du roi Louis XIV, à l'emplacement de l'actuel square Louvois. Il donnait sur la rue de Richelieu. Il était l'un des plus beaux et des mieux tenus de Paris au XVIIe siècle.
Succession des propriétaires
- Au début du XVIIe siècle, le terrain appartient à l'abbaye de Saint-Victor.
- De la première moitié du XVIIe siècle à 1660, il appartient à Pierre de Monceaux (1608 - ), Grand Audiencier de France en 1633, qui y fait bâtir un hôtel.
- Entre 1660 et 1669, il est la propriété de Basile Fouquet, (1622 - 1680), frère de Nicolas Fouquet, qui le fait agrandir.
- Entre 1669 et 1691, il appartient à François Michel Le Tellier de Louvois (1641 - 1691) qui charge en 1680 l'architecte Charles Chamois de l'agrandir. C'est dans cet hôtel qu'est rassemblé en 1688 un ensemble d'archives formant le premier dépôt de la Guerre[1].
- Après la mort de Louvois en 1691 et jusqu'en 1784, il passe à ses héritiers jusqu'à son arrière-petit-fils, Louis-Sophie de Louvois, marquis de Louvois et de Souvré (1740 - 1785), qui le fait démolir en vue de lotir un terrain sur lequel est ouverte la rue de Louvois.
Architecture et plans
L'Hôtel de Louvois du côté de la cour d'entrée
Elévation du pavillon en aile du côté de la cour de l'hôtel de Louvois, 1 rue de Louvois, actuel 2ème arrondissement. D.11301
Elévation de la façade côté jardin de l'hôtel de Louvois, 1 rue de Louvois, actuel 2ème arrondissement. D.11300
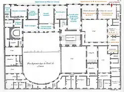
Plan de l'Hôtel de Louvois, rue de Richelieu à Paris - dessin - Agence Jules Hardouin-Mansart - btv1b530502511 (3 of 5)
Description détaillée de l'hôtel au temps de Louvois (inventaire de 1690)
Bien que l'hôtel Louvois ait disparu, l'inventaire après décès du ministre est assez précis et permet de comprendre à quoi pouvait ressembler les intérieurs. Il faut pour cela confronter les plans disponibles. Des copies des plus beaux tableaux vénitiens et de l'école bolonaise ornaient les dessus-de-cheminées. L'appartement de Mme de Louvois, le plus beau, était situé au premier étage. Celui de Louvois était situé au rez-de-chaussée.
L'appartement de Louvois au rez-de-chaussée


L'appartement du ministre était situé au rez-de-chaussée. Ainsi, les visites incessantes pour les audiences et autres, n'impactaient pas la vie de l'étage. L'appartement était situé du côté du jardin. Une grande antichambre basse desservait à la fois l'appartement de Louvois et celui de son fils Barbézieux. L'ensemble est décoré de tapisseries, comme la plupart des pièces de réceptions de l'hôtel. L'antichambre donne sur le jardin, et dispose de nombreux fauteuils de velours vert. Au-dessus des portes, des tableaux copies de Nicolas Poussin. Il n'y a pas de tableaux sur les parois au-dessus des lambris bas, mais de nombreuses tapisseries tissées de fils d'or et d'argent. Le Grand Cabinet était la pièce la plus spectaculaire de l'appartement. elle disposait de trois ouvertes qui offrait une belle luminosité. La pièce était de plan carré. Un pastel de Louis XIV par Charles Le Brun trônait au-dessus de la cheminée. Des tableaux d'après Nicolas Poussin étaient placés en dessus-de-porte. Un grand bureau et un plus petit prouvait que le cabinet faisait fonction de cabinet de travail de Louvois en son hôtel.
Le cabinet des tableaux terminait l'appartement : on y célébrait l'art de Pierre de Mignard, successeur de l'école Bolonaise et des grands peintres vénitiens du XVIe siècle. Louvois ne s'y connaissait pas en peinture, le cabinet des tableaux était une pièce remplie de belles copies, plutôt simplement décoratives.
Restitution de la grande salle basse de l'Hôtel Louvois, 1690
Restitution de l'antichambre de Louvois à l'Hôtel Louvois à Paris, 1690
Restitution du Grand Cabinet de l'appartement de Louvois à l'hôtel Louvois, 1690.
Restitution de la chambre à coucher de Louvois, en l'hôtel Louvois, 1690 (le lit n'est pas représenté)
Restitution du Cabinet des tableaux de Louvois à l'hôtel Louvois, 1690.
Restitution de la salle à manger de Louvois en l'hôtel Louvois, rez-de-chaussée, côté cour, 1690.
Restitution du Cabinet sur cour de l'appartement de Louvois, au rez-de-chaussée de l'Hôtel Louvois, 1690
L'appartement de Mme de Louvois au premier étage

Mme de Louvois disposait du plus bel appartement de tout l'hôtel, au premier étage. Il servait également sans doute d'appartement de parade. Une grande antichambre servait de grand salon, où un clavecin était installé, ce qui incite à y voir une salle de festivités. Une antichambre suivait, puis la grande chambre de parade, avec trois baies sur le jardin. Ensuite un cabinet entre les deux chambres, puis la chambre à coucher de Mme Louvois. Enfin, on trouvait tout au bout de l'enfilade de l'appartement de Mme de Louvois un petit cabinet des miroirs, orné de 36 miroirs sur les parois, plus trois miroirs au-dessus de la cheminée, où était également placée une copie du Moïse de Véronèse. En revenant sur nos pas, on retrouvait également une belle salle à manger, ornée de paysages de Charles Hérault, qui avait fourni des tableaux à Louvois pour décorer la demeure. A côté, un Cabinet sur cour était embelli par de nombreux miroirs, ce qui le transformait en une sorte de cabinet des miroirs, où des tables de jeux avaient été disposées. L'inventaire après décès de 1690 de Louvois, permet de restituer et de retrouver les volumes et décors de la pièce, puisqu'il donne la liste des tableaux ainsi que les mesures des miroirs. Il faut simplement songer que les murs étaient encore embellis par de nombreuses tapisseries, dont Louvois était un fin connaisseur et qu'il collectionnait.
Restitution de la grande salle de l'appartement de Mme Louvois, premier étage de l'Hôtel Louvois, 1690
Restitution de l'antichambre de Mme Louvois, premier étage de l'Hôtel Louvois, 1690
Restitution de la Grande chambre de Mme Louvois, premier étage de l'Hôtel Louvois, 1690
Restitution du Cabinet entre les deux chambres, de Mme Louvois, premier étage de l'Hôtel Louvois, 1690
Restitution de la chambre à coucher de Mme Louvois, premier étage de l'Hôtel Louvois, 1690
Restitution des parois du Cabinet des miroirs de Mme de Louvois au premier étage de l'hôtel Louvois, Paris, 1690.
Restitution du Cabinet des miroirs de Mme de Louvois, au bout de l'enfilade du premier étage de l'Hôtel Louvois, 1690.
Restitution de la salle à manger de Mme Louvois, premier étage de l'Hôtel Louvois, 1690
Restitution du Cabinet sur cour de Mme Louvois, premier étage de l'Hôtel Louvois, 1690
La galerie et la bibliothèque

Au nord, dans une aile perpendiculaire à l'enfilade du premier étage, se trouvait une magnifique galerie, éclairée par 9 fenêtres (d'après l'inventaire après décès de 1690 qui cite 9 rideaux). Or le plan de la galerie, qui n'est pas connu, peut être déduit par l'emprise de l'aile au niveau du rez-de-chaussée. Cette galerie magnifique, dorée, possédait une voûte demi-circulaire. Elle constituait sans conteste la pièce la plus luxueuse de tout l'hôtel Louvois. On peut en comprendre l'aménagement grâce à l'inventaire de 1690. Quatre tableaux d'après Poussin, l'Albane et Rubens ornaient les dessus-de-porte. Au-dessus de la cheminée, qui était située tout au bout de la galerie (comme pour la future galerie de Monsieur au Palais-Royal ou la galerie de l'hôtel de Toulouse) se trouvait une belle copie de la Visitation d'après Sebastiano del Piombo. La présence de ces toiles permet de restituer cette paroi du bout de la galerie sans grandes difficultés. On trouvait trois portes réelles et une fausse-porte, pour respecter la symétrie. Au sud de la pièce prenaient place les neuf baies. La galerie était en effet disposée plein sud. Entre chaque baie devait se trouver un pilastre d'ordre corinthien (ou ionique ?). Les pilastres de la paroi nord étaient évidemment placés en symétrie des pilastres sud. On ne sait pas quel décor ornait les lambris nord, entre les pilastres, mais il n'y avait pas de miroirs ni tableaux, car l'inventaire après décès du ministre de 1690 n'en n'indique pas. Plus probablement, ces lambris devaient recevoir des décors sculptés de trophées militaires célébrant la gloire du roi et la bonne gestion des affaires militaires par Louvois lui-même. La paroi est était identique à la paroi de la cheminée, mais sans cette dernière. A la place, on y trouvait un grand cabinet fort luxueux placé dans l'axe de symétrie.
Au XVIIIe siècle
Démolition totale
Projet pour le percement de la rue de Louvois sur l’emplacement de l’Hôtel de Louvois, en 1784. D.7490
Rue de Richelieu, D.17184- Fontaine du square Louvois à l'emplacement de l'hôtel disparu
Notes et références
- ↑ Chronique du Journal Général de l'Imprimerie et de la Librairie - Catalogue du Fonds Merlin, Paris, Imprimerie Pillet Fils Aîné, , 222 p. (lire en ligne), p.86
Liens externes
- Portail de l’architecture et de l’urbanisme
- Portail de Paris