Lapis niger

Lapis niger
Image illustrative de l’article Lapis niger
Stèle du Lapis niger, musée des Thermes de Dioclétien.

Lieu de construction Regio VIII Forum Romanum
Forum Romain
Date de construction VIe-Ve siècle av. J.-C.
Ordonné par Monarchie romaine
Type de bâtiment Stèle
Le plan de Rome ci-dessous est intemporel.
Carte de la Rome antique montrant la localisation de Lapis niger.
Lapis niger
Localisation de la stèle dans la Rome antique (en rouge)

Coordonnées 41° 53′ 34″ nord, 12° 29′ 06″ est
Liste des monuments de la Rome antique

Le Lapis niger pierre noire » en latin) est un cippe en tuf volcanique trouvé à Rome, au Forum Romain, en janvier 1899[1], devant le Comitium. Il porte des lettres archaïques gravées qui en font une des plus anciennes inscriptions latines, datable des environs du Ve siècle av. J.-C. (selon les auteurs, du deuxième quart du VIe siècle av. J.-C.[1], ou d'environ -510[2], ou bien « non postérieure au Ve siècle av. J.-C. »[3], ou encore du début du IVe siècle av. J.-C.[4]).

Historique

Cette pierre fait partie d'un sanctuaire du même nom, situé entre le Forum et le Comitium. Les vestiges de ce sanctuaire, perdus par suite du développement des constructions sous l'Empire romain et du chaos dû à sa chute, ont été mis au jour au tout début du XXe siècle par l'archéologue italien Giacomo Boni. Ils sont accessibles par un escalier creusé dans le sol, aménagé juste devant la Curie.

L'inscription fait allusion à un roi (rex), et peut donc évoquer des événements datant de la Royauté, ou peut-être s'agit-il d'un rex sacrorum, haute autorité religieuse du début de la République romaine. À un moment donné, les Romains ont oublié la signification originale de l'édifice, ce qui les a conduits à proposer plusieurs légendes contradictoires au sujet du sanctuaire : Festus Grammaticus fait allusion à une pierre noire (lapis niger in Comitium) en rapport avec la mort de Romulus, premier roi de Rome, ou comme tombe de Faustulus, qui avait recueilli Romulus[5] ; certains comme Varron ou Denys d'Halicarnasse croyaient que le Lapis niger marquait la tombe de Romulus ; d'autres en faisaient la tombe d'Hostus Hostilius, père du roi Tullus Hostilius[6],[1].

La découverte de cette inscription, manifestement archaïque, s'accompagna d'une polémique sur sa datation. Les Italiens Giacomo Boni et le linguiste Luigi Ceci y voyaient une preuve de l'authenticité des récits de Tite-Live sur les origines de la fondation de Rome et la dataient du VIIe siècle av. J.-C.. Cette position traditionaliste les opposait aux historiens Barthold Georg Niebuhr et Theodor Mommsen, dont les ouvrages, écrits avant les fouilles du Forum, faisaient autorité et professaient une vision hypercritique, ravalant les récits des origines de Rome au rang de légendes sans valeur historique. La discussion se développa entre les partisans d'une datation vers les VIIe ou VIe siècle av. J.-C. et les critiques situant l'inscription au Ve siècle av. J.-C., voire au IVe siècle av. J.-C.. Même si les positions hypercritiques furent également défendues par Ettore Pais, la question prit rapidement l'allure d'une querelle nationaliste entre Allemands et Italiens[7].

Des explorations ultérieures menées entre 1955 et 1960 permirent de situer les éléments du monument entre la fin du VIe siècle av. J.-C. et le début du Ve siècle av. J.-C.[6].

Description

Le Lapis niger a connu deux consécrations successives : il y eut d'abord un sanctuaire de style traditionnel, rasé et enterré sous des dalles de marbre noir au cours du Ier siècle av. J.-C., livrant ainsi le site à sa seconde consécration.

Le sanctuaire d'origine

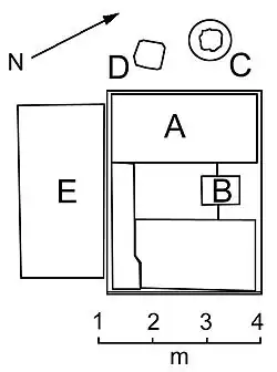
Plan du sanctuaire du Lapis Niger, sur le Forum Romain.

À l'origine, ce lieu sacré était composé d'une stèle de tuf (la pierre éponyme, lettre D sur le plan) comportant une inscription difficilement déchiffrable en latin archaïque qui menaçait des plus graves malédictions quiconque oserait en troubler le lieu, d'une base de colonne (lettre C) et d'un autel (lettre A), dont il ne subsiste que la base attenante à une structure non identifiée (lettre E). Devant l'autel sont encore deux bases de pierre : l'antiquaire Verrius Flaccus, contemporain d'Auguste, dont les travaux sont conservés dans l'épitomè de Festus Grammaticus, a décrit la statue d'un lion au repos placé sur chacune des bases, « tout comme ceux qu'on peut voir aujourd'hui gardant des tombeaux ».

Les fouilles archéologiques ont révélé divers éléments dédicatoires de fragments de vases, de statues et de figures de sacrifices d'animaux, trouvés autour d'une couche de gravier délibérément disposée à cet endroit. Tous ces objets datent de la Rome très ancienne, entre le VIIe et Ve siècles av. J.-C..

Le second sanctuaire

Les monuments du premier sanctuaire furent tronqués à une époque indéterminée, soit par vandalisme, soit pour relever le niveau du forum. Le matériau de comblement du niveau primitif contenait des cendres, des statuettes en bronze, des terres cuites, des céramiques du IVe siècle av. J.-C. et des éléments d'époque postérieure, qui placeraient l'ensevelissement au plus tard vers le IIe ou Ier siècle av. J.-C.[6].

La seconde version du sanctuaire, après la démolition de la première pour faire place à la poursuite de la construction du forum, est beaucoup plus simple : un revêtement de marbre noir a été posé sur le site d'origine et entouré d'un muret de marbre blanc, comportent des traces de restaurations[6]. Le nouveau sanctuaire se trouvait juste à côté des Rostres, la tribune des orateurs.

L'inscription

L'inscription, répartie sur les quatre faces et une des arêtes chanfreinée de la stèle[8], présente, de tous les lettrages latins connus, le plus proche des lettres grecques, plus proche encore de l'alphabet grec original que celui emprunté par les peuples de colonies grecques de l'Italie, telles que Cumes.

Elle est écrite en boustrophédon , c'est-à-dire en alternance de droite à gauche, puis de gauche à droite, comme beaucoup des plus anciennes inscriptions latines. La ligne rem hai ou rem hab présente même la particularité d'avoir ses caractères inversés de haut en bas, ce qui est une variante connue par ailleurs (le « boustrophédon inverse »), qui consiste à retourner le support après chaque ligne pour écrire la suivante.

Le Lapis niger (transcription complète).
Éléments de déchiffrement de l'inscription du Lapis niger
Lapis niger éléments de latin classique interprétation

quoi hoi (ou hon[1])...
...sakros es
ed sorm (ou sord[1],[9])...

... ia . ias (ou oka fhas[1])
regei ic... (ou io[1], ou lo[9]...)
...evam
quos ri... (ou re[1],[9])

...m kalato-
rem hai (ou hab[1])...
...o iod (ou tod[1]) iouxmen-
ta kapia dotav (ou kapiad otav[1])...

m ite ria... (ou rit[9]..., ou iter p[1]...)
...m (ou...n[1]) quoi ha-
velod nequ...
...odiovestod... (ou iod iovestod[1])

(...loivquiod[9] ou loivquiod qo[1])...

QUI HVNC [locum violaverit]
SACER ESTO (SIT)
...

...
REGI
...
...

CALATOREM
...
IVMENTA
CAPIAT



IVSTO


Qui violera ce lieu
sera maudit
...

...
au roi
...
...

le héraut
...
le bétail
prenne



juste


L'inscription a une importance fondamentale pour l'étude de l'évolution de la langue latine : les philologues (parmi eux Luigi Ceci, qui a amplement commenté cette découverte) ont catalogué l'inscription du Lapis niger comme CIL 01, 1[10] c'est-à-dire en tête du Corpus Inscriptionum Latinarum, qui est le répertoire monumental de toutes les inscriptions latines de l'époque romaine, classées chronologiquement par lieu de leur découverte.

Interprétations

On admet généralement, à la lecture des premières lignes, qu'il s'agit de l'habituelle malédiction adressée à quiconque violera le sanctuaire ; on reconnaît aussi, sans trop de difficulté, quelques mots latins : regei, datif archaïque de rex roi »), calator héraut »)[1], iumentum bête de somme »), capiat prenne »). Mais il n'est pas possible de donner un sens certain à une inscription aussi fragmentaire.

Georges Dumézil émit en 1951 une hypothèse que Pierre Grimal qualifie de « brillante » : il s'agirait d'un ordre absolu de dételer les animaux de trait devant le Comitium, lieu sacré. Le rejet d'excréments par les animaux attelés était en effet considéré comme un présage funeste : selon Georges Dumézil, havelod pourrait désigner les excréments (aluus en latin classique)[11].

Filippo Coarelli rapproche le texte de Festus Grammaticus, qui indique que le lapis niger est « un lieu funeste, parce que destiné à la mort de Romulus »[1], d'une autre tradition, disant que Romulus aurait été tué dans le sanctuaire du Volcanal[12], et en déduit que l'emplacement du lapis niger est celui de l'ancien Volcanal, en accord avec la description qu'en donne Denys d'Halicarnasse, petit sanctuaire à ciel ouvert, marqué par une inscription en caractères grecs archaïques[1].

Notes et références

  • Cet article contient des éléments traduits des articles de Wikipédia en anglais et en italien sur le Lapis niger, largement issus des notes de Christian Hülsen, dans The Roman Forum — Its History and Its Monuments, Ermanno Loescher, 1906, citées par Lacus Curtius.
  1. 1 2 3 4 5 6 7 8 9 10 11 12 13 14 15 16 17 18 Coarelli 1994, p. 45-47
  2. Bibliotheca Augustana
  3. Christian Hülsen, The Roman Forum, Its History and Its Monuments, 1906
  4. Alfred Ernout, Textes archaïques… p. 5, cité par Pierre Grimal, À la recherche de l'Italie antique, p. 98.
  5. Festus Grammaticus, De la signification des mots, livre XII, entrée Niger Lapis
  6. 1 2 3 4 Romanelli 1967, p. 28
  7. Coarelli 1982, p. 726
  8. Photos des quatre faces du Lapis niger, Bibliotheca Augustana, Université d'Augsbourg
  9. 1 2 3 4 5 Pierre Grimal, À la recherche de l'Italie antique, p. 98.
  10. CIL VI, 36840 =CIL I, 00001
  11. Georges Dumézil, cité par Pierre Grimal, À la recherche de l'Italie antique, p. 99-100.
  12. Plutarque, Vie de Romulus

Voir aussi

Bibliographie

  • Pierre Grimal, À la recherche de l'Italie antique, Hachette, 1961, p. 94-100.
  • Georges Dumézil, Religion romaine archaïque, Payot, Paris, 1966, p. 93-98.
  • Georges Dumézil, « Chronique de l'inscription du lapis niger », in Mariages indo-européens, suivi de quinze questions romaines, Paris, Payot, 1979, p. 259-293.
  • Filippo Coarelli (trad. Roger Hanoune), Guide archéologique de Rome, Hachette, (1re éd. 1980), 349 p. (ISBN 978-2-01-235428-9)
  • Filippo Coarelli, « Topographie antique et idéologie moderne : le Forum romain revisité », Annales. Économies, Sociétés, Civilisations. 37e année, nos 5-6, , p. 724-740 (lire en ligne)
  • Pietro Romanelli (trad. Olivier Guyon), Le Forum romain, Rome, Istituto Poligrafico dello Stato, , 112 p.

Liens externes

Plan du Forum Romain
Liste des édifices du Forum Romain
Plan du Forum à la fin de l'époque républicaine.
Plan du Forum à la fin de l'Empire.
  • icône décorative Portail de la Rome antique
  • icône décorative Portail de l’archéologie