Maison octogonale
Les maisons octogonales étaient un style de maison unique et brièvement populaire dans les années 1850 aux États-Unis et au Canada. Elles sont caractérisées par un plan en octogone (huit côtés) et comportent souvent un toit plat et une véranda tout autour. Leur construction, de forme et d'apparence inhabituelles, très différentes des maisons ornées à toit en pente typiques de l'époque, peuvent généralement être attribuées à l'influence d'un homme, architecte amateur et spécialiste du mode de vie Orson Squire Fowler . Bien qu'il existe d'autres maisons octogonales dans le monde, le terme maison octogonale fait généralement référence aux maisons octogonales construites en Amérique du Nord pendant cette période et jusqu'au début des années 1900.
Histoire
Premiers exemples, avant Fowler:
- Poplar Forest, retraite privée de Thomas Jefferson et maison de plantation près de Lynchburg, Virginie.
- La maison de John Tayloe III de William Thornton, plus communément appelée la maison d'octogone [1] à Washington, DC Après que la maison blanche ait été incendiée par les Britanniques pendant la guerre de 1812, le président James Madison est resté dans la maison d'octogone, et c'était ici que le Traité de Gand (mettant fin à la guerre de 1812) a été signé. C'est maintenant le siège de l' American Institute of Architects . Bien que connu sous le nom de "L'Octogone", il convient de noter que ce bâtiment particulier n'est pas réellement octogonal.
Les deux maisons sont de grands bâtiments en brique dans la tradition classique. Ils peuvent être considérés comme des précurseurs, mais sont quelque peu différents des maisons octogonales victoriennes qui sont essentiellement des structures domestiques.
Orson Squire Fowler
Le principal promoteur des maisons octogonales était Orson Squire Fowler . Fowler était le principal conférencier et écrivain américain sur la phrénologie, la pseudoscience ayant comme objectif de définir les caractéristiques d'un individu par les contours du crâne. Au milieu du XIXe siècle, Fowler a fait sa marque sur l'architecture américaine en vantant les avantages des maisons octogonales par rapport aux structures rectangulaires et carrées dans son livre largement médiatisé, The Octagon House: A Home For All, or A New, Cheap, Convenient, and Superior Mode of Construction (La maison octogonale: une maison pour tous ou un mode de construction nouveau, bon marché, pratique et supérieur), imprimé en 1848[2]. À la suite de cette publication populaire et influente, quelques milliers de maisons octogonales ont été érigées aux États-Unis, principalement dans le Midwest, sur la côte Est et dans les régions voisines du Canada[3].
Avantages du plan octogonal

Selon Fowler, une maison octogonale était moins chère à construire, permettait un espace de vie supplémentaire, recevait plus de lumière naturelle, était plus facile à chauffer et restait plus fraîche en été. Ces avantages découlent tous de la géométrie d'un octogone: la forme enveloppe efficacement l'espace, minimisant la surface externe et par conséquent les pertes et gains de chaleur, les coûts de construction, etc. Un cercle est la forme la plus efficace, mais difficile à construire et difficile à fournir, donc un octogone est une approximation raisonnable. Les constructeurs victoriens avaient l'habitude de construire des angles à 135 °, comme dans la baie vitrée typique, et pouvaient facilement s'adapter à un plan octogonal.
Principes de conception
The Octagon House de Fowler est parfois appelé à tort un livre de modèles, mais la popularité du livre réside dans la façon dont Fowler a suggéré certains principes généraux et a encouragé les lecteurs à inventer les détails par eux-mêmes. Seuls quelques exemples sont proposés, et mis à part les plans, le livre ne comporte que deux illustrations pour montrer à quoi pourrait ressembler une maison octogonale.
Premièrement, il montre quelques façons de subdiviser un plan d'étage octogonal. Vient ensuite le Plan octogonal de Howland, une petite maison conçue par «MM. Morgan and Brothers, architectes qui est similaire à la maison Norrish illustrée ci-dessous. Il suit Une description de la propre résidence de l'auteur, maintenant connue sous le nom de Fowler's Folly, à Fishkill. Enfin, Un plan supérieur pour une maison de bonne taille, qui est un développement des plans Fishkill, apparemment proposé par son graveur. La principale caractéristique de ses plans est une volonté d'éliminer les espaces de circulation inutiles, parfois au point que l'escalier principal n'est pas pratique et que la véranda extérieure est le meilleur moyen de se déplacer dans la maison. Fowler n'était pas un architecte et à certains égards, ses théories avaient besoin d'un architecte pour les amener à une conclusion réalisable.
Les autres propositions de conception comprennent:
- un toit plat pour collecter l'eau de pluie, avec des citernes intégrées pour collecter et distribuer l'eau.
- une filtration des eaux pluviales, utilisant des lits filtrants constitués d'une alternance de couches de sable et de charbon actif .
- un chauffage central par distribution d'air chaud d'une fournaise au sous-sol.
- des conduits de fumée, des conduits d'air et des tubes parlants intégrés dans l'épaisseur des murs.
Les exemples construits varient considérablement dans la mesure de cette influence est apparente. Bien que construite en brique, la maison de Watertown présentée dans cet article est une incarnation presque parfaite de nombreuses idées de Fowler.
Construction mur de masse
La construction de planches empilées a été recommandée dans la première édition de A Home for All [4] mais la troisième édition du livre de Fowler, imprimé en 1853, avait un nouveau sous-titre: A Home For All, ou The Gravel Wall and Octagon Mode of Building, et se distingue par l'enthousiasme de Fowler pour la construction en béton. Il semble ignorer que le béton a été utilisé depuis les Romains, attribuant la découverte à un M. Goodrich de Janesville, Wisconsin, et se créditant d'avoir développé et popularisé la technique. Fowler savait que le gravier et la chaux étaient disponibles en quantités illimitées dans les Prairies et considérait le «mur de gravier» comme un moyen de construction nouveau, bon marché et durable. Sa maison à Fishkill a été construite en béton. Les murs ont été construits quelques mètres à la fois, en versant un mélange de gravier et de chaux dans des coffrages en bois. Au fur et à mesure que le béton durcissait, le coffrage pouvait être retiré et déplacé au niveau suivant.
Le béton moderne est fabriqué à partir de ciment Portland et non de chaux, mais la principale différence est l'utilisation universelle de barres d'armature en acier, qui augmentent considérablement la résistance du matériau et permettent de construire des poutres en béton et des dalles de sol ainsi que des murs. Fowler utilisait de grosses pierres pour renforcer les coins, mais il n'utilisait aucun autre renfort, et était donc limité aux murs. Le toit, les planchers et les vérandas sont donc tous en bois.
La folie de Fowler
Pour citer Fowler "... les études qui ont abouti à ce travail ont été instituées principalement pour ériger cette maison même". La construction a commencé en 1848, la même année où son livre a été publié pour la première fois, et a duré cinq ans. La maison était grande, 13m de chaque côté de l'octogone ou 30m de travers, et construit sur une colline surplombant la rivière Hudson, où il pouvait être vu à des kilomètres à la ronde. Fowler a enlevé le sommet de la colline pour créer un site plat et fournir du matériel pour ses «murs de gravier». Cette grande résidence disposait de quatre immenses salles de réception qui pouvaient être interconnectées en fonction de la taille de l'événement, soit 60 chambres (en comptant les petits vestiaires ainsi que les chambres appropriées) et une coupole vitrée s'élevant à 21m au-dessus du sol. La salle d'écriture préférée de Fowler était une pièce intérieure au troisième étage, éclairée uniquement depuis la coupole par une lanterne au-dessus de la porte. La maison n'avait pas d'escalier central, de sorte que les visiteurs entraient dans l'une des pièces principales par un petit hall, tandis que la famille et le personnel utilisaient l'entrée du sous-sol. Il y a des vérandas tout autour de la maison aux premier, deuxième et troisième étages, reliées par deux escaliers extérieurs.
La panique financière de 1857 a conduit Fowler à louer la maison, qui est ensuite passée par une série de propriétaires. La maison tomba en ruine et finalement - condamné comme un danger au public - il fut dynamité en 1897 par Fred C. Haight, ingénieur en démolition pour la ville de Fishkill.
Exemples survivants
Les estimations varient, mais des centaines de ces maisons de l'époque victorienne existent toujours aux États-Unis et au Canada. Une estimation met le nombre à 2077 [3]. Même à leur apogée, les maisons octogonales n'ont jamais été courantes - au contraire, une maison à huit côtés semblait être le choix des individualistes, défiant les voisins à quatre côtés.
Les plus grandes maisons octogonales restantes aux États-Unis sont Longwood à Natchez, Mississippi et la Maison octogonale à Watertown, Wisconsin .[réf. nécessaire] Les deux maisons sont ouvertes au public. Dans l'est de l'État de Washington, un exemple se trouve toujours là où il a été déménagé en 1993 à Bridgeport, près du fleuve Columbia.
Fowler était influent, mais il n' est pas le seul promoteur des maisons octogonales et d'autres structures. Il existe aussi des granges octogonales, des écoles, des églises et au Canada, des « maisons mortes » octogonales.
Variations de conception
Dans l'idée centrale du plan octogonal, ces maisons présentent une grande variété de construction et de forme extérieure. Variants de la modeste maison Bevis-Tucker à deux étages, à la grande maison Armor-Stiner[5] (les deux sont illustrées ci-dessous).
Géométrie du plan
Une maison octogonale pleine a 8 côtés égaux, bien que de légères variations de longueur ne soient pas inhabituelles. C'est en fait la forme la plus courante, mais dans certains cas l'octogone de base est partiellement masqué par des ajouts, soit tout autour comme à la maison Zelotes Holmes, soit en ajoutant une aile fonctionnelle hors de vue à l'arrière. La Maison des sept pignons à Mayo, en Floride, a des pignons sur sept côtés tandis que le huitième côté est prolongé vers l'arrière. La Maison Richard Peacon à Key West, en Floride, semble être un octogone complet de la rue, mais la partie arrière est au carré.
Matériaux
Fowler a préconisé l'utilisation de «murs de gravier» [6]. Il s'agissait d'une technique expérimentale à l'époque, et bien que certaines aient été construites de cette façon, la plupart des maisons octogonales étaient construites de la même manière que les maisons ordinaires, en bois, en brique ou en pierre.
Aménagement urbain
Une communauté morale dirigée par Henry S. Clubb a tenté d'établir Octagon City en 1856 au Kansas. Il était prévu d'avoir un carré octogonal avec huit routes et des fermes et des granges octogonales. La plupart des colons étaient partis après l'hiver.
Exemples de maisons octogonales
Voici des exemples des «vraies» maisons octogonales et de la gamme de variantes de conception.
Maison modeste à ossature bois avec toit plat. Bevis Tucker House, Chelsea, Massachusetts.
Grande maison à ossature bois, toit en pente et lanterne, véranda tout autour. Les fenêtres cintrées et les volets de fenêtre ajoutent à l'effet décoratif. La Rich-Twinn Octagon House, Akron, New York.- Maison à ossature bois de taille modeste mais décorative, vue ici peinte dans des couleurs de "patrimoine" qui peuvent refléter la palette de couleurs d'origine. Octagon House, Barrington, Illinois (construite en 1860).
Maison en brique posée sans éléments décoratifs à l'exception d'une modeste véranda à l'avant. Robert Waugh House, Sparland, Illinois (construite en 1886).
Maison en brique parfaitement octogonale avec véranda, toit en pente et lanterne. Wilcox Octagon House, Camillus, New York (construite en 1856).
Maison en brique avec, exceptionnellement, le deuxième étage à ossature bois intégré dans la structure du toit. Gregg-Crites Octagon House, Circleville, Ohio (construite 1855–56).- Un agencement similaire du rez-de-chaussée en maçonnerie et du deuxième étage à ossature bois, mais construit dans un style décoratif typique de San Francisco. Feusier Octagon House, San Francisco, California (construite en 1857).
Maison très simple, murs de calcaire finis avec un enduit de ciment. Les caractéristiques sont typiques de l'influence de Fowler: véranda sur tout le pourtour, toit plat et lanterne centrale. Norrish House, Hastings, Minnesota (construite entre 1857 et 1858).- Une maison encore plus simple, bien que bien proportionnée, sans véranda, juste un porche. Maison octogone, Wallingford, Connecticut (construite dans les années 1850s).
Maison en béton - la construction en «mur de gravier» de Fowler - avec l'enduit de ciment marqué pour ressembler à de la maçonnerie. McElroy Octagon House, San Francisco, California (construite en 1861).
121 / 5000
Grande maison ornée, avec un niveau de décoration plus généralement associé aux bâtiments publics. À l'origine de conception plus modeste, la maison a été construite en 1860 et le dôme a été ajouté en 1872–1876. Armour–Stiner House, Irvington, New York[5].
Étude de cas: Maison octogonale (Watertown, Wisconsin)
Bien que l'une des plus grandes, la Maison octogonale (Watertown, Wisconsin) est à mi-chemin entre les exemples les plus grandioses et les plus modestes. Il est bien documenté[7], a été soigneusement restauré et est ouvert au public en tant que musée [8].
Histoire
La construction a été achevée en 1854. La maison est tombée en désuétude et a été reprise par la nouvelle Société historique de Watertown, et ouverte au public en 1938. Elle appartient toujours à la Société.
Construction et innovations
- Le plan est un octogone de 15,24 m , avec un véranda de 1,42 m tout autour aux niveaux du premier et du deuxième étage.
- La maison est construite sur des fondations de 43 cm en pierre, avec murs extérieurs de maçonnerie, de 33 cm d'épaisseur.
- Le carré central est composé de deux feuilles de maçonnerie de 10 cm et une cavité de 10 cm, qui est utilisée pour les conduits de cheminée et les conduits d'air chaud, pour chauffer des pièces sans cheminée. La double paroi élimine le besoin de faire saillie des chapeaux de cheminée.
- L'effet crénelé au sommet de la coupole est en fait les quatre cheminées.
- Une fournaise au sous-sol chauffe l'eau et l'air chaud est canalisé dans les douze pièces principales, c'est-à-dire celles attenantes à la place centrale.
- Un élégant escalier en colimaçon relie tous les étages. Il est autoportant à l'intérieur et encastré dans les murs à l'extérieur de la cage d'escalier. Il y a aussi un escalier pour les domestiques.
- La maison a un toit plat, en pente douce vers le centre.
- L'eau de pluie du toit a été recueillie dans un réservoir au niveau du troisième étage et déborde dans une citerne à côté de la cuisine au sous-sol.
- Les publications indiquent régulièrement que la maison compte 57 chambres; cependant cela inclut chaque placard et passage. Le nombre de pièces habitables est de 29, y compris la pièce octogonale dans la coupole.
- Malgré 15 chambres, il n'y a qu'une seule salle de bain.
Style architectural
La maison a été inspirée par le livre de Fowler, et est un bon exemple de ses théories mises en pratique. Les éléments directement liés à ses idées, outre le plan octogonal, sont l'escalier central en colimaçon, la disposition symétrique des pièces avec des portes communicantes, les vérandas tout autour du bâtiment et le toit plat surmonté d'une coupole. Conformément aux théories de Fowler, les détails sont relativement simples pour la période. Les ouvertures sont simplement encadrées par des moulures. Les vérandas couvertes manquent de détails excessifs, ayant de modestes axes de balustrade tournés et des poteaux de soutien. L'effet décoratif de la maison vient des caractéristiques de conception de base: la forme octogonale et les vérandas extérieures.
Avantages et inconvénients du plan octogone
Le souci de Fowler d'économiser de l'espace est considéré comme un effet typique de ce type de construction. Il y a quatre chambres aux dimensions généreuses à chaque étage, près de 18 pieds carrés, avec des portes communicantes tout autour. Les salles subsidiaires sont moins satisfaisantes, étant triangulaires. La disposition des pièces est rigoureusement la même à tous les étages car les cloisons sont de 9 pouces (228,6 mm), ils doivent donc s'empiler les uns sur les autres. L'escalier central en colimaçon est compact, mais laisse un côté de la maison sans accès direct aux paliers, il y a donc des chambres accessibles uniquement par une autre chambre - dans le pire des cas, par deux autres chambres. Les inconvénients de cette disposition sont à nouveau un héritage de l'influence de Fowler, une réticence à sacrifier l'espace dans les pièces à des arrangements de circulation judicieux. La maison de Fowler avait des escaliers extérieurs et les vérandas étaient utilisées pour la circulation et l'accès aux chambres.
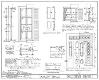
Dessins documentés
Ci-dessous sont les dessins de la Watertown Octagon House datés du 28 mars 1935, préparés par le Historic American Buildings Survey . À cette époque, les vérandas manquaient, enlevées lorsqu'elles devenaient dangereusement pourries. Les dessins d'arpentage sont une reconstruction de la maison telle qu'elle a été construite à l'origine.
Plans du rez-de-chaussée (sous-sol) et du premier étage.
Plans des deuxième et troisième étages.
Élévation avant.
Détails extérieurs: porte d'entrée et fenêtres.
Détails intérieurs: l'escalier en colimaçon principal, les chambranles de porte et les plinthes.
Photographie, peut-être dès 1856, montrant la maison dans son état d'origine.
Références
- ↑ Washington, DC-Octagon House Washington DC Octagon House
- ↑ The Octagon House, Orson S Fowler: Dover Publications, Inc., first edition 1848, 1853 edition reprinted in 1973.
- 1 2 Orson Squire Fowler: Phrenology and Octagon Houses 1809-1887 by John H. Martin
- ↑ H. Ward Jandl, John A. Burns, Michael Auer. Yesterday's houses of tomorrow: innovative American homes, 1850 to 1950. Preservation Press, 1991. 49.
- 1 2 Lombardi, « The Armour-Stiner (Octagon) House Irvington-On-Hudson, New York » [archive du ] (consulté le )
- ↑ Northeast Journal: Fowler's Folly, Fishkill, NY
- ↑ Library of Congress, Prints & Photographs Division: drawings and photos by the Historic American Buildings Survey
- ↑ Watertown Historical Society
Bibliographie
- Baker, John Milnes. American House Styles: un guide concis. NY: WW Norton & Company, 2002.
- Puerzer, Ellen L. L'inventaire de la maison octogonale. Eight-Square Publishing, 2011.
- Rempel, John I. Construire avec du bois . Toronto: Presses de l'Université de Toronto, 1967.
- Schmidt, Carl F. La mode octogonale. 1958.
- Schmidt, Carl F. et Philip Parr. En savoir plus sur les octogones. 1978.
- Goncalves, Eliseu. L'Octogone dans les maisons d'Orson Fowler. Nexus Journal, vol 13, nº 2. Bâle: Springer / Birkhauser, 2011.
- Fowler, Orson S. avec une nouvelle introduction de Madeleine B. Stern. «La maison octogonale: une maison pour tous» Dover Publications, 1973.
Liens externes
- Northeast Journal: Fowler's Folly, Fishkill, État de New York
- Octagon House Inventory, par Robert Kline, un ingénieur à la retraite vivant à Grand Rapids, MI
- Oldhouseweb: Maison Octagon: 1850-1860
- Architecture et histoire de Buffalo: style de maison octogonale
- Woodchester Museum (Ontario): Maisons octogonales au Canada
- Architecture de l'Ontario: Mouvement octogonal de l'Ontario
- Portail de l’architecture et de l’urbanisme
- Portail des États-Unis