Marbre de Thorigny
| Date |
en 238 |
|---|---|
| Matériau | |
| Dimensions (H × L) |
146 × 85 cm |
| Localisation | |
| Protection |
Objet classé monument historique (d) () |
Le marbre de Thorigny est le socle d'une statue en grès (et non en marbre) découverte à Vieux (et non à Thorigny), dans le département normand du Calvados. Les inscriptions gravées expliquent la carrière politique d'un haut personnage gallo-romain, Titus Sennius Sollemnis, « un des rares notables connus dans la partie armoricaine de la Gaule Lyonnaise » selon Pascal Vipard. La décision d'édifier le monument a été prise par les membres du Conseil des Gaules, à Lugdunum. Les inscriptions portées sur le Marbre sont « le texte le plus étendu que le Conseil ait jamais fait graver pour un de ses membres »[H 1].
Cette pierre, découverte selon une tradition mal étayée en 1580, mais plus vraisemblablement au XVIIe siècle, est le principal document épigraphique de Normandie. Le monument transporté dans le département actuel de la Manche est conservé dans le château des Matignon puis à Saint-Lô où il est gravement endommagé lors des bombardements qui détruisent la ville en 1944. Transporté à l'université de Caen dans les années 1950, il retourne à Saint-Lô à la fin des années 1980.
Elle est qualifiée par Henri Van Effenterre d'« une des plus belles et des plus curieuses inscriptions de la Gaule romaine ». La célébrité du monument est due à l'ouvrage de Hans-Georg Pflaum au milieu du XXe siècle faisant suite à de nombreux travaux en particulier depuis le XIXe siècle. Le marbre de Thorigny, au caractère exceptionnel, permet d'appréhender la vie des élites en Gaule durant l'Empire romain dans ses aspects juridiques et sociaux ainsi que les circonstances politiques troublées du IIIe siècle.
Reproduit par moulage à plusieurs reprises lors de son histoire, le piédestal original est classé au titre de mobilier depuis le [1].
Histoire
Histoire ancienne
Histoire d'Aregenua des origines au Ve siècle

La commune actuelle de Vieux se trouve à environ 10 km au sud-ouest de Caen[J 1], à 20 km de la Manche[I 1] et dans le bassin versant d'un ruisseau, la Juine[K 1].
La cité d'Aregenua, siège de la tribu des Viducasses, est fondée au Ier siècle et connaît son apogée aux IIe et IIIe siècles sous la dynastie des Sévères, donc de façon à peu près contemporaine du marbre de Thorigny[H 2]. La cité bénéficie du statut de droit latin à une date tardive, c'est donc une « romanisation juridique »[H 3]. La romanisation s'achève au IIIe siècle[K 2]. Le peuple viducasse est cité par Pline l'Ancien et la ville nommée pour la première fois en grec par Ptolémée, la mention en latin n'étant pas antérieure à la table de Peutinger[H 4].
Les thermes de la cité sont construits grâce à l'évergétisme du père de Titus Sennius Sollemnis, sans doute entre 200 et 220[H 5]. Le père de Sollemnis laisse l'édifice inachevé[H 6]. Cet édifice thermal a été retrouvé dans le lieu dit « Champ des Crêtes », et présente des éléments architecturaux comparables à ceux retrouvés dans les fouilles de la maison au grand péristyle[H 7].
Au cours des troubles qui affectent l'Empire romain au IIIe siècle, la ville est durement touchée mais n'est pas dotée d'une enceinte susceptible de la protéger contrairement à d'autres cités voisines comme Lisieux, Bayeux ou encore Évreux. Si le site continue d'être habité[K 2], il perd toutefois de son importance au profit de Bayeux qui devient le siège d'un évêché. À la fin du IIIe siècle et au début du IVe siècle, le déclin amorcé devient encore plus net. La ville fusionne avec Bayeux au début du IVe siècle puis disparaît administrativement avant l'an 400. Une grande partie de la population quitte alors le site[2].
Titus Sennius Sollemnis, un notable viducasse

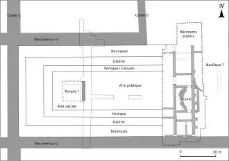
Le marbre de Thorigny ornait le forum de Vieux durant l'Antiquité[E 1].
Titus Sennius Sollemnis, « le plus célèbre des Viducasses », serait né autour de 170[F 1] sous le règne de Marc Aurèle[H 8]. Il est issu d'une famille extrêmement riche qui a pu tenir un rôle important dans sa cité et même en Gaule, au moins pour le dernier qui est le sujet de l'inscription[H 9]. Il est « le dernier représentant connu » de sa famille[H 1].
Son père, Sollemninus, a été le commanditaire de l'érection des thermes sud de la cité, son évergétisme allant jusqu'à prévoir une somme destinée à l'entretien du complexe[F 1]. Sa carrière se déroule sous les derniers Antonins et sous les Sévères[H 10]. Il n'a pu achever l'édification du complexe thermal de son vivant et son fils a dû le terminer. De plus, une fondation était destinée à apporter des revenus nécessaires au fonctionnement de la structure[A 1].
Le territoire des Viducasses est très riche en mines de fer[H 11] et une quarantaine de villas a été identifiée dans la plaine de Caen au moyen de la photographie aérienne. La fortune des Sennii provient sans doute de l'exploitation de ces domaines et peut-être des mines de fer[F 2],[H 12]. Un domaine de Touffréville, la villa de La Saussaye, est connu pour avoir abrité à la fois une exploitation agricole et une exploitation de fer y compris de forge[H 13]. Le site des thermes de Vieux a livré un autel à Vulcain daté de la fin du IIe siècle-IIIe siècle[H 14], associé au travail du fer et à la forge.
Résumé de la carrière de Titus Sennius Sollemnis

Titus Sennius Sollemnis commence sa carrière à la fin du IIe siècle ou au début du IIIe siècle[H 10]. Il est peut-être duumvir pour la première fois à 28 ans, l'accès à cette fonction étant classique vers l'âge de 28-31 ans[H 16]. Sa magistrature locale aurait pris place au moment de la dynastie des Sévères[H 8].
Il a fait partie de la délégation de notables que les cités de Gaule romaine envoient annuellement à Lugdunum, capitale de la province, pour célébrer le culte impérial. Les délégués des différentes cités l'ont choisi comme grand prêtre de Rome et d'Auguste en 220 apr. J.-C.[E 1]. Pascal Vipard opte pour sa part pour l'an 219[H 17].
Il préside le Conseil des Gaules en 219[F 2]. Il est prêtre fédéral à Condate et flamine en 219-220, vers l'âge de 50 ans, si sa carrière n'a pas eu de coup d'accélérateur, puis est au service du gouverneur Tiberius Claudius Paulinus[H 8]. Paulinus est accusé après qu'il soit parti de Lyonnaise et lorsqu'il arrive en Britannia Inferior peut-être en juillet-août 219. Aedinius Iulianus arrive alors en Lyonnaise[H 18]. Iulianus appartient à l'ordre équestre[A 2]. L'accusation contre Paulinus tombe lors de la première réunion qui suit le départ du gouverneur autour du [A 3]. Sennius énonce alors que les délégués accusateurs n'ont pas eu le mandat de leurs cités pour cette action. Il déclare que sa cité a demandé des éloges pour le gouverneur, et les ennemis du gouverneur sont alors mis en échec[A 4]. La fin de la lettre n'est pas reproduite sur l'inscription de la face, du fait de l'absence d'intérêt pour le contexte, contenant des formules de remerciements[A 5].
Sollemnis a beaucoup voyagé du fait des liens de patronage : il aurait été à Rome en 223[H 8]. Sa présence en Afrique pour aider le tribun militaire de la IIIe légion Auguste est signalée dans l'inscription mais ne peut être datée. Il est allé en Bretagne inférieure où Tiberius Claudius Paulinus était gouverneur et chef de la VIe légion Victrix[H 19], fondée par Septime Sévère en 197. La séparation de la Bretagne était destinée pour l'empereur à limiter les risques de révolte des gouverneurs[A 6]. Sollemnis serait parti en Bretagne dans la seconde moitié de l'année 220[H 20] pour exercer des fonctions d'assessor ou tribunus sexmenstris[H 5]. Il va également en Afrique, peut-être entre 223 et 238, comme assessor du légat de la légion à Lambèse[H 16]. Ces missions se situent sous les règnes d'Alexandre Sévère et Maximin[H 8].
Il est, ou sort juste de la fonction d'iudex arace ferrariarum, administrateur des mines de fer gauloises, en 238[H 8] pour les Trois Gaules, mission dont on ne connaît pas la durée[H 8] au moment de l'érection du monument[A 7]. En 238, Titus Sennius Sollemnis a presque 70 ans[H 16]. Le 17e jour des calendes de janvier () en 238, le Conseil des Gaules choisit d'élever une statue en son honneur à Aregenua, ville dont il était magistrat, à un emplacement fourni par les décurions[E 1]. La décision d'ériger la statue est prise en août[H 21]. On grava sur trois faces de sa base le nom de la personne honorée, sa carrière ainsi que la copie de lettres que lui avaient envoyées de puissants personnages, membres de l'entourage de l'empereur, et décédés sans doute au moment de l'érection du monument selon Pascal Vipard[H 22]. Hans-Georg Pflaum pense au contraire que les protecteurs de Sennius étaient encore vivants, et proches de Gordien III[A 8]. Les copies de lettres, antérieures au monument, ont peut-être été transmises par Titus Sennius Sollemnis lui-même[A 9].
Redécouverte et histoire depuis le XVIe siècle jusqu'à la Seconde Guerre mondiale
Les inscriptions trouvées dans l'espace de la future Normandie sont rares[E 1]. Le marbre de Thorigny est une des quinze inscriptions signalées par Christian Pilet comme découvertes à Vieux[C 1]. Selon Henri Van Effenterre, il connaît dès sa redécouverte « bien des mésaventures »[D 1].

La pierre, exhumée en 1580[B 1],[K 3] selon « des traditions mal étayées »[H 23], a été découverte « à une date mal déterminée » allant des années 1540 aux années 1660[H 23]. Maurice Besnier opte pour une découverte en 1668[H 23]. Après avoir été perdue, elle est retrouvée vers 1675-1678[H 23].
La pierre a été transportée par Jacques de Matignon dans son château de Torigni-sur-Vire, dont elle tire son nom. Les Matignon sont alors gouverneurs de Normandie[D 1]. Au château, le monument est déposé dans des « masures », dans l'orangerie puis dans le vestibule en 1726[H 23]. Pendant son séjour au château, le marbre est oublié et la pierre est « saccagée enfin par des tailleurs d'ardoise »[D 1]. Les tailleurs d'ardoise se servent alors du monument, placé à l'extérieur, pour leur travail. Les lignes 2 à 14 sont de ce fait à peu près effacées[H 23].
La pierre est ensuite conservée à Saint-Lô à partir de 1814, où elle sert de support au buste en bronze d'Urbain Le Verrier[G 1], astronome, mathématicien français spécialisé en mécanique céleste et fondateur de la météorologie moderne française. En 1814, le propriétaire offre le monument à Pierre Louis Clément, alors secrétaire général de la préfecture de la Manche, qui le conserve chez lui avant de le faire déposer dans la mairie où il reste pendant presque un siècle et demi[H 24].
Depuis la Seconde Guerre mondiale

La pierre est très abîmée lors du bombardement américain de la ville[H 25] car elle est conservée dans le vestibule de l'hôtel de ville[B 1]. Elle subit alors « le plus grand désastre de son histoire »[D 1], lorsque le rez-de-chaussée de l'édifice s'effondre dessus[A 10]. Les 16e et 17e lignes de la face principale du monument sont à peu près effacées lors de l'incendie qui suit le bombardement américain[B 2]. Au sortir de la guerre, la pierre est « craquelée par le feu et délitée en surface, fissurée à l'intérieur par la chaleur du brasier »[D 1].
René-Norbert Sauvage, de la Société des antiquaires de Normandie, repère le monument sous les ruines et le confie à la société d'archéologie de la Manche[H 25]. Elle trouve abri dans une cave humide, sous la préfecture de la Manche, utilisée comme mûrissoir à fromages et se retrouve « en mille morceaux »[D 2]. L'historien et épigraphiste Hans-Georg Pflaum vient l'étudier en 1947[H 25].

| Images externes | |
| Une des faces du marbre avant sa restauration | |
| Une des faces du marbre avant sa restauration | |
Elle est ensuite déposée à l'université de Caen, au sous-sol de la faculté des lettres[D 3] sur demande de Pierre Daure et accord de la municipalité de Saint-Lô, au printemps 1955[H 25]. Le transport fait subir de nouveaux dégâts aux fragments[H 25]. Hans-Georg Pflaum estime que les dégradations proviennent du déplacement vers la capitale bas-normande au printemps 1955[B 2],[D 1]. La partie inférieure quoi que brisée en environ 12 fragments, était en meilleur état que la partie supérieure. Les fragments sont triés par les étudiants en Histoire ancienne de l'université, en s'aidant à la fois des veines du socle et des inscriptions[D 3]. Un sculpteur, G. Latapie, est alors chargé alors de sa restauration[D 3]. Le restaurateur utilise un ciment spécial avec des éléments métalliques[D 4]. La corniche n'est pas restaurée avec des trompe-l'œil afin de laisser au marbre « son allure de gueule cassée »[D 5].

Elle subit également un accident le [H 25], selon Louis Harmand, lors de son installation qui lui fait perdre des « débuts [et des] fins de lignes »[B 3]. Il tombe de la grue qui devait le déposer au 2e étage du bâtiment Droit-Lettres et rebondit jusqu'au rez-de-chaussée[H 26]. Un nouveau sculpteur, M. Delaville est alors placé au chevet du monument[H 27].
Le marbre de Thorigny est déposé dans le hall d'accès à la bibliothèque universitaire, mais la faculté des Lettres et Sciences humaines est transférée et le monument subit à nouveau « un oubli relatif »[H 27]. Elle réintègre finalement les collections du musée de Saint-Lô en [E 2], dans un angle du hall d'entrée, mais la Société des antiquaires de Normandie n'est informée de ce nouveau transfert qu'en [H 27].
Description

Le marbre de Thorigny est dans un état de conservation très médiocre[H 28]. Aucune photographie du monument n'est réalisée avant les conséquences des bombardements de 1944[H 29].
Le monument est en grès, arkose cambrienne, possédant des veines, la pierre est donc fragile[B 1]. Cette pierre est utilisée localement jusqu'à l'époque contemporaine[H 27]. le monument mesure 1,46 m sur environ 0,85 m. Les côtés sont larges de 0,56 m. Le poids du monument est d'environ 1,5 tonne[H 28].
Le marbre est le piédestal qui portait une statue de bronze[F 1], « sans doute en grandeur nature »[H 27]. Il y avait peut-être un socle qui figure sur un dessin du XVIIIe siècle, mais cet élément est désormais perdu[H 27]. Une corniche est présente. Le dessus du marbre de Thorigny comporte des trous[H 30]. Le personnage devait avoir le pied gauche en avant. Deux trous à l'arrière étaient destinés à la fixation à un mur selon Édouard Lambert[H 28].
Seules trois faces portent des inscriptions, la dernière étant disposée contre un mur selon Antoine Héron de Villefosse[G 2]. Cette dernière face n'était pas polie[H 28] et est restée brute[A 10].
Le monument porte 82 lignes de texte, environ 390 mots[H 31]. L'inscription est peu profonde et le lapicide a utilisé des ligatures et des compénétrations au rôle décoratif[H 32]. Les côtés sont bien conservées jusqu'en 1944 mais c'est différent pour la face principale[H 33]. Des parties importantes du texte sont alors déjà perdues, en particulier les seize premières lignes[H 28]. Ces dégradations étaient déjà présentes dans la dernier quart du XVIIIe siècle[H 33].
La face principale contient une dédicace ainsi que deux lettres sur les côtés latéraux, une adressée vers 223 par le préfet du prétoire Marcus Aedinius Iulianus au gouverneur de Gaule lyonnaise Badius Comnianus, l'autre adressée par le légat propréteur de Bretagne inférieure Tiberius Claudius Paulinus à Titus Sennius Sollemnis[H 34]. La place d'honneur est sur le côté droit[A 11].
Inscription
Face principale
T(ito) Sennio Sollemni Sollem
nini fil(io) IIvir(o) sine sorte quater aug(uri)
[o]mnib(us) honorib(us) mun[icipio ---]q(ue) VII
[---]us in
[s]ua c[i]vitate eodemq(ue) tem[po]re sacerdo[s]
R[om]ae [et Augusti ad aram omn]e genus spec
taculorum e[did]it [fu]erunt gladia[to]
r[um c]ertam(ina) n(umero) XXXII ex quibus per quad
riduum [n(umero)] V[III] s[ine] missione edideru[nt]
[bal]neum quod [pop]u[lar]ibus coloniae s[uae]
pr[ofutu]rum S[ollemninus ---]ribus
funda[me]ntis inst[itutis reli]querat
consumm[av]it [item legavit ---] fructum unde
in perpetuum instauraretur is Sollemnis
amicus Tib(eri) Claud(i) Paulini leg(ati) Aug(usti) pro
pr(aetore) pro
vinc(iae) Lugd(unensis) et cliens fuit cui postea
[l]eg(ato) Aug(usti) p(ro) p(raetore) in Brit(annia) ad legio
nem sext[am]
adsedit [q]uique e[i] salarium militiae
in auro aliaque munera longe pluris missi[t]
fuit cliens probatissimus Aedini Iuliani
leg(ati) Aug(usti) prov(inciae) Lugd(unensis) qui postea
praef(ectus) praet(orio)
fuit sicut epistula quae ad latus scripta es[t]
declaratur adsedit etiam in provincia Num[id(ia)]
Lambense M(arco) Valerio Floro trib(uno) mil(itum) leg(ionis) III Aug(ustae)
iudici arcae ferrar(iarum)
tres prov(inciae) Gall(iae)
primo umquam in sua civitate posuerunt
locum ordo civitatis Viducass(ium) libera(e) dedit
p(osita) XVII K(alendas) Ian(uarias) Pio et Proculo co(n)s(ulibus)[H 35]
face 3
Côté gauche quand on est face au marbre[H 36].
[E]xemplum epistulae Cl(audi)
[Pa]ulini leg(ati) Aug(usti) pr(o) pr(aetore) prov(inciae)
[B]ritanniae ad Sennium Sollem
nem a Tampio
licet plura merenti tibi h[aec]
a me pauca tamen quonia[m]
honoris causa offeruntu[r]
velim accipias libente[r]
chlamidem Canusinam
dalmaticam Laodiciam fibulam
auream cum gemmis rachanas
duas tossiam Brit(annicam) pellem vituli
marini semestris autem epistulam
ubi prope diem vacare coeperi[t]
mittam cuius militiae salarium
[i]d est HS XXV(milia) n(ummum) in auro suscip[e]
[d]is faventibus et maiestate sanct[a]
Imp(eratoris) deinceps pro meritis
adfectionis magis digna
consecuturus concordit(er)[H 37]
face 2
Côté droit quand on est face au marbre[H 36].
Exemplum epistulae Aedin[i]
Iuliani praefecti praet(orio)
ad Badium Comnianum pr[o]
cur(atorem) et vice praesidis agen[t(em)]
Aedinius Iulianus Badio
Comniano sal(utem) in provincia
Lugduness(i!) quinquefascal(is)
cum agerem plerosq(ue) bonos
viros perspexi inter quos
Sollemnem istum oriundum
ex civitate Viduc(assium) sacerdote[m]
quem propter sectam gravitat[em]
et honestos mores amare coep[i]
his accedit quod cum Cl(audio) Paulin[o]
decessori meo in concilio
Galliarum instinctu quorund[am]
qui ab eo propter merita sua laes[i]
videbantur quasi ex consensu provin[c(iarum)]
accussationem instituere temtar[ent]
Sollemnis iste meus proposito eor[um]
restitit provocatione scilicet inte[rpo]
[s]ita quod patria eius cum inter ce[ter(os)]
legatum eum creasset nihil de ac
tione mandassent immo contra laud[as]
[se]nt qua ratione effectum est ut o[mnes]
[a]b accusatione desisterent que[m]
magis magisque amare et compro[bare]
coepi is certus honoris mei er[ga se]
ad videndum me in urbem venit [atq(ue)]
proficiscens petit ut eum tibi [com]
mendarem recte itaque feceris [si]
de[si]d[e]rio illius adnueris et r(eliqua)[H 38]
Source : CIL XIII, 3162
Traduction partielle
Le texte in extenso ainsi que la traduction sont publiés dans la monographie réalisée par Hans-Georg Pflaum en 1948[A 12] et dans l'article de Christian Pilet compilant en 1984 les sources textuelles et archéologiques sur le site archéologique[C 2].
L'inscription de la face principale commence par le nom de la personne à honorer[H 22]. Il s'agit sur cette face de la dédicace du monument[A 13].
Sur les deux côtés sont restituées des lettres envoyées à Sennius par des personnages importants[A 13]. Le gouverneur de la Lyonnaise écrit : « Bien que tu mérites de plus nombreux présents, je te prie de bien vouloir accepter de moi le peu que voici..., une chlamyde de Canusium, une dalmatique de Laodicée, une fibule en or enrichie de pierres précieuses, deux manteaux, un vêtement breton, une peau de veau marin. Quant au brevet de tribun semestriel, je te l'enverrai à la prochaine vacance ; reçois en attendant la solde de ce grade, soit vingt-cinq mille sesterces payées en or[3] ». La lettre de recommandation d'Aedinius Julianus comporte certain nombre d'éléments : après avoir rappelé les circonstances, l'auteur expose les services rendus par Sollemnis, puis arrive la recommandation stricto sensu pour terminer sur des remerciements abrégés. La lettre est considérée par Hans-Georg Pflaum comme « un échantillon excellent du savoir-faire de la chancellerie du prétoire »[A 5]. L'inscription honorifique possède un pas lourd et grave[A 14].
Interprétation
Historiographie

Seuls sept soubassements de statues de fonctionnaires fédéraux sont connus[H 39]. Le fait de citer des lettres sur les côtés pour compléter la face principale est unique en Occident, la pratique étant cependant connue en Orient[H 22], en particulier à Palmyre ou à Rhodiapolis en Lycie, avec le monument d'Opramoas[A 15]. Deux inscriptions dédiées par l'assemblée du Confluent à des grands-prêtres dans leurs cités sont connues, à Saintes (XIII, 1049) et Clermont-Ferrand (XIII, 1463), mais Sennius est le premier iudex arcae ferrariarum à avoir cet honneur[A 7].

Le marbre est attribué la cité des Viducasses au XVIIe siècle à la suite de débats entre Antoine Galland et Daniel Huet[E 2]. Les travaux antérieurs au XIXe siècle n'ont « plus guère d'intérêt scientifique » selon Hans-Georg Pflaum et Maurice Besnier[H 41]. Le monument est étudié en 1826 et un relevé est réalisé par Pierre Louis Clément, qui a disparu[H 42]. Un estampage, réalisé par Léon Renier en 1852 et entré à la bibliothèque de l'Institut de France, a disparu pour sa part depuis 1947. Une des faces en a été publiée par René Cagnat en 1914[H 43]. Un moulage en plâtre (M.A.N. 18729[H 44]) est réalisé en 1872, et conservé dans les réserves du musée d'archéologie nationale de Saint-Germain-en-Laye, retrouvé seulement en 2003. Le texte de la face principale en est cependant fantaisiste[H 45].
Le monument est intégré au C.I.L. sous le numéro C.I.L., XIII, 3162[C 1] et le texte établi par Otto Hirschfeld en 1899[H 46]. La qualité des travaux de Otto Hirschfeld et Seymour de Ricci, dont le relevé date de 1914, est encore reconnue au début du XXIe siècle du fait d'un travail réalisé sur le monument original avant les destructions du second conflit mondial[H 47].
Un moulage en plâtre envoyé à Rodolfo Lanciani, exposé en 1911 à la Mostra archeologica dans les Thermes de Dioclétien est conservé au Musée de la Civilisation romaine[H 44]. Cet exemplaire a servi pour réaliser une copie, exposée au musée archéologique de Vieux depuis le 2 mai 2004[H 44]. Paul Bigot, archéologue et architecte normand expose sa maquette en plâtre à la même exposition qui célèbre les 50 années de la proclamation du royaume d'Italie le 17 mars 1861. L'exposition rassemble alors des moulages d’œuvres romaines provenant de diverses régions de l'Empire romain[4].
Les travaux de Maurice Besnier des années 1910 et 1920 permettent de préciser l'histoire de la découverte du monument[H 23]. L'inscription bénéficie selon Élisabeth Deniaux d'une « édition définitive » en 1948 par Hans-Georg Pflaum [E 2], et c'est à cette édition qu'elle doit sa célébrité[H 48]. Cette édition sert en effet depuis de référence scientifique, même si axée sur l'aspect historique et politique de l'année 238[H 49]. Hans-Georg Pflaum a établi le texte de la manière optimale et a développé ses commentaires à partir de ce texte[H 33]. Pascal Vipard considère pour sa part « qu'à quelques détails près (...) son travail conserve toute sa valeur »[H 33].
Pascal Vipard, qui considère l'hommage rendu à Hans-Georg Pflaum comme mérité[H 33], souhaite en 2008 mettre l'accent sur la personne de Titus Sennius Sollemnis[H 31], mais constate au terme de son ouvrage qu'« on est toujours loin d'avoir résolu tous les problèmes posés par le texte et ses implications »[H 50]. Une journée d'étude est consacrée au monument dans son lieu d'exposition le samedi 10 juin 2017[5].
Parcours d'un membre de l'élite gallo-romaine
Titus Sennius Sollemnis a les tria nomina dans un contexte de disparition du prénom[H 51]. Sennius est formé sur le gaulois senos (vieux). Sollemnis provient du latin « solennel »[H 52]. Le personnage devait avoir une certaine importance à la fois politique et financière[H 53].
La carrière de Titus Sennius Sollemnis n'est pas très bien connue[H 8]. Il n'a occupé que des « emplois municipaux et provinciaux »[A 13]. Les lacunes du texte comprennent des lignes qui concernent une partie du cursus honorum de Sollemnis[H 54]. Le Marbre de Thorigny permet cependant d'identifier Sollemnis comme un membre des « plus hautes sphères des élites municipales gauloises »[H 50].
Fonctions locales
Les débuts de la carrière de Sollemnis sont résumés dans une formule « ayant revêtu tous les honneurs »[H 52]. Les « fonctions mineures » ne sont pas reconstituables[H 55]. Titus Sennius Sollemnis remplit des fonctions à la fois dans un cadre municipal et dans un cadre provincial, il est en cela « un bon représentant des aristocraties municipales de Gaule » et témoigne également des échanges entre élites gauloises et classe dirigeante romaine[E 2].

Il est élu duumvir par quatre fois, sine sorte, sans tirage au sort, par le peuple outre les décurions. Titus Sennius Sollemnis a toujours obtenu la majorité, cela témoigne du prestige dont devait jouir l'intéressé, « sans compétiteur d'un rang comparable » au sein d'une cité de taille modeste[H 56]. La candidature de Sollemnis a pu s'imposer, même s'il n'a pas exercé de charge du duumvirat quinquennal, charge qui devait exister à Aregenua[H 53].
Il faut normalement être parvenu à un niveau élevé dans le cursus honorum avant de prétendre aux fonctions religieuses, deux fonctions seules sont citées, les autres devant être intégrées sans doute à une formule générique présente sur l'inscription[H 57]. Il exerce également des fonctions religieuses comme augure et flamine du culte impérial, « échelon le plus élevé et le plus prestigieux de la cité »[F 1]. La fonction d'augure, qui s'exerce en collège et a un rôle essentiellement honorifique, existe en Gaule Narbonnaise et en Lyonnaise[H 57]. Le flamine impérial de la cité, s'occupant du culte d'Auguste et parfois de Rome, est un ancien duumvir dont la mission durait une année. C'est « le prêtre public le plus prestigieux de la cité » et « l'échelon le plus élevé de la carrière municipale »[H 57]. Il y a un débat entre historiens sur le rôle de cette fonction pour l'accès à la fonction de prêtre fédéral, certains considérant qu'elle n'est pas nécessaire, d'autres considérant qu'elle l'est. Les flamines des cités pouvaient seuls se rendre à Lyon au sanctuaire fédéral et le document viducasse est fondamental pour connaître le rôle d'ambassadeur tenu par les représentants locaux[H 58].
Prêtre fédéral
_(14781716601).jpg)
Sollemnis a peut-être exercé les fonctions de grand prêtre du culte impérial, « honneur très rare », culte à Rome et Auguste à l'autel du Confluent[A 16]. 64 cités seulement étaient représentées à ce Conseil, peut-être les anciens flamines mais cette thèse ne fait pas l'unanimité[H 59]. Le Conseil des Gaules a fonctionné de 12 avant J.-C. aux années 260.
La modeste cité de Vieux n'a sans doute guère eu l'occasion d'avoir un grand prêtre[H 58]. Le rôle de grand-prêtre était religieux et honorifique[H 17]. Les deux fonctions religieuses, locale et provinciale, ont pu être simultanées selon une restitution de l'inscription qui ne fait pas l'unanimité[H 60]. La question de la simultanéité pose problème dans la mesure où la présence dans la cité était requise ; peut-être y avait-il deux flamines dont un pouvait répondre à cette obligation[H 59].

Pascal Vipard envisage un choix du grand prêtre parmi les legati de l'année précédente, avec un rôle de prêtre local la même année. La désignation comme flamine suffisait peut-être, outre la capacité financière à faire face aux obligations de la charge[H 61]. Plusieurs centaines de legati venaient pour la célébration du culte de Rome et de l'Empereur en août, et ils procédaient à l'élection du grand prêtre[H 62]. Selon Hans-Georg Pflaum, les délégués des Viducasses étaient trois[A 4]. Les notables redoutaient l'élection à ce poste du fait des conséquences financières, en particulier les jeux d'amphithéâtre à donner au Confluent[A 17].
Une fonction assurée par Sollemnis est détaillée dans la lettre d'Aedinus Iulianus (II, 14-16) la legatio, mission d'envoi de messages effectuée par les anciens décurions. Sollemnis a défendu le gouverneur sortant, Tibérius Claudius Paulinus, contre un plan de mise en accusation monté par quelques représentants agissant dans un but personnel. Sollemnis a défendu Paulinus lors d'une rencontre avec le successeur de ce dernier, Iulianus, arguant de l'irrecevabilité de la procédure car non basée sur la volonté de ceux qui avaient envoyé les représentants accusateurs[H 63].
Fonctions militaires
Sollemnis a effectué une mission auprès du légat de Bretagne inférieure, tribunus semestris. Pendant six mois il a commandé une troupe de cent cavaliers. La nomination à ce poste de rang équestre revenait à l'empereur, après avis du gouverneur ou au gouverneur[H 64]. Selon Hans-Georg Pflaum, Sollemnis n'a pas réalisé cette mission du fait de l'absence de poste disponible[A 18]. La situation pourrait aussi découler d'un changement de gouverneur selon A. Birley, Tiberius Claudius Paulinus étant soit mort soit tombé en disgrâce sous le règne d'Alexandre Sévère[H 65]. Cette thèse ne tient pas car le gouverneur avait changé avant le changement d'empereur[H 65], et l'hypothèse « ne repose pas sur des bases vraiment solides »[H 66]. Sollemnis était peut-être membre de la cohors amicorum ou conseiller juridique auprès de Paulinus[H 67]. Il a pu être tribun de la légion selon Pascal Vipard, comme est signalé sur la face III du marbre[H 68].
Sollemnis est entré en possession de sa solde et de présents avant la nomination : depuis Hadrien les officiers désignés par l'empereur ou ses représentants locaux sont ainsi dotés[H 69]. La solde lui a été remise en or, tout comme des produits de luxe dont l'uniforme et tout équipement dont l'officier allait avoir besoin[H 70]. L'équipement a pu être reconstitué selon les informations présentes dans le marbre de Thorigny : l'officier portait une chlamyde de Canusium, rouge ou rousse[H 71]. Il portait aussi une dalmatique de Laodicée, une fibule en or ornée de pierres servant à fixer la chlamyde sur l'épaule droite[H 72]. L'officier est doté également de couvertures de deux types, des rachanæ et une tossia britannica[H 73]. Une peau de phoque est citée, présente sur l'édit de Dioclétien. Elle était réputée « préserver des éclairs » et une tente en cette matière était recommandé[H 74]. Les éléments décrits dans le marbre semblent concerner des cadeaux militaires[H 75]. Les cadeaux reçus par Sennius ont été calculés comme supérieurs à la solde de Sennius, avec une estimation minimale de 33 000 sesterces[A 19]. La somme de 25 000 sesterces correspond à la solde du tribunus semestris[A 20].
Après son service en Bretagne, Sollemnis est au service de Marcus Valerius Florus, tribun militaire de la IIIe légion Auguste à Lambèse en Numidie. Cette mission est très peu développée dans l'inscription. Selon Hans-Georg Pflaum, Sollemnis est alors assistant juridique[A 21], mais l'hypothèse d'un rôle militaire est également plausible[H 76]. Les informations proviennent peut-être d'une lettre de Marcus Valerius Florus, non reproduite faute de place ou à dessein[A 21]. Le peu d'éléments sur le rôle de Sollemnis au sein de la IIIe légion est peut-être lié au rôle de celle-ci dans la chute de Gordien Ier et Gordien II et fidèle à Maximin, elle est d'ailleurs dissoute peu après par le sénat ou Gordien III[H 77].
Fonction civile fédérale : iudex arcæ ferrariarum
L'administration fédérale était chargée de la gestion des affaires courantes. Les fonctionnaires fédéraux sont peu présents dans l'épigraphie[H 78]. Sollemnis exerce la fonction de iudex arcae ferrariarum après la prêtrise[H 79]. La fonction dépendait du Conseil des Gaules[A 6]. Sollemnis exerce cette fonction, qui n'existait pas auparavant, au moment de l'érection de la statue et la sortie de cette fonction en est le prétexte[H 78]. Le titre est isolé, juste avant une ligne évoquant Tres Prou(inciæ) Galli(arum)[H 79] en lettres très grandes, qui est destinée à mettre en avant les commanditaires de l'érection de la statue[H 39] de façon ostentatoire[H 80]. Les fonctions n'auraient pas dû entraîner l'érection d'une statue et le texte du marbre est le document le plus long gravé en l'honneur d'un fonctionnaire impérial[A 22].
Il s'agissait là de la gestion des mines de fer, dont l'organisation est peu connue en Gaule. Le terme iudex correspond dans ce cas à « préposé à une caisse » et correspondrait à une transposition d'un titre gaulois[H 81], un peu comme le suffète du monde phénicien et punique[A 6]. Il n'est que le premier des juges de la Caisse des mines de fer[H 39]. On ignore si la fonction était rémunérée ou non. Pascal Vipard semble privilégier le statut de non salarié même si une rémunération pour un tel poste n'aurait été que modeste, de l'ordre de 100 000 sesterces annuels. Les missions d'administration étaient parfois cependant mues par des objectifs financiers[H 81]. Jérôme Carcopino pense que Sollemnis a exercé cette fonction dans sa cité et qu'il a pu être « magnat de l'ancienne sidérurgie des Viducasses ». Pendant l'exercice de la charge, il semble selon certains chercheurs avoir pu mener des affaires personnelles[H 82].
Titus Sennius Sollemnis évergète : jeux de l'amphithéâtre et achèvement des thermes
L'évergétisme permettait aux plus riches des citoyens d'embrasser une carrière politique[F 3]. En finançant la fin des travaux des thermes d'Aregenua et en offrant quatre jours de spectacle de gladiateurs, Sennius se montre un parfait évergète[6].

Il finance des combats de gladiateurs à Lugdunum et aussi dans sa cité natale[F 1],[A 16]. Les jeux donnés à Lugdunum sont davantage développés dans l'inscription. Ces jeux sont obligatoires de la part de prêtres du culte impérial aux IIe siècle et IIIe siècle[H 83]. 32 paires de gladiateurs sont évoquées pour le jeux donnés au Confluent[A 23]. Ces jeux ont duré quatre jours et 8 combats se déroulaient chaque jour, Hans-Georg Pflaum a estimé le coût de location à 332 000 sesterces[A 24], outre le coût des prix remis à l'issue des combats[H 84]. La somme correspond à une année de revenus pour un domaine de 558 ha[H 9], la valeur du domaine en question étant supérieure à 2,2 millions de sesterces[H 85]. Parmi ces combats 8 sont sine missione donc avec des risques et la mise à mort d'un combattant. L'évergète devait offrir également d'autres spectacles ayant lieu les matinées. Les dépenses totales devaient être supérieures à 500 000 sesterces[H 86]. Sollemnis a également offert des spectacles à Vieux, jeux qui ont dû être marquants. Les jeux donnés au niveau local étaient libres[H 87].
Il finance l'achèvement de thermes et leur entretien perpétuel, dont la somme n'est pas connue[C 3].
Avec les dépenses liées à l'édifice thermal la somme d'un million de sesterces a sans doute été dépassée, sans même pouvoir évaluer le reste des évergésies liées à son parcours ni le train de vie de l'individu[H 88].
Le fait que le Conseil fasse ériger le monument dans la cité d'origine est très inhabituel, de même que la transcription de « deux lettres officielles »[H 34].
Évolution de l'histoire institutionnelle de la Gaule
Il n'y a « pas de carrière type en Gaule »[H 8]. Sollemnis a été duovir sine sorte, fonction attestée nulle part ailleurs[E 2]. Vieux est qualifiée de civitas libera, cité de droit latin[E 3]. Le fait que Sollemnis n'ait pas exercé le duumvirat quinquennal pourrait être un témoignage de l'emprise d'une oligarchie sur certains magistratures ou de la situation de monopole du fait d'obligations financières liées à ces dernières[H 89].
La cité bénéficiait du droit latin et d'exemption fiscale[H 90]. Dix cités de Gaule ont le statut de colonie, dont Vieux[H 91]. Le statut de colonie s'est peut-être appliqué à tout le territoire des Viducasses[H 92]. Vieux ayant eu le statut de colonia et libertas, la situation était très privilégiée mais la date n'est pas connue[H 93]. L'obtention des privilèges est peut-être à lier à une intervention de la famille des Sennii, à la fin du IIe siècle-début du IIIe siècle[H 94]. Le don de bains à la cité est peut-être contemporain de l'octroi de privilège et a peut-être une relation de causalité, ces hypothèses ne pouvant être étayées[H 10].
Accession à l'ordre équestre d'un notable
Le marbre de Thorigny évoque un rôle d'évergète lors de la carrière de Titus Sennius Sollemnis, c'est donc un personnage possédant une très grande fortune[H 95]. L'achèvement du chantier des thermes est peut-être lié à la volonté de terminer l’œuvre de son père décédé prématurément, mais peut être lié aussi à une obligation légale de terminer les pollicitations depuis Trajan[H 7]. Le coût du chantier n'est pas connu[H 96]. Vieux n'a dû connaître que peu d'évergètes, et les Sennii étaient peut-être « le clan dominant de la vie politique viducasse »[H 2].
Hans-Georg Pflaum ne croit pas à l'accès de Sollemnis à l'ordre équestre. Des spécialistes au cours des années 1970 ont opté pour son accession à cet ordre[H 97]. Il semble avoir disposé de la « situation financière, politique ou relationnelle » pour cet accès et le fait d'être chevalier n'est pas signalé dans les inscriptions de Gaule ou de Germanie contemporaines de Sollemnis[H 98]. La carrière militaire constituait un mode d'accès au grade de chevalier, mais la carrière de Sollemnis est « peu étoffée »[H 99]. Devenir officier équestre a permis l'accès à l'ordre équestre de notables, Yann Le Bohec a qualifié la mission de « savonnette à vilains »[H 99]. La face III évoque peut-être le changement de statut[H 99]. En outre, Paulinus évoque un paiement en or, ce qui peut démontrer la dépréciation monétaire des frappes de billon[A 25].
Les chevaliers de Gaule ont peu exercé de missions administratives dans l'Empire à l'époque de Sollemnis, pour certains chevaliers « dénués d'ambitions militaires » l'accès à l'ordre équestre leur permettait davantage de reconnaissance dans leur province et « un état marquant de supériorité sociale »[H 100].
Témoignage des relations de patronage
Les lettres qui sont transcrites sur le Marbre de Thorigny l'ont peut-être été à partir des archives de Sollemnis ou de celles du prétoire ou du légat de Bretagne[H 101]. Le marbre de Thorigny est un témoignage du patronage et de relations de clientèle déjà présentes au dernier siècle de la République romaine. Sollemnis a entretenu des relations de dépendance avec Tiberius Claudius Paulinus et Aedinius Iulianus, gouverneurs de Lyonnaise, et peut-être avec Badius Comnianus et Valerius Florus[H 102]. Aedinius est préfet d’Égypte en 223[A 26]. Il est nommé préfet du prétoire la même année et accède au rang de sénateur au même moment[A 27].
Titus Sennius Sollemnis est ami et client de Paulinus[A 28]. La question de l'évolution des liens entre Sollemnis et Paulinus entre cliens et amicus est posée, cela peut être lié à la dédicace qui veut mettre en avant l'aspect avec une moindre dépendance mais aussi à une aide apportée par le Viducasse avant une entrée dans sa clientèle[H 103].
Sollemnis rend visite à Iulianus à Rome, préfet du prétoire, et est sans doute hébergé par lui au titre de l'hospitium. Il est par la suite recommandé par ce dernier auprès du nouveau gouverneur Comnianus, la demande de recommandation étant formulée juste avant son départ de l'Urbs. La relation est selon Pascal Vipard « asymétrique » car Sollemnis est figuré comme demandeur[H 104]. Sollemnis vient rendre hommage à son patron et, selon Hans-Georg Pflaum, le féliciter de sa nomination comme préfet ainsi que son accession à la classe sénatoriale ; la démarche le valorise aussi et le place comme l'« un des hommes les plus en vue de la Gaule »[A 29].
La lettre de Paulinus est familière, amicale, mais sans lien de dépendance explicite, l'auteur semble avoir Sollemnis en « haute considération »[H 105]. Sur la face principale, les relations amicales ou de clientèle ont prévalu sur la hiérarchie. Paulinus est présenté devant Aedinius, et Florus est en dernier[A 11].
Les deux lettres adoptent un ton différent, amical pour l'une, celle de Paulinus, hautaine chez l'autre, Iulianus ; cette différence est présente sur la façon dont sont présentées les relations entre protagonistes sur la face principale du monument[H 106]. La lettre de Iulianus montre comment ce dernier a appris à connaître Sollemnis pour ses principes moraux et pour son action envers Tiberius Claudius Paulinus[H 107]. La lettre de Iulianus est « un magnifique cas de lettre de recommandation », courrier dont la vocation est d'être rendue publique[H 108].
Sennius jouissait d'une « notoriété remarquable »[E 4]. Bénéficier d'une reconnaissance telle que l'érection di monument était tout à fait exceptionnel et dans le cas présent la reconnaissance ne vient pas de sa cité[H 109]. Le texte nous apprend aussi à quel point ce notable gaulois était intégré à l'Empire. Son réseau d'amis (gouverneurs, tribuns militaires) le liait à la classe dirigeante romaine. L'inscription témoigne des bonnes relations entre le commanditaire et des personnages de l'élite romaine, au moment de troubles puisque c'est la charnière entre les règnes de Maximin et Gordien III[E 2].
Témoignage d'une période politique troublée

L'inscription relève les relations de Titus Sennius Sollemnis avec des proches de la dynastie des Sévères[H 110]. Sollemnis est un membre connu du fait du marbre de Thorigny d'un groupe influent sous Héliogabale (218-222), Sévère Alexandre (222-235) et Gordien III (238-244). L'érection du marbre permet de se rapprocher des « fidèle[s] de l'ancien pouvoir »[H 62]. L'assemblée prend la décision d'ériger le monument dix-huit ans après la grande-prêtrise de Titus Sennius Sollemnis, et la dépense importante est liée à des « motifs politiques puissants et urgents »[A 11]. La statue est dédiée le 16 décembre 238[A 11], quatre mois après l'assemblée annuelle du 1er août, donc avec une mise en œuvre très rapide[A 30]. Du fait du rôle politique du monument, il est supposé qu'un autre édifice devait se trouver à Condate, où il pouvait être davantage vu qu'à Aregenua. Un buste de marbre, copie d'un bronze, a été découvert en 1836 et représente un homme d'âge mûr. L’œuvre, datée des années 235-244, représente selon Pierre Quoniam Timésithée ou un grand notable, un Arverne, C. Atilius Marcellus, un Médiomatrique, C. Sacconius Adnatus, ou le Viducasse Sollemnis[H 111].
La période de l'anarchie militaire débute en 235 avec l'assassinat d'Alexandre Sévère. Le conseil des Gaules, selon Hans-Georg Pflaum, aurait soutenu majoritairement Maximin (235-238) et Sollemnis n'ayant pas collaboré avec ce dernier, il a ainsi pu devenir le faire-valoir du « ralliement des anciens partisans de Maximin »[H 110]. Au même moment, le pouvoir de Gordien III est contesté et l'Espagne est en dissidence en 239[A 30]. Les partisans de Sévère Alexandre reviennent au pouvoir et il existe alors une crainte de représailles de la part du conseil des Gaules[A 31]. Sollemnis restait un personnage important dans ce contexte même en l'absence de possibilité de préciser davantage[A 31]. Sennius, ami de Paulinus et client d'Aedinius, leur était resté fidèle une quinzaine d'années après les lettres de recommandation envoyées et, parmi les nobles gaulois, il était de ceux qui avaient « le plus de crédit à Rome »[A 32]. Il serait resté l'« âme de la résistance » sous Maximin[A 8]. Sennius aurait signalé à ses patrons les honneurs qui lui étaient faits en Gaule, avec une association de leurs lettres au monument[A 8]. Pflaum évoque une solidarité entre Paulinus et Julianus, deux gouverneurs qui se succèdent et appartiennent à deux ordres différents (sénatorial pour l'un, équestre pour l'autre), la solidarité des classes possédantes étant forte « pour la conservation de leurs privilèges et de leurs situations »[A 33].
.jpg)
Selon l'épigraphiste Hans-Georg Pflaum, le commanditaire est Timésithée, procurateur de Lyonnaise et Aquitaine en 238, en disgrâce sous Gordien III (238-244) après avoir été au service de Sévère Alexandre et Maximin. Sollemnis aurait pu l'aider du fait des relations de ce dernier à Rome. Timésithée avait d'excellentes relations avec l'assemblée du Confluent et a eu d'excellentes relations avec les princesses syriennes[A 34], Julia Domna (épouse de Septime Sévère), Julia Maesa, Julia Soaemias et Julia Mamaea. Il se rallie très vite à Maximin[A 35]. Au début du règne de Gordien III, et de façon contemporaine au marbre de Thorigny, il est en disgrâce. En 241 il est nommé préfet du prétoire et devient beau-père de l'empereur quand Tranquilline épouse Gordien[A 36]. Timésithée aurait accédé au pouvoir par l'entremise du sénat et démontre dans son rôle un « génie de grand organisateur » avant sa fin brutale[A 37]. Cette thèse ne fait pas l'unanimité car fragile et avec un « caractère conjectural »[H 21].
Le Marbre est érigé dans un contexte troublé de retour du parti sénatorial, Sollemnis étant soit quelqu'un de très important pouvant épauler le conseil fédéral, soit manipulé dans le contexte de retour en grâce de ce même conseil fédéral[H 112]. D'autres personnages de Gaule ont peut-être joué un rôle comparable, mais sans traces probantes conservées[H 113]. Le Marbre de Thorigny est aussi le signe de la paix retrouvée après la guerre civile[H 101].
Notes et références
- ↑ « Piédestal dit marbre de Torigni », notice no PM50001009, sur la plateforme ouverte du patrimoine, base Palissy, ministère français de la Culture.
- ↑ Delaval 2004, p. 498.
- ↑ Alfred Merlin, « La vie quotidienne en Gaule pendant la paix romaine [Paul-Marie Duval. La Vie quotidienne en Gaule pendant la paix romaine. ] », Journal des Savants, vol. 4, no 1, , p. 169–180 (lire en ligne, consulté le ).
- ↑ Royo 2006, p. 77.
- ↑ Saint-Lô. Jusqu’à ce soir, le marbre de Thorigny est décrypté de A à Z, actu.fr
- ↑ Texte complet de l'inscription en l'honneur de T. Sennius Sollemnis (CIL XIII, 3162).
- Le marbre de Thorigny
- ↑ Pflaum 1948, p. 16-17.
- ↑ Pflaum 1948, p. 19-20.
- ↑ Pflaum 1948, p. 35.
- 1 2 Pflaum 1948, p. 21.
- 1 2 Pflaum 1948, p. 22.
- 1 2 3 Pflaum 1948, p. 17.
- 1 2 Pflaum 1948, p. 18.
- 1 2 3 Pflaum 1948, p. 62.
- ↑ Pflaum 1948, p. 32.
- 1 2 Pflaum 1948, p. 5.
- 1 2 3 4 Pflaum 1948, p. 51.
- ↑ Pflaum 1948, p. 10-12.
- 1 2 3 Pflaum 1948, p. 30.
- ↑ Pflaum 1948, p. 28.
- ↑ Pflaum 1948, p. 31-32.
- 1 2 Pflaum 1948, p. 13.
- ↑ Pflaum 1948, p. 15-16.
- ↑ Pflaum 1948, p. 34.
- ↑ Pflaum 1948, p. 25.
- ↑ Pflaum 1948, p. 26.
- 1 2 Pflaum 1948, p. 50.
- ↑ Pflaum 1948, p. 29.
- ↑ Pflaum 1948, p. 13-14.
- ↑ Pflaum 1948, p. 15.
- ↑ Pflaum 1948, p. 27.
- ↑ Pflaum 1948, p. 36.
- ↑ Pflaum 1948, p. 39.
- ↑ Pflaum 1948, p. 33.
- ↑ Pflaum 1948, p. 49-50.
- 1 2 Pflaum 1948, p. 53.
- 1 2 Pflaum 1948, p. 52.
- ↑ Pflaum 1948, p. 60.
- ↑ Pflaum 1948, p. 62-63.
- ↑ Pflaum 1948, p. 54-55.
- ↑ Pflaum 1948, p. 56.
- ↑ Pflaum 1948, p. 59-60.
- ↑ Pflaum 1948, p. 61-62.
- La restauration du "marbre" de Thorigny
- 1 2 3 Harmand 1965, p. 100.
- 1 2 Harmand 1965, p. 101.
- ↑ Harmand 1965, p. 100-101.
- Vieux antique (Araegenuae, Viducasses)
- 1 2 Pilet 1984, p. 64.
- ↑ Pilet 1984, p. 64-66.
- ↑ Pilet 1984, p. 76.
- Restaurations gallo-romaines à l'Université de Caen
- 1 2 3 4 5 6 Van Effenterre 1956, p. 41.
- ↑ Van Effenterre 1956, p. 41-42.
- 1 2 3 Van Effenterre 1956, p. 42.
- ↑ Van Effenterre 1956, p. 42-43.
- ↑ Van Effenterre 1956, p. 43.
- Recherches récentes autour du marbre de Thorigny
- 1 2 3 4 Deniaux 1999, p. 81.
- 1 2 3 4 5 6 Deniaux 1999, p. 82.
- ↑ Deniaux 1999, p. 82-83.
- ↑ Deniaux 1999, p. 81-82.
- Vieux-la-Romaine. Aregenua
- 1 2 3 4 5 Jardel, Lelièvre et Rican 2021, p. 30.
- 1 2 3 Jardel, Lelièvre et Rican 2021, p. 31.
- ↑ Jardel, Lelièvre et Rican 2021, p. 30-31.
- Le marbre de Vieux
- ↑ Héron de Villefosse 1889, p. 517.
- ↑ Héron de Villefosse 1889, p. 518.
- Marmor Tauriniacum : le marbre de Thorigny (Vieux, Calvados). La carrière d'un grand notable gaulois au début du troisième siècle ap. J.-C.
- 1 2 Vipard 2008, p. 132.
- 1 2 Vipard 2008, p. 146.
- ↑ Vipard 2008, p. 148.
- ↑ Vipard 2008, p. 140.
- 1 2 Vipard 2008, p. 122.
- ↑ Vipard 2008, p. 123-124.
- 1 2 Vipard 2008, p. 124.
- 1 2 3 4 5 6 7 8 9 Vipard 2008, p. 121.
- 1 2 Vipard 2008, p. 126.
- 1 2 3 Vipard 2008, p. 147.
- ↑ Vipard 2008, p. 128.
- ↑ Vipard 2008, p. 127-128.
- ↑ Vipard 2008, p. 130-131.
- ↑ Vipard 2008, p. 131-132.
- ↑ Vipard 2008, p. 150.
- 1 2 3 Vipard 2008, p. 121-122.
- 1 2 Vipard 2008, p. 87.
- ↑ Vipard 2008, p. 119.
- ↑ Vipard 2008, p. 117.
- ↑ Vipard 2008, p. 120.
- 1 2 Vipard 2008, p. 138.
- 1 2 3 Vipard 2008, p. 134.
- 1 2 3 4 5 6 7 Vipard 2008, p. 19.
- ↑ Vipard 2008, p. 19-20.
- 1 2 3 4 5 6 Vipard 2008, p. 20.
- ↑ Vipard 2008, p. 20-23.
- 1 2 3 4 5 6 Vipard 2008, p. 23.
- 1 2 3 4 5 Vipard 2008, p. 25.
- ↑ Vipard 2008, p. 30.
- ↑ Vipard 2008, p. 23-25.
- 1 2 Vipard 2008, p. 16.
- ↑ Vipard 2008, p. 27-29.
- 1 2 3 4 5 Vipard 2008, p. 63.
- 1 2 Vipard 2008, p. 15-16.
- ↑ Vipard 2008, p. 49-50.
- 1 2 Vipard 2008, p. 27.
- ↑ Vipard 2008, p. 59.
- ↑ Vipard 2008, p. 53, 57.
- 1 2 3 Vipard 2008, p. 133.
- ↑ Vipard 2008, p. 38.
- ↑ Vipard 2008, p. 47.
- ↑ Vipard 2008, p. 30-32.
- ↑ Vipard 2008, p. 32.
- 1 2 3 Vipard 2008, p. 34.
- ↑ Vipard 2008, p. 32-33.
- ↑ Vipard 2008, p. 42.
- ↑ Vipard 2008, p. 46.
- ↑ Vipard 2008, p. 15.
- ↑ Vipard 2008, p. 135.
- 1 2 Vipard 2008, p. 149.
- ↑ Vipard 2008, p. 81-82.
- 1 2 Vipard 2008, p. 82.
- 1 2 Vipard 2008, p. 84.
- ↑ Vipard 2008, p. 64.
- ↑ Vipard 2008, p. 83.
- ↑ Vipard 2008, p. 83-84.
- 1 2 3 Vipard 2008, p. 85.
- 1 2 Vipard 2008, p. 86.
- 1 2 Vipard 2008, p. 91.
- ↑ Vipard 2008, p. 90-91.
- ↑ Vipard 2008, p. 91-92.
- 1 2 Vipard 2008, p. 116.
- ↑ Vipard 2008, p. 92-93.
- ↑ Vipard 2008, p. 96.
- 1 2 Vipard 2008, p. 97.
- ↑ Vipard 2008, p. 99.
- ↑ Vipard 2008, p. 97-98.
- ↑ Vipard 2008, p. 98-99.
- ↑ Vipard 2008, p. 100.
- ↑ Vipard 2008, p. 101.
- ↑ Vipard 2008, p. 102.
- ↑ Vipard 2008, p. 102-103.
- ↑ Vipard 2008, p. 103-104.
- ↑ Vipard 2008, p. 104.
- ↑ Vipard 2008, p. 106-107.
- ↑ Vipard 2008, p. 107.
- ↑ Vipard 2008, p. 137-138.
- 1 2 Vipard 2008, p. 93-94.
- 1 2 Vipard 2008, p. 94.
- ↑ Vipard 2008, p. 135-136.
- 1 2 Vipard 2008, p. 95.
- ↑ Vipard 2008, p. 128-130.
- ↑ Vipard 2008, p. 88.
- ↑ Vipard 2008, p. 88-89.
- ↑ Vipard 2008, p. 127.
- ↑ Vipard 2008, p. 89.
- ↑ Vipard 2008, p. 89-90.
- ↑ Vipard 2008, p. 125-126.
- ↑ Vipard 2008, p. 84-85.
- ↑ Vipard 2008, p. 142.
- ↑ Vipard 2008, p. 143.
- ↑ Vipard 2008, p. 143-144.
- ↑ Vipard 2008, p. 145-146.
- ↑ Vipard 2008, p. 146-147.
- ↑ Vipard 2008, p. 123.
- ↑ Vipard 2008, p. 124-125.
- ↑ Vipard 2008, p. 107-108.
- ↑ Vipard 2008, p. 108-109.
- 1 2 3 Vipard 2008, p. 109.
- ↑ Vipard 2008, p. 109-110.
- 1 2 Vipard 2008, p. 137.
- ↑ Vipard 2008, p. 110-111.
- ↑ Vipard 2008, p. 111-112.
- ↑ Vipard 2008, p. 112-113.
- ↑ Vipard 2008, p. 113.
- ↑ Vipard 2008, p. 114.
- ↑ Vipard 2008, p. 115-116.
- ↑ Vipard 2008, p. 114-115.
- ↑ Vipard 2008, p. 132-133.
- 1 2 Vipard 2008, p. 136.
- ↑ Vipard 2008, p. 139-140.
- ↑ Vipard 2008, p. 138-139.
- ↑ Vipard 2008, p. 139.
- Le Calvados
- ↑ Delacampagne 1990, p. 79.
- Un exemple d'échec urbain en Gaule Lyonnaise : Aregenua, chef-lieu des Viducasses (Vieux, Calvados)
- ↑ Vipard 2006, p. 29.
- La topographie de Vieux - Araegenuae (Calvados), capitale de la cité des Viducasses, d'après les fouilles anciennes et les sondages récents
- ↑ Bertin 1977, p. 131.
- 1 2 Bertin 1977, p. 132.
- ↑ Bertin 1977, p. 134.
Voir aussi
Bibliographie
: document utilisé comme source pour la rédaction de cet article.
Ouvrages généraux ou sur Vieux-la-Romaine
- Dominique Bertin, « La topographie de Vieux - Araegenuae (Calvados), capitale de la cité des Viducasses, d'après les fouilles anciennes et les sondages récents », Annales de Normandie, nos 27-2, , p. 131-150 (lire en ligne, consulté le ).
. - Florence Delacampagne, Le Calvados, Paris, Éditions de la Maison des sciences de l'homme, coll. « Carte archéologique de la Gaule » (no 14), , 166 p. (ISBN 2-87754-011-1).
- Éric Delaval, « Vieux / Aregenua (Calvados) », dans Alain Ferdière (dir.), Capitales éphémères. Des capitales de cités perdent leur statut dans l’Antiquité tardive. Actes du colloque Tours 6-8 mars 2003, Fédération pour l'édition de la revue archéologique du Centre de la France, coll. « Supplément à la Revue archéologique du Centre de la France » (no 25), (ISBN 2-913272-10-X, lire en ligne), p. 497-500.
. - Élisabeth Deniaux, « La Conquête et l'intégration à l'empire romain », dans Élisabeth Deniaux, Claude Lorren, Pierre Bauduin et Thomas Jarry, La Normandie avant les Normands, Rennes, Ouest-France, , 448 p. (ISBN 2-7373-1117-9).
- Henri Van Effenterre, « Restaurations gallo-romaines à l'Université de Caen », Annales de Normandie, nos 6-1, , p. 41-46 (lire en ligne, consulté le ).
. - Claude Groud-Coudray, La Normandie gallo-romaine, Cully, OREP éditions, , 31 p. (ISBN 978-2-915762-18-1).
- Karine Jardel, Jean-Yves Lelièvre et Sidonie Rican, Vieux-la-Romaine. Aregenua, Bayeux, OREP éditions, , 64 p. (ISBN 978-2-8151-0620-7).
- Karine Jardel, Sophie Quévillon, Cécile Germain-Vallée, Laurence Jeanne, Laurent Paez-Rézendé et Grégory Schütz, « Le sous-sol des villes antiques de Basse-Normandie exploré par la géophysique : les exemples de Bayeux (14), Fontaine-les-Bassets (61), Valognes (50) et Vieux (14) », Aremorica. Études sur l'ouest de la Gaule romaine, no 7, , p. 7-35 (lire en ligne, consulté le )
- Christian Pilet, « Vieux antique (Araegenuae, Viducasses) », Revue archéologique de l'Ouest, no 1, , p. 63-84 (lire en ligne, consulté le ).
. - Manuel Royo, Rome et l'architecte. Conception et esthétique du plan-relief de Paul Bigot, Caen, Presses universitaires de Caen, , 227 p. (ISBN 2-84133-239-X).

- Pascal Vipard, La cité d'Aregenua (Vieux, Calvados), chef-lieu des Viducasses. État des connaissances, Château-Gonthier, Exé productions, (ISBN 2-913993-05-2).
- Pascal Vipard, « Un exemple d'échec urbain en Gaule Lyonnaise : Aregenua, chef-lieu des Viducasses (Vieux, Calvados) », dans Pierre Bouet et François Neveux, Les villes normandes au Moyen Âge (Actes du colloque de Cerisy-la-Salle (9-)), Caen, Presses universitaires de Caen, série « Symposia », , 392 p. (lire en ligne), p. 29-44.
Ouvrages sur le marbre de Thorigny
- Stéphane Benoist, « Le marbre de Thorigny, une œuvre au clair », dans Ségolène Demougin, Xavier Loriot, Pierre Cosme et Sabine Lefebvre (éd.), H.-G. Pflaum. un historien du XXe siècle, Genève, Droz, coll. « Hautes études du monde gréco-romain » (no 37), (ISBN 2-600-01099-8), p. 285-303.
- Maurice Besnier, Les origines de l'inscription de Torigny, BACTH, 1913, pp. 21-50.
- Jérôme Carcopino, « Le marbre de Thorigny », Revue des Études Anciennes, t. 50, nos 3-4, , p. 336-347 (lire en ligne, consulté le ).
- Élisabeth Deniaux, « Recherches récentes autour du marbre de Thorigny », Annales de Normandie, no 1, , p. 81-83 (lire en ligne, consulté le ).
. - Louis Harmand, « La restauration du "marbre" de Thorigny », Bulletin de la société nationale des antiquaires de France, no 1963, , p. 100-101 (lire en ligne, consulté le ).
. - Antoine Héron de Villefosse, « Le marbre de Vieux », Bulletin monumental, vol. 55, , p. 514-534 (lire en ligne, consulté le ).
- Édouard Lambert, Mémoire sur un piédestal antique en marbre, trouvé dans le XVIe siècle à Vieux près Caen, et connu sous le nom de Marbre de Thorigny, Mémoires de la Société des Antiquaires de Normandie, 1833, pp. 320-361
- André Pelletier, « Thorigny (marbre dit de) », dans La civilisation gallo-romaine de A à Z, Lyon, Presses Universitaires de Lyon, coll. « Galliæ Civitates », (ISBN 2-7297-0472-8, lire en ligne), p. 204-205.
- André Pelletier, « Sollemnis », dans La civilisation gallo-romaine de A à Z, Lyon, Presses Universitaires de Lyon, coll. « Galliæ Civitates », (ISBN 2-7297-0472-8, lire en ligne), p. 196.
- Hans-Georg Pflaum, Le marbre de Thorigny, Paris, Honoré Champion, coll. « Bibliothèque de l'École des hautes études. Sciences historiques et philologiques, 4e section » (no 292), , 71 p. (BNF 32525399).
. - Arthur Stein, « Le marbre de Thorigny », Listy filologické / Folia philologica, vol. 80, no 1, , p. 1-7 (lire en ligne, consulté le ).
- Pascal Vipard, Marmor Tauriniacum : le marbre de Thorigny (Vieux, Calvados). La carrière d'un grand notable gaulois au début du troisième siècle ap. J.-C., Paris, De Boccard, coll. « Gallia Romana » (no 8), (ISBN 978-2-7018-0243-5, lire en ligne).
.
Lien externe
- Christophe Leconte, « Le gallo-romain et colossal Marbre de Thorigny », sur Ouest-France, (consulté le ).
- Portail de l’archéologie
- Portail de la Rome antique
- Portail de la Normandie