Passerelle de Meylan

Passerelle de Meylan
Image illustrative de l’article Passerelle de Meylan
Géographie
Pays France
Région Auvergne-Rhône-Alpes
Département Isère
Commune Saint-Martin-d'Hères
Coordonnées géographiques 45° 11′ 55″ N, 5° 46′ 12″ E
Fonction
Franchit Isère
Fonction Passerelle pour piétons
Caractéristiques techniques
Type Pont à haubans
Longueur 125,70 m
Largeur 6,70 m
Matériau(x) Béton armé
Construction
Construction 1980
Concepteur Michel Placidi
Architecte(s) Auguste Arsac
Charles Lavigne
Entreprise(s) Campenon-Bernard
Géolocalisation sur la carte : France
(Voir situation sur carte : France)
Passerelle de Meylan
Géolocalisation sur la carte : Isère
(Voir situation sur carte : Isère)
Passerelle de Meylan
Géolocalisation sur la carte : Grenoble-Alpes Métropole
(Voir situation sur carte : Grenoble-Alpes Métropole)
Passerelle de Meylan

La Passerelle de Meylan également appelée Passerelle de l'île d'Amour en référence au parc du même nom dans lequel elle débouche, est une passerelle cyclable et piétonne traversant l'Isère et reliant les villes de Saint-Martin-d'Hères et Meylan dans le département de l'Isère.

Situation

La ville de Meylan est séparée du centre de l’agglomération grenobloise par l’Isère, la RN 90 d et l’autoroute A41. Toutes les liaisons entre Meylan et la ville de Grenoble se font par le pont des sablons et par le pont de la RN 90 d qui est réservée à la circulation automobile. Ceci impose donc un détour important pour un piéton et un cycliste, ce qui interdit pratiquement tous les déplacements à pied. La ville de Meylan et la Direction Départementale de l’Isère ont donc envisagé de construire une liaison directe, réservée aux piétons et cyclistes, entre la ville de Meylan et le centre de l’agglomération grenobloise, à travers le domaine universitaire de Grenoble situé en bordure de l’Isère.

Situation géographique de la passerelle

Historique

La construction de la passerelle a été approuvée par décision ministérielle le et sa construction a été achevée en 1980. La passerelle de Meylan est un pont à haubans (haubanage en semi-harpes). Les travaux ont été réalisés par l’entreprise Campenon-Bernard. Plusieurs grands noms du métier ont participé à la conception de cet ouvrage (comme Michel Virlogeux), de conception résolument nouvelle et faisant appel à une méthode de construction inhabituelle. Cette solution était une variante proposée par Michel Placidi. La solution de base proposée dans le dossier d'appel d'offres proposée de réaliser un ouvrage à deux travées avec une pile au milieu de l'Isère. La passerelle haubanée répondait à deux problèmes que posait la solution de base :

  • éviter de réaliser une pile au milieu d'une rivière dont le débit pouvait être capricieux et violent,
  • construire l'ouvrage indépendamment des contraintes du site.

La première contrainte a trouvé sa solution dans une structure légère haubanée. La seconde contrainte a pu trouver sa solution dans une structure construite en deux fléaux haubanés, bétonnés sur deux cintres faisant la totalité de chacun des fléaux et posés parallèlement aux berges. La structure finale est obtenue par la rotation des deux demi-fléaux haubanés au-dessus de l'Isère puis bétonnage d'un joint de clavage et mise en précontrainte définitive du tablier.

Cette méthode de réalisation d'un pont par rotation du tablier n'était pas une première, mais c'était une solution avantageuse dans l'environnement de cette passerelle. Michel Placidi l'a réutilisée sur plusieurs projets : passerelle Van Eyck, à Strasbourg, pont de la Flèche sur le Loir, à La Flèche, passerelle de Noisy-le-Grand au-dessus de l'A4, plusieurs ponts mis en place par rotation au-dessus de la RN10 entre Bordeaux et Bayonne, pont de Gilly-sur-Isère, pont de Puget-Théniers sur le Var.

Description de l’ouvrage

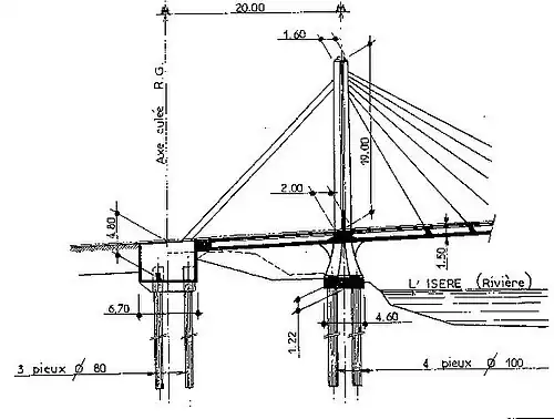
L’ouvrage est une poutre continue de trois travées, symétrique par rapport à la clé de la travée centrale et encastrée sur les piles et les culées. C’est un pont à haubans, mais plus particulièrement, un pont à haubanage en semi-harpes (haubanée en éventail pour la travée centrale, et de façon parallèle et concentrée pour les travées de rive). Sa longueur totale est de 125,70 mètres. La portée de la travée centrale est de 79,00 mètres, et celle des travées de rive entre les axes des appuis est de 20,00 mètres. Les piles et culées sont encastrées rigidement sur la rive gauche et respectivement encastrées élastiquement et simplement appuyée sur la rive droite.(cf. conditions d’appuis)

Schéma passerelle

Caractéristiques du projet

Le tablier

Le tablier est une poutre-caisson de forme triangulaire, de 6.70 m de largeur, de hauteur constante égale à 1.50 m (ce qui correspond à un élancement de 1/53). Au voisinage des pylônes, la section est épaissie, puis pleine sur toute la largeur de ceux-ci. La section transversale est constituée d’une dalle supérieure, et de deux âmes inclinées à 51 degrés sur la verticale et convergeant pour former un nœud inférieur. Le hourdis supérieur a une épaisseur variant de 0,178 m à 0,247 m. Son extrados comporte, dans le sens transversal, le même profil en toit incliné à 3 % que la chaussée.

Sa résistance vis-à-vis des flexions locales est assurée au moyen d’armatures passives de béton armé. Les âmes ont une épaisseur de 0,20 m, et sont liées au hourdis par des goussets. Elles se réunissent pour former le nœud inférieur d’épaisseur 0,50 m, constituant un intrados de 0,60 m de largeur. Ces éléments dégagent en partie courante un alvéole de forme trapézoïdale dont les bases ont pour dimensions 2,20 m et 0,826 m et dont la hauteur est de 0,80 m.

La partie centrale de la travée principale est réalisée en béton léger et seuls les quatre premiers mètres à partir des pylônes sont réalisés en béton traditionnel. En effet, le voisinage de l’encastrement du tablier dans le mât est une zone où les efforts sont maximaux, et où l’incidence du poids est très faible. Les travées de rives sont quant à elles encastrées, d’un côté dans le pylône et de l’autre, dans les culées contrepoids. Elles sont également réalisées avec du béton traditionnel (E400).

Coupe du caisson

Les piles

Chaque pile est fondée sur 4 pieux de 1,00 m de diamètre. Ces pieux ont sur la rive droite, une longueur de 18.80 m et sont ancrés dans des graves sableuses grises. Sur la rive gauche, ils ont une longueur de 20,80 m et sont ancrés dans des sables gris légèrement limoneux. Ils sont réunis en tête par une semelle de répartition de plan carré, dont ils occupent les angles. Le coffrage de la pile a été particulièrement travaillé, ce qui a permis de réaliser une forme élégante par ses courbures, et ses nervures de raccordement au tablier.

Rive gauche Rive droite

Les pylônes

Pylône en "Y" inversé

Les pylônes sont en forme de Y renversé. Ils prennent appui sur les piles de part et d’autre des voies de circulation du tablier, dégageant ainsi une ouverture de 6.30 m. Les deux montants inclinés ont une section rectangulaire de 0.65 m d’épaisseur, dont la largeur varie linéairement de 2.00 m en partie basse à 1.68 m au raccordement avec la tête de pylône.

La résistance des pylônes est assurée par des armatures de béton armé. L’effort d’écartement dû à l’ouverture des montants inclinés est repris en tête de pile par 6 barres de 32 mm de diamètre.

Les culées

Les culées sont des boites en béton armé, de dimensions en plan de 6.70 m sur 6.70 m et jouant le rôle de contrepoids. Chaque culée comporte trois voiles longitudinaux, délimitant deux compartiments qui sont remplis de tout venant formant le lest. Toute la charge que représente la culée (poids propre et lest de remplissage) est accroché au moyen d’armatures passives de béton armé à la partie supérieure du voile central.

La culée rive gauche est encastrée sur trois pieux de 0.80 m de diamètre disposé en triangle, le premier sous le voile centrale, à l’avant de la boite et les deux autres aux voisinage des voiles latéraux, à l’arrière de la boite. La culée rive droite repose sur deux pieux de 0.80 m de diamètre placés au voisinage de ses voiles latéraux. (Un couloir de visite avec trappe pour l’inspection des appuis néoprène a été réalisé dans la culée rive droite).

Les conditions d’appuis

Appui néoprène

De façon à limiter l’amplitude des vibrations de la structure, il a été décidé d’encastrer l’ouvrage sur ses fondations côté rive gauche. Ainsi la liaison sur pile est assurée par un matage entre la semelle et la base de la pile, et la liaison sur culée par un bétonnage de clavage entre les pieux et la boite contrepoids (le tout étant bien sûr réalisé après la mise en place par rotation).

Sur la rive droite, la pile repose sur sa semelle par l’intermédiaire de deux files de deux appareils d’appui en néoprène fretté (de (500x550)x9(12+ 3) mm), assurant un encastrement élastique sur la pile. La culée contrepoids s’appuie quant à elle, simplement sur sa fondation par l’intermédiaire d’une ligne unique de deux appareils d’appui en néoprène fretté (de (500x500)x8(12+3) mm).

Haubans

Accrochage des câbles
Haubanage

Le haubanage est assuré par des câbles de précontrainte classiques, constitués de 12 ou 19 torons selon les haubans. Le haubanage de l’ouvrage peut être décomposé en deux familles, la travée principale, et les haubans des travées de rive.

  • travée principale : haubans avant

Ces haubans sont au nombre de six par pylône. Ils s’ancrent à l’arrière de la tête de pylône et dans le nœud inférieur du tablier. Ils constituent une nappe axiale par rapport à l’ouvrage.

  • travées de rive : haubans arrière

Les haubans arrière, au nombre de quatre par pylône, s’ancrent en partie haute à l’avant du pylône et à l’arrière de la boite de culée. Dans le voile centrale de la boite, ils se séparent en élévation en décrivant des arcs de cercle, et sont ramenés dans le plan de symétrie de l’ouvrage jusqu’à obtenir une file unique d’ancrages superposés sur le mur arrière de la culée.

Ces haubans sont inclinés selon une pente moyenne de 1.05. Pour permettre le remplacement des haubans, les tubes rigides gainant les haubans à l’intérieur du béton ont été enduits d’un revêtement de peinture au bitume, de façon que l’adhérence acier-béton soit supprimé.

Phases d’exécution

L’ouvrage est décomposé en deux demi ouvrages symétriques aux détails de culée près, qui sont réalisés chacun sur une rive de l’Isère parallèlement à la berge. Ce procédé permet de bétonner le tablier sur cintre sur toute sa longueur. Chaque moitié d’ouvrage peut, une fois terminée et après mise en tension de la précontrainte de fléau et des haubans, être mise en place par rotation à son emplacement définitif. Les phases successive de la construction de l’ouvrage sont les suivantes :

  • Forage des pieux sous tube, mise en place des armatures et bétonnage.
  • Réalisation sur une dalle provisoire des boîtes de culées : radier, mur et voiles en béton armé, avec réservation d’ouvertures dans la dalle supérieure pour mise en place ultérieure du lest.
  • Bétonnage des semelles liant les quatre pieux des piles.
  • Bétonnage des piles sur une embase préfabriquée jusqu’au niveau de l’extrados (partie supérieure) du tablier.
  • Réalisation sur cintre du tablier, bétonné par plots.
  • Bétonnage des montants des pylônes sur un cintre prenant assise sur la pile.
  • Mise en place du coffrage de la tête de pylône auquel est lié l’ensemble des ancrages des haubans et la cage d’armatures préfabriquée au sol, puis bétonnage de la tête de pylône.
  • Mise en précontrainte des demi-tabliers au moyen de câbles filants depuis la clé jusqu’à l’arrière des culées.
  • Réalisation des longrines provisoires en béton armé constituant les chemins de roulement pour la rotation des demi-ouvrages.
  • Après pose d’un chargement simulant les superstructures, mise en tension des haubans toron par toron, qui provoque le décintrement du tablier.

Les demi-ouvrages sont alors terminés. Ils sont encore parallèles aux rives. Il reste à réaliser les phases suivantes :

  • Mise à leur place définitive des deux demi-ouvrages par rotation autour des piles.
  • Encastrement de la culée rive gauche sur ses pieux, et du pylône sur sa fondation. Passage sur appuis définitifs du pylône rive droite et de la culée rive droite.
  • Clavage, et mise en tension de la précontrainte de solidarisation.
  • Mise en tension des câbles supplémentaires filants d’un bout à l’autre de l’ouvrage.
  • Remplacement progressif de la couche de sable de simulation par les superstructures réelles.
  • Terrassement des remblais d’accès.
  • Essais de l’ouvrage.

Rotation

Lorsqu’un demi-ouvrage est mis en tension (câbles de fléau et haubans), il est prêt à être mis en place par rotation. L’opération de rotation commence par le passage sur appuis de rotation. Sur pile, il va falloir passer sur deux appuis glissants. Quatre cales vérins (Ø 406) sont alors mises en place pour permettre de transférer le poids de l’ouvrage aux appareils d’appui glissants de rotation, puis de ces appareils d’appui glissants aux appareils d’appuis définitifs. Les deux appareils glissants de rotation sont formés chacun par trois blocs de néoflon (400x400) solidarisés par une tôle. Ils reposent sur deux éléments de couronne en acier inoxydable. Chaque bloc néoflon est constitué d’une feuille de téflon à la partie inférieure, qui glissera sur la tôle d’inox. La culée quant à elle, vient s’appuyer par l’intermédiaire d’un rouleur de 100 tonnes, placé en son centre, sur un rail reposant lui-même sur une longrine circulaire s’étendant de la position de construction de la culée à l’emplacement définitif de la boîte contrepoids. (pour assurer la stabilité longitudinal, la culée contrepoids est remplie de tout venant =50 tonnes) La stabilité transversale du demi-ouvrage en rotation est assurée par l’écartement des appuis néoflon sur la semelle de la pile, ce qui est logique, puisque la majeure partie du poids passe par la pile sous pylône.

La rotation s’effectue autour de l’axe du pylône. La stabilité de cet axe est assurée par un tenon carré largement chanfreiné, faisant partie de l’embase de la pile, qui pénètre dans une réservation circulaire pratiquée au centre de la semelle. Une tôle d’acier cylindrique garnit la face verticale de cette réservation. Les chanfreins du tenon constituent de petites surfaces d’appui permettant éventuellement d’intercaler un vérin, pour assurer un centrage fin de l’axe du pylône à tout moment de l’opération, et en particulier lorsque la rotation est terminée. La mise en place de l’ouvrage (par rotation) va se faire en 3 phases : rotation du premier fléau de 88°, puis rotation du deuxième fléau de 100° et enfin clavage et mise en continuité de la structure.

Notes et références

    • Revue Travaux, , n°562
    • Ponts haubanés, René Walther
    • Passerelle de Meylan, Structurae

    Articles connexes

    Liens externes

    • icône décorative Portail Grenoble Métropole
    • icône décorative Portail des ponts