Plan libre

Le plan libre est un des cinq points de l’architecture moderne tels que les a définis Le Corbusier en 1926.
Les nouvelles techniques et les nouveaux matériaux dans la construction moderne furent largement exploités par les tenants du modernisme pour promouvoir une architecture débarrassée du maniérisme[1] de l’architecture du XIXe siècle. Le béton armé ou l'acier permettaient avec les dalles[2] de se passer de cloisons porteuses (refends). Aussi Le Corbusier voyait-il dans l’utilisation de poteaux porteurs la possibilité de composer des espaces indépendamment des contraintes structurelles :
« Jusqu’ici : murs portants : partant du sous-sol, ils se superposent, constituant le rez-de-chaussée et les étages successifs n’offrent qu’un identique cloisonnement. […] Au cours de constructions successives, nous avons observé qu’une grande économie d’argent était à réaliser en supprimant les murs portants et en les remplaçant par des poteaux localisés utilement fondés perçant la maison de bas en haut. Puis ces poteaux ont quitté les angles des pièces, sont demeurés tranquillement au milieu des pièces.[…] Les escaliers sont devenus des organes libres, etc., etc. Partout, les organes se sont caractérisés, sont devenus libres les uns à l’égard des autres[3]. »
Le Corbusier ne fait en réalité que mettre en mots et en théorie des principes de composition déjà bien installés dans l'avant-garde architecturale. Par exemple dans la maison Schröder (1924) à Utrecht, Gerrit Rietveld préfigure le plan libre de Le Corbusier, mais il n'utilise pas encore des poteaux : il compose l'espace avec quelques murs de refend et des cloisons amovibles.
Avec le plan libre, et l'utilisation systématique de poteaux porteurs, la limite d'espace sont les cloisons laissant une entière liberté dans leur composition et agencement. Elles orientent l’espace mais ne le contiennent pas.
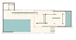
Mies van der Rohe voit dans le plan libre la possibilité de définir subtilement les qualités des espaces. Les cloisons se dématérialisent à tel point qu'il peut jouer sur le dedans-dehors. « [Il a] abandonné le principe habituel des volumes clos, à une série de pièces distinctes [il a] substitué une suite d’espaces ouverts. La paroi perd ici[4]son caractère de clôture et ne sert plus qu’à l’articulation organique de la maison ». Son pavillon allemand de l'exposition de Barcelone (1929) semble n’avoir été conçu que comme l’illustration du plaisir spatial offert par le plan libre pour un autre usage que l'habitation. Il crée un rapport dialectique entre la trame porteuse de poteaux et les cloisons « libres » définissant les espaces et cadrant les vues.
Ce rapport de la trame à l’espace va être repris, déformé, jusqu'à un imaginaire non transmis dans la réalité perceptible ordinaire (surdéterminé au sens philosophique), etc. tout au long du XXe siècle par des générations d'architectes, aussi bien Alvar Aalto dans les années 1930 que par Peter Eisenman dans les années 1980.
Le plateau d'immeuble de bureaux en est un avatar concrétisé à partir des années 1970.
Notes et références
- ↑ Jacques Rey (préf. Jean-Louis Cohen), Lyon cité Radieuse : Une aventure du Mouvement moderne international, Libel, , 141 p. (ISBN 978-2-917659-11-3), p. 44
- ↑ Rey 2010, p. 48
- ↑ Site reproduisant les esquisses, plans et écrits de Le Corbusier relatifs au plan libre
- ↑ cet extrait est tiré de : À propos de la Maison de campagne en briques manuscrit de conférence (1924).
- Portail de l’architecture et de l’urbanisme