Pyramide de Hawara
| Commanditaire | |||||||||||
|---|---|---|---|---|---|---|---|---|---|---|---|
| Autre nom |
Ânkh Amenemhat, ˁḫn Jmn-m-ḥʒ.t (« Amenemhat est vivant ») | ||||||||||
| Nom (hiéroglyphes) | |||||||||||
| Type | |||||||||||
| Hauteur |
58 mètres | ||||||||||
| Base |
105 mètres | ||||||||||
| Orientation |
48°45' | ||||||||||
| Coordonnées |
29° 16′ 27″ N, 30° 53′ 56″ E |

La pyramide de Hawara est la deuxième pyramide qu'Amenemhat III se fait édifier, la préférant, pour se faire ensevelir, à la première pyramide située à Dahchour.
Elle fut explorée pour la première fois par William Petrie en 1888 et 1889. L'égyptologue a ainsi pu identifier le temple funéraire du complexe comme étant le célèbre labyrinthe, monument décrit avec enthousiasme par de nombreux voyageurs célèbres de l'antiquité comme Strabon et Hérodote. L'ensemble funéraire peut être considéré comme le chef-d'œuvre architectural du Moyen Empire.
Architecture
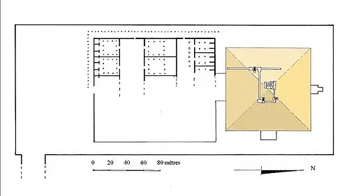
Le complexe funéraire

La pyramide et le temple funéraire étaient situés dans une vaste enceinte à redans commune aux ensembles funéraires royaux du Moyen Empire. Cette dernière mesurait 385 × 158 mètres environ. Une chaussée reliait le temple funéraire au temple de la vallée aujourd'hui disparu. Une petite chapelle funéraire était accolée à la face nord de la pyramide.
La pyramide

La pyramide devait avoir à l'origine une base de 105 mètres et une hauteur de 58 mètres. Le corps était composé de briques recouvertes d'un parement de calcaire.
L'entrée était située sur la face sud et dissimulée sous le parement de la pyramide.
Le plan de son infrastructure est plus simple qu'à la pyramide de Dahchour, mais les moyens mis en œuvre pour rendre la pyramide inviolable sont bien plus élaborés. Pour la première fois depuis le règne de Snéfrou (pyramide rhomboïdale), les architectes ont utilisé, en le perfectionnant, le système de fermeture avec herse sur plan incliné. Trois herses devaient initialement bloquer les accès mais une seule (la première à partir de l'entrée) a rempli sa fonction, les deux autres herses étant restées dans leur position d'attente.
La chambre funéraire est une merveille de conception. Le caveau est une cuve taillée dans un gros bloc de quartzite, pesant près de cent-dix tonnes. Le plafond du caveau est constitué de trois dalles de quartzite, dont une restait suspendue afin de pouvoir introduire le corps de pharaon et de la princesse Ptahnéférou. La dalle en suspens pèse près de quarante-cinq tonnes et était soutenue par deux étais jusqu'aux funérailles. Deux accès latéraux au caveau ont permis de sceller le tombeau. Petrie n'en avait pas compris le fonctionnement et émis l'hypothèse que ces accès constituaient des leurres afin d'égarer d'éventuels pilleurs. Ce système se retrouve dans plusieurs pyramides postérieures au règne d'Amenemhat III : la pyramide sud de Mazghouna, la pyramide de Khendjer et la pyramide inachevée de Saqqarah sud, ces deux dernières situées à Saqqarah.
Deux sarcophages de quartzite ainsi qu'une caisse à canopes se situent dans le caveau, le premier sarcophage était destiné au pharaon, le second, plus petit, à la princesse Ptahnéférou.
Afin de le protéger de la masse de la pyramide, le caveau était couvert par d'imposantes voûtes en chevrons (en A) suivant le modèle de la pyramide d'Amenemhat II à Dahchour. Les blocs composant le toit de cette voûte pèsent cinquante tonnes.
Aujourd'hui les appartements souterrains sont complètement inondés par l'eau provenant d'une nappe phréatique.
Le labyrinthe
Le temple funéraire fut de nombreuses fois cité et décrit avec admiration par les voyageurs grecs de l'Antiquité. Sa renommée était telle que les érudits, jusqu'au XVIIIe siècle, ne manquèrent jamais de le citer et de l'indiquer sur leurs cartes. Il est pourtant si délabré que l'on ne peut se fier qu'aux anciennes descriptions de ses illustres visiteurs[1].
Hérodote comptait douze cours principales entourées de galeries et de salles. Strabon comptait autant de salles qu'il y avait de nomes en Égypte. Ces salles étaient regroupées par trois ou par six, chaque groupe précédant une cour. Ces salles et ces cours étaient juxtaposées dans le sens est-ouest et se succédaient du nord au sud en trois rangées, chaque rangée étant précédée d'une cour. L'ensemble était entouré d'un déambulatoire. Petrie en a dressé un plan sans doute plus inspiré par les écrits des historiens que par les éléments, très rares, trouvés sur le terrain.
Entrée de la pyramide.
Descenderie des appartements funéraires.
Massif en brique de la pyramide.
Vestiges du labyrinthe.
Vestiges du labyrinthe.
Statue en granite d'Amenemhat III.
Vestige du labyrinthe.
Vestige du labyrinthe.
Carte du site par Lepsius.
Vue du labyrinthe par Lepsius.
La maquette des infrastructures et le modèle de la pyramide

- La maquette
Cette formidable découverte a été faite en 1976 dans le sol du complexe funéraire d'Amenemhat III à Dahchour. Cette maquette représente l'infrastructure de la pyramide de Hawara. Les galeries sont courtes et il n'y a qu'une seule chambre avec herse. Le caveau, avec son réseau de galeries, est très bien décrit avec les deux accès latéraux permettant de vider le sable retenant la dalle suspendue et la chambre parallèle à la cuve. Des cavités permettaient d'insérer des pièces de bois mobiles afin de simuler la fermeture du caveau et de la herse. La herse en bois est encore présente dans la maquette.

- Le modèle
William Matthew Flinders Petrie découvrit un modèle en calcaire d'une pyramide ayant les mêmes proportions que la pyramide de Hawara. Ce dernier fit une découverte semblable à Meïdoum en mettant au jour une petite pyramide à degrés taillée dans la même matière.
Particularités du complexe funéraire
- La seule pyramide dont on ait trouvé un plan de conception, ici sous forme d'une maquette ;
- L'immense temple funéraire (le labyrinthe) ;
- Le mur d'enceinte à redans, typique des complexes funéraires de l'Ancien (Djéser, Sekhem-Khet) et du Moyen Empire ;
- Les systèmes de fermeture avec herses ;
- Le système de fermeture, très élaboré, du sarcophage de la pyramide.
Notes et références
Références bibliographiques
- William Flinders Petrie, Kahun, Gurob, and Hawara, 1890 ;
- William Flinders Petrie, The Labyrint, Gerzeh and Mazghuneh ;
- Dieter Arnold, Der pyramidenbezirk des königs Amenemhet III in Dahschur band I, 1987 ;
- I.E.S. Edwards, Les pyramides d'Égypte, 1999 ;
- Jacques Vandier, Manuel d'archéologie égyptienne, Vol I, II, III ;
- Zahi Hawass, Trésor des pyramides.
- Portail de l’archéologie
- Portail de l’Égypte antique