Résidence Vincennes

| Type |
Immeuble à appartements |
|---|---|
| Style |
Modernisme |
| Architecte |
Lucien-Jacques Baucher |
| Construction |
1962-1965 |
| Commanditaire |
Robert Herpain |
| Patrimonialité |
Inscription à l'inventaire des monuments historiques |
| Adresse |
|---|
| Tramway |
93, 8 |
|---|
| Coordonnées |
50° 49′ 01,3″ N, 4° 22′ 16,2″ E |
|---|
![]() |
La résidence Vincennes est un immeuble à appartements conçu par l’architecte belge Lucien-Jacques Baucher, en collaboration avec les architectes Jean-Pierre Blondel et Odette Filippone entre les années 1962 et 1965. Situé dans le sud de Bruxelles, à proximité de la frontière avec la commune d'Ixelles, le bâtiment est installé sur l'avenue Louise, au 479, à proximité du Bois de la Cambre et du Parc de l’Abbaye de la Cambre. La résidence fut commandée par le promoteur Robert Herpain, qui, dans les années 1960 avait acheté le terrain, et fait appel aux trois architectes Baucher, Blondel et Filippone, alors encore assez jeunes, pour construire un immeuble avec un rez-de-chaussée commercial, des bureaux et des appartements de haut standing.
Localisation
À l’époque de la construction, l’immeuble n’avait aucun vis-à-vis et était parmi les plus grands de l’avenue, du haut de ses 12 étages. Aujourd’hui, plusieurs bâtiments ont vu le jour aux alentours, dont la Tour ITT de 25 étages, juste en face, au 480. En outre, deux grands parcs bruxellois se situent à proximité : Les jardins de l’Abbaye de la Cambre, ainsi que la Bois de la Cambre. Le bâtiment est accessible en transports en commun, depuis l’arrêt Legrand, desservi par les lignes de tramways 8 et 93.
Histoire
En 1962, le promoteur Robert Herpain fait appel à Lucien-Jacques Baucher, Jean-Pierre Blondel et Odette Filippone pour une parcelle dont il fit l’acquisition en 1961, et sur laquelle il avait commencé à concevoir un immeuble à appartement avec l’architecte anversois Freddi Keutter. Lors de sa collaboration avec Lucien-Jacques Baucher, architecte chargé du projet à la suite de la scission du bureau Baucher - Blondel - Filippone, le promoteur Herpain est très exigeant. En effet, celui-ci prend soin d’apporter une grande attention aux détails, et conçoit avec Baucher des appartements adaptés aux requêtes des acheteurs sur plan. L’ingénieur chargé du projet est Boris Boloukhère, avec lequel Herpain et Baucher collaborent pour obtenir une structure avec des poteaux en retrait par rapport à la façade, qui permet d’obtenir un mur rideau et une grande surface vitrée, caractéristique phare du projet.
Architecture
Avec sa façade en mur-rideau et ses longs balcons filants, la résidence Vincennes est un immeuble moderne assez sobre et élégant. L’intérieur est lui particulièrement soigné, pour souligner le caractère cossu[1] et haut standing voulu par l’architecte Baucher et le promoteur Herpain. L’attention accordée aux communs, aux menues installations et au jardin, en font, d’après la revue Architecture de 1966, un « immeuble à l’architecture raffinée, aux détails amoureusement étudiés[2]». Les communs comptent les interventions de plusieurs artistes belges : Pierre Cordier, qui conçoit un chimigramme pour l’entrée, Walter Leblanc, auquel avait été commandé une composition artistique en métal, ainsi que Jean Delogne, auquel on doit des installations en bois séché ainsi que l'aménagement des plantes du hall d'entrée et l'aménagement paysager des jardins suspendus à l'arrière du bâtiment.


Programmation
Initialement, la résidence avait une programmation mixte, avec un tiers des étages consacré à des bureaux, un rez-de-chaussée entièrement commercial, et 7 étages consacrés à des appartements cossus, allant de 80 à 400 m2. La superficie totale est d’un peu plus de 12 000 m² exploitables, en plus des parkings en sous-sol.
Aujourd’hui, l’immeuble est encore en assez bon état, et les prix à l’achat oscillent autour de 4000 € du m² pour les logements. En outre, beaucoup de bureaux, au prix d’achat moins élevés, ont été transformés en appartements, au gré de la demande immobilière.
Modularité et typologies
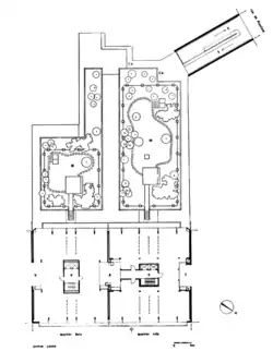
Le système constructif des colonnes en retrait en façade permet la mise en place du mur rideau, avec un module de châssis de base de 2,16 m. La technologie des poteaux en béton est assortie à une technologie de plancher hourdis nervuré. Chaque étage est divisé en 2 phases. La première phase de construction, au nord, est le quartier "ville" tandis que la deuxième phase de construction, au sud, est le quartier "bois". Les deux quartiers font chacun 400 m² en plan, qui peuvent être subdivisés pour obtenir jusqu'à 4 appartements par phase, et 8 appartements par étage. La mise en place de 3 cours intérieures permet de faire en sorte que chaque appartement bénéficie au minimum d'une double-orientation. Les appartements différents peuvent être traversants (200 m²), en L (320 m²), ou en carré (400 m² pour le plateau entier, 80 m² pour un quart de plateau).

Espaces communs

Le hall d'entrée de la résidence est l'espace le plus intéressant du point de vue de l'aménagement intérieur, qui non seulement compte nombre d'interventions d'artistes, mais est également un espace où l'architecte a pris le soin d'allier différents matériaux avec des systèmes d'éclairage indirect pour les mettre en exergue. Ainsi, les parements en brique sont alliés au teck, au béton et aux galets blancs, caractéristiques de l'espace. Aussi, les jonctions entre les différentes surfaces aux matérialités différentes sont pensées avec soin, avec une utilisation systématique du joint creux, notamment entre les parements en brique et la dalle béton, avec une plinthe en teck de 5 cm entre les deux.
Matérialité
Un des objectifs des architectes pour la Résidence Vincennes, pour s’assurer que le haut standing voulu reste pérenne était d’utiliser des matériaux et des techniques constructives qui résistent à l’assaut du temps : c’est pour cela que l’usage de la peinture a été prohibé en façade, et que les châssis utilisés sont en teck : imputrescible, résistant en extérieur et nécessitant peu d’entretien, le teck permet de bonnes performances thermiques et le double-vitrage installé est très performant pour l’époque.
Les balcons filants sur la façade nord-est, du côté de l’avenue Louise, devant les baies vitrées, sont en éléments Schokbéton sur plot, accrochés en porte-à-faux à l’ossature. Les garde-corps, comme le reste de la structure principale, sont en éléments Schokbéton, avec verre triplex, armé et fumé, des mains courantes en teck, et des attaches en acier inoxydable.
À l'intérieur, notamment au niveau du hall d'entrée, le béton et le verre se marient avec des parements en briques, des éléments en acier brossé, ainsi que des installations multiples en bois séché, conçues par Jean Delogne.
Postérité
L’immeuble est aujourd'hui inscrit à l’inventaire du patrimoine architectural de la ville de Bruxelles, ce qui lui confère un statut de base en termes de démarches de préservation et de conservation[3]. A son inauguration, le bâtiment a également reçu l'approbation de la profession, notamment par la Société Belge des Urbanistes et Architectes Modernistes (SBUAM), qui lui accorde la deuxième place à son prix de 1966, et la troisième en 1967.
Dans la littérature, plusieurs ouvrages font également mention de la résidence Vincennes, comme le livre La construction en Belgique 1945-1970, paru en 1971[4], ainsi que Architecture contemporaine en Belgique, paru en 1995[5].
Aussi, la résidence Vincennes a été publiée dans certaines revues d'architecture belges ou françaises, comme La Maison, dont elle fait même la une en 1966, Architecture ou La Maison de Marie-Claire.
Notes et références
- ↑ « Résidence Vincennes », La Maison, vol. 22, no 3, , p. 78-89 (lire en ligne)
- ↑ « Résidence Vincennes », Architecture, no 69, , p. 270-277 (lire en ligne)
- ↑ « Fiche de la résidence Vincennes pour son inscription au patrimoine immobilier de Bruxelles », sur irismonument.be, (consulté le )
- ↑ Geert Bekaaert et Francis Strauven, La construction en Belgique 1945-1970, Bruxelles, CNC,
- ↑ Geert Bekaeert, Architecture contemporaine en Belgique, Bruxelles, Racine, (ISBN 978-2-87386-050-9)
Bibliographie
- Aron, J., Burniat, P., Puttemans, P., Le guide de l'architecture moderne à Bruxelles, éd. Octogone, Bruxelles 1993.
- Bekaert, G., Strauven, F., La construction en Belgique 1945-1970, Confédération Nationale de la Construction, Bruxelles 1970.
- Burniat, P., Puttemans, P., Vandenbreeden, J., L'Architecture moderne à Bruxelles, éd. Octogone, Bruxelles – Louvain-la-Neuve, 2000.
- Cohen M. (dir.), Gaillard C., Memories can't wait, éd. C.L.A.R.A., Faculté d'architecture la Cambre-Horta/ULB, Bruxelles, 2018.
- Lund I., Cohen M., L.-J. Baucher, J.-P. Blondel, O. Filipone: 3 architectes modernistes, Faculté d'architecture la Cambre-Horta/ULB, Bruxelles, 2011.
Articles connexes
Liens externes
Autres références
- Entretiens réalisés auprès de Lucien-Jacques Baucher en .
- Archives personnelles de Lucien-Jacques Baucher.
- Portail de l’architecture et de l’urbanisme
