Temple d'Athéna Aléa
.jpg)
| Type | |
|---|---|
| Partie de | |
| Civilisation | |
| Dédicataire |
Ancient Greek mythological epithet (en) |
| Style | |
| Matériau | |
| Patrimonialité |
Site archéologique de Grèce (d) |
| Localisation |
|---|
| Coordonnées |
37° 27′ 20″ N, 22° 25′ 13″ E |
|---|

Le temple d’Athéna Aléa est un sanctuaire de la Grèce antique, situé à Tégée, en Arcadie. Ce temple, dédié à Athéna sous l'épithète Athéna Aléa, était considéré comme l'un des sanctuaires d'Athéna les plus importants de la Grèce antique.
Il nous est connu par Pausanias, Description de la Grèce, VIII, qui a parcouru le continent grec sous l'Empire romain, de 150 à 180 apr. J.-C. environ, et sur place par les études de Dörpfeld en 1882, suivies des fouilles de l'École française d'Athènes, menées par Gustave Mendel de 1900 à 1909 et publiées par Charles Dugas en 1924, sous la direction de Maurice Holleaux.
Histoire
Le temple aurait été construit par Aléos, fils d'Apheidas, dont le nom est probablement à l’origine de l'épithète attribuée à la déesse[1]. Le premier temple brûle en 394 avant J.-C. et un second temple est érigé par le sculpteur et architecte Scopas.
Premier sanctuaire et lieu d'asile
Le temple d'Athéna Aléa à Tegée était un asile ancien et vénéré de nombreux personnages dont on connaît les noms, qui se sont sauvés en y trouvant refuge[2]. Parmi les célébrités ayant demandé asile au temple, Pausanias cite Chryséis, le Spartiate Léotychidas et le général lacédémonien Pausanias :
- « Ses concitoyens lui faisant un crime de sa lenteur à se rendre en Béotie, (le général spartiate Pausanias) ne crut pas prudent de s'exposer à un procès, et les Tégéates l'accueillirent comme suppliant dans le temple d'Athéna Aléa, lieu qui depuis les temps les plus reculés était pour les peuples du Péloponnèse l'objet d'une vénération si profonde que les fugitifs y trouvaient un asile inviolable. Les Lacédémoniens donnèrent la preuve de leur respect pour ce temple, en ne faisant pas la moindre démarche pour qu'on leur livrât Léotychidas qui s'y était réfugié auparavant, et ensuite Pausanias ; et les Argiens, en ne redemandant pas Chryséis qui s'y était aussi retiré. » — Pausanias, Description de la Grèce, III, 5, 6. Éd. M. Clavier.
Second sanctuaire

Le second sanctuaire était un temple d'ordre dorique dont la taille et la splendeur surpassaient tous les autres temples du Péloponnèse et qui était entouré d'une triple rangée de colonnes d'ordres différents[3].
Pausanias en décrit l'extérieur :

- « L'ancien temple d'Athéna à Tégée avait été construit par Aléus ; dans la suite des temps, les Tégéates érigèrent à la déesse un temple très vaste et très beau : il fut détruit par le feu qui y prit subitement, sous l'archontat de Diophante à Athènes, dans la dernière année de la quatre-vingt-seizième Olympiade, où Eupolémus, Éléen, remporta le prix de la course du stade. Le temple qui existe maintenant est incomparablement le plus beau et le plus grand de tous les temples du Péloponnèse ; le premier rang de colonnes est d'ordre dorique, celui qui est après d'ordre corinthien, et le temple est entouré au dehors de colonnes d'ordre ionique. Il a eu pour architecte, à ce que j'ai pu apprendre, Scopas de Paros qui avait fait des statues dans beaucoup d'endroits de l'ancienne Grèce, ainsi que dans l'Ionie et la Carie. Quant aux frontons, on voit sur celui de devant la chasse au sanglier de Calydon ; le sanglier est à peu près au milieu ; à sa droite sont Atalante, Méléagre, Thésée, Télaraon, Pélée, Pollux et Iolas qui assista Hercule dans la plupart de ses travaux ; enfin Prothoos et Comètès, fils de Thestius et frère d'Althée ; de l'autre côté du sanglier, on voit d'abord Épochos soutenant Ancée déjà blessé et laissant tomber sa lance ; auprès de lui sont Castor et Amphiaraos, fils d'Oïclès ; ensuite Hippothoos, fils de Cercyon, fils d'Agamèdès, fils de Stymphalos ; et enfin Pirithoos qui est représenté le dernier. On voit sur le fronton arrière le combat de Télèphe contre Achille, dans la plaine du Caïque. » — Pausanias, Description de la Grèce, VIII, 45, 4 - 47, 4. Éd. M. Clavier.
Il donne des précisions sur la statue et les objets de culte :
- « On voit à Rome la statue d'Athéna Aléa, on la trouve en allant au forum qu'Auguste a fait construire ; elle est tout en ivoire ; c'est un ouvrage d'Endoios. Quant aux défenses du sanglier, l'une a été brisée, à ce que disent ceux qui sont chargés du soin des curiosités ; celle qui reste était dans le temple de Bacchus situé dans le jardin de César ; elle a environ une coudée de long et autant de circonférence. ». — Pausanias, Description de la Grèce, VIII, 46, 4-5. Éd. M. Clavier.
Archéologie
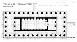
Le temple d'Athéna Aléa est un temple dorique périptère hexastyle (6 × 14 colonnes), dont on estime la hauteur à 17 mètres.
Fondations
.jpg)
Il ne reste du temple que ses fondations, et quelques blocs de l’euthynteria. Elles forment au sol deux rectangles, dont l’un est inscrit à l’intérieur de l’autre.
Le rectangle extérieur mesure 49 m de longueur et 21 m de largeur : il soutenait les colonnes de la péristasis. Le rectangle intérieur soutenait, lui, les murs du naos et les colonnes du pronaos et de l’opisthodome. Il est divisé en trois parties par deux fondations transversales qui supportaient les murs séparant le naos du pronaos et de l’opisthodome. Au milieu des côtés est et nord, des fondations rectangulaires relativement petites par rapport à l’ensemble ne peuvent être que des rampes d’accès[4]:9.
Avec ces fondations, on peut facilement reconstituer la krépis. Celle-ci, ainsi que le reste du temple, est faite en marbre de Dolianá. C'est un marbre très usuel dans l'Antiquité, d’un blanc très mat, d’un grain assez gros, qui provient du village du même nom situé à quelques heures de Tégée. Ces carrières étaient encore exploitées au début du XXe siècle[4]:9.
La plupart des blocs sont ajustés précisément et participent à la solidité de la construction. Néanmoins, on remarque quelques blocs non ajustés et irréguliers, sans doute postérieurs au IVe siècle av. J.-C.[4]:12.
L’euthynteria comprenait trois rangées de blocs, dont certains sont conservés, voire encore en place. Grâce à ceux-ci, on peut déterminer jusqu’à quel niveau montait le sol antique, car ces blocs ont une partie inférieure mal dégrossie, alors que la partie supérieure est bien dressée[4]:13.
Le stylobate est séparé de l’euthynteria par une double marche. Les fondations des rampes nous indiquent leur taille approximative de celles-ci : elles étaient légèrement moins élevées que les fondations du temple[4]:14.
L’ordre extérieur



Pour reconstituer les colonnes de la péristasis, on dispose de traces laissées sur quatre dalles du stylobate, de très nombreux tambours et de quelques chapiteaux. Les traces sur le stylobate nous apprennent la distance qui séparait les colonnes du bord du stylobate. On connaît également ainsi le diamètre de la base des colonnes, et grâce aux tambours découverts sur place, nous sommes à même de reconstituer les colonnes avec une exactitude quasi parfaite. Les fûts ont vingt cannelures, et mesurent 8,88 m sans chapiteau, et 9,47 m avec le chapiteau ; elles sont donc relativement hautes[4]:18.
On a retrouvé treize chapiteaux, dont un d’angle ; les cannelures ne sont pas incurvées au-delà des annelets, mais arrêtées net. Le profil de l’échine est presque droit[4]:20.
Il y a des restes importants de l’entablement, bien qu’aucun bloc ne soit parfaitement conservé. Mais on peut établir une reconstitution certaine à partir de ceux-ci, qui viennent confirmer l’emplacement des colonnes. Les architraves et contre-architraves sont soigneusement polies à l’extérieur, et seulement dégrossies à l’intérieur, mais s'ajustent parfaitement. Les fragments de frise de la péristasis sont très nombreux. Chaque bloc comprend un triglyphe et une métope[4]:20.
Sur les long côtés, la frise se compose d’une série de gargouilles en forme de lions, entrecoupés de rinceaux en forte saillie, représentant des rameaux ou des branches d’arbres[4]:21.
Le toit était formé de tuiles plates, mais quasiment toutes ont disparu. Le fronton est moins connu : des essais de reconstitution ont été établis, d’après le récit de Pausanias et quelques fragments trouvés sur place[4]:25.
Les acrotères ont également été restitués. Ils représentent un motif fait de palmettes et de rinceaux (acrotère faîtier), et des personnages ailés et debout (acrotères d’angles)[4]:29.
Le péristyle
La partie comprise entre la colonnade extérieure et les murs du naos est recouverte par un plafond de marbre. Neuf fragments de dalles appartiennent au péristyle[4]:30.
Le pronaos, l’opisthodome et leurs murs
Un seul tambour des colonnes d’ante a été retrouvé, et un seul chapiteau, qui permettent de déterminer les mesures principales, mais pas les détails des colonnes in antis et des antes. Trois blocs de frises ont été retrouvés, un appartenant au pronaos, et deux à l’opisthodome. Le triglyphe y est conservé sur les trois, à l’inverse des métopes, mais ils suffisent à reconstituer la longueur et la composition générale de la frise[4]:34.
Les murs du temple se reconstituent intégralement grâce aux fragments trouvés sur place. Le dallage du pronaos est légèrement plus élevé que celui de la péristasis. Une grande porte faisait communiquer le pronaos et le naos. La rampe du côté nord laisse à penser qu’il y avait une seconde porte latérale conduisant directement au naos[4]:37.
Le naos
.jpg)

Les blocs définissant l’intérieur sont moins nombreux et moins bien conservés que ceux de l’extérieur, mais on a réussi à en tirer des détails permettant la reconstitution.
À l’intérieur, on a 14 demi-colonnes avec des chapiteaux corinthiens, sept de chaque côté. Les 14 fragments de chapiteaux présentent une finition et un travail exemplaires. Malgré la présence de fondations centrales, on peut être certain qu’il n’y avait pas de colonnade intérieure, et que ces fondations sont largement postérieures au IVe siècle av. J.-C.[4]:45.
Sources
Bibliographie
- Charles Dugas, Jules Berchmans, Mogens Clemmensen, Le sanctuaire d’Aléa Athéna à Tégée, Fouilles de l’École française d'Athènes, Paris, 1924.
Articles connexes
- Portail de l’archéologie
- Portail de la Grèce
- Portail de la Grèce antique