Tenon

Le tenon est la partie mâle d'une pièce de construction destinée à être enfoncée dans la partie femelle d'une autre pièce et qui tient les deux par emboîtement. La partie femelle est appelée la mortaise.
Un tel assemblage peut être chevillé à l'aide d'une cheville de bois. Il constitue un embrèvement.
Terminologie
Chaque partie du tenon porte un nom distinct :

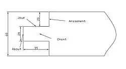
- l'arasement[1]
- il s'agit de la partie qui délimite l'épaisseur du tenon. Il assure également la solidité de l'assemblage[2]
- la joue[1]
- l'about[1]
- le chant[1] ;
- l'épaulement[1]
Le tenon peut adopter des formes variables selon son usage :
- faux-tenon
- Pièce rapportée comprise dans deux mortaises ou deux rainures, il est largement utilisé en menuiserie d'ameublement contemporaine du fait de la rapidité d'exécution de mortaises avec les outils portatifs modernes tels que la lamelleuse.
- tenon mordane[3]
- utilisé en charpente traditionnelle dans les planchers au droit des linçoirs. Sa section variable évite la concentration des contraintes et l'éclatement du bois. La mortaise est généralement traversante, l'assemblage est alors verrouillé par une clavette.
- tenon dit oulice
Références
Voir aussi
Articles connexes
Liens externes
- Portail du génie mécanique
- Portail du bois et de la forêt
- Portail de l’ameublement
- Portail du bâtiment et des travaux publics