Tour de Clackmannan

Tour de Clackmannan
Image illustrative de l’article Tour de Clackmannan
La tour vue du sud-est.
Nom local Clackmannan Tower
Période ou style Moyen Âge
Type Maison-tour
Début construction XIVe siècle
Propriétaire initial David II d'Écosse
Propriétaire actuel Historic Scotland
Protection  Classé en catégorie A[1]
Coordonnées 56° 06′ 28″ nord, 3° 45′ 35″ ouest
Pays Drapeau du Royaume-Uni Royaume-Uni
Nation constitutive Écosse
Council area Clackmannanshire
Localité Clackmannan
Géolocalisation sur la carte : Écosse
(Voir situation sur carte : Écosse)
Tour de Clackmannan

La tour de Clackmannan, en anglais Clackmannan Tower, est une maison-tour en L de cinq étages située dans le village de Clackmannan, dans le Clackmannanshire en Écosse. Construite au XIVe siècle elle a été agrandie au XVe siècle puis finalement abandonnée en 1791. Confiée à Historic Scotland dans les années 1950, la tour est classée en catégorie A.

Architecture

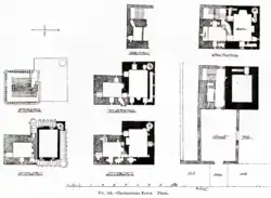
Plan de la tour de Clackmannan

La tour de Clackmannan, comme la plupart des châteaux écossais, est une maison-tour. Elle est constituée d'un donjon rectangulaire du XIVe siècle (en noir sur les plans), dont l'intérieur mesure environ 7 mètres sur 5,5 et dont l'épaisseur des murs atteint près de 2 mètres. L'entrée semble s'être située au rez-de-chaussée, un étroit escalier dans l'épaisseur du mur donnant accès à la pièce principale située au premier étage. À l'étage supérieur se trouvaient les chambres, la garnison étant logée dans le grenier[2].

Au XVe siècle, une aile (zone hachurée sur le plan) est ajoutée au sud afin d'agrandir le château et deux étages sont ajoutés au donjon qui se voit couronné d'un toit[3],[4]. Fait relativement inhabituel, elle est plus haute que la tour d'origine puisqu'elle comporte cinq étages. Elle communique avec le donjon via une porte percée dans l'angle du premier étage, avec un passage traversant la paroi sud de la salle. La nouvelle aile apporte des pièces désormais jugées nécessaires : une cuisine au premier étage, une chambre privée au deuxième, et des chambres aux étages supérieurs[2].

Cheminée du deuxième étage.

La cheminée de la chambre privée est très travaillée, et semble dater de la fin du XVe siècle. Comme à Sauchie, la pièce est également équipée d'un lavabo s'écoulant à l'extérieur et situé dans le mur est[2].

Le parapet surmontant les deux tours est doté de corbeaux et de mâchicoulis, qui sont inhabituellement plus grossiers sur la partie la plus récente de l'édifice[2].

Au XVIIe siècle, l'entrée du premier étage étant trouvée incommode, une nouvelle entrée de près de m de large est percée dans l'aile sud, conduisant à un large escalier droit construit de façon à combler l'espace entre l'aile et le bâtiment principal. Cet escalier permet d'accéder facilement au passage du premier étage, ainsi qu'à un entresol dans l'aile sud, probablement utilisé comme salle des gardes. L'escalier se poursuit sur quelques marches, donnant accès à une porte qui s'ouvre sur une terrasse située sur le toit de la partie inférieure de l'aile sud[2]. Un mur d'enceinte ainsi qu'un pont-levis sont également construits autour de la tour, bordés par des douves d'une largeur d'environ deux mètres pour un mètre de profondeur[4].

Histoire

Vues sud-ouest et nord-est de la tour en 1887.
Vue sud-ouest de la tour en 2008.

Les origines de la tour de Clackmannan remontent au XIIIe siècle, époque à laquelle les rois d'Écosse séjournaient fréquemment au village pour chasser dans les campagnes environnantes et avaient fait construire un relais de chasse royal à l'emplacement de la tour actuelle[5].

En 1359, David II d'Écosse vend le domaine à un de ses parents, Robert Bruce, afin de payer la rançon promise aux Anglais lors de sa libération[5] au terme de onze années de captivité[6]. Vers 1365, ce dernier construit une première maison-tour de deux étages, l'entrée s'effectuant au premier grâce à un escalier extérieur[3].

Au cours des siècles suivants, la tour connaît de nombreuses transformations. Au XVe siècle, elle est surélevée de deux étages et une aile de cinq étages est ajoutée au sud. Au XVIe siècle, une grande maison à pignons à échelons est construite au sud-ouest de la tour[3]. Au XVIIe siècle, une nouvelle entrée est percée et un nouvel escalier élevé entre les deux tours.

Le , le poète Robert Burns y est adoubé chevalier par Lady Catherine Bruce, vieille dame de 91 ans et descendante de Robert Bruce[7]. Vivant dans la maison adjacente à la tour, elle utilisa l'épée à deux mains de ses ancêtres, proclamant avoir plus le droit d'accorder ce titre que « certaines personnes » (désignant par là les Hanovre alors sur le trône de Grande-Bretagne)[8]. À sa mort, en 1791, la tour est abandonnée et tombe peu à peu en ruines. La maison est démolie, ses pierres servant à la construction de l'église paroissiale en 1815[9].

Dans les années 1950, elle passe sous la protection d'Historic Scotland qui entreprend quelques travaux visant à préserver l'édifice[3] affecté par l'effondrement d'une partie du mur est[4].

Tourisme

La visite de l'intérieur de la tour ne s'effectue que lors d'occasions spéciales en raison du mauvais état des ruines[3]. Des travaux sont toutefois prévus afin de l'ouvrir toute l'année[3]. L'accès extérieur s'effectue en revanche librement[9].

Annexes

Bibliographie

  • (en) David MacGibbon et Thomas Ross, The Castellated and Domestic Architecture of Scotland : from the twelfth to the eighteenth centuries, vol. 1, Édimbourg, David Douglas, (lire en ligne), p. 178-182

Notes et références

  1. (en) Historic Scotland, « Notice no 1946 », sur hsewsf.sedsh.gov.uk.
  2. 1 2 3 4 5 MacGibbon & Ross 1887
  3. 1 2 3 4 5 6 (en) « Clackmannan Tower », sur www.clacksweb.org.uk, Clackmannanshire Council (consulté le ).
  4. 1 2 3 (en) Clackmannan Tower sur le site de la Royal Commission on the Ancient and Historical Monuments of Scotland.
  5. 1 2 (en) « Around Clackmannan », sur www.clackmannantower.co.uk (consulté le )
  6. Il est capturé le 17 octobre 1346 à la bataille de Bataille de Neville's Cross et relâché en octobre 1357.
  7. (en) « Robert Burns » (consulté le ).
  8. (en) Gilbert Burns, The works of Robert Burns : with an account of his life, and a criticism on his writing. To which are prefixed, some observations on the character and condition of the Scottish peasantry, Londres, T. Cadell and W. Davies, , 8e éd. (lire en ligne), p. 170-171 :
    « A visit to Mrs. Bruce, of Clackmannan, a lady above ninety, […] interested his feelings more powerfully. This venerable dame, with characteristical dignity, informed me, on my observing, that I believed she was descended from the family of Robert Bruce, that Robert Bruce was sprung from her family. […] She was in possession of the hero's helmet and two-handed sword, with which she conferred on Burns and myself the honour of knighthood, remarking, that she had a better right to confer that title than some people. You will of course conclude that the old lady's political tenets were as Jacobitical as the poet's […]. »
  9. 1 2 (en) « Clackmannan », sur www.undiscoveredscotland.co.uk (consulté le ).

Liens externes

Articles connexes

  • icône décorative Portail de l’Écosse
  • icône décorative Portail des châteaux